brunch

12. CASE STUDY(사례 검토 편)/12.1

12.1 신혼집을 짓는 꿈 'ROMACE'(25평)

by 이동혁 건축가

순서대로 읽다 보면 완성되는 나의 집

꿈꾸던 전원주택을 짓다

글쓴이 : 이동혁


12. CASE STUDY(사례 검토 편)


12.1 신혼집을 짓는 꿈 'ROMACE'(25평)


"녹빛의 푸르름을 아침마다 바라볼 수 있다는 것은 내 생애 최고의 행복이다."


내 고향에서 사랑하는 사람과 함께 집을 지어 살고 싶었다. 어릴 적 앞마당과 들판에서 뛰어놀던 추억. 내 아이들에게도 그 추억을 느끼게 하고 싶다.


HOUSE PLAN

연면적 : 85.27㎡

1층 : 85.27㎡

규모 : 지상 1층

예상 총 건축비 : 140,000,000원(부가세 포함)

설계비 및 인허가비 : 7,500,000(부가세 포함)


SPEC

공법 : 기초-철근콘크리트 / 1층 구조-경량 목구조

지붕마감재 : 아스팔트 슁글

외벽 마감재 : 테라코트 플렉시텍스

외벽 포인트 자재 : 파벽돌

실내 벽 마감재 : 실크벽지

실내 바닥마감재 : 강마루

창호재 : 융기 3중 시스템창호

단열재 : 외부벽체(Glasswool Insulation R21HD-15" 나 등급)

: 내부 벽체(Glasswool Insulation R19-15" 다등급)

: 천장(Glasswool Insulation R30-15" 다등급)

: 지붕(Glasswool Insulation R37-23" 가등급)


■ PROJECT STORY

이번 프로젝트는 타 주택 프로젝트와 달리 한정된 예산에서 무조건 마무리가 되어야 하는 '신혼집' 프로젝트였다. 건축주 두 분이 새로운 시작을 하는 시기이므로 집을 어떠한 느낌으로 설계하고 구성해야 하는지 많은 고민이 있었다.


건축주의 예산은 1억 5천만 원이라는 금액으로 이미 정해져 있었다. 이를 절대 넘어서서는 안 되며, 어설픈 시골집이 아니라 이 마을에서 랜드마크적인 느낌의 주택으로 앉히고자 하였다.


경기도 화성 평년 기온을 살펴보니 생각보다 쌀쌀한 기후에 속하고 있었다. 또한 바람이 많이 부는 지형이어서 단열에 대한 부분을 가장 우선순위로 둔 후 설계를 스타트했다.


너무 좋은 조건의 대지. 거기에 푸르름이 무엇인지 나에게 말해주는 듯한 주변의 환경. 이 싱그러운 자연을 집과 동화시키고 싶었다.


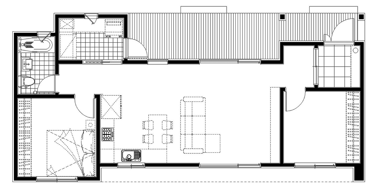
0.jpg 평면도

현관을 들어오면 10m가 넘는 오픈스페이스가 내 눈앞에 펼쳐진다. 거실과 주방을 과감히 오픈시켜 개방감을 극대화시켜주었으며, 거실 앞·뒤로 넓은 창을 설치해 항상 밝고 개방감 있는 공간이 만들어졌다.


① 은은한 회색 빛을 띠는 외관. 박스형 입면 디자인에 단순한 매스 분절을 통해 군더더기 없는 외관을 만들어 냈다. 외장재에 대한 비용을 줄여야 했기 때문에 테라코트 플렉시텍스를 색깔만 변경시켜 입면 디자인을 마무리했다.

DSC_2357.jpg


② 목조주택이기 때문에 지붕 경사도는 필수이다. 옥상 사용할 생각 하지도 말아라. 무조건 지붕은 마감재로 덮어주는 것이 최고이다. 30도 정도의 경사도를 주어 배면 쪽으로 물구배를 주었다. 이 집에 사용된 색깔은 단 두 가지이다. 짙은 회색과 옅은 회색. 어지럽게 디자인할 필요 없다. 단순함이 모던의 상징이다.

DSC_2347.jpg


③ 데크 위에 앉아 사랑하는 사람과 모닝커피를 마시는 상상. 그 어떤 것과도 바꿀 수 없는 행복한 시간일 것이다.

DSC_2358.jpg

④ 화이트 톤의 거실. 거기에 넓은 통창. 전면부에 막힘이 없는 조망권은 이 집이 가지는 최고의 장점일 것이다.

DSC_2339.jpg


⑤ 외장재 포인트 색상과 가구의 포인트 색상을 맞춰주었다. 은은하게 빛나는 회색빛의 'ㄷ'자형 싱크대. 말해 무엇하랴.

DSC_2320.jpg


⑥ 이 집의 층고는 2700mm이다. 설계할 당시 아파트보다도 300mm를 높게 설계했다. 예산이 모자라 공간을 작게 만들어야 한다고 고민하지 마라. 층고만 높여도 개방감은 충분히 확보할 수 있을 것이다.

DSC_2331.jpg


⑦ 깔끔한 느낌의 방. 벽에 포인트 벽지 붙일 생각 안 해도 된다. 깨끗한 느낌의 방을 만들어 놓아야 거기에 무엇을 가져다 놓던 그 자체가 빛날 수 있다.

DSC_2322.jpg


⑧ 화장실은 국산 타일을 이용해 적은 비용으로 최대 효과를 누릴 수 있도록 인테리어 하였다. 비싼 수입타일 안 써도 된다. 무리하지 말아라. 충분히 두 가지 타일만 사용해도 아파트 이상 가는 화장실을 만들어 낼 수 있다.

DSC_2329.jpg
DSC_2327.jpg


⑨ 현관문은 스틸단열도어로 사용하였다. 단열재가 없는 문은 사용조차 말아야 한다. 창문은 시스템 창호로 좋은 것을 해 놓고 현관문을 단순히 예쁘다는 이유로 단열이 안 되는 문을 달아버리면 겨울에 위에는 털옷 입고 바지는 반바지 입은 것과 똑같은 것이다.

DSC_2363.jpg


⑩ 역시 전원주택은 반려견이 있어야 한다. 손님에게 한없이 꼬리를 흔들어주는 강아지. 근데 집은 지켜야 하지 않겠니?

DSC_2364.jpg


■ 프로젝트를 마치며,

언젠가 태어날 귀여운 아이를 위한 선물로서 집을 설계하고 만들었다.

젊은 건축주의 취향에 맞게 모던하면서도 정갈한 디자인 마감으로 집을 완성시켰다. 집을 설계할 때 항상 많은 고민 앞에서 망설이게 된다.


"어떠한 것에도 치우치지 않고 밸런스 있게 공간을 배치해야지."


집이란 솔직히 답이 없는 분야이다. 사람마다 성향도 다르고 라이프스타일 자체도 다르게 살아왔기 때문에 내가 가진 지식이 무조건적으로 답일 수가 없다. 그래서 항상 설계 시 건축주 이야기를 많이 들으려고 노력한다.


또한 3개월이라는 긴 시간을 설계 시간으로 정해놓은 이유가 충분히 검토하고 고민해보라는 뜻도 담겨있다.

대충 그린 설계도면으로 훌륭한 집이 탄생될 것 같은가? 절대 그렇지 않다. 집은 설계도면 그대로 짓는 것이다. 시공과정에서 협의할 생각 하지 말고 설계 때 더 시간을 들여 고민과 협의를 진행하길 바란다.


마지막으로 이번 주택은 이미 마을에서 많은 관심을 받은 주택이었다. 건축주가 매우 만족한다는 답변을 받아 건축가로서 너무 뿌듯함을 느끼며, 멋진 집에서 오래오래 행복하게 아이와 살아가셨으면 좋겠다.


12.JPG 설계 투시도



keyword