brunch

12.C.../12.2 내 아내의 꿈(LOVE&DREA

12.2 내 아내의 꿈 'LOVE&DREAM'(33.5평)

by 이동혁 건축가

순서대로 읽다 보면 완성되는 나의 집

꿈꾸던 전원주택을 짓다

글쓴이 : 이동혁


12. CASE STUDY(사례 검토 편)


12.2 내 아내의 꿈 'LOVE&DREAM'(33.5평)


"지금도 꿈만 같아요. 주황빛 기와지붕 아래 내가 살고 있다니 아직도 가슴이 설렌답니다."


자식들을 다 키우고 우리 둘만 오붓하게 살고 싶었어요. 아내의 소망이었던 주황빛 기와지붕이 올라간 집을 꼭 지어주겠다고 약속했었는데 이렇게 현실이 되니 너무 뿌듯하답니다.


HOUSE PLAN

연면적 : 110.80㎡

1층 : 70.00㎡

2층 : 40.80㎡

규모 : 지상 2층

예상 총 건축비 : 180,000,000원(부가세 포함)

설계비 및 인허가비 : 8,370,000(부가세 포함)


SPEC

공법 : 기초-철근콘크리트 / 1층, 2층 구조-경량 목구조

지붕마감재 : 스페니쉬 기와(테릴 기와)

외벽 마감재 : 테라코트 플렉시텍스

외벽 포인트 자재 : 파벽돌

실내 벽 마감재 : 실크벽지

실내 바닥마감재 : 강마루

창호재 : 융기 3중 시스템창호

단열재 : 외부벽체(Glasswool Insulation R21HD-15" 나 등급)

: 내부 벽체(Glasswool Insulation R19-15" 다등급)

: 천장(Glasswool Insulation R30-15" 다등급)

: 지붕(Glasswool Insulation R37-23" 가등급)


■ PROJECT STORY

"주황빛 기와가 올라간 집에 살고 싶어요." 첫 상담 때 건축주 내·외가 내게 말한 내용이다.

다른 조건은 없었다. 두 사람이 살기에 적합한 공간에 현대적인 공간으로 만들어 달라고 했다. 아파트만 쭉 살아오셔서 그런지 전원주택에 대한 불안감을 안고 계셨다.

나는 집을 최대한 안정감 있게 하되, 북유럽 감성을 외관에만 입혀 보고자 하였다. 북유럽적인 느낌을 내기 위해서는 인테리어적인 부분에도 비용이 상당하게 투입되어야 하는데 이는 노후자금을 위험하게 하는 것이므로 과감하게 외부만 북유럽 감성을 넣자고 제안드렸다.

내부는 한국식 아파트의 감성을, 외부는 이국적인 북유럽 감성을 넣는 한국에만 있는 집짓기 프로젝트가 시작되었다.


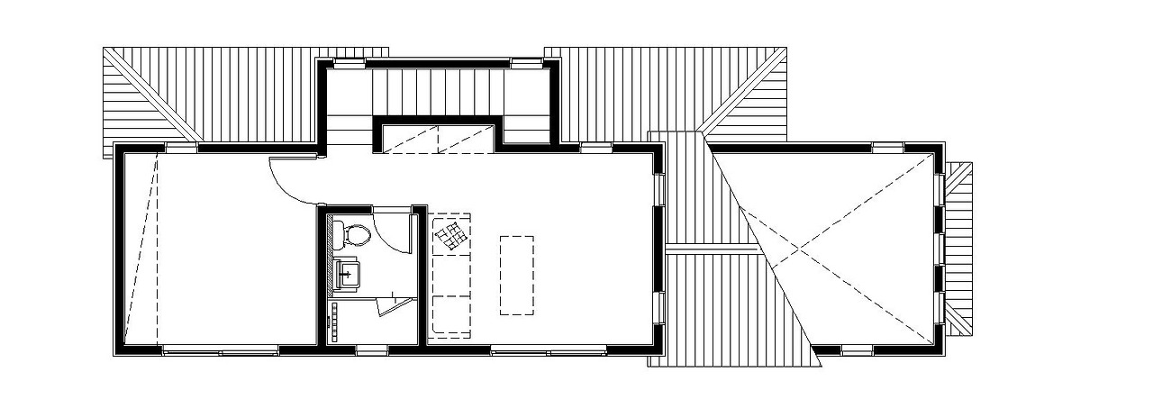
0-1층평면도.jpg 1층 평면도

앞마당을 최대한 활용할 수 있도록 가로로 긴 직사각형 형태의 배치를 선택하였다. 현관을 뒤쪽으로 배치한 뒤 집 안으로 진입 시 뻥 뚫려 보이는 개방감을 1차적으로 준 후 프라이버시가 중요한 안방의 경우 좌측으로 몰아 공용공간과 자연스럽게 분리되는 동선을 계획해 주었다.

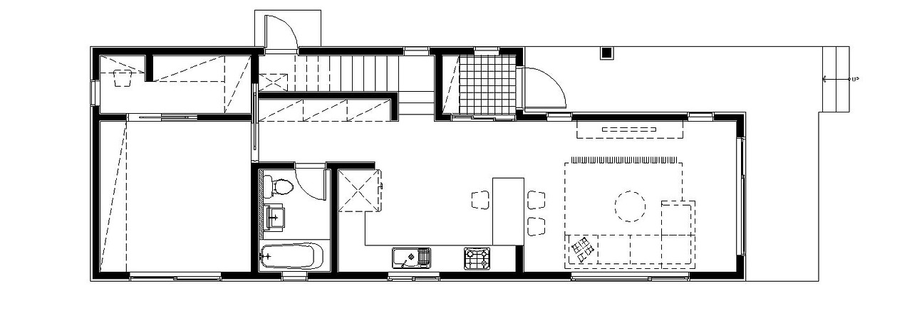
0-2층평면도.jpg 2층 평면도

33평 주택에 방은 2개만 구성하였다. 일반적으로 방이 3개 들어가는 평면과는 그 시작점이 달랐다. 두 분이서 거주할 공간이기 때문에 군더더기 없는 공간배치를 유도하였고 거실과 주방, 그리고 2층의 가족실을 중심으로 모든 공간이 배치되었다.


① 이국적인 느낌. 북유럽 감성. 해외로 여행 갈 필요 있나. 여기가 바로 파라다이스다. 손자, 손녀가 가장 좋아하는 집. 바로 이 집이 그런 집이다.

1.jpg


② 알게 모르게 라운드를 곳곳에 배치해 주었다. 직선과 곡선의 만남으로 이국적인 느낌이 배가된다.

2.jpg


③ 산과 물이 모두 모인 이곳. 이곳이 바로 명당자리이다. 주변 경관을 해치지 않고 원래부터 그 자리에 있었던 듯 산과 바람과 하나 되는 주택이다.

3.jpg


④ 높은 거실 천장. 1.5층 오픈 천장을 통해 개방감을 극대화시켰다. 화이트 톤 마감에 회색빛의 아트월, 거기에 수많은 창문들. 액자 걸 필요 없다. 창문 넘어 들어오는 외부 풍경이 곧 최고의 액자가 되어 줄 것이다.

4.jpg


⑤ 화이트&블랙의 주방 공간. 거실과 이어지는 공간으로 색감을 통일되게 맞추었다. 식탁의 포인트 조명은 건축주가 직접 골라온 유니크한 포인트 등이다. 다른 곳들은 먼지 쌓인다고 필자가 못하게 해서 이 한 부분만 욕심을 내셨다.

5.jpg


⑥ 밝은 느낌의 벽과 원목가구의 조화. 아기자기한 조명은 보너스.

6.jpg


⑦ 자녀들이 놀러 왔을 때 편히 쉬다 갈 수 있도록 작은방을 구성해 놓았다. 이 집에서는 모든 공간이 밝다. 어두운 공간이 생기지 않도록 가구는 화이트 계열로 배치하고 창문도 넓게 설계해 조명을 켜지 않아도 항시 밝게 유지된다.

7.jpg


⑧ 2층에 가족실을 별도로 구성해 놓았다. 손자, 손녀들의 주 놀이터 공간이다.

8.jpg


⑨ 세로로 넓은 창을 설치해 항상 밝은 계단실을 만들어 주었다. 작은 생각이 큰 효과를 불러일으키는 법이다.

9.jpg


⑩ 분수가 올라오는 앞마당. 건축주의 세심함이 마당 곳곳에서 느껴진다. 행복. 너무 멀리서 찾지 않았으면 한다. 행복은 항상 우리 가까이에 있는 것이다.

10.jpg


■ 프로젝트를 마치며,

많은 사람들이 궁금해한다. 따로 광고나 영업을 하지 않는데 어떻게 그렇게 많은 의뢰가 들어오냐고. 다들 가장 중요한 한 가지를 간과하고 있기 때문에 이런 질문들을 하는 것이다.

집만 정말 잘 지어준다면 특별히 홍보를 하지 않아도 건축주가 알아서 자랑을 해 주신다. 필자가 속한 회사의 90%가 소개로 찾아오신 분이다.

어려운 마케팅 같은 것은 잘 모른다. 공대 나왔기 때문에 복잡한 것 딱 질색이다. 내가 지금 잘할 수 있는 것. 집의 본질적인 가치에 충실하고 최선을 다해 지어드리면 언젠가는 그 집에 살고 있는 건축주도 내 마음을 알아줄 것이라 생각한다.


11.jpg 설계투시도


keyword