brunch

12. C.../12.8 아이를 위한 고향집 '원스 홈

12.8 아이를 위한 고향집 '원스 홈'(38평)

by 이동혁 건축가

순서대로 읽다 보면 완성되는 나의 집

꿈꾸던 전원주택을 짓다

글쓴이 : 이동혁


12. CASE STUDY(사례 검토 편)


12.8 아이를 위한 고향집 '원스 홈'(38평)


"겨울이 가고 봄이 올 때 앞마당에 피어나는 새싹을 바라보는 행복. 그 행복을 여러분께도 전해드립니다. "


광주광역시의 단독주택 단지. 이미 오래전부터 존재해 왔던 곳이다 보니 노후된 주택들이 대부분이다. 이 곳에 우리 가족만의 보금자리를 만들기로 했다. 집을 짓기까지 정말 많은 어려움이 있었다. 하지만 우리 가족의 꿈은 마음껏 뛰어놀 수 있는 마당과 항상 웃음이 끊이지 않는 그러한 추억을 담은 집을 가지고 싶었다. 봄 새싹과 같은 우리 가족의 집. "마음마저 푸르게 하는 나의 집을 소개합니다."


HOUSE PLAN

연면적 : 123.90㎡

1층 : 88.91㎡

2층 : 34.99㎡

규모 : 지상 2층

예상 총 건축비 : 220,000,000원(부가세 포함)

설계비 및 인허가비 : 9,500,000(부가세 포함)


SPEC

공법 : 기초-철근콘크리트 / 1층, 2층 구조-경량 목구조

지붕마감재 : 리얼징크

외벽 마감재 : 테라코트 플렉시텍스

외벽 포인트 자재 : 파벽돌, 세라믹 사이딩

실내 벽 마감재 : 실크벽지

실내 바닥마감재 : 강마루

창호재 : 융기 3중 시스템창호

단열재 : 외부벽체(Glasswool Insulation R21HD-15" 나 등급)

: 내부 벽체(Glasswool Insulation R19-15" 다등급)

: 천장(Glasswool Insulation R30-15" 다등급)

: 지붕(Glasswool Insulation R37-23" 가등급)


■ PROJECT STORY

광주광역시 광산구에 위치한 건축주의 대지. 이미 오래전부터 존재해 왔던 단독주택 단지였기에 어떠한 집을 이곳에 앉혀야 하는지 많은 고민이 있었다. 옛것의 아름다움을 유지할 것인가? 아니면 완전히 새로운 양식의 집을 앉힐 것인가? 많은 기간 동안 건축주와 논의한 끝에 현대적인 느낌으로 재해석하기로 하였다.

봄에 피는 새싹 같은 느낌을 원하셔서 외장색을 어둡기보다는 최대한 밝게 가기로 하였으며, 건폐율에 걸리는 문제를 해결하기 위해 처마를 많이 빼는 것보다는 모던한 형식으로 마감하기로 하였다. 총 시공면적은 38평인데 이 주택은 발코니 확장 개념을 사용해 실재 허가 면적은 더 적게 들어갔다.

광주광역시에서 이미 많은 분들이 구경 오는 집이 되었다. 아마 이 단지에서 가장 새로운 느낌으로 지어진 주택이라 많은 관심을 받은 것 같다. 이제는 행복하게 살 일만 남았다. 하자 없이 튼튼하게 지었으니 이제부터는 행복한 추억만 쌓으시길 바란다.


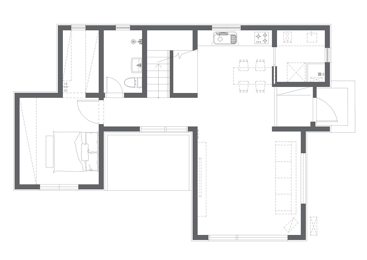
301 1층-Model.jpg 1층 평면도

독특하게 현관이 우측에 생성되어 있다. 땅의 모양상 진입 동선을 우측에 마련할 수밖에 없었다. 다만 현관에서 이어지는 복도를 중심으로 두고 각 실들을 배치해 자연스럽게 복도를 통해 모든 공간에 진입할 수 있게 하였다.

1층의 가장 매력포인트는 집 중앙에 배치된 중정이다. 안방과 거실 사이에 중정 개념의 테라스를 만들어 비가 오던 바람이 많이 불던 항상 활용 가능한 공간으로 설계했다.

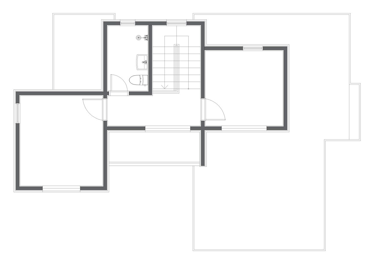
302 2층 평면도---Model.jpg 2층 평면도

2층은 아이들만을 위한 공간으로 구성했다. 예민할 수 있는 사춘기에 접어든 아이들인만큼 각자의 개인 공간을 명확히 구분 지어주었다. 별도의 화장실을 구성해 1층까지 내려오지 않아도 된다.


① 화창한 봄날이 느껴지는 외관. 말해 무엇하랴. 더할 나위 없이 좋다. 푸른 하늘과 파릇파릇한 앞마당의 잔디. 거기에 우리 가족의 보금자리. 삼박자가 완벽하다.

1.jpg


② 이색적인 돌담과 집의 외관이 너무 잘 매치된다. 외쪽지붕과 박공지붕 디자인의 조화는 더욱 유니크한 집의 외형을 완성시켜준다.

2.jpg


③ 집 뒤쪽으로 나 있는 현관 출입구. 많은 것을 붙이기보다는 비워냄을 통해 깔끔하고 모던한 현관을 완성시켰다. 추가 공사비가 줄어든다는 것은 덤이다.

3.jpg


④ 당장이라도 아이들이 뛰어나올 것 같다. 돌로 된 디딤석은 그 자체만으로도 자연감성이다.

4.jpg


⑤ 앞마당 쪽 창과 소파 뒤의 가로 창을 통해 밝은 햇살을 거실에 듬뿍 머금을 수 있게 하였다. 매립등과 모던한 거실등은 그 자체로 매력포인트가 되며, 색을 다양하게 넣기보다는 대리석 아트월 마감으로 고급스러움만 조금 더해주었다.

5.jpg


⑥ 군더더기 없이 깔끔한 화이트와 그레이의 믹스매치로 탄생한 주방. 화이트 타일로 마감해 주방 분위기가 더욱 밝게 빛나 보인다.

6-1.jpg
6-2.jpg


⑦ 기존에 있던 붙박이장을 그대로 사용할 수 있도록 설계단계에서부터 치수를 고려해 방을 만들었다. 가구를 모두 새로 살 필요는 없다. 기존 가구가 멀쩡하다면 그대로 사용하는 것도 비용을 아끼는 방법 중 하나이다.

7.jpg


⑧ 아들방은 블루 계열로 정신을 차분하게 하는 인테리어를 진행하였다. 저절로 공부가 자연스럽게 이루어질 것만 같은 느낌이다.

8.jpg


⑨ 딸의 방은 은은하게 빛나는 핑크 계열로 벽을 마감했다. 친구들 사이에서 이미 예쁜 방 1위로 뽑힌 공간이다.

9.jpg


⑩ 화이트&블랙의 인테리어가 매력적인 화장실이다. 포인트는 단 한 가지. 블랙 이외에는 없다. 어지럽지 않은 느낌이 좋은가? 그렇다면 투톤의 인테리어를 적극 추천한다.

10.jpg


⑪ 2층의 화장실은 좀 더 베이직한 느낌으로 디자인하였다. 실용석을 극대화 한 배치이며, 선반을 통해 다양한 수납을 할 수 있도록 하였다.

11.jpg


⑫ 멀바우 재질의 계단 마감. 무언가 자연적인 느낌을 몸으로 느낄 수 있게 한 공간이다. 단조 난간에 손스침 부분도 멀바우 재질로 마감해 더욱 운치를 더해준다. 계단 올라가는 부분에 아이들과 같이 만든 액자들이 있는데 이런 것들이 바로 추억이 만들어지는 과정이다.

12-1.jpg
12-2.jpg
12-3.jpg


⑬ 탁 트인 전망. 이보다 더 좋을 수는 없다. 무엇과도 바꿀 수 없는 행복. 여러분들도 느껴보았으면 한다.

13-1.jpg
13-2.jpg


⑭ 1층 공간에 마련된 가족의 놀이공간. 이 곳에서는 우리 가족의 DIY교실과 바비큐 파티가 주로 열리는 공간이다. 비 맞지 않게 공간을 만들어 4계절 모두 사용 가능한 공간이라 할 수 있다.

14.jpg


■ 프로젝트를 마치며,

봄의 새싹과도 같은 집. 언제 보아도 파릇파릇한 느낌이 드는 집을 만들어달라는 건축주의 요구에 정말 우리 팀은 진땀 꽤나 흘렸다. 아래의 설계 투시도는 시공 전 만들어지는 그림이다. 아마 위의 완공 사진과 비교해보면 거의 똑같이 지어졌음을 알 수 있을 것이다.

설계만 3개월. 아마 가장 긴 설계 협의기간을 가지고 가는 것 같다. 말이 3개월이지 만족할 때까지 수정을 반복한다. 대신 시공에 들어가면 수정은 불가능하다. 많은 고민을 한 설계인만큼 시공에서는 도면과 똑같이 진행한다. 시공에서 수정하려고 설계 대충 하시는 분들 있는데 그러면 집 망가지게 지을 수밖에 없다.

설계 때 100% 완벽하게 그린 후 시공은 그대로 짓는 것뿐이다. 명심해야 한다.

이미 광주광역시의 랜드마크가 된 집. 밝게 빛나는 집. 보고만 있어도 기분이 좋아지는 집. 이러한 집을 앞으로도 계속해서 지어나가고 싶다.


0.설계투시도.JPG

(좌측부터) 정다운 건축가, 임성재 건축가, 이동혁 건축가

[집이라는 본질적인 가치에 집중하다.]

Architecture Team : 홈트리오(주)

대표번호 : 1522-4279

위치 : 경기도 성남시 분당구 운중로 141, 경창 빌딩 602호 홈트리오(주)

홈페이지 : http://hometrio.kr/

설계 사례(홈페이지) : http://hometrio.kr/designcase/


글쓴이 : 이동혁 건축가

이메일 : sunsutu@hanmail.net

책 : '따뜻한 전원주택을 꿈꾸다' 저자(http://www.yes24.com/24/goods/40516450?scode=029)

이동혁 건축가 TV : http://tv.naver.com/sunsutu1


상담 및 자문[HOMETRIO 건축가]

이동혁 건축가 : 010-4567-8413

정다운 건축가 : 010-8560-0477

임성재 건축가 : 010-9941-8899




[네이버 TV - 이동혁 건축가 TV]

*글 읽기가 어렵나요? 그럼 이제부터는 영상으로 확인하세요.^^


1. 내 집 짓기의 시작-인트로 : http://tv.naver.com/v/1429784

2. 전원주택 짓기 1차 강연 영상 : http://tv.naver.com/v/1431765

3. 성공의 정석 '꾼' 이동혁 대표 : http://tv.naver.com/v/1434375

4. 전원주택 공법. 무엇으로 지으면 좋을까요? : http://tv.naver.com/v/1436122

5. 전원주택 짓기. 예산 잡는 법! : http://tv.naver.com/v/1446575

6. 전원주택. 왜 품질에 대해 말이 많을까? : http://tv.naver.com/v/1451485

7. 내 집짓기. 언제부터 준비해야 할까요? : http://tv.naver.com/v/1473650

8. 내 땅에 몇 평까지 집을 지을 수 있나요? : http://tv.naver.com/v/1473658

9. 전원주택 지방은 공사비가 더 비싸나요? : http://tv.naver.com/v/1479534

10. 전원주택 AS는 어떻게 진행되고 몇 년까지 보증되나요? : http://tv.naver.com/v/1479537

11. 전원주택 단층과 2층으로 지을 때 비용 차이가 많이 있나요? : http://tv.naver.com/v/1479547

12. 전원주택 성토한 땅에 바로 시공할 수 있나요? : http://tv.naver.com/v/1479558

13. 강화도 이강리 전원주택. 오픈하우스 현장 : http://tv.naver.com/v/1497662

14. 전원주택에 스타코플렉스를 왜 사용하나요? : http://tv.naver.com/v/1599468

15. 전원주택 데크에 대해 알려주세요. : http://tv.naver.com/v/1599480

16. 집짓기 착공 전 준비사항은 어떻게 되나요? : http://tv.naver.com/v/1599505

17. 목조주택에서 가장 많이 나는 하자와 그 빈도는? : http://tv.naver.com/v/1672388

18. 조영구 트렌드 핫이슈. 전원주택 쇼핑몰 : http://tv.naver.com/v/1682435

19. 전원주택 계약 시 속지 않기 위한 방법은? : http://tv.naver.com/v/1684870

20. 전원주택 추가 공사 왜 공사 전에 미리 말하지 않나요? : http://tv.naver.com/v/1688493

21. 강화마루, 강마루, 장판 무엇이 좋나요? : http://tv.naver.com/v/1692136

22. 목조 공법으로도 3층 이상으로 높게 지을 수 있나요? : http://tv.naver.com/v/1698287

23. 목조주택 2층에 시멘트 방통 시공. 목조에 부담을 주지 않나요? : http://tv.naver.com/v/1701955

24. 전원주택 바닥 방통 없이 난방을 할 수 있는 방법이 있나요? : http://tv.naver.com/v/1728947

25. 2억 4천만 원. 경기 광주 전원주택을 소개합니다. : http://tv.naver.com/v/1732431

26. 전원주택. 철근콘크리트가 목조보다 더 튼튼할 텐데도 목조로 집을 짓는 이유가 있나요? : http://tv.naver.com/v/1735979

27. 내 땅에 흙을 마음대로 받아도 되나요? : http://tv.naver.com/v/1739333

28. 지진이 늘어나는데 중목이 아닌 경량 목구조는 약하지 않나요? : http://tv.naver.com/v/1743684

29. 땅이 낮아 성토하고 싶어요. 절차가 어떻게 되나요? : http://tv.naver.com/v/1746299

30. 전원주택. 여름 공사와 겨울 공사 단점은 어떤 게 있을까요? : http://tv.naver.com/v/1759345

31. 전원주택 회사. 정말 안전한 업체인지 확인하고 싶어요. : http://tv.naver.com/v/1766577

32. 목조주택이 몸에 좋다는데 어차피 본드나 벽지도 바르지 않나요? : http://tv.naver.com/v/1817543

33. 전원주택 브랜드 업체들의 이윤이 너무 높지 않나요? : http://tv.naver.com/v/1834510

34. 전원주택 땅을 살려는데 종류가 너무 많아요. 혹시 집을 지을 수 없는 땅도 있나요? : http://tv.naver.com/v/1862326

35. 사람들이 목조주택을 짓게 되는 계기가 있을까요? : http://tv.naver.com/v/1866671

36. 건설업체가 안전한 업체인지 알아보는 법! : http://tv.naver.com/v/1918266

37. 미국식 창호와 독일식 창호의 차이 : http://tv.naver.com/v/1934487

38. 하자이행보증증권에 대해 알아보자 : http://tv.naver.com/v/2011225

39. 제주도에 집 지을 때 주의해야 할 점 : http://tv.naver.com/v/2011251

40. 월간 홈트리오 4월호-NEW 농가주택 표준설계도 : https://www.youtube.com/watch?v=WwZjpLNUiwI&t=273s

41. 월간 홈트리오 4월호②-꿈꾸던 다락방을 갖다 : https://www.youtube.com/watch?v=r1fyjlp4N5Q&t=129s

42. 조립식 소형 전원주택. [kasita]에 대해 알아보자! : https://tv.naver.com/v/3440492

43. 전원주택. 월간 홈트리오 5월호 - 도심형 단독주택을 짓다. : https://tv.naver.com/v/3441024

44. 전원주택에서 비가 오기 전 가장 먼저 확인해야 할 사항 : https://tv.naver.com/v/3506313

45. 전원주택 지으려고 하는데 어디에 물어봐야 할까요? : https://tv.naver.com/v/3571540

46. 전원주택 아스팔트슁글 괜찮나요? : https://tv.naver.com/v/3571580

47. 전원주택 세라믹사이딩 어떤 자재인가요? : https://tv.naver.com/v/3571616



keyword