brunch

12. C.../12.9 신혼부부 취향저격 'MARRI

신혼부부 취향저격 'MARRIAGE'(40평)

by 이동혁 건축가

순서대로 읽다 보면 완성되는 나의 집

꿈꾸던 전원주택을 짓다

글쓴이 : 이동혁


12. CASE STUDY(사례 검토 편)


12.9 신혼부부 취향저격 'MARRIAGE'(40평)


"핑크빛 기류가 감도는 곳. 보고만 있어도 느껴지는 것이 있다. 새로운 시작이 되는 그곳에 사랑하는 사람과 함께 있다."


아침에 일어나면 가장 먼저 나무와 풀, 그리고 꽃들이 주는 피톤치드로 온몸을 샤워한다. 건강하다는 것이 이런 것이구나. 건강한 느낌을 받는다는 것이 이런 것이구나 하는 것을 깨닫는다.


HOUSE PLAN

연면적 : 130.14㎡

1층 : 83.16㎡

2층 : 46.98㎡

규모 : 지상 2층

예상 총 건축비 : 200,000,000원(부가세 포함)

설계비 및 인허가비 : 10,000,000(부가세 포함)


SPEC

공법 : 기초-철근콘크리트 / 1층, 2층 구조-경량 목구조

지붕마감재 : 아스팔트 슁글

외벽 마감재 : 테라코트 플렉시텍스

외벽 포인트 자재 : 파벽돌

실내 벽 마감재 : 실크벽지

실내 바닥마감재 : 강마루

창호재 : 융기 3중 시스템창호

단열재 : 외부벽체(Glasswool Insulation R21HD-15" 나 등급)

: 내부 벽체(Glasswool Insulation R19-15" 다등급)

: 천장(Glasswool Insulation R30-15" 다등급)

: 지붕(Glasswool Insulation R37-23" 가등급)


■ PROJECT STORY

사랑하는 사람과 첫 발을 내딛는다는 것. 생각만으로도 행복함이 느껴진다. 행복한 신혼집을 지어야 하는 프로젝트. 이러한 프로젝트는 항상 환영이다. 아무래도 신혼이다 보니 자금적으로 여유로울 수가 없을 것이다. 경기 광주의 30평대 신축 아파트 매매가는 3억 중반선이다. 이번 프로젝트를 시작하기 전 예산을 2억 5천만 원 아래로 리미티드선을 정한 후 진행을 하였다. 총예산은 3억이었지만 집에 모든 돈을 써 버리면 안 되기 때문에 여유자금을 최대한 만들어 드리고 싶었다. 외장은 심플하게, 인테리어도 최대한 심플하게. 다시 말하면 들어가는 비용을 최소화. 이것이 이번 주택의 키포인트라 할 수 있다.


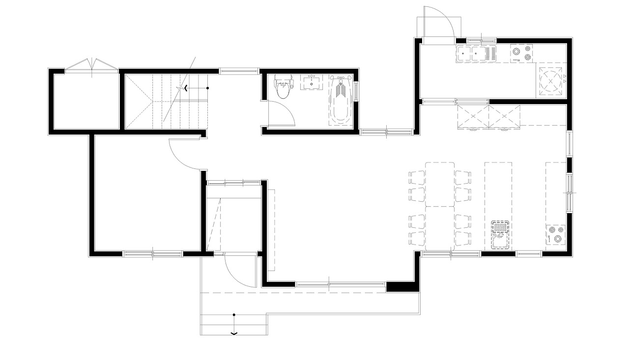
1층 평면도.jpg 1층 평면도

"계단실을 숨기고 싶어요." 보통 현관을 들어오면 가장 먼저 보이는 것이 계단실이다. 공용공간과 개인 공간을 구분 지어주는 것이 코어 부분인데 계단이 바로 이 코어에 속하기 때문이다. 건축주는 현관을 들어왔을 때 답답하게 막히는 것은 싫다고 했다. 현관에 진입한 후에 막힌 공간이 아닌 창으로 뚫린 공간을 만들어야 했다.

2층 평면도.jpg 2층 평면도

계단에서 올라오면 단순히 복도로만 활용할 수 있는 공간이 아닌 조금 더 넓은 공간을 만들어줘 가족실 개념으로 티테이블 정도 놓을 수 있게 설계했다. 이 집은 다락이라는 공간이 만들어졌다. 단순히 창고로서의 공간이 아닌 서재로서의 역할을 병행할 수 있다.


① 수려한 외관. 너무 튀는 것이 아닌 꾸미지 않은 멋을 넣고 싶었다. 혹 '사과꽃'을 아는가? 다들 열매인 사과만 기억하는데 열매가 맺히기 전 피는 사과꽃은 그 수수함이 매우 빛나는 꽃이다.

1.외관.jpg


② 박공지붕의 경사면이 클래식한 멋을 더욱 부각한다. 마치 알프스 산맥 아래 홀로 멋스럽게 서 있는 집처럼 느껴진다.

2-1.jpg
2-2.jpg


③ 젊은 신혼부부의 취향에 맞춘 취향저격 인테리어. 군더더기 없는 화이트 벽지에 그레이톤의 아트월로 마감을 진행하였다. 좀 더 모던한 느낌을 위해 조명도 매립등으로 진행하였다.

3.jpg


④ 집 내부가 너무 훤히 들여다보이는 것을 방지하기 위해 창 안쪽으로 인테리어 폴딩도어를 설치했다. 그 자체로도 멋스러움이 느껴진다.

4.jpg


⑤ 화이트와 그레이의 조화. 깔끔하면서도 어딘지 모르게 시크한 느낌이 드는 인테리어이다. 어두운 주방은 싫다. 최대한 크고 넓은 창을 정면과 측면에 설치해 주었다.

5.jpg


⑥ 군더더기 없는 방. 가로의 조망창을 통해 멋스러운 자연경관을 볼 수 있도록 하였고 시스템창 적용으로 단열을 더욱 강화시켜주었다. 뭐니 뭐니 해도 집은 따뜻해야 한다.

6.jpg


⑦ 2층 가족실 한편에 마련된 소파. 화분과의 매치가 멋스럽게 느껴진다.

7.jpg


⑧ 다락이라고 창고처럼 보일 줄 알았는가? 다락도 방으로 구성이 가능하다.

8.jpg


⑨ 관리가 용이한 화장실. 화장실에도 난방배관을 설치해 항상 뽀송뽀송한 상태를 유지하게 하였다.

9.jpg


⑩ 현관을 들어서면 큰 창이 나를 반긴다. 창 자체가 멋진 액자가 될 수 있다.

10.jpg


⑪ 거실의 멋스러운 액자. 하얀 벽에 걸려있는 그림이 신비함마저 감돌게 한다.

11.jpg


⑫ 블랙톤의 3중 연동도어 설치로 활용도를 높였다. 바닥 타일은 유럽풍으로 마감해 단조로울 수 있는 현관 인테리어에 생명감을 불어넣도록 했다.

12.jpg


⑬ 밤마다 가족의 바비큐 파티가 열리는 곳. 봄과 가을에는 텐트가 펼쳐지는 캠핑장으로 변신한다.

13.jpg


■ 프로젝트를 마치며,

예쁘다는 말을 집을 보면서 하기 힘들다. 하지만 이번 주택은 예쁘다는 말을 참 많이 들은 것 같다. 1억 8천만 원이라는 가성비 높은 금액으로 완성된 '신혼집' 앞으로 어려운 일도 만나고 힘든 일도 생겨나겠지만 지금의 행복한 느낌을 기억하면서 모든 고난을 헤쳐나갔으면 한다.

집이란 그런 존재이다. 언제나 나를 반겨주고 포근하며, 엄마 같은 느낌. 예쁘고 아름답고 따스한 집. 평생 이러한 집에서 행복하게 사셨으면 한다.

다운로드.jpg


keyword