brunch

12. C.../12.11 가족의 소통 'STORY-Z

12.11 가족의 소통 'STORY-ZEN'(47평)

by 이동혁 건축가

순서대로 읽다 보면 완성되는 나의 집

꿈꾸던 전원주택을 짓다

글쓴이 : 이동혁


12. CASE STUDY(사례 검토 편)


12.11 가족의 소통 'STORY-ZEN'


"집에 왔을 때 각자 방으로 흩어지는 것이 아닌 거실에 모여 웃음꽃을 피운다."


어느 순간 집에 들어오면 각자 방으로 자연스럽게 들어가는 것이 일상이 되었다. 4명이 모여 살아도 대화할 시간도 줄어들고 웃음도 사라진 것 같이 느껴진다. 언제부터였을까? 우리 가족의 웃음꽃이 필 수 있도록 소통의 공간을 만들기로 했다. 행복은 여유가 없어서 하지 못하는 것이 아니다. 하고자 하지 않았기 때문에 못하고 있었던 것이다.

이번 집이라는 존재를 통해 가족의 소통과 웃음꽃이 다시 피어나기 시작했다. 작은 시작점. 그 작은 시작점을 통해 우리 가족만의 행복을 되찾아가는 시간을 가지게 되었다.


HOUSE PLAN

연면적 : 156.00㎡

1층 : 85.20㎡

2층 : 70.80㎡

규모 : 지상 2층

예상 총 건축비 : 245,000,000원(부가세 포함)

설계비 및 인허가비 : 11,750,000(부가세 포함)


SPEC

공법 : 기초-철근콘크리트 / 1층, 2층 구조-경량 목구조

지붕마감재 : 아스팔트 슁글

외벽 마감재 : 스타코플렉스

외벽 포인트 자재 : 파벽돌, 세라믹 사이딩

실내 벽 마감재 : 실크벽지

실내 바닥마감재 : 강마루

창호재 : 융기 3중 시스템창호

단열재 : 외부벽체(Glasswool Insulation R21HD-15" 나 등급)

: 내부 벽체(Glasswool Insulation R19-15" 다등급)

: 천장(Glasswool Insulation R30-15" 다등급)

: 지붕(Glasswool Insulation R37-23" 가등급)


■ PROJECT STORY

이번 프로젝트는 가족의 소통이라는 콘셉트로 진행되었다. 프로젝트명으로 정해진 STORY-ZEN이라는 의미에 대해 많은 분들이 궁금해하셨다. 큰 특징보다는 이야기라는 주제와 일본식 주택의 키워드인 ZEN이라는 이름을 붙여 진행하였다. ZEN은 '선'의 일본식 발음이다. 정갈하고 절재 미가 느껴지는 이미지를 떠올리면 된다.

이번 주택의 모티브는 작년에 지어졌던 용인의 한 주택에서 가지고 왔다. 건축주 개인적으로 마음에 들어했던 모델이었기 때문에 외형적인 느낌은 가지고 오되 실내 구성은 건축주의 라이프스타일에 맞게 변형시켰다.


0-1층평면도.jpg 1층 평면도

현관을 통해 집에 들어왔을 때 가장 먼저 하는 행동은 무엇인가? 이번 집의 건축주는 손을 씻는 것부터였다. 보통은 현관 앞에 계단실을 주로 만드는데 이번 주택에서는 손을 씻을 수 있는 세면대를 현관 앞에 배치시켰다.

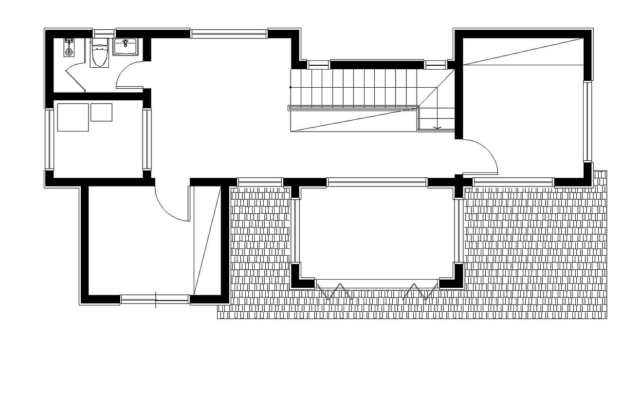
0-2층평면도.jpg 2층 평면도

2층의 주 포인트는 넓은 가족실과 폴딩도어로 마무리한 테라스 공간이다. 테라스는 생각보다 관리가 잘 안 되는 공간 중 하나이다. 이번 주택 사례처럼 양쪽에 창을 설치해 자연 채광에 대한 요소를 만족시켜준 후 전면부에 활짝 오픈할 수 있는 폴딩도어를 설치해 편의에 따라 열고 닫을 수 있도록 설계했다.


① 일본에 와 있는 듯한 느낌을 받게 한다. 조금 더 길게 뽑은 처마와 직선의 미가 느껴지는 외관 디자인이다. 포인트는 두 가지를 사용했는데 세라믹 사이딩과 청고 벽돌 스타일의 파벽돌이 그것이다.

1.외관.jpg

마당 관리를 위해 잔디는 최소화로 심었으며, 앞마당은 디딤석 석판을 통해 조경을 마무리하였다.

1-1.jpg

넓은 목재데크. 뭐니 뭐니 해도 전원주택이 가지는 가장 큰 매력포인트는 데크 공간일 것이다. 해가 넘어갈 때쯤 시작되는 가족들의 야외 바비큐 파티는 소통 1번지가 되어준다.

1-2.jpg


② 모던풍의 인테리어 마감. 거실은 큰 창을 통해 외부의 공간을 시원한 느낌으로 바라본다. 아트월 공간은 그레이 톤으로 마감하고 나머지 천장과 벽은 화이트로 통일해 깨끗함을 넘어 정갈한 느낌을 받게 한다.

2-1.jpg

보기만 해도 시원한 느낌의 거실 창. 3중 시스템창호 적용으로 겨울에도 난방비에 대한 걱정이 없다.

2-2.jpg

주방과의 공간은 가벽과 문을 설치해 시각은 오픈되게 하되 공간적으로는 분리되게 설계하였다.

2-3.jpg

거실 안쪽은 조금 더 뒤쪽으로 집어넣어 거실 공간이 더 넓어 보이는 효과를 주었다. 거실 벽 뒤로는 계단실이 구성되어 있다.

2-4.jpg


③ 일자형 싱크대의 선택. 보통 아일랜드 형의 'ㄷ'자 싱크대 배치를 많이 하는데 동선적으로 불편함이 있을 것 같아 과감하게 일자형으로 선택 배치했다. 거실에서도 바로 앞마당으로 나갈 수 있는 동선을 만들어 놓았으며, 큰 창 역시 3중 시스템창호 적용으로 단열적인 부분을 강화해 주었다.

3-1.jpg

하이그로시로 마감된 깔끔한 느낌의 주방. 식탁 포인트 등을 제외한 나머지 등은 모두 매립등으로 진행해 유지관리가 편하도록 했다.

3-2.jpg


④ 주방에서 이어지는 다용도실 공간. 무늬목이 들어간 포켓도어가 인상적으로 느껴진다.

4-1.jpg

세탁기와 보조 수납장이 들어가는 다용도실 공간. 없으면 매우 불편하므로 가급적이면 다용도실 공간을 별도로 만들어 주는 것이 좋다.

4-2.jpg


⑤ 방은 최대한 환하고 밝게. 언제 들어와도 따스한 햇볕이 나를 반겨줄 수 있는 공간이다.

5-1.jpg

붙박이장을 설치해 수납에 대한 걱정을 덜었다. 전원주택에 있어 수납공간 확보는 필수이다.

5-2.jpg

방과 연결된 화장실. 화장실은 무게감 있게 크레이 톤으로 마감하되 질감이 느껴지는 돌을 사용해 고급스러움을 더했다.

5-3.jpg


⑥ 통통 튀는 듯한 느낌의 벽지를 선택했다. 아이의 동심을 자극해 주는 조명은 이 방이 아이의 방이라는 것을 인식시켜준다.

6-1.jpg

아이의 옷을 넣을 수 있는 옷장. 슬라이딩 옷장은 아이가 스스로 옷을 걸로 넣을 수 있도록 하는 교육의 공간이기도 하다.

6-2.jpg


⑦ 아들의 방은 하늘색으로 마감. 통일성을 주기 위해 포인트 벽지의 디자인은 통일했다. 창이 날 수 있는 공간에는 조망창과 오픈될 수 있는 창을 설치해 답답하지 않은 공간을 만들어 냈다. 딸의 방에는 달이 들어간 조명을, 아들 방에는 별이 들어간 조명을 설치해 아이들이 장난감처럼 매우 좋아한다.

7-1.jpg

붙박이장 위에 보조등을 하나 더 설치했다. 은은하게 빛나는 조명이 방의 분위기를 더욱 깊게 만든다.

7-2.jpg


⑧ 2층에 다목적으로 활용 가능한 공간을 하나 더 만들어 주었다. 피아노를 칠 수도 있으며, 취미공간으로 활용 가능한 공간이다.

8.jpg


⑨ 돌의 질감이 느껴지는 타일 마감으로 마치 호텔에 와 있는 듯한 느낌을 받는다. 화장실에도 창호를 설치해 자연 환기를 할 수 있도록 하였으며, 바닥에는 보일러 배관을 설치해 눅눅하지 않은 뽀송뽀송한 화장실을 만들어 주었다.

9-1.jpg
9-2.jpg


⑩ 2층은 아이들이 좋아할 만한 인테리어로 화장실을 꾸몄다. 강렬한 색보다는 파스텔 아이보리색과 화이트 색깔을 모자이크 시공해 놀이공원에 와 있는 듯한 느낌을 받을 수 있도록 했다.

10-1.jpg
10-2.jpg


⑪ 현관을 들어오면 바로 보이는 세면대 공간이다. 모던한 느낌의 세면 도기를 사용하고 큰 거울을 설치해 트렌디한 느낌을 완성시켰다.

11.jpg


⑫ 계단실 측면에는 간단한 책 등과 조형물을 올려놓을 수 있도록 선반을 구성했다. 계단은 멀바우 재질의 계단재를 사용해 고급스러움과 정갈함을 한 번에 느낄 수 있다.

12.jpg


⑬ 넓은 테라스 공간. 테라스 바닥도 강마루 마감을 해 얼마든지 실내공간으로서 자유롭게 활용할 수 있다.

13-1.jpg

해외에 있는 주택을 보는 듯한 착각을 불러일으킨다.

13-2.jpg

3면이 모두 창으로 구성돼 개방감 및 오픈 감을 만끽할 수 있는 공간이다.

13-3.jpg


⑭ 원목의 재질감이 느껴지는 3중 연동 중문이다. 나무가 주는 묵직한 느낌이 현관에서부터 느껴진다.

14.jpg


⑮ 전원주택만이 가질 수 있는 긴 복도 공간. 10미터가 넘는 공간이기 때문에 아이들이 마음껏 뛰놀면서 뒹굴 수 있는 공간이다.

15.jpg


■ 프로젝트를 마치며,

프로젝트를 진행하고 총괄할 때마다 많은 것을 배우고 느낀다. 혹 집에 자녀들이 있는가? 그렇다면 집을 설계할 때 자녀의 의견도 한 번쯤 물어보는 것이 좋다. 집은 항상 어른들의 시각에서 시작하고 마무리된다. 하지만 아이들이 꼭 필요한 공간은 아이들 스스로가 더 잘 알고 있다.

이번 주택에서는 긴 복도 및 2층의 발코니 등의 공간이 아이들의 아이디어에서 탄생했다. 똑같은 느낌의 집이 아닌 새로운 공간을 만들고 싶다면 너무 고정관념을 가질 필요 없이 아이들의 눈에서 설계를 해 보는 것도 나쁘지 않은 방법일 것이다.


0.설계투시도.jpg 설계투시도

(좌측부터) 정다운 건축가, 임성재 건축가, 이동혁 건축가

[집이라는 본질적인 가치에 집중하다.]

Architecture Team : 홈트리오(주)

대표번호 : 1522-4279

위치 : 경기도 성남시 분당구 운중로 141, 경창 빌딩 602호 홈트리오(주)

홈페이지 : http://hometrio.kr/

설계 사례(홈페이지) : http://hometrio.kr/designcase/


글쓴이 : 이동혁 건축가

이메일 : sunsutu@hanmail.net

책 : '따뜻한 전원주택을 꿈꾸다' 저자(http://www.yes24.com/24/goods/40516450?scode=029)

이동혁 건축가 TV : http://tv.naver.com/sunsutu1


상담 및 자문[HOMETRIO 건축가]

이동혁 건축가 : 010-4567-8413

정다운 건축가 : 010-8560-0477

임성재 건축가 : 010-9941-8899




[네이버 TV - 이동혁 건축가 TV]

*글 읽기가 어렵나요? 그럼 이제부터는 영상으로 확인하세요.^^


1. 내 집 짓기의 시작-인트로 : http://tv.naver.com/v/1429784

2. 전원주택 짓기 1차 강연 영상 : http://tv.naver.com/v/1431765

3. 성공의 정석 '꾼' 이동혁 대표 : http://tv.naver.com/v/1434375

4. 전원주택 공법. 무엇으로 지으면 좋을까요? : http://tv.naver.com/v/1436122

5. 전원주택 짓기. 예산 잡는 법! : http://tv.naver.com/v/1446575

6. 전원주택. 왜 품질에 대해 말이 많을까? : http://tv.naver.com/v/1451485

7. 내 집짓기. 언제부터 준비해야 할까요? : http://tv.naver.com/v/1473650

8. 내 땅에 몇 평까지 집을 지을 수 있나요? : http://tv.naver.com/v/1473658

9. 전원주택 지방은 공사비가 더 비싸나요? : http://tv.naver.com/v/1479534

10. 전원주택 AS는 어떻게 진행되고 몇 년까지 보증되나요? : http://tv.naver.com/v/1479537

11. 전원주택 단층과 2층으로 지을 때 비용 차이가 많이 있나요? : http://tv.naver.com/v/1479547

12. 전원주택 성토한 땅에 바로 시공할 수 있나요? : http://tv.naver.com/v/1479558

13. 강화도 이강리 전원주택. 오픈하우스 현장 : http://tv.naver.com/v/1497662

14. 전원주택에 스타코플렉스를 왜 사용하나요? : http://tv.naver.com/v/1599468

15. 전원주택 데크에 대해 알려주세요. : http://tv.naver.com/v/1599480

16. 집짓기 착공 전 준비사항은 어떻게 되나요? : http://tv.naver.com/v/1599505

17. 목조주택에서 가장 많이 나는 하자와 그 빈도는? : http://tv.naver.com/v/1672388

18. 조영구 트렌드 핫이슈. 전원주택 쇼핑몰 : http://tv.naver.com/v/1682435

19. 전원주택 계약 시 속지 않기 위한 방법은? : http://tv.naver.com/v/1684870

20. 전원주택 추가 공사 왜 공사 전에 미리 말하지 않나요? : http://tv.naver.com/v/1688493

21. 강화마루, 강마루, 장판 무엇이 좋나요? : http://tv.naver.com/v/1692136

22. 목조 공법으로도 3층 이상으로 높게 지을 수 있나요? : http://tv.naver.com/v/1698287

23. 목조주택 2층에 시멘트 방통 시공. 목조에 부담을 주지 않나요? : http://tv.naver.com/v/1701955

24. 전원주택 바닥 방통 없이 난방을 할 수 있는 방법이 있나요? : http://tv.naver.com/v/1728947

25. 2억 4천만 원. 경기 광주 전원주택을 소개합니다. : http://tv.naver.com/v/1732431

26. 전원주택. 철근콘크리트가 목조보다 더 튼튼할 텐데도 목조로 집을 짓는 이유가 있나요? : http://tv.naver.com/v/1735979

27. 내 땅에 흙을 마음대로 받아도 되나요? : http://tv.naver.com/v/1739333

28. 지진이 늘어나는데 중목이 아닌 경량 목구조는 약하지 않나요? : http://tv.naver.com/v/1743684

29. 땅이 낮아 성토하고 싶어요. 절차가 어떻게 되나요? : http://tv.naver.com/v/1746299

30. 전원주택. 여름 공사와 겨울 공사 단점은 어떤 게 있을까요? : http://tv.naver.com/v/1759345

31. 전원주택 회사. 정말 안전한 업체인지 확인하고 싶어요. : http://tv.naver.com/v/1766577

32. 목조주택이 몸에 좋다는데 어차피 본드나 벽지도 바르지 않나요? : http://tv.naver.com/v/1817543

33. 전원주택 브랜드 업체들의 이윤이 너무 높지 않나요? : http://tv.naver.com/v/1834510

34. 전원주택 땅을 살려는데 종류가 너무 많아요. 혹시 집을 지을 수 없는 땅도 있나요? : http://tv.naver.com/v/1862326

35. 사람들이 목조주택을 짓게 되는 계기가 있을까요? : http://tv.naver.com/v/1866671

36. 건설업체가 안전한 업체인지 알아보는 법! : http://tv.naver.com/v/1918266

37. 미국식 창호와 독일식 창호의 차이 : http://tv.naver.com/v/1934487

38. 하자이행보증증권에 대해 알아보자 : http://tv.naver.com/v/2011225

39. 제주도에 집 지을 때 주의해야 할 점 : http://tv.naver.com/v/2011251

40. 월간 홈트리오 4월호-NEW 농가주택 표준설계도 : https://www.youtube.com/watch?v=WwZjpLNUiwI&t=273s

41. 월간 홈트리오 4월호②-꿈꾸던 다락방을 갖다 : https://www.youtube.com/watch?v=r1fyjlp4N5Q&t=129s

42. 조립식 소형 전원주택. [kasita]에 대해 알아보자! : https://tv.naver.com/v/3440492

43. 전원주택. 월간 홈트리오 5월호 - 도심형 단독주택을 짓다. : https://tv.naver.com/v/3441024

44. 전원주택에서 비가 오기 전 가장 먼저 확인해야 할 사항 : https://tv.naver.com/v/3506313

45. 전원주택 지으려고 하는데 어디에 물어봐야 할까요? : https://tv.naver.com/v/3571540

46. 전원주택 아스팔트슁글 괜찮나요? : https://tv.naver.com/v/3571580

47. 전원주택 세라믹사이딩 어떤 자재인가요? : https://tv.naver.com/v/3571616



keyword