brunch

12. C.../12.12 포치의 매력 'MAYTREE

12.12 포치의 매력 'MAYTREE'(68평)

by 이동혁 건축가

순서대로 읽다 보면 완성되는 나의 집

꿈꾸던 전원주택을 짓다

글쓴이 : 이동혁


12. CASE STUDY(사례 검토 편)


12.12 포치의 매력 'MAYTREE'(68평)


"옛날처럼 대가족이 모여사는 꿈을 꾸었다. 할머니, 할아버지, 그리고 우리 부부. 마지막으로 사랑스러운 우리 아들, 딸들. "


아이들의 정서에는 무엇이 좋을까? 삭막한 아파트보다는 가족들끼리 살을 비비며 사는 그런 집이 내 마음속에 항상 꿈으로 자리 잡고 있었다. 할머니, 할아버지를 부르며 재롱떠는 아이들. 그 속에서 피어나는 웃음꽃. 항상 웃음이 끊이질 않는 그런 집이고 싶다.


HOUSE PLAN

연면적 : 227.50㎡

1층 : 118.41㎡

2층 : 109.09㎡

규모 : 지상 2층

예상 총 건축비 : 380,000,000원(부가세 포함)

설계비 및 인허가비 : 17,000,000(부가세 포함)


SPEC

공법 : 기초-철근콘크리트 / 1층-RC, 2층-경량 목구조

지붕마감재 : 아스팔트 슁글

외벽 마감재 : 스타코플렉스

외벽 포인트 자재 : 파벽돌, 리얼징크, 적삼목 사이딩

실내 벽 마감재 : 실크벽지

실내 바닥마감재 : 강마루

창호재 : 융기 3중 시스템창호

단열재 : 외부벽체(Glasswool Insulation R21HD-15" 나 등급)

: 내부 벽체(Glasswool Insulation R19-15" 다등급)

: 천장(Glasswool Insulation R30-15" 다등급)

: 지붕(Glasswool Insulation R37-23" 가등급)


■ PROJECT STORY

인천 서구의 도심형 전원주택 단지의 대지에서 진행된 대가족 프로젝트이다. 총 3세대가 거주 가능한 공간으로 설계를 진행하였으며, 한정된 예산안에서 원하는 모든 요소들을 집약시켜야 하는 생각보다 어려운 프로젝트로 시작이 되었다.

68평이라는 규모가 있는 면적으로 최종 정해졌다. 처음에는 60평으로 시작되었지만 1층의 포치 공간을 생각보다 많이 잡으면서 최종 68평이라는 공간으로 건축면적이 정해졌다.

항상 웃음이 끊이지 않는 집. 건축주가 나에게 요청한 것은 그것 하나였다. 솔직히 본인도 어릴 적 할머니, 할아버지와 함께 지낸 기억이 있어서인지 이번 프로젝트를 진행하면서 어릴 적 추억을 되돌아보게 되는 계기가 되었다.


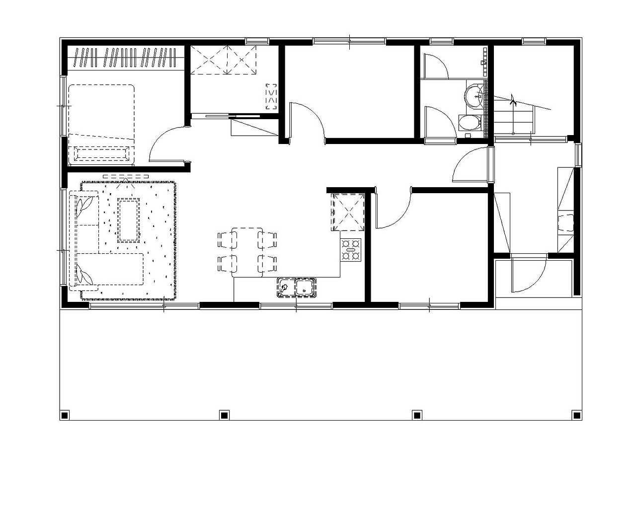
0.1층 평면도.jpg 1층 평면도

거실과 주방, 그리고 방 3개. 4인 가족이 생활하기에 최적의 평면으로 구성했다. 여기에 포치라는 공간을 더해 전원주택이라는 특별한 요소를 만끽할 수 있도록 하였다.

0.2층 평면도.jpg 2층 평면도

답답함을 싫어하는 부모님을 위해 주방과 거실을 일자로 오픈시켜 버렸다. 10미터가 넘는 대 공간이 구성되었다고 생각하면 된다. 방은 두 개만 구성하되, 드레스룸을 별도로 구성해 다양한 집기들을 수납할 수 있도록 하였다.


① 현대적인 모던 스타일의 외관. 스타코플렉스 베이스에 리얼징크와 적삼목 사이딩을 포인트로 주어 단조로움을 피하고 젊은 느낌의 매스를 구성했다.

1.외관.jpg

포치와 자연스럽게 대문을 연계시켜, 마치 유럽의 궁전에 들어가는 느낌이 든다.

1-2.jpg

푸른 하늘과 잘 어울리는 주택이다. 인천에서 이미 가장 많이 구경 오는 집 중의 하나가 되었다.

1-3.jpg


② 1층 거실은 아기자기한 소품과 함께한다. 건축주의 취향이 듬뿍 담겨 있는 공간으로 큰 창을 통해 앞마당의 자연과 자연스럽게 호흡할 수 있게 설계했다.

2-1.jpg

소파가 앉혀지게 되면 콘센트가 가려질 염려가 있기 때문에 가구 배치를 고려해 콘센트는 소파 위쪽으로 배치해 설치했다. 이러한 작은 배려들이 나만의 전원주택을 짓는 매력이지 않을까 생각한다.

2-2.jpg


③ 2층 거실 공간이다. 블랙&화이트의 인테리어. 사선으로 뻗은 높은 천장으로 더욱 넓어 보이는 거실 공간을 가지게 되었다.

2-3.jpg

창을 전면부와 측면부에 크게 내었다. 특히 우측에는 외부 발코니로 나갈 수 있는 창으로 계획해 외부 동선과의 연계를 이끌어 낼 수 있도록 설계했다.

2-4.jpg


④ 실용성이 높은 'ㄷ'자형 싱크대를 적용하고 식탁을 아일랜드와 연계시켜 공강 활용성을 높였다. 식탁등을 포인트로 주되, 나머지 등들은 매립시켜 군더더기 없는 인테리어 마감을 완성시켰다. 매립등은 먼지가 내려앉지 않는 장점이 있어 유지관리 측면에서 매우 탁월하다.

3-1.jpg
3-2.jpg


⑤ 높은 천장과 레일등이 인상적인 주방 공간이다. 원목 테이블과 화이트 하이그로시로 마감된 주방으로 깨끗함과 청결함이 절로 느껴지는 공간이라 할 수 있다. 거실과 오픈되어 있어 답답하지 않고 넓게 오픈된 개방감을 느낄 수 있다.

4-1.jpg
4-2.jpg
4-3.jpg


⑥ 2층 테라스에는 폴딩도어를 설치해 단열성과 개방성을 모두 잡았다. 테라스를 사용하지 않았을 때는 닫아놓아 단열성을 확보하고, 여름철 사용이 잦을 때는 오픈하여 거실과 연동되게 사용한다.

5.jpg


⑦ 아이방은 하늘색 벽지 적용과 높은 천장으로 친구들에게 자랑할만한 공간으로 구성해 주었다. 건축주가 별도로 주문한 2층 침대는 방의 분위기를 더욱 이색적인 공간으로 느껴지게 만들었다.

6.jpg


⑧ 원목 느낌의 붙박이장과 화장대를 별도의 공간에 배치했다. 이 공간은 다목적으로 활용될 수 있게 설계하였으며, 추후 서재 및 취미공간으로도 변경이 가능하다.

7.jpg


⑨ 거실과 주방을 최대의 면적으로 뽑기 위해 방은 정말 잠을 위한 공간만으로 구성했다. 붙박이장과 침대 만을 둘 수 있는 공간으로 설계했다.

8.jpg


⑩ 아이들이 가장 좋아하는 공간인 다락 공간이다. 어른들이 생활하기에는 다소 낮은 감이 있지만 아이들 놀이공간으로는 최적이라 할 수 있다.

9.jpg
9-1.jpg


⑪ 엔틱 한 느낌의 가구와 만난 현대적인 인테리어. 이 집에서는 화장실이 총 3개이다. 모두 동일한 인테리어가 아닌 각자 취향에 맞춰 화장실 인테리어가 진행되었다. 3군데의 화장실 중 1곳은 건식으로 이용하길 원하셔서 샤워부스를 설치 후 단차를 두어 거실과 같은 마감자재인 강마루로 화장실 바닥을 마감했다.

10.jpg


⑫ 화이트와 블랙, 거기에 나무의 조화. 계단실은 가급적 밝은 느낌으로 인테리어 하는 것이 좋다. 이번 주택은 계단실 난간을 별도로 설치하는 것이 아닌 설계 당시부터 벽과 골조만으로 계단실을 구성하기로 협의했다. 기존 주택과는 색다른 느낌의 계단실이 탄생했다.

11.jpg


⑬ 아기자기한 조형물들. 이러한 소소한 소품들이 전원주택이라는 존재의 감성을 자극시켜준다.

12.jpg


⑭ 앞마당에는 이미 많은 식물들과 화분들이 배치되어 있다. 이 중에는 아이들이 직접 키우는 채소들도 포함되어 있다.

혀관은 자연적인 느낌으로 연계될 수 있도록 적삼목을 이용하여 마감하였다. 단조로움을 피하기 위해 바닥은 타일 마감으로 진행하였으며, 천정은 검은색의 페인트를 칠해 바닥, 벽, 천정이 모두 다른 느낌의 자재로 마감된 것처럼 느껴지게 했다.

13.jpg


■ 프로젝트를 마치며,

1층과 2층으로 동선을 구분해 완벽히 분리되는 집을 만들어 내었다. 1층은 부부와 자녀들의 공간으로 구성하였고, 2층은 부모님 세대를 중심으로 구성하였다. 추후 세를 줄 수 있을 정도로 공간을 구분해 수익적인 면도 고려해 설계를 진행했다.

이 집의 가장 큰 매력은 1층 포치 공간일 것이다. 이 공간이 생각보다 많은 비용이 들어가기 때문에 일반적으로 포치를 많이 구성하지 않는데 비가 오거나 눈이 오거나 할 때 이 공간의 매력은 빛을 발휘하게 된다.

봄비가 내리는 어느 날. 아이들을 학교 보내고 혼자 포치 안 의자에 앉아 커피를 여유 있게 마시는 상상. 전원주택을 짓고 생활할 때 이 정도의 힐링은 즐겨야 하지 않겠는가.

이번 프로젝트의 총예산은 5억이었다. 모든 예산을 꽉 채우면서 진행하지 않고 4억 선에서 어떻게든 건축을 끝내고 나머지 비용을 최대한 아끼면서 가고자 하였다.

결과적으로 4억 미만의 건축비로 집이 완공되었고 추가 대출금 없이 안전하게 집을 마무리할 수 있게 되었다.

행복하다. 이렇게 보고만 있어도 웃음이 나는 집을 완공시키면 그동안 힘들었던 기억들이 다 사라진다.


0.설계투시도.jpg


keyword