13.2 부수입은 필수-수익형 주택의 탄생

13.2 부수입은 필수-수익+주거의 탄생

by 이동혁 건축가

순서대로 읽다 보면 완성되는 나의 집

꿈꾸던 전원주택을 짓다

글쓴이 : 이동혁


13. 2018~2022년 향후 5년 전원주택 트렌드 내다보기


13.2 부수입은 필수-수익+주거의 탄생


"여러분들은 전원주택을 짓는 사람들의 연령층이 어느 정도 될 것이라 생각하는가요?"

간혹 상담 중에 필자가 무거운 분위기 전환을 위해 건축주에게 위와 같은 질문을 던진다. 대부분 은퇴하는 연령층인 55~60대를 많이 대답하신다. 그런데 최근에 필자를 찾아오는 예비 건축주의 연령층을 살펴보면 의외로 30대 중반에서 40대 초의 분들이 많이 찾아오신다. 다시 말해 노후를 즐기기 위해서 가는 것이 아닌 자녀들과 땅을 밟으며 생활하기 위해서 가는 분들이 많아졌다는 것이다.


물론 이에는 여러 가지 이유들이 존재할 것이다. 자녀들이 자연과 벗 삼으면서 공부가 아닌 또 다른 정신적 건장을 가져가고자 하는 분들이 있을 수도 있으며, 피부가 약해 건강적인 부분을 챙기기 위해 전원주택으로 이동하는 분들도 계실 것이다.


이렇게 집을 지어 이동하는 연령층이 낮아지다 보니 이에 따른 집의 형태도 변화하기 시작했다. 특히 제주도로 이주하는 분들이 생각보다 많은데 필자에게 설계 상담을 받으러 오시는 대부분의 분들이 아래와 같은 고민을 한다.


"서울의 생활을 정리하고 4 식구가 제주도에 가서 정착을 해 볼까 합니다. 땅은 마련해 놓은 상황인데 집을 어떻게 지어야 할지 고민이에요."

"평생 살아오신 터전을 옮긴다고 하니 많이 힘드시죠. 고민되는 부분을 말해주세요. 제가 도와드릴 부분은 최선을 다해 도와드리겠습니다."

"제주도에 아시는 분이 있어 일단 그쪽에서 일을 도와가며 생활을 하기로 했어요. 근데 무언가 안정적으로 부수입을 얻을 수 있었으면 하는데요. 제 생각에는 1층에 카페나 음식점을 같이 해보고 싶어요."

"요즘 제주도가 건축을 하는데 제약을 많이 걸어놓은 상황이에요. 잠깐만요. 건축주님의 땅에서 카페나 음식점을 할 수 있는지부터 법규 검토해 드릴게요."

"아! 모든 땅에서 카페를 할 수 있는 것이 아니었군요."

"그렇죠. 땅마다 걸려있는 조례가 달라요. 요즘 제주도가 난개발이 이루어지다 보니 제주도 자체에서 많은 제약을 걸어놓은 상황이에요. 특히 카페나 음식점들을 강하게 규제하고 있어 꼭 사전에 이것을 지을 수 있는지 없는지 따져봐야 돼요."

"음, 다행이네요. 건축주님 땅은 카페가 가능해요. 안될까 봐 걱정했는데 정말 다행이에요."


돈이 많다면야 전원주택을 짓고 정말 하고 싶은 일을 하면서 살면 좋겠지만 여러분들도 아시겠지만 우리들은 부자가 아니다. 단순히 집을 짓는데 모든 돈을 쏟아붓고 농사만 하면서 살 수는 없다. 그래서 부수입을 얻을 수 있는 무언가가 필요하다.


최근 1~2년 사이에 정말 많은 상가+주거 문의가 끊이질 않고 있다. 필자가 예견하건대 앞으로 전원주택 시장은 이렇게 부수입을 얻을 수 있는 상가+주거 시장이 지속적으로 성장할 것이다. 도심지에서만 짓는다고 생각했던 인식이 점차 확장되어 전원생활에서의 집도 상가와 주거가 결합된 모습으로 발전되고 있는 것이다.


향후 5년 전원주택 트렌드의 두 번째 제안은 바로 수익+주거의 탄생이다. 집을 지을 때 필요한 예산을 상가 부분으로 돌렸으니 남은 비용이 넉넉할 리 만무하다. 그래서 다음과 같이 설계 제안을 해 보고자 한다.


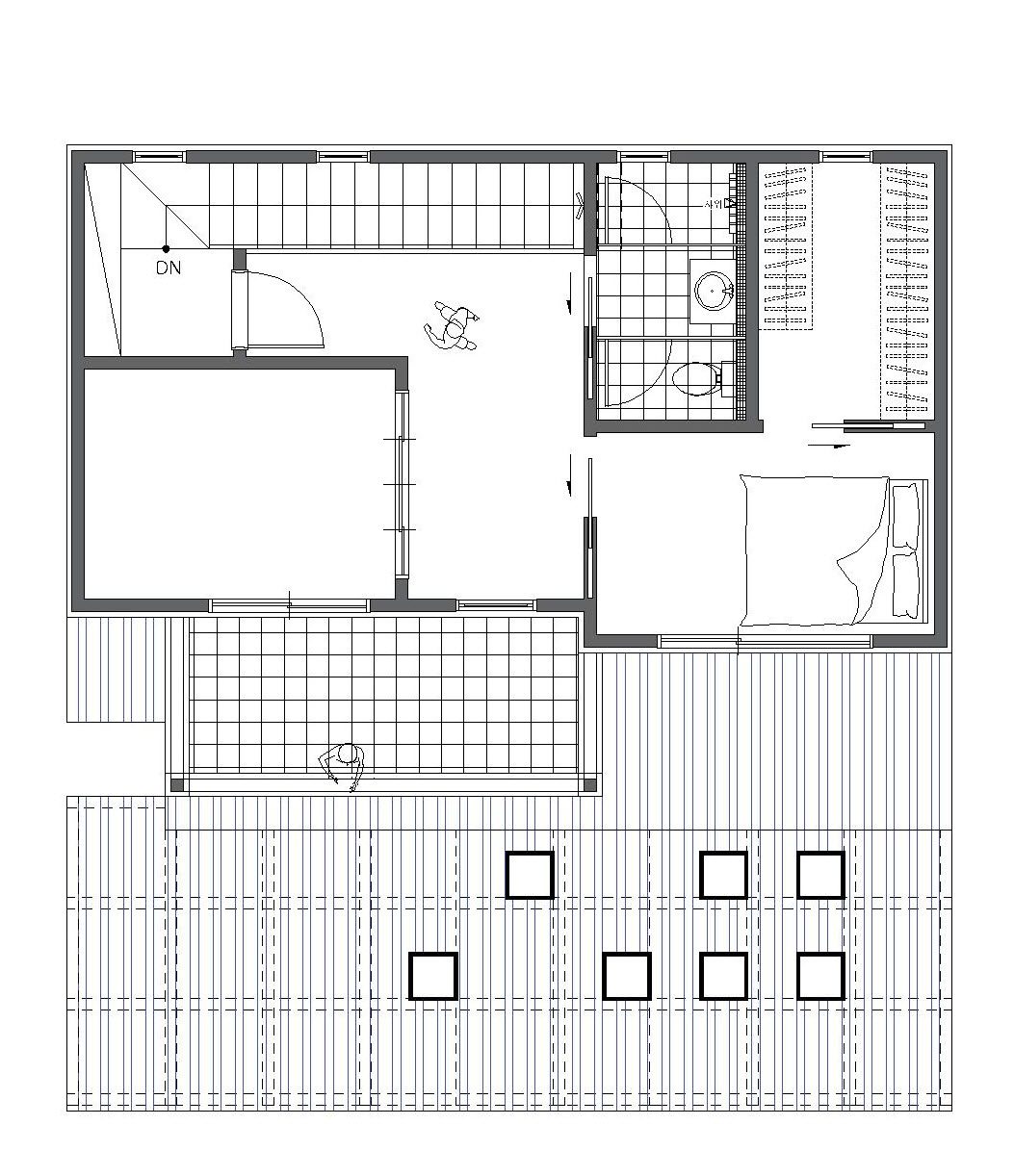
사본 -1층.jpg 1층 평면도


이번 트렌드 제안을 할 때 생각보다 많은 고민을 하게 됐다. 예산을 무작정 많이 잡을 수는 없고 무언가는 빼고 가야 할 것 같은데, 생활은 해야 하니 모든 요소들이 필요는 하고... 정말 어떻게 방향을 잡아야 할지 모르겠다.


고민 고민 끝에 주방 공간을 주생활 공간과 상가 공간에 하나로 합치기로 했다. 주방 공간만 줄어들더라도 훨씬 많은 면적을 방으로 가져갈 수 있기 때문이다. 꼭 각 층에 분리될 필요 없다고 생각했다. 식사를 할 때는 1층 상가 부분으로 내려와하면 되지 않을까라는 단순한 생각으로 접근했다.


화장실은 소변기를 없애고 변기만을 배치하여 최소한의 공간의 남, 녀 화장실을 구성했고 세면대를 밖으로 빼내어 공간적 손실을 최소화할 수 있도록 하였다. 실질적으로 주방 공간과 화장실 공간을 제외하고는 모든 공간을 상가 공간으로 구성한 것이었다.


그래도 조금은 작다는 느낌이 들었다. 그렇다고 무작정 공간을 확장할 수 없었기 때문에 폴딩도어를 설치하고 외부에 지붕이 덮인 포치 공간을 상가 공간만큼 만들었다. 거의 절반 가격에 내부의 상가 공간과 같은 면적의 공간을 얻은 것이다. 겨울에는 힘들겠지만 선선한 봄과 가을에는 외부에 테이블을 놓고 얼마든지 손님을 받을 수 있는 공간으로 변모할 것이다.

사본-2층.jpg 2층 평면도

2층에 대한 고민이 많았다. 트렌드 제안이라고 했는데 전혀 트렌디하지 못하다면 이번 기획은 실패한 것이기 때문이다. 2층은 자녀방과 안방을 기본으로 배치하되 홀의 개념을 조금 넓게 계획하였다. 이렇게 조금의 여유공간을 만들어줌으로써 세 가족이 잠깐이나마 앉아서 차를 마실 수 있는 공간을 만들고 싶었다.


수납공간이 적기 때문에 드레스룸을 작은방 면적만큼 배치해 온갖 짐들과 옷을 수납할 수 있게 하였고 방은 항상 깔끔한 느낌으로 정돈될 수 있도록 하였다.


2층의 지붕형 발코니를 넣어주었는데 아무래도 1층은 프라이버시적인 공간보다는 외부인들이 많이 움직이는 공간이다 보니 답답할 때 잠깐이라도 밖으로 나와 바람을 쐴 수 있는 공간이 있었으면 좋겠다는 생각이 들었다.

입면 전체.jpg

이번 설계 제안의 디자인을 보면 지붕을 제외하고는 거의 포인트가 없다. 이유는 단순하다. 외장재에 무언가를 붙이는 순간 모든 것이 추가 비용이다. 추가비를 최소화하고 싶었다.


대신 지붕에 대해서는 추후 누수와 관련된 문제가 발생할 수도 있기 때문에 남아있는 포인트 비용을 지붕에 모두 쏟아부었다.

투시 1.jpg

지붕의 징크와 전면부의 포치 공간만으로도 이미 이 주택은 볼륨감이 살아 숨 쉰다. 여러분들도 포인트에 대한 생각을 깊게 고민해 보아야 한다. 무조건 비싸고 좋은 자재들을 붙인다고 해서 집의 값어치가 올라가는 것이 아니다. 포인트의 기본적 해석은 분명 전체 중의 일부분을 강조하고 싶을 때 사용하는 단어이다.


그렇다. 포인트는 말 그대로 포인트가 돼 주어야 하고 가장 강력하게 보여주고 싶은 한 부분에 그 포인트를 적용해야 빛이 나는 것이다.

투시 2.jpg

너무 단조롭다고 생각할 수도 있다. 하지만 여러분들은 사치성 별장을 짓는 것이 아니다. 최소한의 금액을 들여 최대한의 효과를 거둘 수 있는 설계를 진행해야지만 한다.


트렌드 제안으로서 설계안을 도출했는데 지금 설명하고 있는 주택의 모델이 무조건 정답이라기보다는 이러한 주택이 이번 주제의 기본이 되는 형태라고 생각해주면 좋을 것 같다.


건축설계에서는 '정답'이란 존재하지 않는다. 고민하면 고민할수록 더 좋은 안이 나오는 분야가 바로 건축설계 분야이다. 여러분들은 지금 제안드린 안을 기준으로 더 멋지고 트렌디한 주택을 만들어냈으면 한다.

투시 3.jpg

마지막으로 상가 계획을 주거와 함께 할 때는 꼭 목표점이 정확해야 한다. 단순히 차를 파는 공간을 만들지 아니면 음식도 같이 파는 공간을 만들지 말이다. 많은 분들이 집을 짓고 힘들어하는 것이 처음부터 어떠한 상업행위를 할지 고민하지 않았다는 것이다.


공간만 만들어 놓으면 추후에 무언가 아무거라 할 수 있겠지라고 생각하는데 절대 아니다.


각 상업공간별로 동선과 가구 배치가 완전히 틀리다. 또한 일반적인 느낌이 아닌 나만이 가지는 독특한 인테리어를 원한다면 더더욱 목표점을 명확해야 한다.


여러분들을 꼭 기억해야 한다. 수익+주거 형태의 주택이 향후 전원주택 시장에서 많이 활성화가 될 텐데 그중에서도 내 집만이 가지는 독특한 장점 한 가지 정도는 들고 가야 한다는 것을 말이다.

문경 김영조 주택.jpg

(좌측부터) 정다운 건축가, 임성재 건축가, 이동혁 건축가

[집이라는 본질적인 가치에 집중하다.]

Architecture Team : 홈트리오(주)

대표번호 : 1522-4279

위치 : 경기도 성남시 분당구 운중로 141, 경창 빌딩 602호 홈트리오(주)

홈페이지 : http://hometrio.kr/

설계 사례(홈페이지) : http://hometrio.kr/designcase/


글쓴이 : 이동혁 건축가

이메일 : sunsutu@hanmail.net

책 : '따뜻한 전원주택을 꿈꾸다' 저자(http://www.yes24.com/24/goods/40516450?scode=029)

이동혁 건축가 TV : http://tv.naver.com/sunsutu1


상담 및 자문[HOMETRIO 건축가]

이동혁 건축가 : 010-4567-8413

정다운 건축가 : 010-8560-0477

임성재 건축가 : 010-9941-8899




[네이버 TV - 이동혁 건축가 TV]

*글 읽기가 어렵나요? 그럼 이제부터는 영상으로 확인하세요.^^


1. 내 집 짓기의 시작-인트로 : http://tv.naver.com/v/1429784

2. 전원주택 짓기 1차 강연 영상 : http://tv.naver.com/v/1431765

3. 성공의 정석 '꾼' 이동혁 대표 : http://tv.naver.com/v/1434375

4. 전원주택 공법. 무엇으로 지으면 좋을까요? : http://tv.naver.com/v/1436122

5. 전원주택 짓기. 예산 잡는 법! : http://tv.naver.com/v/1446575

6. 전원주택. 왜 품질에 대해 말이 많을까? : http://tv.naver.com/v/1451485

7. 내 집짓기. 언제부터 준비해야 할까요? : http://tv.naver.com/v/1473650

8. 내 땅에 몇 평까지 집을 지을 수 있나요? : http://tv.naver.com/v/1473658

9. 전원주택 지방은 공사비가 더 비싸나요? : http://tv.naver.com/v/1479534

10. 전원주택 AS는 어떻게 진행되고 몇 년까지 보증되나요? : http://tv.naver.com/v/1479537

11. 전원주택 단층과 2층으로 지을 때 비용 차이가 많이 있나요? : http://tv.naver.com/v/1479547

12. 전원주택 성토한 땅에 바로 시공할 수 있나요? : http://tv.naver.com/v/1479558

13. 강화도 이강리 전원주택. 오픈하우스 현장 : http://tv.naver.com/v/1497662

14. 전원주택에 스타코플렉스를 왜 사용하나요? : http://tv.naver.com/v/1599468

15. 전원주택 데크에 대해 알려주세요. : http://tv.naver.com/v/1599480

16. 집짓기 착공 전 준비사항은 어떻게 되나요? : http://tv.naver.com/v/1599505

17. 목조주택에서 가장 많이 나는 하자와 그 빈도는? : http://tv.naver.com/v/1672388

18. 조영구 트렌드 핫이슈. 전원주택 쇼핑몰 : http://tv.naver.com/v/1682435

19. 전원주택 계약 시 속지 않기 위한 방법은? : http://tv.naver.com/v/1684870

20. 전원주택 추가 공사 왜 공사 전에 미리 말하지 않나요? : http://tv.naver.com/v/1688493

21. 강화마루, 강마루, 장판 무엇이 좋나요? : http://tv.naver.com/v/1692136

22. 목조 공법으로도 3층 이상으로 높게 지을 수 있나요? : http://tv.naver.com/v/1698287

23. 목조주택 2층에 시멘트 방통 시공. 목조에 부담을 주지 않나요? : http://tv.naver.com/v/1701955

24. 전원주택 바닥 방통 없이 난방을 할 수 있는 방법이 있나요? : http://tv.naver.com/v/1728947

25. 2억 4천만 원. 경기 광주 전원주택을 소개합니다. : http://tv.naver.com/v/1732431

26. 전원주택. 철근콘크리트가 목조보다 더 튼튼할 텐데도 목조로 집을 짓는 이유가 있나요? : http://tv.naver.com/v/1735979

27. 내 땅에 흙을 마음대로 받아도 되나요? : http://tv.naver.com/v/1739333

28. 지진이 늘어나는데 중목이 아닌 경량 목구조는 약하지 않나요? : http://tv.naver.com/v/1743684

29. 땅이 낮아 성토하고 싶어요. 절차가 어떻게 되나요? : http://tv.naver.com/v/1746299

30. 전원주택. 여름 공사와 겨울 공사 단점은 어떤 게 있을까요? : http://tv.naver.com/v/1759345

31. 전원주택 회사. 정말 안전한 업체인지 확인하고 싶어요. : http://tv.naver.com/v/1766577

32. 목조주택이 몸에 좋다는데 어차피 본드나 벽지도 바르지 않나요? : http://tv.naver.com/v/1817543

33. 전원주택 브랜드 업체들의 이윤이 너무 높지 않나요? : http://tv.naver.com/v/1834510

34. 전원주택 땅을 살려는데 종류가 너무 많아요. 혹시 집을 지을 수 없는 땅도 있나요? : http://tv.naver.com/v/1862326

35. 사람들이 목조주택을 짓게 되는 계기가 있을까요? : http://tv.naver.com/v/1866671

36. 건설업체가 안전한 업체인지 알아보는 법! : http://tv.naver.com/v/1918266

37. 미국식 창호와 독일식 창호의 차이 : http://tv.naver.com/v/1934487

38. 하자이행보증증권에 대해 알아보자 : http://tv.naver.com/v/2011225

39. 제주도에 집 지을 때 주의해야 할 점 : http://tv.naver.com/v/2011251

40. 월간 홈트리오 4월호-NEW 농가주택 표준설계도 : https://www.youtube.com/watch?v=WwZjpLNUiwI&t=273s

41. 월간 홈트리오 4월호②-꿈꾸던 다락방을 갖다 : https://www.youtube.com/watch?v=r1fyjlp4N5Q&t=129s

42. 조립식 소형 전원주택. [kasita]에 대해 알아보자! : https://tv.naver.com/v/3440492

43. 전원주택. 월간 홈트리오 5월호 - 도심형 단독주택을 짓다. : https://tv.naver.com/v/3441024

44. 전원주택에서 비가 오기 전 가장 먼저 확인해야 할 사항 : https://tv.naver.com/v/3506313

45. 전원주택 지으려고 하는데 어디에 물어봐야 할까요? : https://tv.naver.com/v/3571540

46. 전원주택 아스팔트슁글 괜찮나요? : https://tv.naver.com/v/3571580

47. 전원주택 세라믹사이딩 어떤 자재인가요? : https://tv.naver.com/v/3571616



keyword