13. 2018~2022년 향후 5년 전원주택 트렌드

13.1 미니멀 라이프-30평 미만 주택의 시장 선도

by 이동혁 건축가

순서대로 읽다 보면 완성되는 나의 집

꿈꾸던 전원주택을 짓다

글쓴이 : 이동혁


13. 2018~2022년 향후 5년 전원주택 트렌드 내다보기


13.1 미니멀 라이프-30평 미만 주택의 시장 선도


'꿈꾸던 전원주택을 짓다'의 마지막 장인 향후 5년 전원주택 트렌드 내다보기까지 도달했다. 이 글을 읽고 있는 많은 예비건축주들은 "도대체 집 하나 짓는데 알아야 할 것이 왜 이렇게 많아."라고 걱정하시는 분들이 계실 것이다. 충분히 이해한다. 이 업을 하고 있는 필자도 매번 집을 지을 때마다 "집 짓는 게 왜 이렇게 힘들지."하고 투덜거릴 때가 많기 때문이다.


하지만 더 문제는 필자가 적은 글들은 집을 짓는 과정 중의 매우 일부분일 뿐이라는 것이다. 세세하게 파고들어가다 보면 더 심오하고 복잡한 내용들이 얽혀있다. 여러분들은 너무 깊게 빠지지 않아도 된다. 필자가 집어준 부분들만이라도 기억하고 완공 때까지 갈 수 있다면 최소한 비새는 집은 안 지을 가능성이 높다.


마지막 장을 매우 오랜 시간 고민했었다. 어떠한 내용을 다루어야 이 글의 마침표를 잘 찍을 수 있을까? 12장까지 6개월이라는 시간 동안 집필하면서 거의 막힘없이 써 내려갔던 것 같은데 13장에 와서는 거의 2개월 동안 글을 못쓰고 있었다.


오랜 시간 고민한 끝에 필자가 생각한 내용은 기존의 설계가 아닌 조금 독특하지만 향후 5년간 정말 많이 수요층이 증가할 만한 내용의 설계들을 이야기하는 것으로 생각을 마쳤다. 총 8개의 집 이야기를 진행할 것이며, 필자가 생각할 때 2018년부터 2022년 5년간 정말 많은 요청과 수요가 발생할 수 있는 주택 키워드를 꼽았다.


13장의 첫 번째의 키워드는 미니멀 라이프이다.


최근 2년간 진행된 프로젝트와 상담 요청된 내용을 분석해 보니 점점 집의 평수가 현저히 줄어드는 현상을 볼 수 있었다. 심지어 10평짜리 집을 지어달라는 요청도 있었다. 이는 한국이라는 나라의 라이프스타일이 미국이나 유럽처럼 선진화되고 있기 때문이라 생각한다.


집을 짓는다고 주변 사람들에게 알리면 백이면 백 "집 크게 짓지 마. 무조건 작게 지어."라고 조언을 한다. 문제는 이 작게라는 범위가 도대체 어느 정도인지 그 누구도 알려주지 않는다는 것에 있다.


사람들마다 살아온 인생이 다르다. 어떤 사람은 평생 50평 아파트에서만 산 사람이 있는가 반면, 어떤 사람은 10평짜리 원룸에서 평생 살아온 사람이 있다. 누가 맞다고 할 수 없다. 필자가 설계를 해 주고 집을 완공시켰을 때 가장 마음 아프게 들리는 말은 집이 왜 이렇게 작냐이다. 왜 미리 언질을 해 주지 않았냐고 따져 묻는 분들이 생각보다 많이 계신다. 설계할 당시 분명 조언을 드린다. 현재 살고 계신 아파트 기준으로 전원주택을 보시면 안 된다고 말이다. 그래도 주변에서 집 작게 지으라고 했다고 억지로 모든 공간을 끼워 맞추어 집을 공사한다.


평수라는 공간은 딱 정해져 있는 공간이다. 아무리 설계를 잘 한다고 해도 그 공간범위 밖으로 벗어날 수 없다. 필요로 하는 요소와 벽이 많으면 많을수록 그 안에서 잘라먹는 것이지 절대로 확장되어 넓어지지 않는다는 뜻이다.


그래서 필자는 생각했다. 작다는 범위가 도대체 어느 정도 범위인지를 말이다.

약 1년 동안 200분이 넘는 예비건축주들을 만나 상담하면서 질문지를 받았다. 집을 짓고자 하시는 분들이 생각하는 작다고 생각하는 평수는 35평 미만이었다. 그리고 크다고 생각하는 평수는 45평 이상부터였다.


결과론적으로 아무리 작게 지어도 30평에서 35평 정도는 지어야 방 3개짜리 주생활 공간이 된다는 뜻이다. 30평 미만의 주택들의 경우 방은 3개 구성하기가 매우 어렵다. 결국에는 방을 구성하기 위해 주방이나 거실 중 하나는 포기해야 하는 형국이 다가온다.


이러한 결과치로 필자는 30평 정도 되는 설계를 제안해 보기로 했다. 지금부터 제안할 설계안은 25평이라는 공간이지만 다락이라는 4평 공간을 더 확보해 29평 정도 되는 신혼부부 및 노부부 두 분이 살기에 적당하도록 설계한 안이다.


평면으로 보면 넓은 것처럼 보이지만 실상 거실과 주방이 매우 협소하다. 30평 미만의 주택을 4인 가족이 생활할 수 있는 주 생활공간으로 구성하기 위해 거실과 주방에 대한 욕심을 줄인 것이다.


그럼 지금부터 25평 주택에 대한 필자의 설계 제안을 이야기드리도록 하겠다.


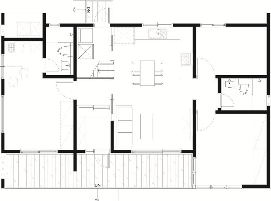
1층평면도.jpg 1층 평면도

1층 공간 기준 정확히 25평으로 공간을 구성했다. 단조로움을 피하기 위해서 약간의 매스 분절을 통해 전면부의 입체감을 최대한 살려보고자 하였다. 이 평면을 구상할 때 전원주택의 매력을 느끼게 하기보다는 짜임새 있는 아파트의 장점을 평면으로 살리고자 하였다. 많은 분들이 아파트는 무조건 나쁜 평면이라고 생각하는데 절대 그렇지 않다. 정해진 공간 안에서 데드 스페이스 없이 짜낸 평면이 아파트 평면으로 발전했다고 생각하면 된다. 이번 설계안에서 이러한 아파트 동선을 가진 평면으로 낭비되는 공간 없이 설계하고자 하였다.


이 평면의 가장 큰 특징은 거실과 주방을 최대한 미니멀라이즘하게 구성하되 독립적인 별채처럼 사용할 수 있는 공간을 만들어 냈다는 것에 있다. 필자가 생각하기에 2명이 거주하는 주택의 경우 필요한 방의 개수는 1개이다. 별도의 서재가 필요하다 판단되어 1개의 서재를 구성하고 나머지 공간을 현관을 중심으로 분리시켜 독립세대를 구성해도 문제가 없도록 설계했다.


이번 설계 제안을 보면서 여러분들은 공간 스케일에 대해 잘 살펴보아야 한다. 위에서 본 평면만으로 공간들이 넓다고 인식할 수도 있지만 분명히 말하건대 좁다. 30평 미만의 주택을 지으면서 넓게 만들고 싶다는 생각은 어찌 보면 욕심일 수 있다. 명심해야 한다. 좁은 것은 좁은 것이다. 설계를 잘한다고 해서 정해진 면적이 절대로 늘어나지는 않는다.

다락평면도.jpg 2층 평면도

자녀들이나 손님이 놀러 왔을 때 그래도 잠잘 수 있는 방은 있어야 되는 것은 아닐까? 고민했다. 그렇다고 25평이라는 공간 안에서 방의 개수를 더 늘리는 것은 문제가 있었다. 그래서 다락이라는 공간을 만들기로 했다. 총 4평 정도로 구성을 했으며 성인 남자 3명 정도가 누워 잘 수 있는 공간으로 설계했다. 물론 완벽한 방으로서 기능을 하기는 어렵다. 지붕 경사도가 있기 때문에 제일 낮은 곳을 층고는 1m도 되지 않는다.


다락을 구성할 때는 여러 가지 생각을 한다. 과연 이 정도 공사비를 들여서 이렇게 짓는 것이 맞을까? 너무 사용할 수 없는 공간을 만드는 것은 아닐까? 그래서 이 공간에 대한 목적을 명확히 한 후 설계하는 것을 항상 추천한다. 이번 설계 제안에서 만든 다락은 아이들 놀이공간과 게스트의 수면을 위한 공간으로 구성했다. 서재나 어른이 들어가 주 생활할 수 있는 공간은 아니라는 점을 미리 알려드린다.

조감도-1.jpg

평면으로 보면 것이 3D로 입면을 올리면 위와 같은 형태로 구성이 된다. "생각보다 괜찮은가?" 아마 평면을 볼 때에는 이 집이 어떻게 만들어질지 머릿속에 그려지지 않았을 것이다. 바닥 평수가 25평이기 때문에 집 규모도 그렇게 크지 않다. 오히려 아담한 집이라고 표현하는 것이 맞을 듯하다.

조감도-2.jpg

외장재에 대한 욕심을 버렸다. 이유는 단 하나이다. 공사비를 최대한 줄이기 위함이다. 30평 미만의 집을 지으면서 외장재에 욕심을 낸다는 것은 말이 안 맞는 행동이다. 최대한 저렴하면서 가성비 높은 자재를 사용해 마감하는 것이 현명하다.


공사비를 줄이기 위해서는 튀어나오는 매스 분절을 최소화해야 한다. 울퉁불퉁한 벽이 더 생길수록 공사비 단가는 더 올라간다. 그래서 직사각형의 박스 이미지를 택했으며, 스타코플렉스만을 이용하여 외장을 마감했다.


외장재가 더러워질 수 있다는 문제을 여러 사람이 제기한다. 그렇다고 세라믹 사이딩 같은 값비싼 자재를 붙일 수는 없다. 지붕 경사도를 뒷면으로 두되 외장 색깔을 짙은 그레이 색상으로 통일시켜 버렸다. 작은 얼룩 등은 외장재에 묻어도 티가 나지 않게 한 것이다.


외장재 기본 베이스를 어두운 색으로 정했다는 것은 포인트는 밝은 색으로 간다는 것을 뜻한다. 포치 부분을 과감하게 적삼목 사이딩을 적용하여 모던한 느낌에 자연적인 느낌을 가미해 주고자 하였다.


결과적으로 믹스매치가 되는 좋은 결과로 나온 것 같아 설계를 제안한 사람으로서 뿌듯함을 느낀다.

조감도-3.jpg

배면에 욕심을 내는 사람이 있는데 집 지을 때 '과시욕'은 금물이다. 집은 자랑하는 매개체가 아니다. 포인트도 사치다. 기단 부분만 파벽돌로 마감한 뒤 배면은 깨끗하게 비워놓는 것이 좋다.


최종 이 집의 이미지를 그리면 아래와 같이 보일 수 있다. 크지는 않지만 이번 단락에서 제시한 미니멀 라이프를 최대한 적용한 집으로 설계를 하였다. 작고 공간이 좁다. 하지만 필자는 향후 5년간 위와 같은 25평 소형주택이 분명히 트렌드를 이끌어 갈 것을 의심치 않는다.


미니멀한 소형주택은 모던 사람들에게 통용되는 사례는 아니다. 이 모델을 원하는 층은 개인적으로 생각할 때 두 부류인데 첫 번째는, 자녀가 어린 신혼 부부층이고 두 번째는, 두 분만 거주하시는 노부부층이다.


만약 위에서 말한 두 층에 속한다면 이번에 제안한 설계안을 유심히 검토해보길 바란다.

투시도.jpg

(좌측부터) 정다운 건축가, 임성재 건축가, 이동혁 건축가

[집이라는 본질적인 가치에 집중하다.]

Architecture Team : 홈트리오(주)

대표번호 : 1522-4279

위치 : 경기도 성남시 분당구 운중로 141, 경창 빌딩 602호 홈트리오(주)

홈페이지 : http://hometrio.kr/

설계 사례(홈페이지) : http://hometrio.kr/designcase/


글쓴이 : 이동혁 건축가

이메일 : sunsutu@hanmail.net

책 : '따뜻한 전원주택을 꿈꾸다' 저자(http://www.yes24.com/24/goods/40516450?scode=029)

이동혁 건축가 TV : http://tv.naver.com/sunsutu1


상담 및 자문[HOMETRIO 건축가]

이동혁 건축가 : 010-4567-8413

정다운 건축가 : 010-8560-0477

임성재 건축가 : 010-9941-8899




[네이버 TV - 이동혁 건축가 TV]

*글 읽기가 어렵나요? 그럼 이제부터는 영상으로 확인하세요.^^


1. 내 집 짓기의 시작-인트로 : http://tv.naver.com/v/1429784

2. 전원주택 짓기 1차 강연 영상 : http://tv.naver.com/v/1431765

3. 성공의 정석 '꾼' 이동혁 대표 : http://tv.naver.com/v/1434375

4. 전원주택 공법. 무엇으로 지으면 좋을까요? : http://tv.naver.com/v/1436122

5. 전원주택 짓기. 예산 잡는 법! : http://tv.naver.com/v/1446575

6. 전원주택. 왜 품질에 대해 말이 많을까? : http://tv.naver.com/v/1451485

7. 내 집짓기. 언제부터 준비해야 할까요? : http://tv.naver.com/v/1473650

8. 내 땅에 몇 평까지 집을 지을 수 있나요? : http://tv.naver.com/v/1473658

9. 전원주택 지방은 공사비가 더 비싸나요? : http://tv.naver.com/v/1479534

10. 전원주택 AS는 어떻게 진행되고 몇 년까지 보증되나요? : http://tv.naver.com/v/1479537

11. 전원주택 단층과 2층으로 지을 때 비용 차이가 많이 있나요? : http://tv.naver.com/v/1479547

12. 전원주택 성토한 땅에 바로 시공할 수 있나요? : http://tv.naver.com/v/1479558

13. 강화도 이강리 전원주택. 오픈하우스 현장 : http://tv.naver.com/v/1497662

14. 전원주택에 스타코플렉스를 왜 사용하나요? : http://tv.naver.com/v/1599468

15. 전원주택 데크에 대해 알려주세요. : http://tv.naver.com/v/1599480

16. 집짓기 착공 전 준비사항은 어떻게 되나요? : http://tv.naver.com/v/1599505

17. 목조주택에서 가장 많이 나는 하자와 그 빈도는? : http://tv.naver.com/v/1672388

18. 조영구 트렌드 핫이슈. 전원주택 쇼핑몰 : http://tv.naver.com/v/1682435

19. 전원주택 계약 시 속지 않기 위한 방법은? : http://tv.naver.com/v/1684870

20. 전원주택 추가 공사 왜 공사 전에 미리 말하지 않나요? : http://tv.naver.com/v/1688493

21. 강화마루, 강마루, 장판 무엇이 좋나요? : http://tv.naver.com/v/1692136

22. 목조 공법으로도 3층 이상으로 높게 지을 수 있나요? : http://tv.naver.com/v/1698287

23. 목조주택 2층에 시멘트 방통 시공. 목조에 부담을 주지 않나요? : http://tv.naver.com/v/1701955

24. 전원주택 바닥 방통 없이 난방을 할 수 있는 방법이 있나요? : http://tv.naver.com/v/1728947

25. 2억 4천만 원. 경기 광주 전원주택을 소개합니다. : http://tv.naver.com/v/1732431

26. 전원주택. 철근콘크리트가 목조보다 더 튼튼할 텐데도 목조로 집을 짓는 이유가 있나요? : http://tv.naver.com/v/1735979

27. 내 땅에 흙을 마음대로 받아도 되나요? : http://tv.naver.com/v/1739333

28. 지진이 늘어나는데 중목이 아닌 경량 목구조는 약하지 않나요? : http://tv.naver.com/v/1743684

29. 땅이 낮아 성토하고 싶어요. 절차가 어떻게 되나요? : http://tv.naver.com/v/1746299

30. 전원주택. 여름 공사와 겨울 공사 단점은 어떤 게 있을까요? : http://tv.naver.com/v/1759345

31. 전원주택 회사. 정말 안전한 업체인지 확인하고 싶어요. : http://tv.naver.com/v/1766577

32. 목조주택이 몸에 좋다는데 어차피 본드나 벽지도 바르지 않나요? : http://tv.naver.com/v/1817543

33. 전원주택 브랜드 업체들의 이윤이 너무 높지 않나요? : http://tv.naver.com/v/1834510

34. 전원주택 땅을 살려는데 종류가 너무 많아요. 혹시 집을 지을 수 없는 땅도 있나요? : http://tv.naver.com/v/1862326

35. 사람들이 목조주택을 짓게 되는 계기가 있을까요? : http://tv.naver.com/v/1866671

36. 건설업체가 안전한 업체인지 알아보는 법! : http://tv.naver.com/v/1918266

37. 미국식 창호와 독일식 창호의 차이 : http://tv.naver.com/v/1934487

38. 하자이행보증증권에 대해 알아보자 : http://tv.naver.com/v/2011225

39. 제주도에 집 지을 때 주의해야 할 점 : http://tv.naver.com/v/2011251

40. 월간 홈트리오 4월호-NEW 농가주택 표준설계도 : https://www.youtube.com/watch?v=WwZjpLNUiwI&t=273s

41. 월간 홈트리오 4월호②-꿈꾸던 다락방을 갖다 : https://www.youtube.com/watch?v=r1fyjlp4N5Q&t=129s

42. 조립식 소형 전원주택. [kasita]에 대해 알아보자! : https://tv.naver.com/v/3440492

43. 전원주택. 월간 홈트리오 5월호 - 도심형 단독주택을 짓다. : https://tv.naver.com/v/3441024

44. 전원주택에서 비가 오기 전 가장 먼저 확인해야 할 사항 : https://tv.naver.com/v/3506313

45. 전원주택 지으려고 하는데 어디에 물어봐야 할까요? : https://tv.naver.com/v/3571540

46. 전원주택 아스팔트슁글 괜찮나요? : https://tv.naver.com/v/3571580

47. 전원주택 세라믹사이딩 어떤 자재인가요? : https://tv.naver.com/v/3571616



keyword