13.5 자투리 땅을 찾아라. 협소 주택을 찾는 사람들

13.5 자투리 땅을 찾아라. 협소 주택을 찾는 사람들

by 이동혁 건축가

순서대로 읽다 보면 완성되는 나의 집

꿈꾸던 전원주택을 짓다

글쓴이 : 이동혁


13. 2018~2022년 향후 5년 전원주택 트렌드 내다보기


13.5 자투리 땅을 찾아라. 협소 주택을 찾는 사람들


지난해인 2017년도에 필자가 정말 많이 대지 검토를 요청받은 것이 바로 '협소 주택'이다. 방송가에서 자투리 땅에 대한 이야기를 폭발적으로 방영하면서 관심도가 급 높아진 이유 때문이다.


문제는 협소 주택이 가지는 정확한 장점과 단점을 알고 진행해야 하는데 대부분 방송에 혹해 잘못된 땅부터 산다는 데에 근본적인 잘못이 있다.


잘 정비된 기업도시. 특히 판교 같은 경우에는 이러한 협소 주택은 애초에 해당되지 않는 항목이다. 자투리 땅이 남으려면 새로 정비된 도시보다는 구도심처럼 옛날 집들이 모여있는 곳에서 발생하기 때문이다.


정부는 계속적으로 토지에 대한 정비사업을 진행한다. 법규에 정해진 도로 확보, 그리고 단위구역별 주거 밀집지역과 상가지역을 구분한다. 지금이야 개발지구 등이 지정되어 있으니 난개발을 할 수 없지만 30~40년 전에는 이러한 법규적인 기준이 없다 보니 정말 다닥다닥 붙어있는 집들과 마을이 탄생했던 것이다.


이러한 마을을 현대 기준에 맞게 정비하다 보면 조금씩 애매하게 남는 땅들이 있다. 삼각형일 수도 있고 길쭉한 직사각형일 수도 있다. 가장 독특한 형태는 마름모꼴의 20평 대지였다.


2018~2022년 향후 5년 전원주택 트렌드 다섯 번째 주제가 바로 여기서부터 시작된다.


필자가 생각했을 때 협소 주택의 수요는 계속해서 늘어날 것으로 판단하고 있다. 서울로만 지역을 한정한다면 지을 수 있는 곳이 많지 않다 보니 수요를 많다고 표현하기는 어렵지만 경기도부터 지방권으로 영역을 확장한다면 협소 주택의 수요층은 분명히 늘어날 것으로 생각한다.


협소 주택이 늘어날 수밖에 없는 가장 큰 이유는 전원주택 수요가 늘어나는 통계치에 있다. 한적한 시골이나 전원마을에는 절대로 협소 주택이 들어서지 않는다. 땅이 넓고 싼데 좁게 지을 필요가 없기 때문이다. 협소 주택을 짓는다는 것은 도심의 밀집지역에 있는 좁은 땅에 집을 짓겠다는 전제조건이 처음부터 달리게 된다는 것이다.


협소 주택은 도심의 문화권과 전원주택의 라이프적인 부분이 결합된 독특한 주거문화라고 할 수 있다. 협소 주택이 처음 자리 잡은 나라는 일본이다. 일본의 건설시장과 트렌드는 한국과 매우 흡사하다고 할 수 있다. 한국에는 이제 막 협소 주택이 걸음마 단계이지만 일본의 경우 수년간 협소 주택을 지어오면서 정말 다양한 사례들을 남기게 되었다. 현재 한국에서 짓고 있는 협소 주택들의 기본 표본이 일본 주택에서 건너왔다고 해도 과언이 아니다.


이번에 협소 주택을 다섯 번째 주제로 삼으면서 어떠한 기준으로 설계 제안을 해 드려야 하나 고민이 많았다. 특히 공법에 대한 고민이 많았는데 목조로 할지 철근콘크리트로 할지 생각보다 오랜 기간 고민을 했다.

투시 1.jpg

최종 결정한 공법은 철근콘크리트 공법이었다. 고민이 있었던 이유는 다름 아닌 '돈'때문이었다. 큰 평수가 아닌 작은 평수이기 때문에 가성비를 따져보았을 때는 목조가 맞았고 옥상 사용 및 스펜 길이 등의 공간을 따져보았을 때는 철근콘크리트 공법이 맞았기 때문이다.


최종 철근콘크리트로 결정한 것에는 옥상 사용이 결정적이었다. 필자의 설계를 그동안 지켜보아온 분들은 알 것이다. 필자가 옥상설계 및 시공을 극도로 꺼려한다는 것을 말이다. 옥상을 피했던 이유는 하나였다. 바로 누수이다. 옥상방수는 무엇이 되었던 액체방수 단 하나밖에 없다. 쉽게 설명하면 빌라 옥상에 있는 녹색으로 돼있는 페인트처럼 보이는 것이 방수층인 것이다.


일반적으로 수명은 5년으로 보고 있는데 한국처럼 4계절이 뚜렷한 나라에서는 조금 더 수명이 단축된다. 모르고 지나간 것이지 시간이 지나 자세히 보면 갈라지거나 방수층이 떠 있는 것을 쉽게 볼 수 있다. 이 정도가 되면 방수층은 존재하지 않는다고 생각하면 된다.


그럼에도 불구하고 이번 기획설계에서는 옥상을 과감히 적용했다. 필자의 건축 철학과 반대되는 행동을 한 것이다. 이 부분에 대해서는 가장 큰 이유가 있는데 협소 주택이라고 한다면 애초에 마당이라는 부분이 생성될 수 없다. 안 그래도 좁은 땅에 집을 포기하고 마당을 가져갈 수 없기 때문이다.


전원주택은 마당이 가지는 힘이 엄청 크다. 마당이 없으면 아파트 생활과 크게 다르지 않기 때문이다. 이번 협소 주택 기획안에서는 옥상을 활용해 앞마당에서 이루지 못한 로망을 이룰 수 있게 한 것이다.

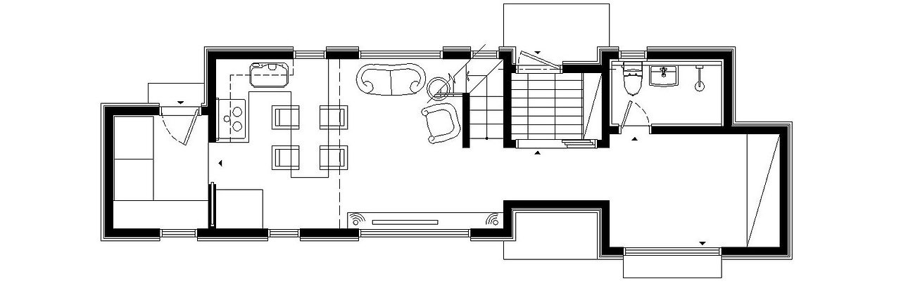
사본 -1층.jpg 1층 평면도

이번 기획설계 모델을 1층 49.76㎡, 2층 56.79㎡, 다락 18.85㎡, 총 103.58㎡로 설계했다. 땅 자체가 크지 않다고 판단한 후 1층 면적을 잡았는데 필자가 생각했을 때 최소로 바닥 면적을 줄였을 때 15평 정도는 나와야 공간이 구성될 수 있다고 판단했다.


혹 이 글을 읽고 있는 여러분들의 1층 면적이 더 작아야 한다면 지금 위에서 보는 1층 평면도 부분 중 어느 한 부분이 사라져야 한다고 생각하면 편할 것이다.


1층 15평 공간은 생각보다 큰 공간은 아니다. 그렇기 때문에 많은 공간을 구획하기보다는 한 공간을 다양한 공간처럼 활용할 수 있는 계획안이 필요하다. 현관을 중심으로 사적인 공간인 안방을 기본적으로 확보해주고 반대편에 주방과 거실, 식당을 같이 사용할 수 있는 공간을 오픈공간으로 마련했다. 여기에 계단실까지 구성되었으니 4명 이상 이 공간에서 무언가를 하기는 어려울 수도 있다.

사본 -2층.jpg 2층 평면도

대신 2층 공간에 가족실 공간을 작지만 별도로 만들어 주었다. 양쪽으로는 침실을 만들어주고 중간에는 화장실과 수납공간까지 만들어 주었다. 협소 주택에서 가장 중요한 부분 중의 하나가 가구 배치이다. 일반적인 기성가구는 협소 주택에서는 적용 불가능하다. 모든 가구가 주문 제작하여 맞춰야 하는 번거로움이 있다. 안 그래도 작은 공간 안에 딱 맞지 않는 가구를 들고 들어오는 것은 어찌 보면 욕심일 수 있다. 협소 주택을 짓고자 하는가? 그럼 기존에 있는 가구를 어떻게 처분하고 올 것인지도 필히 고민해 보아야 한다.


2층 공간은 벽을 없애고 양쪽으로 옥상 정원에 나갈 수 있는 동선을 만들어 주었다. 이 협소 주택에서는 기본적인 방이 3개, 거기에 옥탑 형식의 방까지 포함하면 총 4개의 방이 31평 공간 안에 다 들어갔다고 볼 수 있다.


"와 30평에도 이렇게 많은 공간이 구성 가능하군요. 저도 크게 짓지 말고 30평으로 방 3개 구성해봐야겠어요."


이렇게 생각하시는 분들이 분명히 계실 것이다. 30평에 이번 기획안처럼 구성한다면 가장 큰 한 부분을 과감하게 욕심을 줄여야 한다. 그 부분이 가장 처음 이야기한 거실과 주방 공간이다. 평면상으로 보았을 때 괜찮다고 느낄 수도 있지만 분명히 작은 공간이다. 일반 전원주택처럼 넓고 오픈 감 있는 거실과 주방은 현실적으로 협소 주택에서는 적용하기 어렵다고 생각한다. 물론 답이 없는 것이 아니다. 결국에는 정해진 면적 안에서 공간을 나누는 것이기 때문에 거실과 주방을 더 넓게 가지고 가고 싶다면 방을 하나 과감하게 줄이면 된다. 그러면 그 공간을 다른 공간에 배치할 수 있기 때문에 지금보다 더 넓은 거실 공간을 확보할 수 있을 것이다.

사본 -3층.jpg 3층 평면도

이번 협소 주택 기획안의 공사비를 살펴보면 설계비 782만 원, 건축 시공비 19,200만 원이 예상된다. 건축 시공비의 증가는 어쩔 수 없는 선택인 것 같다. 넓은 땅에 짓는 경우라면 건축비를 어떻게든 줄일 수 있는 방안을 찾는 것이 우선순위겟지만 협소 주택의 경우 우선순위가 다르다. 작은 땅에 내가 찾아먹을 수 있는 최대한의 면적을 모두 찾아먹고 그에 따른 건축공법과 마감을 선택해야 한다. 그래야 최소한 4 가족이 생활할 수 있는 면적으로 집을 지을 수 있기 때문이다. 이번 기획설계 시 기준으로 잡은 주택의 땅은 50평이 채 안 되는 땅이었다. 다행히 주차공간을 외부로 간신히 댈 수 있는 면적이 나와 외부로 빼내는 기준으로 설계를 했는데 혹 여러분 땅이 더 작아서 외부에 댈 수 있는 공간이 나오지 않는다면 어쩔 수 없이 필로티로 1층을 띄운 뒤 주차공간을 마련해야 한다. 다시 말하면 건축공사비는 더 증가한다고 보면 된다.


협소 주택의 가장 큰 장점은 주변 아파트보다 적은 금액으로 전원생활의 느낌을 즐길 수 있다는 것이다. 반대로 단점은 기존 전원주택을 짓는 비용보다 더 많은 금액이 투입된다는 것이다. 어쩔 수 없다. 작게 짓는다고 무조건 금액이 내려가는 것이 아닌 만큼 협소 주택을 지을 때 예산이 더 들어간다는 것은 필수로 생각한 후 진행해야 한다. 잘못하다가는 배보다 배꼽이 더 큰 경우가 발생될 수 있으니 신중에 신중을 기하고 땅을 최종 구입하기 전에 지적측량은 꼭 한 다음 진행하길 바란다.


정말 가장 어처구니없는 일이 땅을 구입하고 현장까지 다 보고 계약을 했는데 지적측량을 해보니 옆집이 내 땅 안에 들어와 있는 경우이다. 현재야 워낙 꼼꼼히 지적정리를 해 놓으니 이런 문제가 없지만 30~40년 전에 지어진 주택들은 이런 기준 맞춰서 지은 곳 거의 없다. 옆집과 벽을 공유하는 곳도 있으니 나에게 이런 문제가 발생하지 않는다는 보장이 없는 것이다. 건축 및 설계는 최소한 되돌릴 수 있는 시간이 있다. 하지만 땅은 그렇지 않으므로 협소 주택이 좋아 무작정 협소한 땅을 찾아 계약할 것이 아니라 이 땅에 정말로 집을 지을 수 있는지 정도는 꼼꼼히 파악해 놓는 것이 좋다.

투시 2.jpg

디자인 안을 잡을 때 매스 스터디는 생각보다 쉽게 결정되었다. 빼고 더할 게 없었기 때문이다. 평면 그대로 벽을 올렸고 창문을 배치하고 전면부의 힘을 주어야 할 부분에 포인트를 넣었다. 기본 스타코 마감에 리얼징크와 베이스패널을 믹스 배치해 유니크한 입면 디자인을 완성시킬 수 있었다.

투시 3.jpg

이 집에서 포인트 자재는 총 3개를 사용했는데, 메인 포인트를 징크로 가지고 가되 적삼목과 그레이톤의 베이스패널을 적용해 단조롭지만 무게감이 느껴지는 모던 스타일의 주택을 완성시켰다.


건폐율이 정해져 있기 때문에 협소 주택의 경우 튀어나오는 공간이 절대로 있어서는 안 된다. 벽 마감 선도 일직선으로 깔끔하게 마감시키고 매스 감이 부족하다 느껴지는 부분은 포치 부분과 현관 부분에서 살짝 밀어 넣어주는 느낌의 디자인을 적용해 작은 평수이지만 큰 매스로 느껴질 수 있게 하였다.

입면 전체.jpg

항상 말하듯 측면 부분은 포인트를 넣는 것이 아니다. 더 정확히 말하면 기본 마감인 스타코로도 충분하다. 돈 쓰지 않아도 되므로 안 보이는 부분에 돈 쓸 생각하지 않았으면 한다.


전원주택 트렌드 다섯 번째 키워드인 협소 주택. 이번 제안을 어떻게 받아들이셨는지 모르겠다. 협소 주택의 인기는 일본 시장처럼 점점 늘어날 것으로 예상한다. 필자가 말하지 않더라도 전원주택에 관심 있는 분들이라면 한 번쯤 눈여겨보았을 내용일 것이다.


땅이 작다고, 또 못생겼다고 너무 실망할 필요 없다. 이번 트렌드 제안처럼 조금만 공간들에 욕심을 버린다면 100%는 아니지만 90% 정도는 만족할만한 주택이 탄생할 수 있을 것이다.

32평형 2층 주택.jpg

(좌측부터) 정다운 건축가, 임성재 건축가, 이동혁 건축가

[집이라는 본질적인 가치에 집중하다.]

Architecture Team : 홈트리오(주)

대표번호 : 1522-4279

위치 : 경기도 성남시 분당구 운중로 141, 경창 빌딩 602호 홈트리오(주)

홈페이지 : http://hometrio.kr/

설계 사례(홈페이지) : http://hometrio.kr/designcase/


글쓴이 : 이동혁 건축가

이메일 : sunsutu@hanmail.net

책 : '따뜻한 전원주택을 꿈꾸다' 저자(http://www.yes24.com/24/goods/40516450?scode=029)

이동혁 건축가 TV : http://tv.naver.com/sunsutu1


상담 및 자문[HOMETRIO 건축가]

이동혁 건축가 : 010-4567-8413

정다운 건축가 : 010-8560-0477

임성재 건축가 : 010-9941-8899




[네이버 TV - 이동혁 건축가 TV]

*글 읽기가 어렵나요? 그럼 이제부터는 영상으로 확인하세요.^^


1. 내 집 짓기의 시작-인트로 : http://tv.naver.com/v/1429784

2. 전원주택 짓기 1차 강연 영상 : http://tv.naver.com/v/1431765

3. 성공의 정석 '꾼' 이동혁 대표 : http://tv.naver.com/v/1434375

4. 전원주택 공법. 무엇으로 지으면 좋을까요? : http://tv.naver.com/v/1436122

5. 전원주택 짓기. 예산 잡는 법! : http://tv.naver.com/v/1446575

6. 전원주택. 왜 품질에 대해 말이 많을까? : http://tv.naver.com/v/1451485

7. 내 집짓기. 언제부터 준비해야 할까요? : http://tv.naver.com/v/1473650

8. 내 땅에 몇 평까지 집을 지을 수 있나요? : http://tv.naver.com/v/1473658

9. 전원주택 지방은 공사비가 더 비싸나요? : http://tv.naver.com/v/1479534

10. 전원주택 AS는 어떻게 진행되고 몇 년까지 보증되나요? : http://tv.naver.com/v/1479537

11. 전원주택 단층과 2층으로 지을 때 비용 차이가 많이 있나요? : http://tv.naver.com/v/1479547

12. 전원주택 성토한 땅에 바로 시공할 수 있나요? : http://tv.naver.com/v/1479558

13. 강화도 이강리 전원주택. 오픈하우스 현장 : http://tv.naver.com/v/1497662

14. 전원주택에 스타코플렉스를 왜 사용하나요? : http://tv.naver.com/v/1599468

15. 전원주택 데크에 대해 알려주세요. : http://tv.naver.com/v/1599480

16. 집짓기 착공 전 준비사항은 어떻게 되나요? : http://tv.naver.com/v/1599505

17. 목조주택에서 가장 많이 나는 하자와 그 빈도는? : http://tv.naver.com/v/1672388

18. 조영구 트렌드 핫이슈. 전원주택 쇼핑몰 : http://tv.naver.com/v/1682435

19. 전원주택 계약 시 속지 않기 위한 방법은? : http://tv.naver.com/v/1684870

20. 전원주택 추가 공사 왜 공사 전에 미리 말하지 않나요? : http://tv.naver.com/v/1688493

21. 강화마루, 강마루, 장판 무엇이 좋나요? : http://tv.naver.com/v/1692136

22. 목조 공법으로도 3층 이상으로 높게 지을 수 있나요? : http://tv.naver.com/v/1698287

23. 목조주택 2층에 시멘트 방통 시공. 목조에 부담을 주지 않나요? : http://tv.naver.com/v/1701955

24. 전원주택 바닥 방통 없이 난방을 할 수 있는 방법이 있나요? : http://tv.naver.com/v/1728947

25. 2억 4천만 원. 경기 광주 전원주택을 소개합니다. : http://tv.naver.com/v/1732431

26. 전원주택. 철근콘크리트가 목조보다 더 튼튼할 텐데도 목조로 집을 짓는 이유가 있나요? : http://tv.naver.com/v/1735979

27. 내 땅에 흙을 마음대로 받아도 되나요? : http://tv.naver.com/v/1739333

28. 지진이 늘어나는데 중목이 아닌 경량 목구조는 약하지 않나요? : http://tv.naver.com/v/1743684

29. 땅이 낮아 성토하고 싶어요. 절차가 어떻게 되나요? : http://tv.naver.com/v/1746299

30. 전원주택. 여름 공사와 겨울 공사 단점은 어떤 게 있을까요? : http://tv.naver.com/v/1759345

31. 전원주택 회사. 정말 안전한 업체인지 확인하고 싶어요. : http://tv.naver.com/v/1766577

32. 목조주택이 몸에 좋다는데 어차피 본드나 벽지도 바르지 않나요? : http://tv.naver.com/v/1817543

33. 전원주택 브랜드 업체들의 이윤이 너무 높지 않나요? : http://tv.naver.com/v/1834510

34. 전원주택 땅을 살려는데 종류가 너무 많아요. 혹시 집을 지을 수 없는 땅도 있나요? : http://tv.naver.com/v/1862326

35. 사람들이 목조주택을 짓게 되는 계기가 있을까요? : http://tv.naver.com/v/1866671

36. 건설업체가 안전한 업체인지 알아보는 법! : http://tv.naver.com/v/1918266

37. 미국식 창호와 독일식 창호의 차이 : http://tv.naver.com/v/1934487

38. 하자이행보증증권에 대해 알아보자 : http://tv.naver.com/v/2011225

39. 제주도에 집 지을 때 주의해야 할 점 : http://tv.naver.com/v/2011251

40. 월간 홈트리오 4월호-NEW 농가주택 표준설계도 : https://www.youtube.com/watch?v=WwZjpLNUiwI&t=273s

41. 월간 홈트리오 4월호②-꿈꾸던 다락방을 갖다 : https://www.youtube.com/watch?v=r1fyjlp4N5Q&t=129s

42. 조립식 소형 전원주택. [kasita]에 대해 알아보자! : https://tv.naver.com/v/3440492

43. 전원주택. 월간 홈트리오 5월호 - 도심형 단독주택을 짓다. : https://tv.naver.com/v/3441024

44. 전원주택에서 비가 오기 전 가장 먼저 확인해야 할 사항 : https://tv.naver.com/v/3506313

45. 전원주택 지으려고 하는데 어디에 물어봐야 할까요? : https://tv.naver.com/v/3571540

46. 전원주택 아스팔트슁글 괜찮나요? : https://tv.naver.com/v/3571580

47. 전원주택 세라믹사이딩 어떤 자재인가요? : https://tv.naver.com/v/3571616



keyword