#4 목조로 지을지 콘크리트로 지을지 고민?그럼 섞어!

#4 2세대가 거주하는 하이브리드 55평 전원주택 설계안

by 이동혁 건축가

제목 : 화성시 비봉면 2세대가 같이 사는 목조+RC 하이브리드 전원주택 설계안


출발


안녕하세요 이동혁 건축가 입니다.^^

오늘 문득 통계를 눌러보니 벌써 제 브런치에 83만명이라는 구독자분들이 다녀가셨더라구요. ㅠㅠ 제 생각을 간략히 적어놓기 시작했던 글이 83만명이라는 분께 읽혀졌다니 책임감이 더욱 커지는 것 같습니다.^^

앞으로도 객관적이고 정확한 정보만을 제공해 드릴테니 끝까지 많은 사랑과 관심 부탁드립니다.

오늘은 화성시에 실제로 설계가 되어지고 올 봄에 시공에 들어가는 한 주택을 소개해 드릴까 합니다. 설계기간이 약 6개월이나 걸려 완성된 주택인지라 이제는 자식같은 느낌이 드는 전원주택입니다.^^

이번 주택의 특이한 점은 1층은 철근콘크리트공법을 사용하고 2층은 목조공법을 사용했다는 것입니다. 비하인드 스토리도 아래에서 들려드릴테니 끝까지 포기하지말고 따라와주세요.^^

자 그럼 출발합니다.

*읽고 난 다음에는 위의 하트모양 라이킷과 공유 꾹 눌러주세용~^^


메인 투시도 1안
메인투시도 2안

HOUSE PLAN

연면적 : 182.37㎡(1층+2층)

1층 : 109.44㎡

2층 : 72.93㎡

총괄 건축가 : 이동혁, 임성재, 정다운

설계·시공 : 홈트리오(주) 1522-4279

Homepage : http://hometrio.kr

이동혁건축가TV : http://tv.naver.com/sunsutu1

예상 총 건축비 : 319,000,000원(부가세포함)

설계비 및 인허가비 : 13,750,000원(부가세포함)

*건축비 외 부대비용 : https://brunch.co.kr/@sunsutu/96 참고


SPEC

공법 : 기초-철근콘크리트 / 1층구조-철근콘크리트, 2층구조-경량목구조

지붕마감재 : 아스팔트슁글

외벽마감재 : 스타코플렉스

외벽포인트자재 : 적삼목사이딩, 파벽돌

실내벽마감재 : 실크벽지

실내바닥마감재 : 강마루

창호재 : 융기 3중 시스템창호

단열재 : 외부벽체(Glasswool Insulation R21HD-15" 나등급)

▷크나우프社 ECOBATT (ECOSE® 특허)

▷HD:저에너지 하우스용 / 15인치(381mm) *동등 제품

: 내부벽체(Glasswool Insulation R19-15" 다등급)

: 천장(Glasswool Insulation R30-15" 다등급)

: 지붕(Glasswool Insulation R37-23" 가등급) ▷ISOVER社에너지세이버

*단열기준은 2016년 7월1일자로 변경되는 단열기준법을 적용하여 강화시켜 놓았습니다.



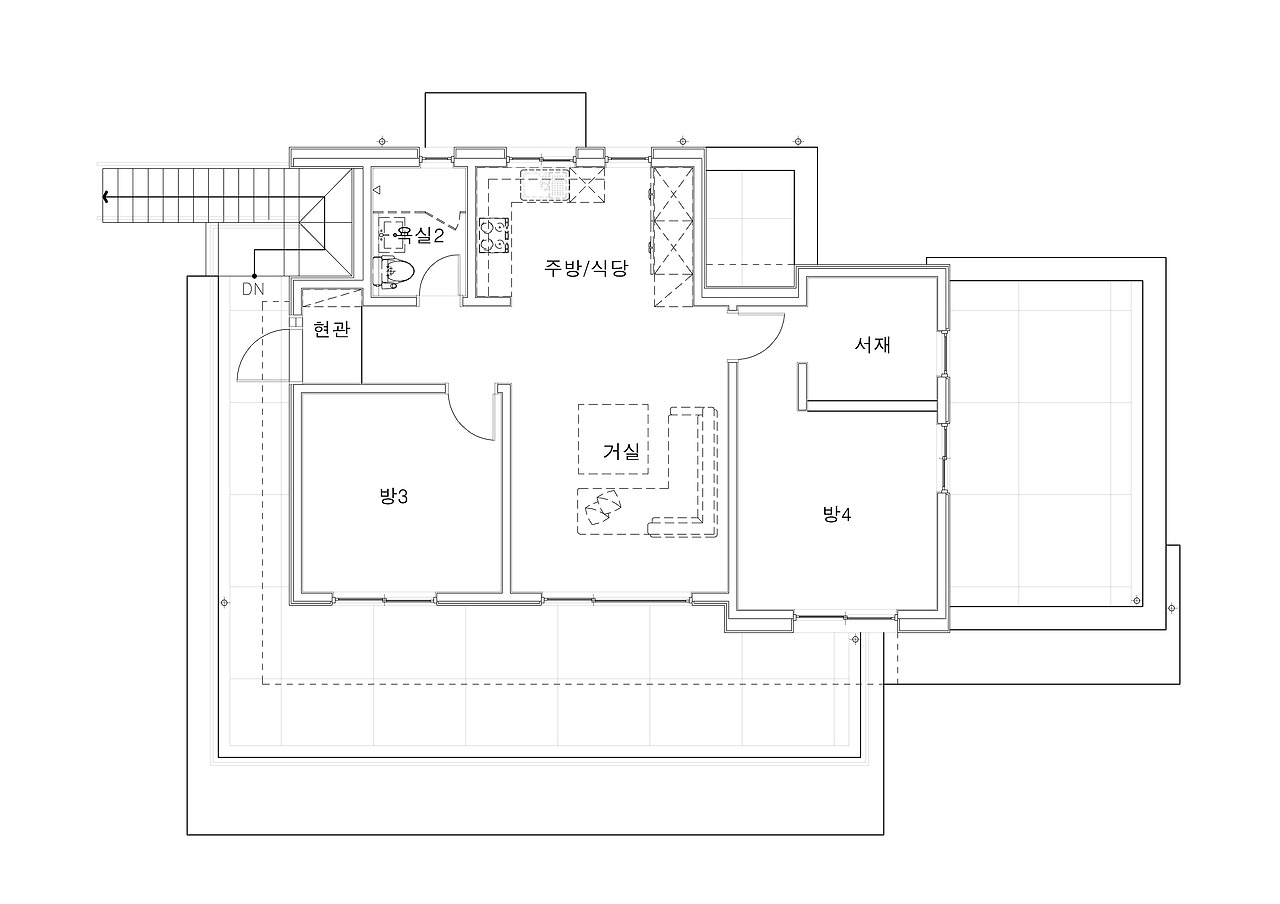
1층.jpg 1층 평면도
2층.jpg 2층 평면도


Q.설계 방향에 대해 설명해주세요.

이번 주택의 시작은 2세대가 거주 가능한 전원주택이라는 컨셉으로 출발이 되었습니다. 부모님과 같이 거주하는 공간인 만큼 서로 동선이 얽히지 않고 1층과 2층이 독립적인 프라이버시를 가질 수 있게 공간을 배치하였습니다. 초기 생각하셨던 평형대에서 만족할만한 공간감이 나오지 않아 평수조정을 여러번 진행하였으며, 최종 55평이라는 면적으로 설계가 마무리 되었습니다.

외관은 모던한 형식으로 군더더기 없이 진행하고자 노력하였으며, 화이트와 그레이톤 계열 마감을 통해 집의 무게감을 밸런스있게 유지하고자 노력하였습니다.

이번 주택의 특이점은 하이브리드공법이 적용되었다는 것입니다. 건축주님의 화성시 대지에는 선천적으로 습한 기운이 많아 건축주님과 협의한 끝에 1층은 습한 기운을 최대한 막을 수 있는 철근콘크리트 공법으로 진행을 하였으며, 2층은 단열성과 친환경성이 뛰어난 목조로 공법을 진행하여 RC와 목조의 장점을 모두 가진 주택이 탄생할 수 있었습니다.


Q.면적은 얼마나 되는가요?

1층과 2층을 합하여 182.37㎡(55평)으로 구성하였습니다. 1층은 부모님께서 거주하시는 공간으로 구성하였으며, 2층은 자녀분들이 거주가능하도록 독립된 실 구성을 진행하였습니다.


Q.비용은 얼마가 들었나요?

총 공사비용은 319,000,000원이 들 것으로 예상합니다. 평당가격으로 나눈다면 평당 약 580만원이 되어질 것으로 판단됩니다.


Q.기간은 얼마나 걸렸나요?

설계기간은 타 프로젝트보다 2배이상 걸린 것 같습니다. 걱정이 많으셨던 건축주님의 의견을 모두 반영하다보니 약 6개월이라는 시간동안 설계를 하게 되었습니다. 하지만 많은 고민을 한 만큼 건축주님께서 만족할만한 주택이 탄생되어 총괄 건축매니저의 입장에서 매우 보람을 느낍니다.


Q.집의 컨셉이 무엇인가요?

건축주님의 화성시 대지에는 뒤로는 산으로 둘러쌓여있고 앞으로는 넓은 논이 시야를 가림없이 펼쳐져 있어 북유럽식의 느낌보다는 정갈하고 깔끔한 느낌의 모던한 주택이 어울릴거라 생각했습니다. 건축주님의 성향도 군더더기 없는 형태를 좋아하셔서 이번 집의 컨셉을 직선과 모던 그리고 무게감이라는 테마로 진행을 하였습니다.


Q.이번 주택에서의 포인트는 무엇인가요?

이번 설계의 포인트는 크게 3가지로 나뉠 수 있을 것 같습니다. 첫번째는 공법입니다. 습식공법인 RC와 건식공법인 목조가 같이 쓰여지는 독특한 구조로 지어져 두가지 공법의 장점을 모두 가져갈 수 있는 특징이 있습니다. 두번재는 2세대가 거주 가능한 공간이라는 것입니다. 1층과 2층 모두에 거실과 주방을 넣어 독립적으로 활용할 수 있도록 하였습니다. 세번째는 2층 외부 공간입니다. 주변 경치가 좋은 대지를 감안해 2층에서 시원한 바람을 쐬면서 취미생활을 할 수 있는 넓은 공간을 구성하였습니다.


Q.아쉬운 부분은 무엇인가요?

이번 설계에서 아쉬운 점은 바로 금액에 있습니다. 최대한 건축비를 줄일 수 있는 방안을 강구하였지만 건식과 습식이 같이 사용되는 공법인 만큼 자재비와 인건비가 타 단일 공법에 비해 많이 발생하게 되었습니다.


Q.설계가 완성되기까지 많은 시간이 걸렸는데 비하인드스토리가 있나요?

지금의 매스형태가 초기 매스와는 완전히 다른 모양으로 완성되어졌습니다. 저희가 파악하였던 건축주님의 성향과 건축주님이 요구하셨던 내용들이 초기에는 많이 엇갈려 수차례 수정이 이어졌었습니다. 하지만 시간이 지날수록 건축주님과 저희의 호흡이 잘 맞아 서로 만족할만한 결과가 나온 것 같습니다.^^


Q.마지막 총평을 한다면?

맞춤형 전원주택을 짓는다는 것이 참 어려운 일인 것 같습니다. 하지만 그만큼 큰 보람도 같이 느끼기에 소요된 시간들이 모두 소중하게 느껴진답니다.^^ 제목을 보면 섞어라는 표현을 썼는데 집이라는 것은 정해진 답이 없답니다. 안되면 될 수 있는 방안을 찾아야하고 그 답을 찾다보면 어느순간 최고의 집이 탄생하게 되어지는 것 같습니다. 어려움이 있다고 포기하지마세요.^^ 끝까지 밀고 나가다보면 최고의 내 집이 지어질 수 있으실 것입니다.


정면도.jpg 정면도
우측면도.jpg 우측면도
좌측면도.jpg 좌측면도
배면도.jpg 배면도
지붕평면도.jpg 지붕평면도


도착


이번 설계제안 어떠셨나요?^^

이번 주택은 단순히 설계안에서 끝나는 것이 아닌 실제로 시공이 이루어지는 주택이었는데요. 많은 고민과 시간이 걸린만큼 건축주님과 제가 만족할만한 결과로 탄생될거라 의심치 않습니다.

집을 짓는다는 것이 참 어려운 일입니다. 건축관련 일을 9년째 하는데도 매번 어렵게 느껴집니다.^^ 하지만 그만큼 어려움과 많은 고민이 있었기에 건축주님께서 만족할만한 결과물이 나온다고 생각합니다.

다음시간에도 좋은 설계안 가지고 이야기를 들려드리도록 하겠습니다.

감사합니다.^^

*읽고 난 다음에는 위의 하트모양 라이킷과 공유 꾹 눌러주세용~^^


KakaoTalk_20160226_124302788.jpg (좌측부터) 정다운 건축가, 이동혁 건축가, 임성재 건축가

총괄 건축가 : 이동혁, 임성재, 정다운

설계·시공 : 홈트리오(주) 1522-4279

Homepage : http://hometrio.kr

이동혁건축가TV : http://tv.naver.com/sunsutu1

[집이라는 본질적인 가치에 집중하다.]


글쓴이 : 이동혁 건축가

이메일 : sunsutu@hanmail.net


상담 및 자문

이동혁 건축가 : 010-4567-8413

정다운 건축가 : 010-8560-0477

임성재 건축가 : 010-9941-8899



keyword