36평 노후를 위한 힐링공간(젊은 전원주택 트렌드)

월간 홈트리오 2월호

by 이동혁 건축가

2장. 아이들이 뛰노는 소리가 들리나요?


동네라는 단어가 어색하고 무색하게 들릴 정도로 요즘 세상은 삭막함이 가득합니다.

아이들이 뛰어놀 수 있는 유일한 공간인 놀이터도 저녁에는 소음 민원 때문에 놀 수 없다고 하네요.

'얼음땡'

'술래잡기'

'고무줄놀이'

뛰어놀면서 친해지고 웃고 뒹굴고. 제가 생각하는 아이들의 이미지는 이런 것인데. 어느 순간 이러한 모습을 보기 힘든 세상이 되어버린 것 같아요.

아이들이 다시 웃고 뛰어놀 수 있는 공간을 만들어주고 싶어요. 우리들의 어릴 적 해가 질 때까지 소리치며 뛰어놀던 기억. 그 기억과 추억을 되돌려주고 싶어요.


2월호 - 36평 노후를 위한 힐링공간


STORY

: 은퇴한 후 노후에 조용한 곳에 가서 우리 부부 둘이 가서 행복하게 사는 꿈. 그 꿈을 한 발자국 더 다가가게 하기 위해 월간 홈트리오 2월호가 시작되었습니다.

복잡한 도심을 벗어나 숲에 둘러싸인 어느 마을. 그 마을 안에 우리 부부 둘만의 공간이 생기다는 것은 상상만으로도 행복한 일입니다.

조그마한 텃밭을 일구고 그곳에서 자라나는 친환경 채소와 과일들을 먹으며 마음을 안정시키고 편안한 생활을 하는 것이야말로 진정한 힐링이지 않을까 생각합니다.

이번 주택 모델을 설계하면서 많은 아이템을 담아내기보다는 편하고 짧은 동선으로 무리하게 움직이지 않더라도 다양한 활동을 영위할 수 있게 하는 것이 방향성을 맞추어 진행했습니다.

다만 자녀들이 놀러 왔을 때 너무 좁거나 쉴 수 있는 공간이 없으면 안 되었기에 다락이라는 공간을 만들어 주었으며, 2층처럼 활용할 수 있도록 넓게 구성하여 잡다한 짐을 올려놓을 수 있는 다목적 공간으로 활용될 수 있게 하였습니다.

맑은 공기와 녹색 빛의 나무들이 보이는 곳. 그곳에서의 노후생활.

"지금 지내시는 곳이 답답하지는 않으세요?"

탁 트인 마당을 바라보며 예쁜 내 집에서 산다는 것. 더 이상 꿈이 아닌 현실로 다가올 것입니다.


#부부 #전원생활 #텃밭 #힐링 #공기좋은곳

SPEC

공법 : 경량 목구조

지붕마감재 : 아스팔트슁글 / 외벽 마감재 : 스타코플렉스 / 포인트자재 : 리얼징크, 루나우드, 파벽돌

실내벽마감재 : 실크벽지/ 실내바닥마감재 : 강마루

창호재 : 미국식 3중 시스템창호

건축면적 : 119.64㎡(1층 : 99.00㎡, 2층 : 20.64㎡)

예상 총 건축비 : 206,600,000원(부가세 포함, 산재보험료 포함 / 설계비, 인허가비, 구조계산 설계비 별도)

설계비 : 4,500,000원(부가세 포함) / 인허가비 : 3,000,000원(부가세 포함)

구조계산 설계비 : 3,000,000원(부가세 포함) / 인테리어 설계비 : 3,000,000원(부가세 포함)

*건축비 외 부대비용 : 대지구입비, 가구(싱크대, 신발장, 붙박이장), 기반시설 인입(수도, 전기, 가스 등), 토목공사, 조경비 등

1층 평면도
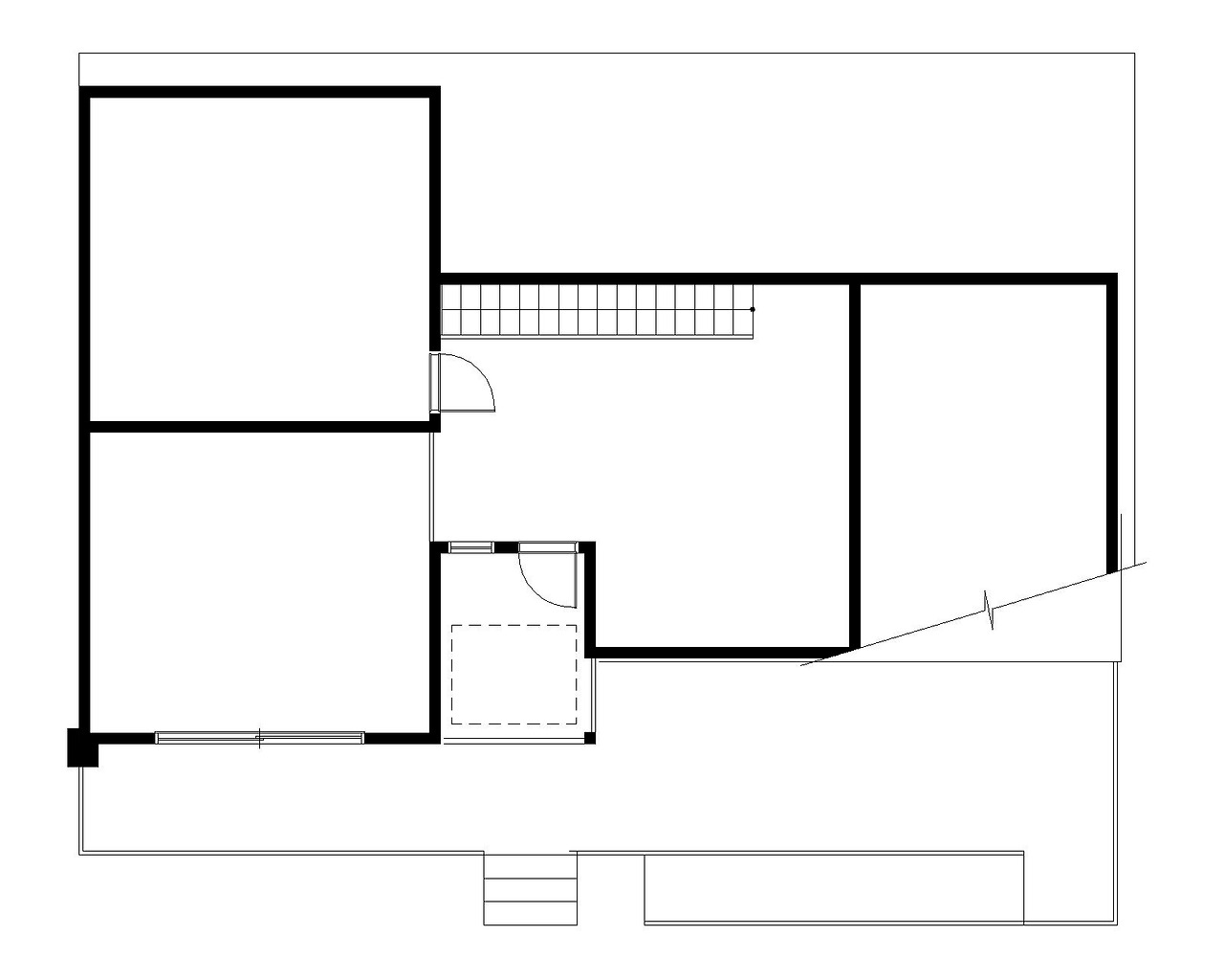
다락 평면도

이동혁 건축가 : 작은 평형대일수록 거실과 주방을 어떻게 배치하느냐가 가장 핵심이에요. 이번 주택 평면처럼 거실과 주방을 일자형으로 배치해주면 현관에서 들어왔을 때 넓은 개방감을 느낄 수 있답니다.

임성재 건축가 : 다락의 경우 호불호가 많이 갈리는 편이에요. 이번 주택에서는 수납공간 및 앉아서 하는 작업실 용도로 다락을 계획했고 10평이 넘어가는 넓은 공간이기 때문에 답답하지는 않을 거예요.

정다운 건축가 : 지붕의 경사도만 다양하게 주어도 독특한 입면을 만들어 낼 수 있어요. 경사도가 있어야 하는 것은 당연하고 아무리 예뻐 보인다고 해서 경사도가 없는 평지붕을 만들어 놓으면 사는 내내 누수에 대한 위험을 안고 살아야 할 거예요.