32평 순수한 아름다움을 담다(젊은 전원주택 트렌드)

월간 홈트리오 7월호 ③

by 이동혁 건축가

7월호③ - 32평 순수한 아름다움을 담다


STORY

: 꼭 비싼 자재를 써야지만 고급 주택이 되고 예쁜 집이 되는 것일까요?

많은 집을 지어왔지만 항상 위의 물음 앞에 놓이게 됩니다. 설계적으로 그리고 디자인적으로 풀어낼 방법.

자재가 가진 고유의 느낌이 있기 때문에 북유럽식 스타일이나, 일본 젠 스타일 등은 그 자재를 사용해야지만 느낌을 살려낼 수 있지만 꼭 그렇지 않더라도 내 집이 조금은 독특하고 자기만의 아이덴티티를 가지게 할 수 있는 벙법. 그 방법에 대해서 정말 오랜 시간 고민한 것 같습니다.

이번 모델을 기획하고 설계하면서 외장재 포인트 부분을 최소화하고 정말로 매스와 지붕의 디자인만 살려서 순수한 느낌의 집을 만들어 내보자 라는 것이 목표점이었습니다.

모임지붕부터 외쪽지붕, 엇갈린 지붕 등 정말 많은 디자인을 적용해 보았고 평면적인 부분도 소형평수이지만 그동안 보아왔던 느낌이 아니라 새롭고 현 트렌드에 맞는 세련된 집을 탄생시키고 싶었습니다.

돈이 많다면야 내가 원하는 것을 다 적용하고 비싼 자재들을 다 사용하면 좋겠지만 저희를 찾아주시고 관심 가져주시는 분들은 저렴한 금액대의 실용주의 주택을 선호하시는 분들입니다.

그러한 분들의 기대를 저버리면 안 되기 때문에 계속해서 새로운 기획모델을 발표해 내는 것이고, 품질적인 부분은 떨어지지 않고 가성비 높은 자재들을 적용해 충분히 현실 적용 가능한 금액대의 주택을 발표합니다.

수많은 착오 끝에 완성된 이번 모델은 스타코플렉스의 화이트 외장재를 기본으로 평면적인 매스 분절과 지붕의 박공지붕 디자인만으로 집이라는 매개체가 가진 순수한 아름다움을 담아낼 수 있는 그러한 집을 만들어 냈습니다.

오히려 단조로운 느낌. 비어 보이는 느낌. 과하지 않으면서 차분한 느낌의 집.

저희들은 그러한 집을 만들어 내고자 했습니다.


#매력적인박공지붕 #가성비전원주택 #바닷가전원주택 #순수미 #ㄱ자형주택

다운로드 (2).jpg

공법 : 경량 목구조

지붕마감재 : 아스팔트슁글 / 외벽 마감재 : 스타코플렉스 / 포인트자재 : 세라믹사이딩

실내벽마감재 : 실크벽지/ 실내바닥마감재 : 강마루

창호재 : 미국식 3중 시스템창호

건축면적 : 106.39㎡(1층 : 70.46㎡, 2층 : 35.93㎡)

예상 총 건축비 : 178,500,000원(부가세 포함, 산재보험료 포함 / 설계비, 인허가비, 구조계산 설계비 별도)

설계비 : 4,800,000원(부가세 포함) / 인허가비 : 3,200,000원(부가세 포함)

구조계산 설계비 : 3,200,000원(부가세 포함) / 인테리어 설계비 : 3,200,000원(부가세 포함)

*건축비 외 부대비용 : 대지구입비, 가구(싱크대, 신발장, 붙박이장), 기반시설 인입(수도, 전기, 가스 등), 토목공사, 조경비 등


1층 평면도
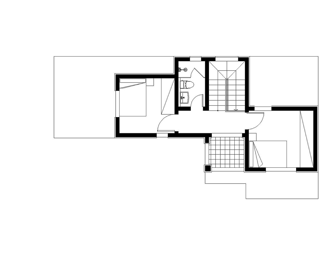
2층 평면도


이동혁 건축가 : 'ㄱ'자형 주택의 매력을 제대로 보여주는 평면구성이라고 생각합니다. 벽을 많이 나누기보다는 현관을 중심으로 오픈공간과 프라이빗한 공간을 구분해주고, 가려줄 곳과 개방감 있게 보여줘야 할 곳을 설계적으로 잘 풀어낸 주택이라 평하고 싶습니다.

임성재 건축가 : 소형 평수에서는 주방과 거실을 분리하기보다는 이번 주택처럼 하나의 오픈 공간으로 가져가는 것이 유리합니다. 30평 형대는 정말 작은 면적이라 생각하시면 됩니다. 아파트처럼 확장형 발코니 공간 등이 없기 때문에 어설프게 벽을 구분하기보다는 뚫어줄 곳은 확실히 뚫어 시각적 개방감을 극대화하는 것이 좋습니다.

정다운 건축가 : 외벽에 특별한 자재를 붙이지 않더라도 지붕의 모양만으로도 예쁜 디자인을 만들어 낼 수 있습니다. 비용은 절감하면서 우리 집만이 가지는 아이덴티티를 가져갈 수 있는 가장 손쉬운 방법이지 않을까 생각합니다.


"집이라는 본질적인 가치를 추구합니다." Design by 홈트리오(주)