노출콘크리트 전원주택 - 전라도

by 한글주택

현대의 미가 느껴지는 노출콘크리트 공법. 때문에 도시적이면서 차가운 세련미가 느껴지는 것이 대부분입니다. 하지만 오늘 소개할 노출콘크리트 전원주택은 따스함이 묻어나는 전원주택입니다.


[건축정보]

건축위치 전라남도 여수

건축공법 노출콘크리트

대지면적 540㎡ (163.35PY)

총 평수 144.97㎡ (43.85PY)

지상 1층 95.91㎡ (29.07PY)

지상 2층 49.06㎡ (14.84PY)


▶ 외장재

노출콘크리트/징크 처마/목재루바/평철난간/파벽돌


한적한 전라도의 한 마을에 시공된 노출콘크리트 주택 어딘가 따스함이 느껴지는데요, 바로 마당과 연결되는 데크, 현관 그리고 2층의 목재 루바가 따스함을 더하는 역할을 해줍니다. 특히나 노출콘크리트의 경우에는 콘크리트 본연의 질감을 느낄 수 있는 공법이자 외장재이므로 도시적인 세련미를 느낄 수 있지만 다소 딱딱하고 차가움이 느껴지는 매력을 갖추고 있지요. 하지만 해당 주택은 목재를 만나 따스함이 더해진 주택이랍니다.


더불어 2층의 목재 루바는 방향에 따라 테라스가 보이기도 하고, 보이지 않기도 하는데요, 어떠한 공간으로 꾸며졌을지 더욱 호기심을 유발시킵니다.


따스한 1층 거실

이제 코끝까지 차가운 겨울이 다가왔습니다. 하지만 이 주택의 거실은 따스함이 느껴지는데요, 넓은 창호와 가로형 창호를 통해서 따스한 햇살이 스며드는 것 같습니다.


따스한 침실

개인 공간인 침실은 벽지 컬러를 침실을 사용하는 분들의 취향이 담겨져 있다고 볼 수 있는데요, 어떠한 가구도 잘 어울리는 라이트그레이, 또 하나의 침실은 마음이 편안한 라벤터 컬러를 사용하였는데요, 이 침실은 테라스와 연결되는 형태로 개인 공간과 외보와의 소통이 잘 이루어 질 수 있도록 시공하였답니다.


2층 야외공간

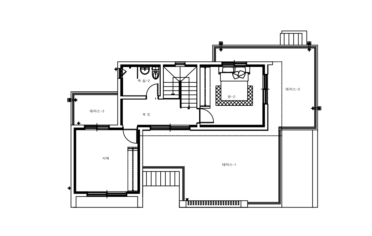
2층에 있는 테라스는 굉장히 넓은 공간이면서 노출콘크리트, 파벽돌, 목재루바를 한 곳에서 볼 수 있는 공간이지요. 다양한 벽의 형태 덕분에 더욱 특별함이 보여집니다. 더불어 천정 부분은 하늘을 바라볼 수 있는 투명 유리로 시공되었다는 점에서 하늘과 더 가까운 테라스, 특별한 테라스라고 볼 수 있겠습니다.


1층도면
2층도면

오늘은 한글주택에서 시공한 노출콘크리트 전원주택 사례를 둘러보았습니다.

현대의 느낌이 강한 외장재인 노출콘크리트, 하지만 따스함을 겸비한 주택으로 탄생하였는데요, 특히나 2층의 테라스는 누구든 부러워 하는 공간일 것 같습니다.


한글주택의 노출콘크리트주택이 궁금하신가요?

아래 링크를 통해서 상담 신청하시면 건축 컨설팅을 무료로 받아보실 수 있습니다.

http://bit.ly/2qsIwUg

keyword
매거진의 이전글순박함이 느껴지는 40평 전원주택