목조주택에서 '고향의 향'이 느껴지다.

by 한글주택

오늘 소개해드릴 주택은 목조주택으로 시공된 사례인데요, 고향의 향이 느껴지는 외관이 특징적인 주택입니다. 어딘가 모르게 익숙하지만 세련된 모습의 목조주택 완공사례를 소개합니다.


고향의 향이 느껴지는 목조주택
목조주택_15.jpg

[건축정보]

대지위치 경상남도 진주

건축공법 경량목구조

건축규모 2층

총 평수 99.12㎡

1층 평수 73.62㎡

2층 평수 25.50㎡


경량목구조로 시공된 이 주택은 경상남도 진주에 위치한 약 30평대 주택입니다. 외장재는 스타코플렉스로 시공되었으며 벽돌로 포인트를 주었습니다. 또한 지붕은 기와로 시공되어 조금 더 친숙하고, 고향의 향기가 느껴지는 외관으로 완성된 모습입니다.


해가 저무는 시간에는 주택 외관에 있는 조명 덕분에 주택이 더욱 돋보이는 모습입니다. 큰 창호를 통해, 앞 테라스를 통해 더욱 좋은 저녁시간, 가족들과의 시간을 보낼 수 있는 공간을 구성하였습니다. 이제 앞 마당의 조경이 완성되면 더욱 예쁜목조주택으로 거듭날 것 같습니다.


주방/거실
목조주택_8.jpg

1층 주방은 현관에 들어서면 바로 마주하게 되는 위치에 있습니다. 아주 여유로운 공간은 아니지만, 한정된 공간에 가장 알맞은 형태로 시공되었는데요, 'ㄷ' 형태의 조리대, 그리고 그 앞쪽으로 식탁을 두어 조리하는 공간과 식탁이 소통할 수 있는 형태로 구성되었습니다.


목조주택_7.jpg

그리고 가족분들이 가장 많은 시간을 보내가 되는 거실은 차분한 느낌으로 시공되었지만, 건축주님의 가구가 배치되면서 취향이 담겨진 모습입니다. 거실은 큰 창호가 있으며, 앞쪽 테라스와 소통할 수 있는 공간을 갖고 있습니다. 때문에 야외생활까지 여유롭게 누릴 수 있답니다.


침실/취미,옷방
목조주택_10.jpg
목조주택_12.jpg

개인 공간은 침실과 옷방 겸 취미공간으로 이루어져 있습니다.


2층 테라스
목조주택_11.jpg
목조주택_13.jpg

2층은 복도와 테라스가 있어 보다 넓은 시야를 집 내부에서도 확인할 수 있도록 하였습니다. 2층 테라스 공간에서는 가볍게 티타임을 즐기는 것은 물론이며, 여러 활동을 할 수 있다는 큰 장점이 있지요.


1층 도면
20191118_124502.png
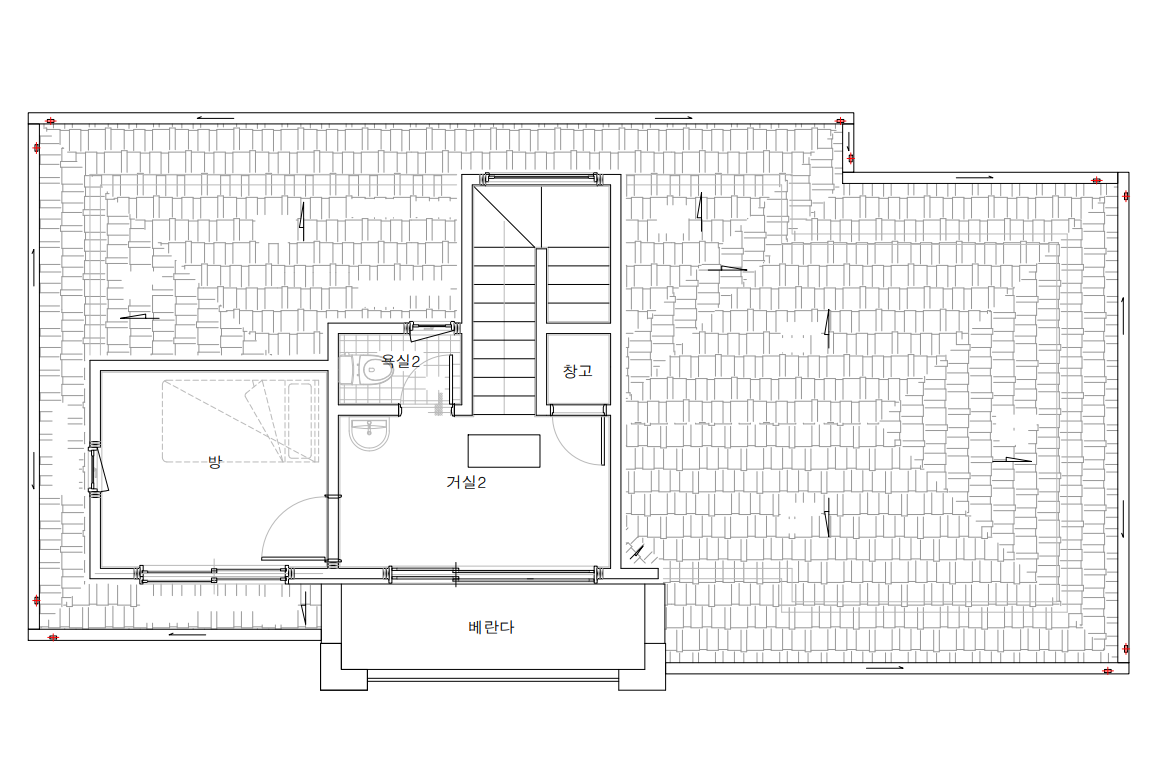
2층 도면
20191118_124515.png

오늘은 한글주택에서 시공한 목조주택 완공사례를 소개해 드렸습니다. 고향에서 느껴본 포근함을 느끼고 싶으신 분들이 계시다면 아래 링크를 통해서 무료 건축상담 받아보세요!


무료 건축상담 신청하기

http://bit.ly/2OxHP3T

keyword
매거진의 이전글우리가 원하는 예쁜전원주택 E01