서로를 위해 시공한 모녀의 목조주택

목조주택/30PY/경기도 파주

by 한글주택
목조주택_썸네일.jpg

모녀가 서로를 위해 시공한 집. 편찮으신 부모님을 고려하여 동선을 짧게 하고 밝은 기운이 항상 집 내부에 머무를 수 있도록 시공한 사례입니다. 경기도 파주에 시공된 전원주택을 지금 살펴보러 가보겠습니다!



서로를 위해 시공한
경기도 파주 전원주택, '모녀의 집'
목조주택_07.jpg

[건축공법]

대지위치 경기도 파주시

건축공법 목조

건축규모 1층

총 평수 30PY

1층평수 30PY


경기도 파주에 시공된 이 전원주택은 목조공법으로 시공되었으며 30평대입니다. 해당 주택은 기존에 있었던 주택을 철거한 뒤에 신축이 이루어진 사례인데요, 기존 주택에서는 창문이 있더라도 대지 자체가 낮았기 때문에 시야가 가려졌었지만, 신축을 통해 땅의 높이를 올렸기 때문에 탁 트인 시야까지 확보하였답니다. 덕분에 마당에 있는 큰 창호를 통해 따스한 채광이 항상 스미는 주택이라고 할 수 있겠지요.


목조주택_09.jpg 경기도 파주의 목조주택 외관

건축주님 또한 채광이 잘 들어 별도로 단열이 굉장히 우수하다고 말씀하셨는데요, 큰 창호 앞으로는 마당과 연결할 수 있는 데크와 포치가 있어 전원생활을 만끽할 수 있을 것 같습니다 : )


1층
목조주택_022.jpg 동선을 고려한 거실과 주방에서 따스함이 느껴진다.

거실과 주방은 동선이 짧아 가족 모두가 소통하기에 굉장히 적합한 형태로 시공되었습니다. 또한, 거실에 있는 큰 창호가 거실을 환하게 밝혀주고, 주방은 작은 창호가 많아 채광과 함께 공기 순환이 원활할 수 있도록 해줍니다.

채광과 어우러지게 아늑하면서 밝은 느낌의 인테리어는 건축주님의 취향이 담긴 가구들과 굉장히 조화로운 모습을 보여주고 있는데요, 아기자기하면서 화사한 분위기의 거실과 주방의 모습입니다.


목조주택_017.jpg 네이버 컬러로 포인트를 준 주방

주방은 'ㄱ'형태로 시공하였으며 네이비톤 하단부 수납장과 도어, 화이트톤 상단부 수납장으로 깔끔하면서 세련된 모습을 보여주고, 조리를 하는 근처 벽면은 타일로 시공하여 조리 시 어지럽혀지더라도 관리가 수월할 수 있도록 하였습니다. 조명을 비롯하여 네이비톤의 포인트로 감각적인 주방 인테리어 어떠신가요?


목조주택_018.jpg 아늑함, 편안함이 느껴지는 거실

감각적인 주방 인테리어와는 조금은 다르게 화사하면서 편안하고 아늑한 느낌이 와닿는 거실의 모습입니다. 가구 덕분에 아기자기함까지 느껴지는데요, 거실은 화이트톤 벽지와 화이트톤 도어로 어디 하나 끊김이 없기 때문에 보다 넓어보이는 효과를 주는 것 같습니다.


목조주택_013.jpg
목조주택_011.jpg
목조주택_010.jpg

개인 공간은 침실 3개로 구성되어 있습니다. 모든 개인공간에서도 따스한 채광을 받을 수 있도록 크고 긴 창문이 있는 것을 보실 수 있는데요! 모든 공간은 동일한 인테리어로 시공되었지만, 내부 가구들에 따라서 분위기가 사뭇 달라보여집니다.


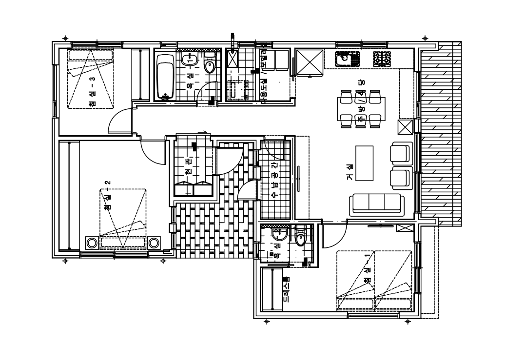
도면
목조주택_도면.png

오늘은 한글주택에서 시공한 모녀를 위한 파주 전원주택을 소개해 드렸습니다! 기존 주택보다 땅이 높아져 시야가 트였기 때문에 조망은 물론이며, 따스한 채광까지 느껴지는 파주 전원주택의 시공비용, 시공과정이 더 알고 싶으신가요? 아래 링크를통해서 지금 바로 상담 신청하세요!


전문상담 신청, 5초면 끝!

http://bit.ly/37nerFF

keyword
매거진의 이전글특징이 잘 살려진 인천 전원주택 시공사례 모음