친근함이 느껴지는 심플한 목조주택

목조주택/30PY/인천광역시

by 한글주택
목조주택_인천_01.jpg

오늘 소개할 주택은 친환경적인 공법, 경량목구조로 시공된 주택입니다. 어디서 만나본 것 같은 우리에게 친근함을 주는 이 주택의 외관. 하지만 주변 주택들보다 확연히 고급스러움을 갖추고 있어 시선이 멈추게 되는데요.

그럼 예쁜목조주택 시공사례 살펴보러 가보실까요?


친근함이 느껴지는
심플한 목조주택
목조주택_21.jpg

[건축공법]

대지위치 인천광역시 강화군

건축공법 경량목구조

총 평수 99.57㎡ (30.12PY)

1층 평수 71.85㎡ (21.73PY)

2층 평수 27.72㎡ (8.39PY)


경량목구조로 시공된 이 주택은 화이트 스타코플렉스와 붉은 지붕 마감재가 친근함을 느낄 수 있도록 해줍니다. 일반적으로 우리가 알고 있는 주택의 모습이면서 세련됨을 갖추고 있어 주변 주택들 중에서도 시선이 가는 주택이라고 할 수 있지요. 주택 외관과 내부 인테리어로 눈이 즐겁고, 아늑한 공간에서 가족들과 함께 전원생활을 하는 모습이 상상되지 않나요?

목조주택_19.jpg
목조주택_20.jpg
목조주택_22.jpg

집 마당에는 건축주님께서 관리하시는 작은 밭이 있는데요, 집 앞으로는 데크를 설치하여 밭을 가꾸고 쉬어갈 수 있는 쉼터가 되어줍니다.


1층
목조주택_1.jpg
목조주택_4.jpg

밝은 느낌이 감돌아 포근함을 느낄 수 있는 거실의 모습인데요, 안락한 분위기 속에서 가족들과의 도란도란 이야기가 꽃피울 것 같은 공간이 완성되었습니다. 벽지는 화이트톤으로 군더더기 없이, 바닥재는 네츄럴한 무늬가 담겨져 있어 어떠한 가구를 두어도 무난하게 어우러지는 인테리어입니다. 또한 마당과 연결되는 큰 창호. 전원생활에서 없어서는 안되는 요소이지요. 큰 창호가 있어 내부와 외부의 소통이 원활하도록 하였으며, 햇살이 주택 내부를 밝혀주는 모습입니다.


목조주택_3.jpg
목조주택_5.jpg

주방은 거실과의 동선이 짧은 편리한 구조로 시공되었습니다. 거실을 통해 스며드는 햇살이 주방까지도 밝혀주어 전체적으로 따스함이 느껴지지요. 또한, 주방에는 작은 창호와 뒷 마당으로 연결되는 문이 있어 주방에서 생겨나는 음식물. 냄새 등의 처리를 손쉽게 할 수 있겠습니다. 주방은 'ㄱ' 형태로 시공되었으며, 화이트톤의 벽지와 가구로 시공하여 깔끔한 느낌으로 시공되었습니다. 또한 수납장이 많아 조리기구들을 얼마든지 수납할 수 있어 건축주님들께서 선호하는 스타일입니다.


목조주택_6.jpg

침실은 붙박이장과 드레스룸이 함께있어 침실을 유용하게 사용할 수 있도록 하였습니다. 창호를 통해서 따스한 햇살이 내릴 수 있도록, 여러 옷들을 가지런히 수납할 수 있도록 하였는데요. 큰 붙박이장과 드레스룸은 하나의 공간에서 여러 기능을 할 수 있기 떄문에 건축주님들께서 좋아하시는 요소들이랍니다.


2층
목조주택_10.jpg
목조주택_9.jpg
목조주택_11.jpg


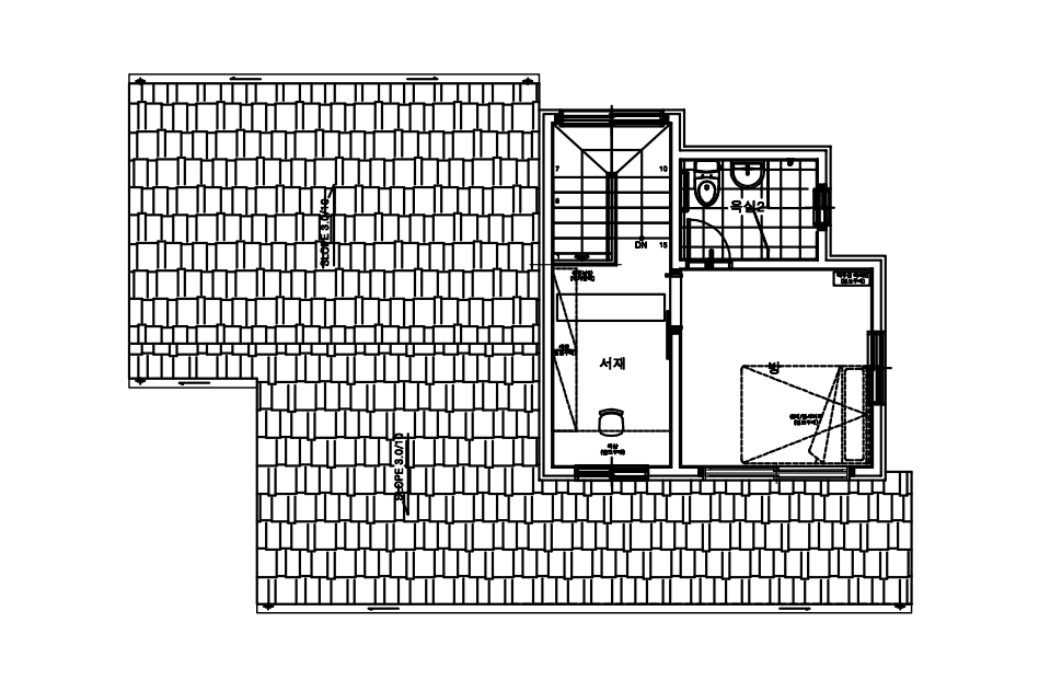
2층은 서재와 방, 욕실이 위치해 있는데요. 아주 넉넉한 공간은 아니지만 한정된 공간을 활용적으로 구성한 공간이랍니다. 서재와 침실의 구분은 미닫이 형태의 도어를 두어 공간을 최대한 확보할 수 있도록 하였으며. 서재와 침실 두 공간에 모두 창호가 있어 작은 공간이지만 밝은 기운이 감돌게 되었습니다. 서재공간과 침실 공간은 닮은 듯 다른 느낌으로 꾸며졌습니다. 서재공간은 조금 자유로우면서 개성있는 컬러감으로. 침실 공간은 깔끔하게 꾸며져 차분함이 느껴지지 않나요?


도면
1층 도면.png 1층 도면
2층 도면.png 2층 도면

오늘은 인천광역시에 위치한 2층 규모의 목조주택 완공사례를 알아보았습니다. 친근한 외관은 물론이며, 깔끔하여 오래 보아도 질리지 않는 이 주택에서의 전원생활은 어떤 느낌일지 기대되지 않나요? 한글주택의 목조주택 시공이 궁금하시다면 아래 링크를 통해서 지금 무료상담 신청하세요!


▶무료상담 신청하기◀


keyword
매거진의 이전글서로를 위해 시공한 모녀의 목조주택