단층 목조주택, 동화속에서 나온 집?

by 한글주택

오늘 소개할 주택은 단층 전원주택으로 시공된 목조주택 사례입니다. 단층으로 시공한 주택은 관리 측면에서 조금 더 편하답니다. 때문에 전원주택 관리 혹은 연세가 있으셔서 계단 사용이 불편하신 분들께서는 단층 주택을 선택해 주시는 것이 좋습니다. 주택 내부는 과연 어떤 모습을 하고 있을지 기대 됩니다.


동화 속에서 나온
단층 목조주택
단층 목조주택_03.jpg

[건축공법]

대지위치 경기도 가평군

건축공법 경량목구조

총 평수 103.19㎡ [31.21PY]

1층 103.19㎡ [31.21PY]


해당 주택은 경기도 가평에 시공된 사례입니다. 보시는 것처럼 푸르른 자연이 집 주변을 두르고 있는데요 이 주택은 31평, 단층으로 시공되었으며, 건축주님께서 아기자기하게 꾸며놓은 앞마당과 주택 외관과 어우러져 동화속에서 나올 것 같은 주택의 모습을 보여주고 있습니다.


K71A6512.JPG
단층 목조주택_04.JPG
[변환]단층 목조주택_05.jpg

화이트 스타코플렉스와 케뮤사이딩마감, 벽돌마감으로 시공하여 친근하면서도 깔끔한 느낌을 보여주고 있습니다. 또한 앞 마당으로는 작은 텃밭이 있어 수확의 기쁨까지도 느끼실 수 있겠습니다.


내부
K71A6412.JPG
K71A6418.JPG

이 공간은 서재 겸 거실로 구성된 공간입니다. 한 눈에 보아도 특별한 공간이라는 것이 느껴지지요. 한쪽 벽면은 창호를 둘러싸고 있는 책장이 있으며, 다른 벽면에도 창호가 있어 전체적으로 밝은 느낌을 줍니다.


K71A6482.JPG
K71A6479.JPG

이 공간은 서재 겸 거실로 구성된 공간입니다. 한 눈에 보아도 특별한 공간이라는 것이 느껴지지요. 한쪽 벽면은 창호를 둘러싸고 있는 책장이 있으며, 다른 벽면에도 창호가 있어 전체적으로 밝은 느낌을 줍니다.


K71A6389.JPG
K71A6365.JPG

복도를 지나면 만날 수 있는 작업실의 모습입니다 별도의 공간이지만 도어를 설치하지 않아 답답함이 느껴지지 않도록 하였습니다.


K71A6445.JPG
K71A6442.JPG

앞전에 보여드렸던 거실겸 서재에는 별도로 TV가 설치되어 있지 않아 가족들과의 이야기 시간, 독서만 집중할 수 있는 공간이였지요. 때문에 별도로 영화시청, 티비시청을 할 수 있는 공간이 마련되어 있습니다.


K71A6325.JPG
K71A6331.JPG

침실은 깔끔한 느낌이 감돌고 있는데요, 한쪽 벽면을 파란색으로 하여 포인트까지 준 모습입니다.


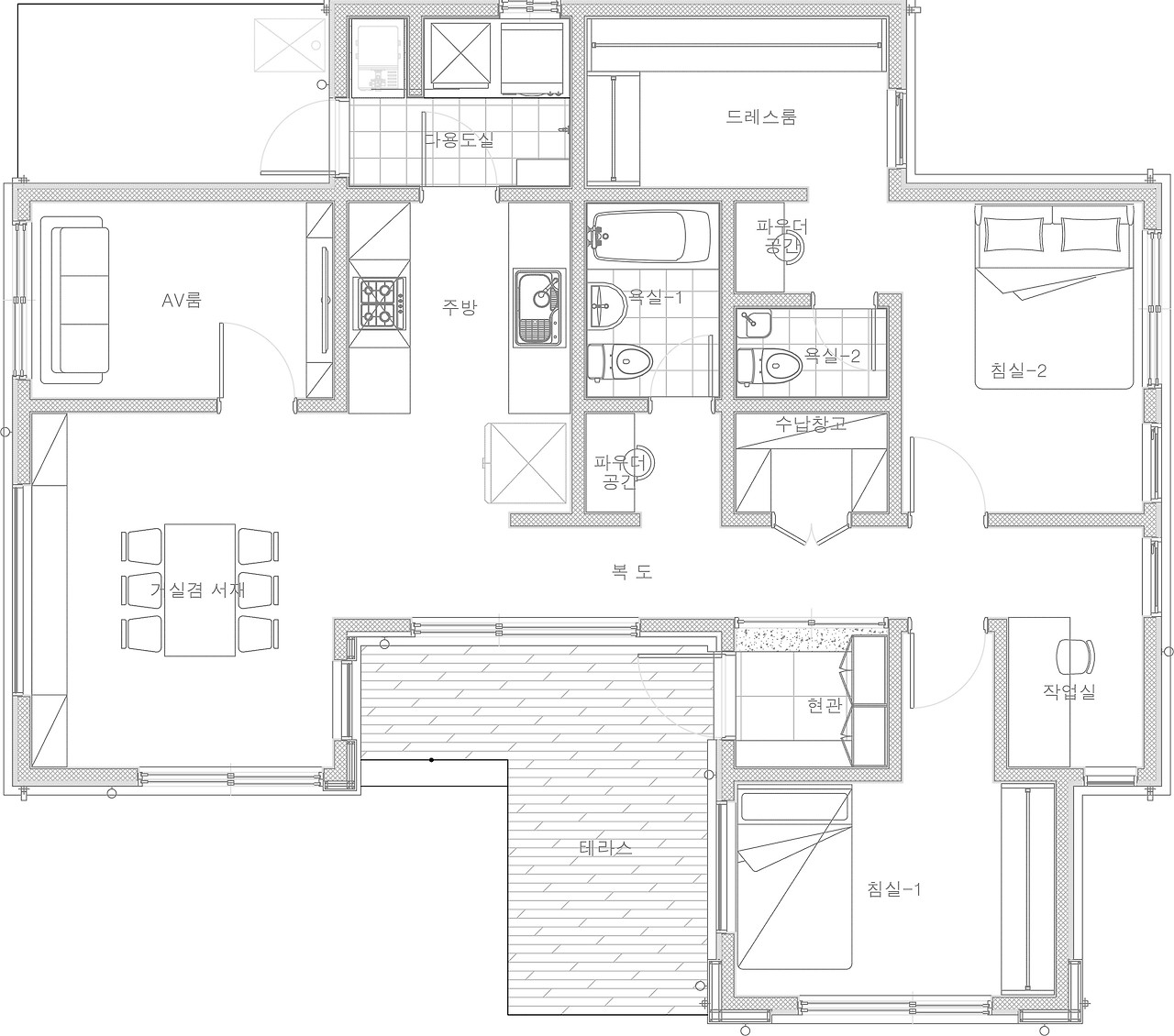
도면
도면.jpg



오늘은 단층으로 시공된 목조주택을 소개해 드렸습니다. 특히나 해당 주택은 풍수적으로도 완벽한 주택이라고 하니, 오늘 소개드린 주택을 눈여겨 보시면 보다 좋은 건축을 하실 수 있을 것 같습니다. 한글주택의 목조주택이 궁금하시다면 아래 무료상담을 통해서 상담 신청하시면 전문상담 도와드리겠습니다.


한글주택 상담 신청하기

keyword
매거진의 이전글숲세권에 시공된 전원주택 사례