평화로움이 느껴지는 가평 전원주택

by 한글주택

지금처럼 외출이 제한되는 요즘에는 전원생활이 조금 더 눈길을 받고 있습니다. 아무래도 넓은 마당이 조성되어 있다면 지금처럼 외출이 제한되더라도 조금 더 자유롭다는 점. 이웃과 이웃 사이의 거리가 어느정도 확보되기 때문에 프라이버시까지 보장된다는 장점, 우리 가족들만의 공간이 있다는 큰 장점이 있지요. 더불어 신축으로 진행하게 된다면 우리가족이 원하는 공간을 그대로 만들 수 있어 조금 더 만족스러운 전원생활이 가능하겠지요 : )


오늘 소개할 주택은 경기도 가평에 시공된 전원주택인데요, 여유로움과 평화로움이 느껴지는 주택으로 집 외부 내부 모두 건축주님의 세련된 취향을 그대로 담아내었습니다.



평화로움이 느껴지는
30평대 가평 전원주택
가평전원주택02.jpg

[건축정보]

건축위치 경기도 가평군

건축공법 콘크리트

1층평수 65.20㎡ (19.72PY)

2층평수 42.75㎠ (12.93PY)

총 평수 107.95㎡ (32.65PY)


가평전원주택01.jpg
가평전원주택04.jpg

오늘 소개하는 주택은 2층 구묘의 30평대 가평전원주택입니다. 이 주택은 보는 각도에 따라서 분위기가 조금 다른 느낌을 주는데요, 도시적인 단독주택의 모습이 보였다가, 여유로움이 느껴지는 전원주택으로 보여지기도 합니다. 외장재는 벽돌과 스타코플렉스를 사용하여 다채로운 느낌을 줄 수 있도록 하였습니다.


1층에는 넓은 마당이 있어 자연을 있는 그대로 느낄 수 있는 가평 전원주택. 이 마당은 휴식처, 놀이공간, 취미공간을 제공해 줄 것 같습니다. 또한 1층 뿐만 아니라 2층에도 야외공간인 테라스가 자리하고 있습니다. 한눈에 보아도 여유롭고 평화로운 하루하루를 보낼 수 있을 것 같지요?



1층내부
가평전원주택_내부2.jpg
가평전원주택_내부3.jpg

가평 전원주택의 내부 모습입니다. 현관으로 내부에 들어서면 가장 먼저 보여지는 거실, 그리고 조금 더 안쪽으로는 주방이 위치하고 있습니다. 1층은 거실과 주방과 같은 가족 공용공간으로 이루어져 있으며, 벽면이 벽돌로 마감하여 포인트가 되어줍니다. 일반적인 벽지가 아니기 떄문에 조금 더 트별하고 질리지 않는 인테리어이지요.


가평전원주택_내부5.jpg
가평전원주택_내부11.jpg

주방의 전경입니다. 거실과 자연스럽게 연결되며 주방은 'ㄷ'형태로 시공되어 조리할 때 편안한 동선이 나올 수 있도록 하였으며, 조명이 포인트가 되어 레스토랑의 느낌도 조금 느껴지는 것 같지 않나요?


2층내부
가평전원주택_내부29.jpg

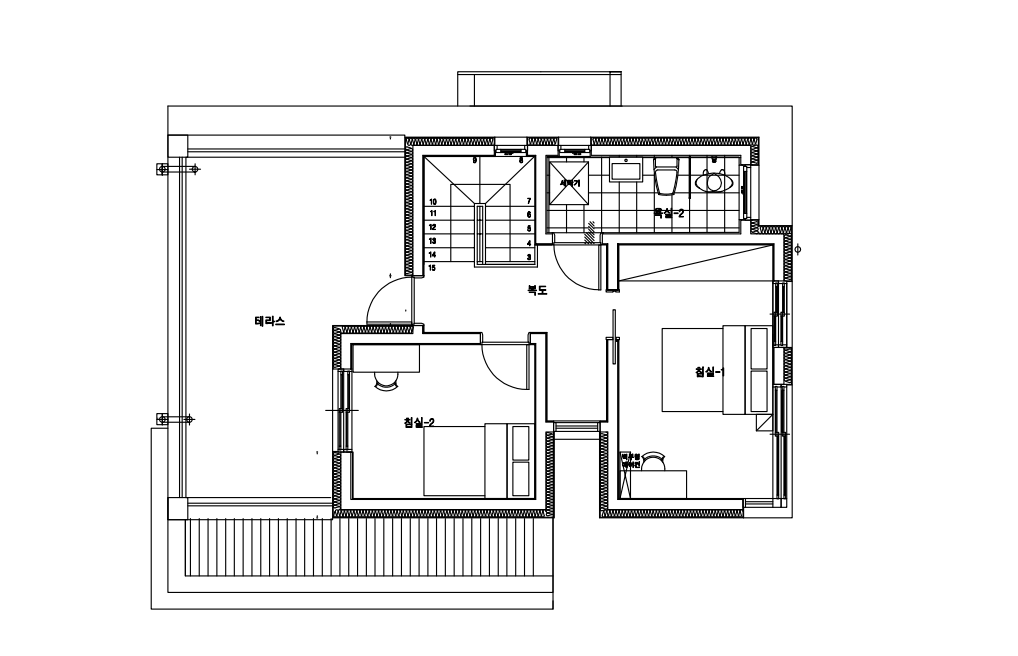
계단실을 오르면 개인 공간과 넓은 테라스가 위치해 있습니다.


가평전원주택_내부21.jpg
가평전원주택_내부23.jpg

한 벽면에 창호가 위치하고 있어 외부의 햇살이 침실 곳곳에 스며들 수 있도록 하였습니다. 건축주님의 취향이 담긴 침대와 굉장히 잘 어울리는 모습인데요, 이러한 침실에서 가평의 아름다운 풍경을 볼 수 있겠습니다.


가평전원주택_내부33.jpg

또한 외부로 나가면 멋진 테라스가 자리하고 있어 가평의 풍경을 한 눈에 담을 수 있는 멋진공간이 되어줍니다.


도면
1층 도면.png 1층도면
2층 도면.png 2층도면

오늘은 한글주택에서 시공한 가평 전원주택을 살펴보았습니다. 30평대 주택으로 많은 분들이 선호하시는 규모인데요, 1층 앞마당은 넓어서 많은 활동을 할 수 있으며, 원하는 공간을 모두 구성한 이 집을 자세히 알고 싶으시다면 아래 링크를 통해서 상담 신청하세요!


상담 신청하기

keyword
매거진의 이전글부모님을 위한 전원주택 시공시 고려할 사항들