한옥을 만날 수 있는 목조주택

by 한글주택

동네에서는 하얀 대문 집이라고 불리는 이 집이 오늘의 주인공입니다. 이 주택은 차분함이 느껴지면서 군더더기가 없는 모습입니다. 그런데 이 주택에는 한옥의 요소를 접목시켰다고 하는데요! 현대식 목조주택과 한옥의 만남! 어떤 모습일지 바로 확인해보도록 하겠습니다.


'하얀 대문 집'
한옥 목조주택

[건축정보]

대지위치 전라북도 군산시

건축공법 목조주택

건축규모 2층

총 평수 156.9㎡ (47.46PY)

1층 평수 116.40㎡ (35.21PY)

2층 평수 40.50㎡ (12.25PY)


동네에서는 하얀 대문 집이라고 불리는 이 집이 오늘의 주인공입니다. 이 주택은 차분함이 느껴지면서 군더더기가 없는 모습입니다. 그런데 이 주택에는 한옥의 요소를 접목시켰다고 하는데요! 현대식 목조주택과 한옥의 만남! 어떤 모습일지 바로 확인해보도록 하겠습니다.


세련된 느낌 보다는 포근하면서 편안한 모습을 보여주는 이 목조주택은 40평대로 시공된 2층집입니다. 외장재는 하얀 스타코플렉스로 시공하였으며, 주택의 하부는 벽돌로 마감하여 클래식한 느낌을 줍니다. 'ㄱ'형태로 시공된 이 주택 앞으로는 직사광선 보다는 어느정도 그늘이 질 수 있어 편안하게 휴식을 취할 수 있겠습니다.


동네에서는 하얀 대문 집으로 불린다.


내부

현관을 들어서면 보여지는 복도의모습입니다. 현관에 들어서자마자 우측에는 욕실, 침실 2개가 있으며, 앞 마당과 집을 연결해주는 공간이 있는데요, 이 집의 특징이자 굉장히 특별한 공간이라고 할 수 있습니다. 외부 날씨에 영향을 받지 않는다는 큰 장점이 있으며, 이를 통해 외부의 밝은 빛이 복도를 밝혀주는 것은 물론이며, 공기의 순환이 원활할 수 있도록 해줍니다.


주택 내부와 외부를 연결해주는 이 테라스 공간은 우리나라 한옥의 공간에서 영감을 얻은 '봉당'느낌의 공간입니다. 테라스의 역할도 하지만 실내이기 때문에 식사공간 티타임 공간으로도 얼마든지 활용이 가능하겠습니다. 이 공간은 폴딩도어로 시공하여 집 내부와 연결성을 또 한번 고려한 것이 느껴집니다.


복도를 따라 들어가면 만날 수 있는 주방. 그리고 주방에 있는 가벽 뒤로는 거실이 있으며, 이 주방과 거실이 소통할 수 있도록 창을 낸 것이 특징입니다. 주방은 깔끔한 그레이&화이트의 조합으로 시공하였는데요 펜던트형 조명으로 포인트를 주었습니다.


주방과 분리가 되어 별도의 거실로 보여지지만, 가벽에 창을 내어 소통을 원활하게 할 수 있는 이 거실에는 툇마루를 연상하게 만드는 공간이 있어 가족들과의 화목한 시간을 보낼 수 있을 것 같습니다. 다른 주택에서는 찾아볼 수 없는 것으로 건축주님의 뚜렷한 개성과 이 집의 특징이 잘 보여지지요. 이 외에도 벽면에는 수납을 할 수있는 가구를 시공하였으며, 화이트&우드톤의 조합으로 밝고 네추럴한 느낌을 느낄 수 있습니다.


그리고 그 옆에 있는 이 공간. 앞서 보여드렸던 주방에서도 살짝 보여진 공간인데요! 이 곳은 AV룸입니다. 보통은 TV를 시청하는 공간이자 가족 공용공간이 바로 '거실'이지만, 건축주님께서는 가족이 오로지 함께 소통하고 휴식을 취하는 공간과, TV를 시청하는 공간이 별도로 분리되고자 하셨기에 공간을 분리한 것이지요. 건축주님의 라이프스타일에 따라 분리된 공간입니다.


2층으로 오르면 욕실/침실겸 작업실이 자리하고 있는데요, 2층의 분위기 또한 1층과 동일하게 화이트&우드톤으로 통일감이 느껴집니다.


건축주님의 작업실은 창문이 바라보는 형태로 자리하고 있어 바람이 불면 서로 맞바람칠 수 있도록 하여 공기순환에 원활하고 햇살도 잘 들어와 항상 밝은 공간이 유지될 수 있도록 하였습니다. 천정의 조명 또한 LED 천정 조명과, 작업에 몰두할 수 있도록 레일 조명을 달았는데요, 벽지와 동일한 화이트컬러로 시공하여 센스있는 침실, 작업실로 완성되었습니다.


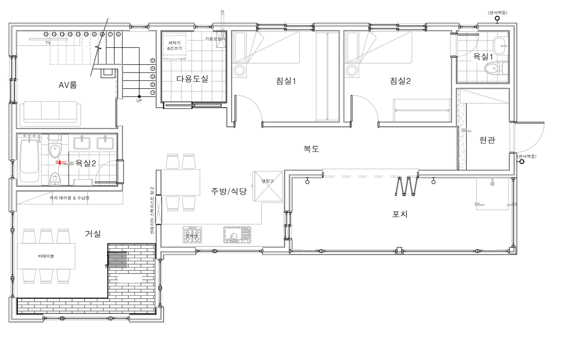
도면
1층도면
2층도면

오늘은 전라도에 시공된 사례를 소개해드렸습니다. 현대 주택이지만 한옥의 요소가 담긴 목조주택을 시공하고 싶으시다면 종합건설 한글주택에서 지금 바로 상담 받으세요!


종합건설 한글주택,

상담 신청하기 (클릭)

keyword
매거진의 이전글서울에 시공된 목조 협소주택!