노출콘크리트 주택의 매력이 느껴지는 완공사례

by 한글주택

오늘 소개할 주택은 현대적인 감각을 느낄 수 있는 노출콘크리트 주택으로 시공된 사례입니다. 곧게 뻗은 자태 덕분에 시선이 머무르는 집인데요, 심플하지만 집 자체에서 감각이 느껴지는 50평대 주택이랍니다. 그럼 지금 바로 살펴보러 가보실까요?


곧게 뻗은 노출콘크리트 전원주택

[건축정보]

건축위치 충남 예산

건축공법 노출 콘크리트

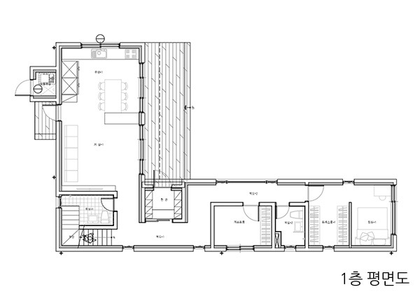
총 평수 165.86㎡ (50.17py)

1층 평수 100.70㎡ (30.46py)

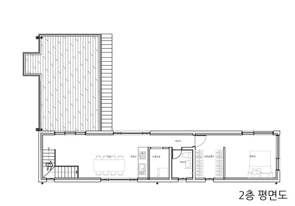
2층 평수 65.16㎡ (19.71py)


50평으로 시공된 이 주택은 긴 두 개의 매스와 짧은 매스가 만난 형태로 곧게 뻗은 외관이 인상정입니다. 1층에는 자갈 마당과 연결되는 우드 데크, 그리고 큰 창호가 자리하고 있어 1층 외부-내부의 연결성이 좋으며 2층에도 야외와 소통하는 공간이 크게 마련되어 있어 모든 공간에서 야외와의 소통이 원활하도록 하였습니다.


내부

1층의 큰 창호가 있는 공간 안으로는 거실과 주방이 자리하고 있는데요, 넓은 창호 덕분에 아침에는 가장 먼저 밝아지는 공간이 되겠습니다. 두 공간은 동선이 짧은데요, 이는 가족 공용공간이기 때문에 같은 위치에 두어 어디에 있더라도 가족 모두가 소통할 수 있도록 하였습니다.


침실은 하나의 공간에 가벽이 있어 분리된 형태임을 확인할 수 있는데요, 본래대로라면 침실과 드레스룸으로 계획되었지만, 필요에 따라서는 독서공간, 취미공간과 침실의 조합으로도 사용이 가능하겠습니다. 이러한 형태는 아파트나 기존 주택에서는 찾아보기 힘든 형태로, 건축주님의 라이프 스타일을 그대로 담아두었지요 : )


2층에는 주방이 하나 더 자리하고 있는데요. 근래 2층 주택을 시공하시는 건축주님들께서 2층에도 작은 주방을 두어 홈 bar처럼 사용하거나 부모세대와, 자녀세대가 머무르되 프라이버시를 조금 더 지키기 위하여 하나의 작은 주방을 더 두는 경우가 많아졌습니다. 이 주방은 아주 작은 규모가 아니기 때문에 자녀 세대가 머무르는 것도 적합해 보이네요^^


2층에 자리한 야외 공간입니다. 이 공간은 루프탑으로 꾸며 여유로운 티타임을 갖거나, 하루를 마무리 하기 전 맥주 한 잔을 하더라도 정말 좋은 장소겠지요. 이 외에도 여러 활동을 할 수 있어 많은 분들께서 전원주택을 시공할 때 꼭 구성하고자 하는 공간이기도 합니다.


도면

오늘은 노출콘크리트주택 50평 사례를 알아보았습니다. 두 개의 매스가 만나 곧게 뻗은 자태가 매력적인 집,

더 자세히 알고 싶으신가요? 무료상담 신청을 통해서 지금 바로 컨설팅 받으세요!


종합건설 한글주택의 아름다운 집짓기

상담 바로가기


keyword
매거진의 이전글한옥을 만날 수 있는 목조주택