한글주택 2년 생활한 실제 후기 (시공비, 단열 등)

by 한글주택

안녕하세요! 한글주택입니다. 오늘 함께 랜선집들이를 할 주택은 한글주택에서 시공을 하시고 2년동안 거주하고 계시는 건축주님의 집인데요! 노출콘크리트로 시공되어 멋있는 외관은 물론이며, 단순히 먹고자는 집이 아닌, 힐링을 할 수 있는 공간으로 시공된 집을 시공한 사례입니다.


아, 혹시 입주 직후 인터뷰가 궁금하신 분들은 아래 링크를 통해서 1편을 시청해주세요!


▼입주 후 주택 소개&건축주님 인터뷰 Ver.1

https://brunch.co.kr/@waldheim/26


한글주택의 전원주택,
2년 살아보니...

건축공법 철근콘크리트구조

총평수 190.84㎡ (57.73py)

지상 1층 133.41㎡ (34.31py)

지상 2층 77.43㎡ (23.42py)


이 주택은 노출콘크리트로 지어진 펜션처럼 멋진 주택인데요, 약 58평으로 시공되어 가족들이 생활하기에 너무나도 넉넉한 공간들로 구성이 되어 있습니다. 특히나 1층 공간은 거실-주방-마당의 소통에 가작 심혈을 기울여 시공했습니다.


한글주택, 전원주택-생활,-2년-후기_002.gif

건축주님과 가족분들은 정말 '멋있는 집'에 사는 것이 꿈이라고 하셨는데요, 국내 전원주택 시공업체를 모두 조사하고 꼼꼼하게 따져 가장 아름다운 주택을 짓는 한글주택과 계약을 하시게 되셨다고 하셨습니다. 단순히 먹고 자는 것에서 끝나는 전원생활이 아닌, 원한다면 언제든 펜션처럼 고기를 구워먹을 수 있고, 바깥 풍경을 바라보며 휴식을 취할 수 있는 곳에서 살고자 하였으며, 현재 그러한 집에 살고 계시기에 너무나도 행복하다고 말씀하시는 건축주님!


한글주택, 전원주택-생활,-2년-후기_003.gif

전원주택 시공 및 전원생활에 들어간 비용은 많은 분들이 궁금해 하실텐데요, 건축주님께서는 기존의 주택을 가지고 계셨기 때문에 토지 비용은 제외하고 약 4억정도의 예산을 설정하셨다고 합니다. 하지만 막상 집을 시공하니, 욕심이 생겨 더 멋있는 조경, 파라솔, 웨버, 창고 등을 구매하여 약 3천만원 정도가 오바되었다고 하네요! 예산 부분은 어떻게 집을 짓고, 어떠한 제품으로 시공하며, 어떤 것을 구매하느냐에 따라서 천차만별이기 때문에 대략적인 금액으로만 생각해 주시면 좋겠습니다 : )


한글주택, 전원주택-생활,-2년-후기_023.jpg

건축주님의 지인분들께서 아직도 건축주님 전원주택으로 자주 방문을 하신다고 하는데요, 아직도 너무 집을 잘 지어서 짜증이 난다고 하시는 지인분이 계실 정도로 사진보다 더욱 멋진 주택이라고 합니다. 또한, 주변 마을 분들께서 산책을 하시다가 건축주님의 집을 보고 놀라시기 일쑤라고 합니다. 건축주님의 집은 윗쪽에 위치해 있는데요, 아랫쪽으로는 노후된 빌라, 주택이 많아 이렇게 멋있는 주택이 나타나면 다들 놀라고 가신다고 합니다!


한글주택, 전원주택-생활,-2년-후기_016.jpg
한글주택, 전원주택-생활,-2년-후기_017.jpg
거실 - 주방 - 마당 / 어느 공간에 있더라도 소통을 할 수 있는 소통이 장이 되어주는 1층
한글주택, 전원주택-생활,-2년-후기_024.JPG
한글주택, 전원주택-생활,-2년-후기_021.jpg
한글주택, 전원주택-생활,-2년-후기_015.jpg
마당쪽 창호와, 주방 벽면 창호를 통해서 공기 순환에 용이하며, 주방 가구는 'ㄷ' 형태로 하여 조리 할 때 동선이 좋다.
한글주택, 전원주택-생활,-2년-후기_011.jpg
한글주택, 전원주택-생활,-2년-후기_012.jpg
깔끔하게 시공된 침실 전경
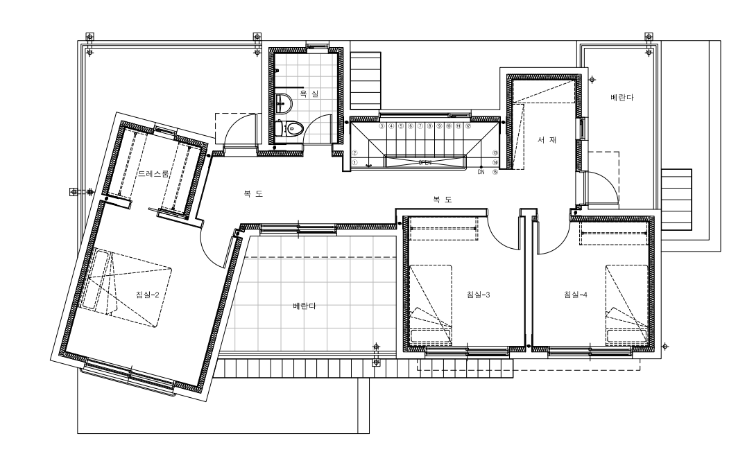
도면
1층 도면.png 1층 도면
2층 도면.png 2층 도면

오늘은 한글주택에서 시공한 전원주택의 2년 리얼 후기를 보여드리는 시간을 가져보았습니다. 건축주님께서 행복한 전원생활을 하고 계시니, 저희 한글주택 또한 건축주님에게 감사한 마음과 동시에 너무 뿌듯한데요!

앞으로도 신뢰가는 종합건설 한글주택이 되겠습니다.


궁금한 점이 있으시면 상담 신청을 클릭 후 무료상담 받으세요 : )

무료상담 신청하기

keyword
매거진의 이전글모던 스타일 50평 전원주택 랜선집들이