타운하우스 중심에 위치한 세련된 경기도 용인 단독주택

by 한글주택

안녕하세요 한글주택입니다. 장기화된 코로나 이슈로 인해서 집은 단순한 쉼의 기능을 넘어서 업무, 여가 등 복합적 기능을 하고 있습니다. 이러한 변화에 따라서 타운하우스에 대한 관심도 많아질뿐더러 전원주택시공과 단독주택시공에 대한 관심이 높아지고 있습니다. 오늘은 경기도 용인에 위치한 단독주택의 사례를 통하여 건축의 대한 정보를 아낌없이 보여드리겠습니다. 자 그럼 소개해드리겠습니다!

수정1.jpg 용인 60평 전원주택 실제 사례
부모님을 위한 8남매의 선물 용인 60평 단독주택

건축 위치 경기도 용인

건축공법 철근콘크리트

건축규모 지상 2층 +주차장

총 평수 198.34㎡(60py)

주차장 49.56㎡(15py)

지상 1층 92.56㎡ (28py)

지상 2층 56.19(17py)







경기도 용인 아기자기한 타운하우스 중심에 자리 잡은 이 단독주택은 고생하신 부모님을 위한 8남매의 선물입니다. 오래된 주택을 허물고 새롭게 지은 콘크리트주택인데요. 깔끔한 스타코플렉스 마감 외관에 적삼목 사이딩으로 꾸며진 ㄷ자형의 매스 구조를 입혀 보는 재미가 있는 외관으로 탄생하였습니다. 이와 함께 롱 브릭 타일을 사용하여 클래식하고 세련된 멋을 자랑하고 있습니다.

수정3.jpg 적삼목 사이딩과 롱 브릭 타일이 돋보이는 외관

콘크리트 주택의 평균 시공기간은 1년입니다. 해당 단독주택 또한 마찬가지인데요. 콘크리트 자재의 특성상 양생 작업이 필요하며 기후의 영향을 받기 때문에 목조주택에 비해 시간이 조금 더 소요됩니다. 시간을 투자한 만큼 튼튼하고 견고한 것이 콘크리트의 강점이지 않을까요?


1F INTERIOR
수정4.jpg
수정5.jpg

1층은 거실과 주방/식당 2개의 침실과 2개의 욕실로 구성되어 있습니다. 현관을 기준으로 좌측은 공용공간으로 우측은 개인 공간으로 이루어져 있습니다. 1층을 둘러볼 때에 가장 기억에 남는 부분 중 하나는 넓게 시공이 된 가족들의 공용공간입니다. 요즘은 흔히 볼 수 없는 8남매 대가족이기 때문에 가족들이 다 모였을 경우를 생각하셔서 해당 건축주님께서는 공용공간을 보다 넓게 계획하셨습니다.

수정6.jpg

어머니가 주로 사용하시는 주방 공간은 어머니에 대한 8남매의 배려가 느껴집니다. 다용도실을 주방 가까이 밀접하게 배치하여 내외부 공간의 이동이 편리하도록 하였고 거실과 마주 보고 있는 주방/식당 공간은 화이트와 그레이의 조화로 모던하면서 심플한 느낌의 오픈형 공간으로 시공되었습니다.

수정7.jpg
수정8.jpg

해당 건축주님의 어머니께서는 오래된 주택을 떠나 아파트 생활을 원하셨지만 건축주님은 추억이 가득한 집을 떠나면 8남매의 자라오고 고스란히 남겨져있는 추억들이 사라질 것만 같은 생각에 부모님을 설득하여 용인 타운하우스 중심에 단독주택시공을 진행하셨다고 합니다.


2F INTERIOR
수정9.jpg

용인 단독주택의 2층에는 자녀들과 손주들을 위한 공간으로 꾸며져 있습니다. 2층으로 향하는 계단을 오르면 작은 가족실이 위치하고 있고 가족들이 모일 수 있는 공간을 별도로 마련하여 가족 구성원들이 잠이 드는 늦은 시간에도 함께 시간을 보낼 수 있도록 조그마한 공간을 만드셨습니다.

수정16.jpg
수정10.jpg

코로나 사태로 비대면 수업이 이루어지는 요즘에 8남매의 아버지께서는 국악 자격증을 취득하셔서 집에서 소규모의 수강생들을 가르치는 일을 하신다고 합니다. 그래서 수강생들이 방문했을 때에 그분들을 위한 편의시설을 갖춰지기를 희망하셨습니다. 이를 위해 2층 복도 끝자락에는 조그마한 편의시설을 시공하여 가족과 수강생 모두를 배려한 설계가 완성되었습니다.

수정11.jpg 2층 침실 코너창 인테리어
TERRACE
수정12.jpg 1층 주차장 및 테라스

용인 단독주택의 빼놓을 수 없는 포인트중 하나는 바로 테라스입니다. 1층과 2층 모두 별도의 테라스 공간이 탄생하였는데요. 먼저 1층 테라스는 주차장 공간을 활용하여 만들어졌습니다. 해당 전원주택의 주차장은 15평으로 꽤 넓은 평수로 시공되었는데 차량 한 대만 주차 가능하게 주차장을 배치하고 나머지 공간은 전부 테라스로 구성하였습니다. 지붕만 있는 테라스가 아닌 통유리로 사면을 감싸 기후의 영향을 받지 않고 자유롭게 이용할 수 있도록 구성하였습니다. 또 돋보이는 부분 중 하나는 1층 테라스는 거실에서 바로 통하도록 시공한 점입니다. 주방에도 테라스와 접하는 창문을 시공하여 테라스에서 모여 함께 식사를 할 때 음식을 쉽게 나를 수 있도록 시공하였습니다.

수정13.jpg 2층 야외 테라스의 모습

2층 테라스 또한 넓게 시공되었습니다. 1층과는 다르게 벽을 따로 시공하지 않아 항상 맑은 공기로 가득 채워져 있고 따뜻한 햇살과 시원한 공기를 느낄 수 있는 탁 트인 개방감이 있는 공간으로 탄생하였습니다.

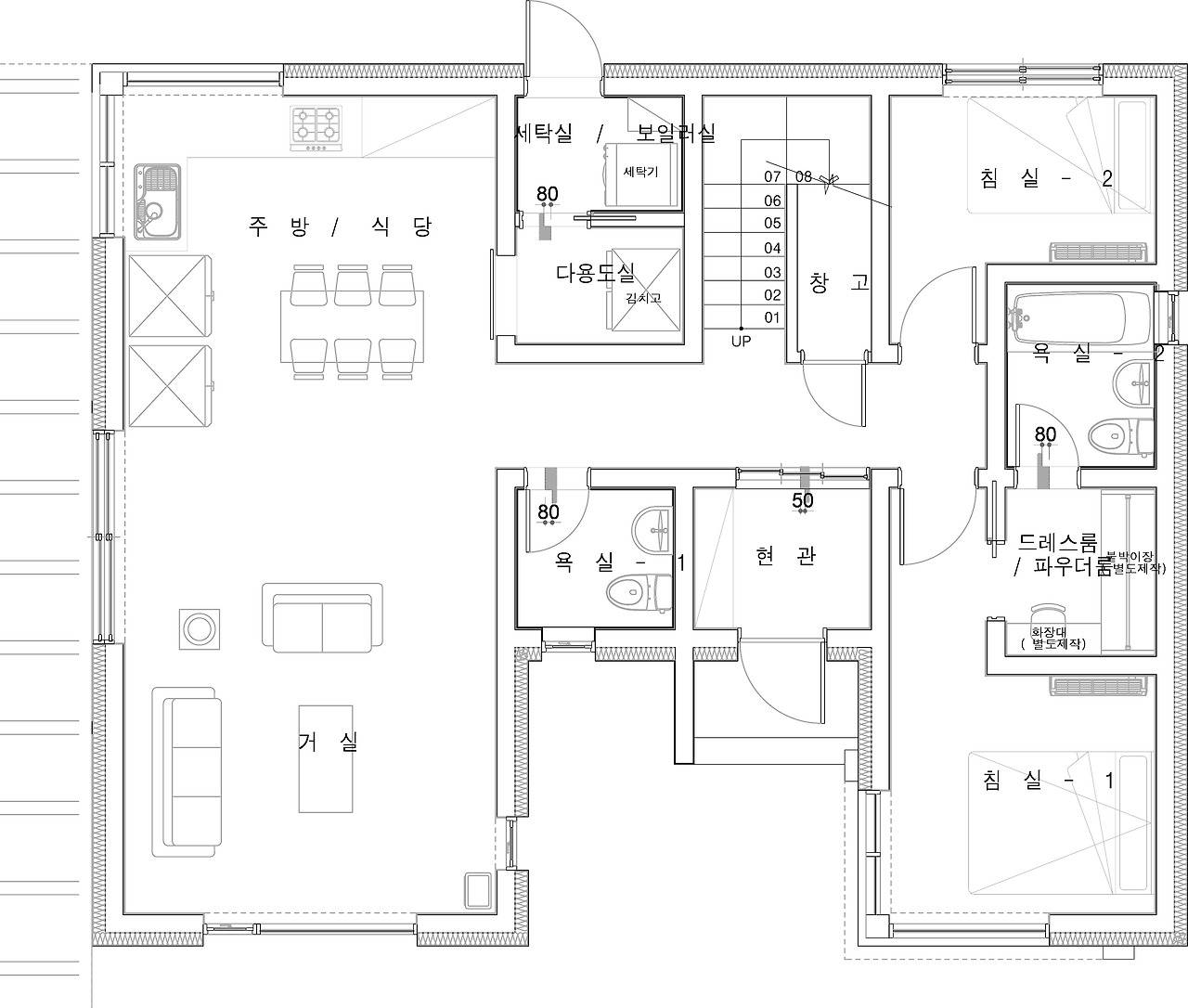
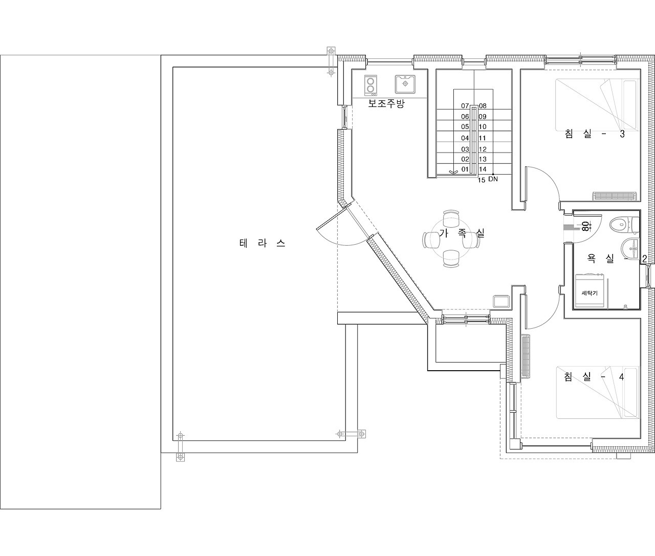
PLAN
수정14.jpg 1층으로 설계된 도면
수정15.jpg 2층으로 설계된 도면


타운하우스에 위치한 용인 단독주택은 외관으로써도 세련된 멋과 모던함이 느껴지고 탄탄한 내부의 구성도 돋보입니다. 단독주택 건축비용 중 순수 건축비는 약 2억 6천만 원 정도였다고 합니다. 하늘 높은 줄 모르고 올라가는 아파트의 매매 가격과 비교해 보았을 때 단독주택건축이 충분한 메리트가 있지 않을까요?


오늘은 타운하우스 중심에 위치한 8남매의 선물이었던 용인 단독주택 실제 사례에 대해 알아보았습니다. 전원주택시공비용 또는 단독주택 건축비용 등 자세한 내용이 궁금하시다면 하단 링크를 통해 무료상담 진행해 보시는 것을 추천드립니다.

무료상담 신청하기 ▶ https://bitly.ws/32M8V


keyword
매거진의 이전글전원주택가격에 대한부담을 줄일  수 있다면?