소소한 전원주택 외관, 감각적인 인테리어

한글주택 Brunch E15[인천광역시]

by 한글주택

Brunch E15

많은 분들이 간직하고 계시는 전원생활의 꿈,

이 글을 읽고 계시는 분들은 어떤 주택을 시공하고 싶으신가요? 오늘 소개할 주택은 겉 외관은 소소하지만 창문으로 특징을 주고, 감각적인 외관의 전원주택 완공사례인데요, 외관의 멋과 인테리어의 멋이 조화를 잘 이루는 사례 중 하나입니다.


096A1385.JPG

[건축정보]

건축위치 인천광역시

건축공법 콘크리트

규모 지상 2층

총 평수 32.96PY (108.96㎡)

1층 20.62PY(68.16㎡)

2층 12.34PY(40.80㎡)


철근콘크리트로 지어진 화이트톤의 심플한 전원주택은 인천광역시에 위치해 있습니다. 심플하지만 창호가 곳곳에 크고 작게 자리하고 있어 내부에서 바라보는 외부 풍경은 어떨 것인지 벌써부터 기대가 됩니다. 외관은 사실 건축주님의 성향에 따라 굉장히 크게 좌우되기도 하는데요, 해당 주택은 화이트 스타코플렉스로 마감하였으며, 많은 창호의 라인을 대비되는 블랙으로 시공하여 구분감이 있어 너무 밋밋하지 않은 모습으로 완공되었습니다.


K71A1584.JPG
K71A1596.JPG

화려하고 톡톡 튀는 개성을 지닌 주택은 아니지만, 심플하고 언제 보아도 질리지 않는 주택이지요. 또한 별도의 추가 외장재가 필요하지 않아 금액적인 부분으로도 조금은 더 합리적이라는 생각도 들 것이구요. 단, 해당 전원주택은 집 내부 인테리어가 굉장히 특별하다고 하는데요, 어떤 부분이 특별한지 바로 살펴보러 가볼까요?


096A1309.JPG
096A1325.JPG

들어서면 느껴지는 것, 무엇이 있으신가요? 저는 따스하면서 카페같은 느낌의 인테리어처럼 느껴지는데요, 한쪽 벽면에는 아트월 형태로 벽돌로 시공한 모습이며, 계단실은 자작나무로 시공하여 내출한 모습이 강조됩니다. 또한, 카페같은 인테리어의 분위기는 바로 조명이 한 몫 하고 있는 모습입니다.


일반적인 가정집의 느낌도 있으면서, 카페같은 느낌이 있는 이러한 인테리어 어떠신가요?


096A1352.JPG
096A1341.JPG

또한, 해당주택은 32.9평으로 거의 33평이라고 볼 수 있지만, 천정이 높아 본래의 평수 보다는 개방감을 느낄 수 있습니다. 그 이유가 바로 이 주택의 특별한 인테리어인데요, 이는 시공할 때 조금 특별한 방법으로 진행했기 때문이라고 합니다. 원래는 상을 걸고 석고작업을 진행하지만, 해당 주택은 석고를 치지 않고 드라이비트 본드를 발라 시공한 뒤에 미장을 한 뒤에 페인트칠을 했기 때문에 중간에 다른 구조물이 없어 천정이 더 높아 더 넓어보이는 효과를 줍니다.


K71A1641.JPG

침실은 액자를 걸어놓은 듯 보여지는데요, 큰 창호와 가로로 긴 창호가 있어 일반적인 아파트에서는 느껴볼 수 없는 특별한 침실이 완성되었습니다. 이 공간에서도 역시나 자연조명이 항상 있을 것을 상상되지 않으신가요?


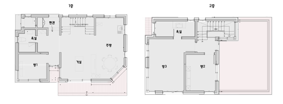
도면.png 1층도면 / 2층도면-

오늘은 소소한 전원주택 외관과, 감각적인 인테리어를 갖춘 전원주택을 소개했는데요. 어떠셨나요? 카페같은 분위기로 항상 특별한 일상을 선물할 것 같은 시공방법이 궁금하시다면 아래 건축상담 신청을 통해 무료로 컨설팅 받아보세요!


건축상담 신청하기 ▶ http://naver.me/FWeou5lW

한글주택 홈페이지 ▶ https://c11.kr/7ux3

한글주택 유튜브 ▶ https://goo.gl/65mdXh

keyword
매거진의 이전글한옥주택, 현대식 해석으로 표현하다