brunch

가족의 선물이 된 용인 단독주택

by 한글주택

용인은 자연과 첨단이 조화롭게 어우러진 도농복합도시이다. 자연이 가까이 있어 아름다운 풍경을 눈에 담을 수 있고 편의 시설도 잘 갖춰져 있어 생활에 편리함을 제공한다. 이런 장점은 자연스럽게 건축주님들의 관심을 이끈다. 그중 가족들에게 선물이 된 용인 단독주택 사레를 소개한다.


한글포스트_용인전원주택_155 (1).jpg


용인단독주택_1층도면_155.jpg
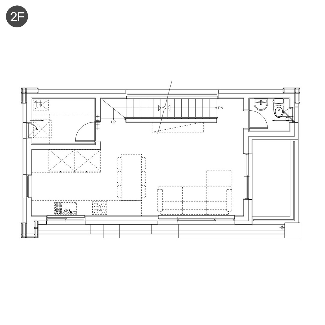
용인단독주택_2층도면_155.jpg
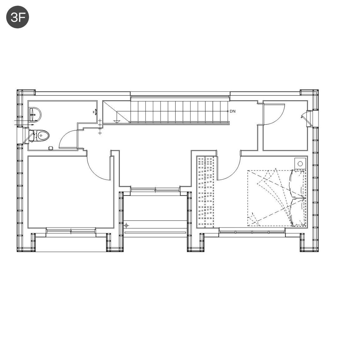
용인단독주택_3층도면_155.jpg




[단독주택 개요]


건축규모: 지상 3층

연면적: 58.36평[192.94㎡(지하1층 13평 / 1층 15.03평 / 2층 14.01평 / 3층 15.03평 / 옥탑 1.17평)]


https://youtu.be/3A0l0rfb3Tk


도란도란 가족과 함께


건축주님은 다른 사람의 집을 구입하는 것보다 나만의 집을 희망했다. 가족들의 보금자리로 완성한 용인 단독주택. 개개인의 생활에 맞춰 설계하며 지하에 주차장까지 만들어 효율성을 강조했다. 밝고 시원한 색상으로 꾸며진 외관에 문쪽의 목재는 따스한 포인트가 된다.


용인단독주택_1층-내부.jpg


1층은 가족들의 공간인 거실과 주방으로 구성했다. 외관과 이어지는 화이트와 블루의 조화로 내부도 밝고 시원하게 연출된다. 선명한 블루는 마치 지중해를 보는 듯한 인상을 준다. 큰 창호를 통해 채광이 가득 들어오며 마당으로 이동할 수 있어 구성원들에게 편안함을 제공한다.


용인단독주택_2층-내부.jpg


2층과 3층은 심플한 인테리어로 모던한 이미지가 돋보인다. 1층의 시원한 오픈 천장이 2층에서는 조명 역할을 하며 색다른 분위기를 연출한다. 건축주님의 요청사항에 따라 완성된 내부는 층마다 다른 매력이 느껴진다. 개인 공간의 포인트 벽지는 1층보다 더욱 컬러감이 있고 다채로운 느낌을 전달한다.



한글포스트_용인전원주택 116 (1).JPG


용인단독주택_116번_1층-도면.jpg
용인단독주택_116번_2층-도면.jpg
용인단독주택_116번_3층-도면.jpg


[단독주택 개요]


건축규모: 지상 3층

연면적:41.7평[137.㎡(1층 14.6평 / 2층 13.5평 / 3층 13.7평)]


https://youtu.be/aizGtAWroyw


삼대가 행복한 예쁜 주택


아이부터 어르신까지 대가족이 함께 보내는 3층 용인 단독주택. 스타코플렉스 마감을 기본으로 1층의 파벽돌을 이용한 색다른 포인트가 돋보인다. 징크와 컬러강판이 입체감과 멋스러움을 더한다. 이런 기하학적인 형태는 주변 주택 사이에서도 가장 먼저 눈에 들어온다.


용인단독주택_116번_1내부.jpg


1층은 공용 공간과 부모님 세대가 지낼 방 등으로 구성했다. 거실과 주방을 연결해 넓어 보이는 효과를 주는 동시에 가족들과 편안한 소통을 할 수 있는 공용 공간으로 완성했다. 건축주님과의 오랜 상의 끝에 선택된 화이트 컬러는 내부를 더욱 화사하고 깔끔하게 만든다.



용인단독주택_116번_윗층.jpg


높은 천고와 곳곳에 시공된 창들은 시야를 시원하게 하고 쾌적한 느낌을 더한다. 삼대가 지내는 공간은 공용 공간만큼 개인 공간도 신경 써서 설계했다. 덕분에 개인 방들은 독립적으로 시공되어 서로의 프라이버시를 보호한다. 그리고 방마다 주인의 성향과 취향에 맞춰 파스텔톤으로 벽지에 포인트를 넣었다. 부드러운 톤에 따스하고 편안한 분위기가 감돈다.



한글포스트_용인전원주택_197 (6).jpg


용인단독주택_197_1층-도면.jpg
용인단독주택_197_2층-도면.jpg


[단독주택 개요]


건축규모: 지상 2층 + 주차장

연면적: 60평[198.34㎡(1층 28평 / 2층 17평 / 주차장 15평)]


https://youtu.be/2wqWr8QWv-c


8남매가 부모님을 위해 준비한 집


부모님을 생각하는 8남매의 따스한 마음이 가득 담긴 60평대 용인 단독주택. 한적한 주택가에 자리 잡은 오래된 집을 허물고 새로 지어진 콘크리트 주택이다. 스타코플렉스, 롱브릭 타일, 적삼목 사이딩으로 외관을 조화롭게 완성했다. 여기에 ㄷ자 형 매스 구조를 더해 개성 있는 모습이다.


용인단독주택_197_1층-내부.jpg


8남매가 모두 모인 가족 모임을 생각하여 공용 공간을 넓게 설계했다. 거실과 마주 보고 있는 주방은 화이트와 그레이 조화로 모던한 느낌이 든다. 주방 바로 옆에는 다용도실이 배치되어 보관 및 이동이 편리하다. 대가족이 모인 날 맛있는 음식과 함께 오랜 이야기를 나누는 모습이 그려지는 공간이다.


용인단독주택_197_2층-내부.jpg


2층은 국악 자격증을 보유한 건축주님 아버지의 희망 사항이 반영된 공간이다. 수강생들이 집을 방문할 때를 위해 복도 끝에 편의 시설을 구성했다. 한편에 마련된 테라스는 시원한 공기와 따뜻한 햇살을 느낄 수 있어 일상에 활력을 더해준다.




무료 건축상담신청 바로가기



keyword
매거진의 이전글자연만큼 아름다운 여주전원주택