brunch

아이들의 놀이터가 된
인천 전원주택

by 한글주택

각종 편의 시설과 높은 수준의 인프라가 확보된 아파트는 일상생활에 편리함을 제공한다. 하지만 꾸준히 언급되고 있는 층간 소음과 아이들이 뛰어놀 곳이 없는 등의 문제는 성장 중인 아이와 함께 사는 가정에 아쉬움을 남긴다. 특히 놀이터가 줄어든다는 소식으로 어린아이에게 자유롭고 평화로운 일상과 성장기 정서발달을 위해 단독주택을 고려하는 분들이 늘어나고 있다. 오늘은 이런 고민을 안고 있는 부모들이 참고하기 좋은 도심 인근에 위치한 인천 전원주택을 소개한다.


D65A7973.jpg
인천단독주택-1층.jpg
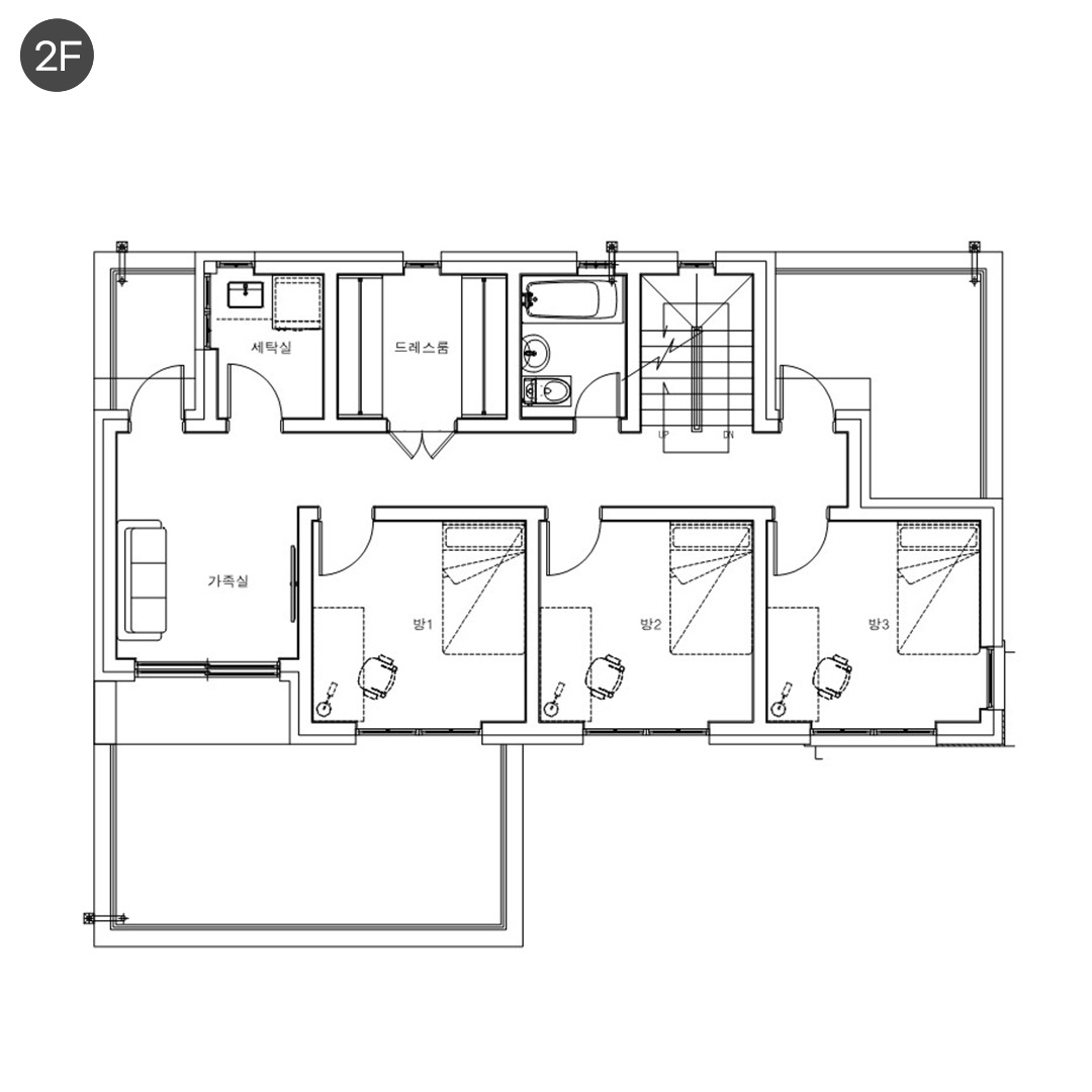
인천단독주택-2층.jpg


House Plan


위치: 인천광역시

건축형태: 철근콘크리트

건축규모: 지상 2층

연면적: 59평[194㎡]


https://youtu.be/3OXfRzpdL2c



Exterior - 외관

인천단독주택-외관.jpg


밝은 톤의 간결한 선으로 편안한 분위기를 자아내는 집. 적삼목과 연그레이 벽돌 등으로 포인트를 주고 입체적인 구조로 단조로움을 피한 센스가 인상적이다. 잘 가꾸어진 집 앞마당은 전원의 여유를 느끼게 한다. 함께 나무를 심어 기르거나, 여러 야외활동 등을 할 수 있어 아이들에게 아파트에서 경험하지 못한 특별함을 남겨준다.



Interior - 1


인천단독주택-거실.jpg


거실로 들어가면 우물 모양으로 시원한 인상을 전하는 높은 천고가 눈에 들어온다. 여기에 화이트를 기본으로 벽과 바닥을 구성하여 더욱 화사하고 넓은 공간감이 느껴진다. 높아진 벽 따라 창문도 크게 자리 잡으며, 햇빛이 자연스럽게 내부를 밝혀준다.


인천단독주택-주방.jpg


1층 현관 복도 따라 들어오면 바로 주방과 다이닝룸을 만날 수 있다. 시원한 개방감을 유지하기 위해 시야를 방해하는 상부장 등의 가구는 제외하고, 중앙에 보조 조리대와 수납공간으로 활용할 수 있는 아일랜드 식탁을 두었다. 또한 옆 방에 보조 주방이 숨겨져 있어 필요시 주방을 넓게 사용할 수 있어서 좋다. 하부장이 위치한 곳에는 타일 시공을 하고 식탁 위에는 화려한 조명을 두어 공간 분리한 점이 눈에 띈다. 전반적인 인테리어를 해치지 않으면서 색다른 자재와 조명을 사용하여 세련된 인상을 전한다.


인천단독주택-침실과-욕실.jpg


거실과 주방 반대편에 마련된 침실에는 욕실과 드레스룸도 함께 배치되어 자연스러운 동선을 그린다. 공용 공간과 전반적인 인테리어는 비슷하나 헤링본 무늬의 나무 소재로 바닥 시공을 진행해 따뜻하고 아늑한 분위기가 감돈다. 욕실도 화려한 무늬의 타일과 금색 테두리의 조명, 가구를 사용했지만 베이지 톤이 바탕이 되어 고급스럽고 편안한 느낌이다. 이처럼 해당 인천 전원주택은 화려한 자재들이 조화롭게 어울리는 모습이 특히 인상적이다.


Interior - 2


인천단독주택-2층-아이들-방.jpg


2층은 아이들이 마음 편히 지낼 수 있는 3개의 개인 방으로 설계가 진행됐다. 비슷한 크기와 모양으로 공평하게 방을 나눌 수 있도록 한쪽에 일렬로 배치하고 남은 공간에 가족실, 욕실, 세탁실 등으로 구성했다. 이런 배치는 서로의 프라이버시를 지켜주어 갈등을 최소화하고 독립성을 기르는데 도움을 준다. 각 방은 화이트와 파란색 조합으로 화사한 분위기가 연출되는 한편, 고정창과 틸트로 조합한 창을 통해 자녀에 대한 부모의 따스한 마음이 엿보인다.


인천단독주택-가족실.jpg


세련된 버블 조명으로 꾸며진 가족실은 밝고 아늑한 분위기로 가족들이 함께 모여 오순도순 이야기를 나누는 모습이 그려진다. 또한 넓은 테라스와 바로 연결되어 있어 다양한 활동이 가능하다. 저녁에는 아이들과 바비큐 파티를, 여름에는 간이 수영장을 설치해 즐길 수 있는 등 인천 전원주택만의 잊지 못할 추억을 만들어 준다.


인천단독주택-옥상.jpg


베란다와 옥상에는 안전을 위해 적절한 높이의 난간을 설치했다. 오픈된 디자인 덕분에 계절감이 느껴지는 풍경이 거슬림 없이 다가온다. 또한 아이보리 빛 벽돌이 주는 은은함은 주변 자연과 만나 더욱 따스하게 느껴지며 머무는 이에게 편안한 휴식처가 되어준다. 이번 인천 전원주택은 트램폴린을 옥상에 두어 아이들의 놀이터가 되기도 한다.




무료 건축상담 바로가기


인천전원주택-마지막사진.jpg


keyword
매거진의 이전글대가족이 살기 좋은 전원주택시공 사례