brunch

[현대건축: 비판적 역사] 읽기 (05)

2부 - 비판적 역사 / 3. 프랭크 로이드 라이트와 프레리 신화

by 돌문어

안녕하세요, 돌문어입니다.

건설공학과 시각디자인을 공부하다가 과제 스트레스와 주머니 사정에 말려 건설공학과 도시환경공학 전공으로 갈아타게 되었습니다만, 졸업을 앞두고 전공에 대한 흥미를 몽땅 잃어버려 장기간 휴학 상태에 돌입했다가 이제 막 복학 준비를 하며 이 시리즈를 준비했던 게 언제 적 일인 지 까마득합니다.


복학도 성공적이었고, 인턴도 잘 마무리하고, 2023년 올해 들어 졸업전시를 했고, 마쳤습니다. 제 버릇 개 못준다고, 이래저래 몸도 마음도 지쳐서 작업에 진전이 없던 찰나에 다시 이 시리즈를 이어나가기로 했고, 지금도 반복 중이네요. 하지만 점점 꾸준해지는 것 같습니다. 이렇게 앞으로 나아가다 보면 마무리를 할 수 있겠죠.


건축은 신기합니다. 품고 있는 분야가 워낙에 넓다 보니, 건축의 어느 한 구석에서 실망을 하고 뒤돌아섰다가, 다시 다른 구석에서 빛을 보고 마음을 돌리게 됩니다. 한 번 빠지면 그렇게 헤어 나오기가 어렵습니다. 그 많은 구석들 중에서 저는 어느 곳에 정착하게 될까요?


와! 드디어 대졸입니다. 여전히 머리에 든 것은 많이 없습니다. 그사이 이 책은 절판이 되었다가 개정증보판으로 다시 돌아온 것을 보며, 역시 이 책은 현재진행형이구나 느낍니다. 저는 잘못된 정보 전달을 매우 싫어합니다. 따라서 모든 지적은 감사히 받겠으니 언제든지 지적해 주세요!




[현대건축: 비판적 역사] 읽기 (05) / 2부 - 비판적 역사 1836~1967

3장 프랭크 로이드 라이트와 프레리 신화 1890~1916


그 유명한 프랭크 로이드 라이트 아저씨가 등장합니다! 설리번과 리처드슨을 스승으로 두었던 라이트는, "고전적 질서의 권위와 비대칭적 형태의 활력 사이에서 동요"합니다.


리처드슨, 그리고 비대칭 구성

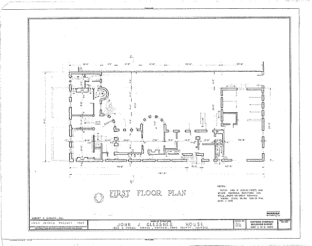
스승이었던 리처드슨은 공공시설에는 대칭적 양식을, 주택 설계에서는 비대칭적 양식을 추구했습니다. 리처드슨은 가능하다면 보드르메어의 제2제정식의 로마네스크풍 중량감을 적용함을 통해 새로운 시대에 걸맞은 양식으로 개작을 하려고 했습니다. 이러한 비대칭적 양식, 로마네스크풍 중량감을 표현하여 싱글(shingle)로 이은 파사드 양식이 나왔고, 1885년 시카고 글레스너주택에서 그 기념비성을 띠게 됩니다.


Aerial view of the Glessner House
Glessner House, first floor plan, from HABS.


싱글양식(Shingle Style)에 대한 글

https://www.adrianarchitecture.org/romanesque-shingle-style


이 기념비성은 설리번과 라이트 둘다에게도 똑같이 문제였던 것으로 보인다. (...) 과연 사람이 사는 집에도 어울렸을까? (...) 도시라면 고전적인 석조로, 전원이라면 고딕을 따르면서 싱글을 갖추는 식으로 뚜렷이 구분되는 이중공식에 맞췄을 것이다. (104p)

프레리 양식의 시작

설리번과 라이트는 평등주의 문화의 기원을 리처드슨의 로마네스크처럼 무겁고 가톨릭적인 전통에 기초할 수 없다고 보고, 오언 존스가 1856년에 쓴 『장식의 문법』에서 존스가 예로 든 인도, 중국, 이집트, 아시리아 또는 켈트족 기원의 이국적 장식들을 발견합니다. 설리번과 라이트는 이러한 이국적이고 서구와는 거리가 먼 것들이 신세계를 구현하는데 적절한 양식을 표현하기 적합하다고 보았습니다.


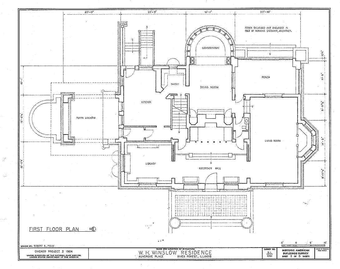
이후 설리번의 작업들에는 이슬람적 모티프와 공상과학적인 벽화와 같은 것들이 발견됩니다. 라이트는 1893년에 일리노이 주 리버 포레스트에 지은 윈슬로주택에서 평등주의적이면서 적절한 포맷을 발전시킵니다. 도시 쪽의 파사드는 대칭적이면서 중앙 축을 따라 들어오게 하며, 정원 또는 전원형 파사드는 비대칭적이고 한쪽으로만 들어올 수 있게 하는, 프레리 양식 설계 전략을 예시합니다. 라이트는 공적인 파사드 뒷면에 불규칙한 왜곡을 두어 부대설비와 같은 요소들을 편리하게 감추고, 수용합니다.


William H. Winslow House Front Facade
Winslow House rear view
Winslow House floor plan
그랜트 카펜터 맨슨이 『1910년까지의 프랭크 로이드 라이트』(1958)에 썼듯, 여기서 라이트는 "여닫이 창문을 더 좋아해서 내리닫이를 버리고, 점을 찍어가듯 창문을 내는 방식에서 길고 가는 조각들로 창문을 내는 방식으로 전환하는 최종적인 변화를 준비하기 시작했다. 라이트만의 낮은 프레리 지붕이 이 작업에서 최초로 나타나며, 동시에 장식 테와 돌림띠가 보여주는 외관의 활기는 라이트의 스승 설리번의 영향이 지속되고 있음을 입증한다. (105p)
이 같은 다양한 영향을 종합해 '프레리 신화'로 표현될 주택 양식을 만드는 데 2년이 넘는 세월이 걸렸다. 이에 대해 그는 1908년 다음과 같이 썼다. "프레리는 그 자체의 아름다움이 있으며, 우리는 그것의 자연적인 미, 적요의 평면을 인식하고 강조해야만 한다. 그래서 ··· 가려주고 보호해 주는 지붕의 돌출부, 낮은 테라스와 내뻗는 벽, 외부로부터 격리시켜 주는 비밀스러운 정원." (107p)


Frank Lloyd Wright's Darwin D. Martin House, in Buffalo, NY.
Darwin D. Martin House Landscape plan

위의 마틴 주택은 라이트가 격자를 일간 되게 조절해 만든 평면형태의 첫 번째 작업입니다.이러한 격자형 구분은 유니티 템플과 라킨 빌딩에서도 유사하게 나타납니다.


라이트의 총체예술에 관한 이상

라이트는 총체예술에 관한 이상을 설계하고 실현하기 위해 기술자와 예술가 및 장인의 작업실을 마련합니다.엔지니어로는 파울 뮐러, 조경 건축가로 빌헬름 밀러, 고급 가구 제작자 조지 니더켄, 모자이크 디자이너 캐서린 오스터탁, 조각가 리처드 보크와 알폰소 야넬리, 유리와 직물 가공업자로 인한 올랜도 쟈니니가 포함된 팀이 구성됩니다.

keyword