brunch

일본건축기행 2-6

나오시마(Naoshima, 直島)_1

by 건축가 이영재

[ 2 일차 ] _ 웰컴 호박, 웰컴 쿠사마


허기와 추위로 많이 지쳤다. 이에우라항(家浦港)에서 나오시마(直島) 미야노우라항(宮浦港)까지 불과 30분 뱃길에 모두들 숙면을 취하고 있다. 잠을 깨고 내딘 첫발은 무겁지만 불어오는 상쾌한 바람에 곧 정신을 차릴 수 있었다.


나의 우동 타령이 또 시작되었다. 이곳이 다카마쓰는 아니지만 일본 아니던가. 이번 일정이 시작되고 아직 우동을 먹질 못했다. 그리고 허기와 추위에는 따끈한 국물이 있는 탄수화물이 제격이다. 재촉하듯이 일행들의 발걸음을 안내서에 있는 우동집으로 몰았다.


그래도 눈 앞에 덩그러니 놓인 볼 거리는 보자. 허기가 내 관점을 흐려놓고 있긴 하지만.

SANAA(Sejima And Nishizawa And Associates)의 작업이 우선 보여진다. 나오시마 페리 선착장(Naoshima Ferry Terminal)은 바람이 불면 날아갈 듯한 얇은 지붕판을 가는 쇠기둥이 떠받치고 있고, 지붕 아래로는 넓은 판유리가 공간을 구획하고 있다. 스테인레스판 거울 같은 벽이 공간을 가린 것인지 넓힌 것인지 이해 할 수 없지만 모든 프로포션은 좋다. SANAA의 일련의 작업에서 보아 왔듯이 이것 또한 정제되어 있었다.


SANAA _ Naoshima Ferry Terminal(2006), 도로 바닥의 글씨가 나를 불러 세우고 있다.


해안가 넓은 대지를 점유하고 있지만 세장한 기둥과 투명한 판유리는 바다와 산을 가리지 않았고, 오가는 여행객들이게 나오시마의 첫인상을 강렬하게 심어준다. 하지만 필요 이상의 그 면적이 거대하다는 느낌을 지울 수가 없다. 그 공간이 좁아 이리저리 치여다니는 것도 문제지만 이 공간은 어떠한 상황도 벌어지지 않는다. 데시마에서 본 그 미술관, 그 감동이 사라지기도 전에 또 마주친 선착장의 느낌은 뭔가 제자리에 있는 것 같지 않다는 느낌이다. 도로 바닥의 글씨가 나를 불러 세우고 있지만, 날씨 탓이었는지 마주치는 모든 것이 차가웠다. 이것은 순전히 나의 허기 때문이다.


P20180317_182530239_59F477A1-1177-401B-8581-C9E95C141BAA.JPG
P20180317_182753900_4008FC36-937E-4C48-933F-DDBA82306C86.JPG
P20180317_182705269_A3C37140-39D1-4662-8264-E9E36E60C1FE-1.jpg
늦은 오후의 점박이 호박과 해변쪽에서 바라본 나오시마 페리 터미널


선착장에서 바다를 보면 빨간 호박 한덩어리가 있다. 쿠사마 야요이(草間彌生, 1920- )의 작품이다.

웰컴 나오시마의 원조격이다. 1994년에 이 붉은 호박(赤かぼちゃ)이 이 곳에 놓여졌으니, 페리 선착장(2006)보다 12년 먼저 이 장소를 점유하고 있었다. 하지만 선착장과 불과 100여 미터의 밖에 놓인 붉은 호박은 지금은 좀 소외된 듯하다. 예전 사진에서 보았을 때는 잔디밭에 놓여 주변으로 관람하는 사람들에 의해 잔디가 밟혀 눌려져 있었으나. 그것이 보기 싫었던지 지금은 초록색 콘크리리트를 깔아놓았다. 관리상 필요에 의해서 그랬는지 모르지만 발바닥을 통해 전해지는 그 딱딱함이 바다와 유리박스 사이에 놓인 저 붉은 호박을 초라하게 만들었다.


선착장에서 쿠사마 야요이의 작품까지의 좀 더 세련된 동선이 있었으면 좋지 않았을까.


나오시마 전체 맵.jpg 나오시마(Naoshima, 直島) 관광 지도


숙소는 이 섬의 반대편이다. 혼무라항(本村港)까지 100엔 버스로 가야한다. 작은 미니 버스는 그 곳까지 10분 정도 걸린다. 내일 일정은 그곳에서 부터 시작된다.


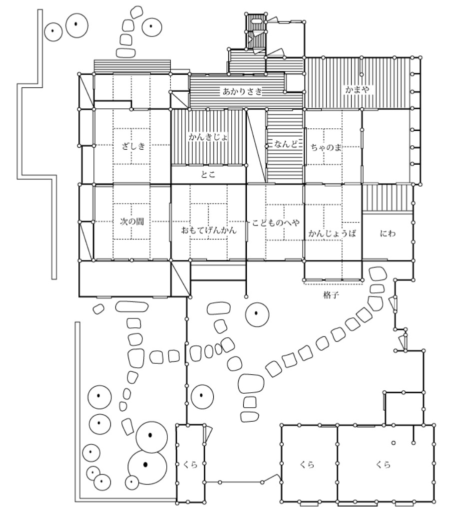
오오미야케(おおみやけ)가 나오시마에서의 숙박지다. 400년 이상 된 이 집의 이름인 오오미야케(おおみやけ)는 초대 촌장이었던 미야케(三宅) 집안을 높여 부르면서 지금에 이르게 된다.

현재 등록유형문화재인 이 집은 메이지 초기까지 여러 가지 용도로 사용되었다. 방의 구성을 보아도, 한 지붕아래 손님방과 그에 따른 현관을 별도로 두어 북측 후면에서 접근이 가능하게 하였다. 전쟁시에는 장군이 지휘하던 본부로 그리고 그 외 시기에는 영주나 막부의 관리, 승려등이 잠깐 머물수 있는 숙소로 내어 준 것이라 한다. 그리고 촌장에게만 허용된 양조장을 운영하면서 양조창고(간장)가 집의 뒤쪽에 존재 했었고, 배가 집 가까이 들어 올 수 있는 위치에 있었다고 전하는 것을 봐선 양조창고는 북측 어디쯤에 있었고, 지금 남아 있는 가옥은 그 당시의 가옥의 일부에 지나지 않았을 듯 하다.


오오미야케(おおみやけ)의 평면도
屋号の“おおみやけ”は三宅姓の最高位にある家柄を尊称して、人々が大をつけて呼ぶように なったものです。 天領時代の直島で、三宅家第21代の兵右衛門が初代の庄屋に任命されて以来、明治初年まで 倉敷代官に仕える村の役所でした。 門番が寝起きする供部屋を備えた長屋門と母屋の2件が文化庁登録文化財となり、 母屋は宿泊施設、長屋門は立派な梁を活かしてカフェ&レストランに改装されました。
築400年以上の三宅家。しかし、登録文化財として一般公開はしていません。
三宅家は、庄屋の姿を今に伝える家の配置が非常によく保存されています。 家屋の構成は表の玄関が客人用と勝手口にわかれ、本来は本陣(本来、戦の時に大将が詰める本部の 事でしたが、以後は大名、公家、幕府の役人、僧侶などの貴人の宿舎)を伴っていたそうです。 かっては裏に酒蔵・醤油蔵があって舟が家の近くまで入れるようになっていました。 当時、庄屋のみに認められた醸造業の姿がわかります。
(http://oomiyake.jp/guidance.html)


P20180317_073759223_52F2A7A3-2039-40C9-AE46-3A31EE20D0D3.JPG
P20180317_073815586_0DFDB140-76BB-4AED-821B-452518C54721.JPG
KakaoTalk_20180408_191222095.jpg
P20180317_073211016_4F73E610-159C-4F69-AC09-CA8F7B86B8C7.jpg
P20180317_073125393_C8FC3877-85B1-4555-99A6-548CE0639294.jpg
P20180317_073022006_847C8330-9B7C-44F5-BAE1-37A2F02FA6EA.jpg
오오미야케(おおみやけ)_Guest House Oomiyake 의 골목길에서의 모습과 내부 마당의 모습
KakaoTalk_20180408_191155310.jpg
KakaoTalk_20180408_191157952.jpg
손님방에서 바라보는 툇마루와 정원 | 사진 : 석정민


KakaoTalk_20180408_191207449.jpg
KakaoTalk_20180408_191148781.jpg
(좌)곁방_협실(次の間_つぎのま) (우) 손님방 (ざしき)_사진 : 석정민
KakaoTalk_20180408_191216658.jpg
KakaoTalk_20180408_191209399.jpg
(좌) 현관_おもてげんかん (우)곁방_협실(次の間)_사진 : 석정민


빨간 옷을 입으신 분은 그녀의 어머니와 외국분 한분을 모시고 이 곳을 찾은 일본 현지 가이드다.(사실 같은 여행자 였는지 가이드였는지 불확실하다. ^^ 하루종일 이곳 저곳에서 마주쳤다.) 이곳 오오미야케에서 숙박을 하시고 아침 이른 시간 집 내부를 구경해도 될지 물어봤더니 오오미야케 관리자에게 확인 후 집 내부를 소개해줬다. 400년 이상된 이 집의 정원을 보여주었고, 정원사는 하루에 한 나무씩 모든 나무를 돌아가면서 관리했었다고 설명을 곁들여 주었다.


KakaoTalk_20180327_221349794.jpg 사진가는 사진에 남지 않는다. 사진 : 석정민


keyword
매거진의 이전글일본건축기행 2-5