brunch

"여행자를 위한 네 가지 공간"

위코스테이 동대문 브랜드스토리 – 2

by 윤소장


� 위코스테이 동대문 브랜드스토리 – 2

여행자를 위한 네 가지 타입



� ‘어떤 스테이가 되어야 할까’에서 찾은 답


브랜드스토리 1편에서 말씀드린 것처럼, 위코스테이 동대문은 ‘여행자를 위한 공간’을 만들기 위해 세 가지 여행자 페르소나를 설정했습니다.


1. 서울에 여행을 온 외국인 ‘가족’

2. 서울에 비즈니스 트립 or 유학을 온 외국인 (1~2인)

3. 서울 여행자


220907_design_pt01_Page_05.jpg?type=w1 서울의 중심 , 동대문의 위치한 지리적 장점으로 설정한 페르소나들


� 시장 조사에서 발견한 두 가지 한계


스테이 시장을 조사하며, 대부분의 숙박 공간이 아래 두 가지로 나뉜다는 사실을 확인했습니다.

작은 객실 + 공용서비스 → 호텔, 코리빙, 기숙사처럼 ‘호텔의 복제판’

기능별로만 분리된 공간 → 레지던스 호텔, 오피스텔, 아파트, 빌라, 또는 집을 공유 숙박으로 운영한 형태

이 두 가지 방식 모두 여행자가 ‘살고 싶다’고 느끼는 공간과는 거리가 있었습니다.


220907_design_pt01_Page_11.jpg?type=w1 서비스코너가 많은 스테이의 개념설정 -위코스테이 동대문



221005_design_pt02-F_Page_10.jpg?type=w1 위 개념이 공간으로 구체화 되었습니다




� 위코스테이가 지향한 공간 키워드

저희가 제공하고자 한 공간은 다음과 같은 특징을 지닙니다.

한국적인 체험이 가능한 공간

여행자 특성에 맞게 커스터마이즈 가능한 공간

혼자 써도, 여럿이 써도 편안한 다목적 공간

비용과 시간을 고려한 지속가능한 설계

좌식과 입식 모두 가능한 유연한 구조

기능을 단순히 분리하지 않고 상황에 따라 여러가지로 쓸수있는 공간가구



� 리빙룸이 있는 객실

이러한 고민 끝에 위코스테이 동대문은 모든 객실에 여러 기능을 결합한 ‘리빙룸’을 두기로 했습니다.

방을 하나 더 만들어 객단가를 높이기보다, 여행자에게 더 많은 여유를 주는 선택이었습니다.

(이런 결론중에 중요한 이유는 소파를 넣을 수 없는 객실의 제약조건도 있었지만요 - 이에 관해서는 다음편에서!)


이 리빙룸은 단순히 TV와 소파가 놓인 집의 거실이 아니라, 책을 읽을 수 있는 코너, 카페보다 넓은 노트북 작업용 테이블, 멍하니 창밖을 바라볼 수 있는 자리, 요리를 만들어 즐길 수 있는 키친, 그리고 낮잠이나 넷플릭스를 즐길 수 있는 데이베드가 어우러진 ‘미니 라운지’입니다.


여기에 퀸베드가 있는 침실, 욕조가 있는 욕실, 분리된 건식 세면대가 있는 파우더룸, 세탁·건조기, 조리대와 옷장까지 갖추어, 모든 타입의 객실이 ‘데이베드가 있는 미니 라운지형 리빙룸’을 공통적으로 유지하고 있습니다.



220907_design_pt01_Page_12.jpg?type=w1



� 3개의 존, 4가지 타입


위코스테이 동대문은 10층 건물로, 1층과 지하는 공용공간(라운지·근린생활시설)으되어있고, 2~10층의 객실은 총 네 가지 타입을 구성했습니다.

230601_wecostay_BI_book_v3_spread_Page_3.jpg?type=w1




A타입

가장 넓은 리빙룸과 주방을 갖춘 중·장기 숙박자용.

집에서 식사도 챙기고 세탁까지 가능한 ‘서울 속 나만의 집’



리빙룸이 넓은 유닛으로 단기 여행뿐 아니라 한 달 살기 등 중장기 여행자에게도 적합합니다.

폭 1.2미터의 넓은 데이베드는 엑스트라 베드로 쓸 수 있고, 마루도 되며 리빙-다이닝-키친이 합해진 미니 라운지로서의 역할을 톡톡히 합니다. Boarding home의 개념을 잘 보여주는 타입입니다.



SE-28e9d904-23fc-4e22-ba5c-f57e0c847772.jpg?type=w1 엑소노메트릭 플랜 -A-type /C-type



dsc04091_1.jpg?type=w1


dsc02833_1.jpg?type=w1
DSC03189.jpg?type=w1
dsc03113_1.jpg?type=w1
SE-8cbb8f4b-d453-4330-b8d1-51d5e309b664.jpg?type=w1
dsc03104_1.jpg?type=w1
DSC02896.jpg?type=w1

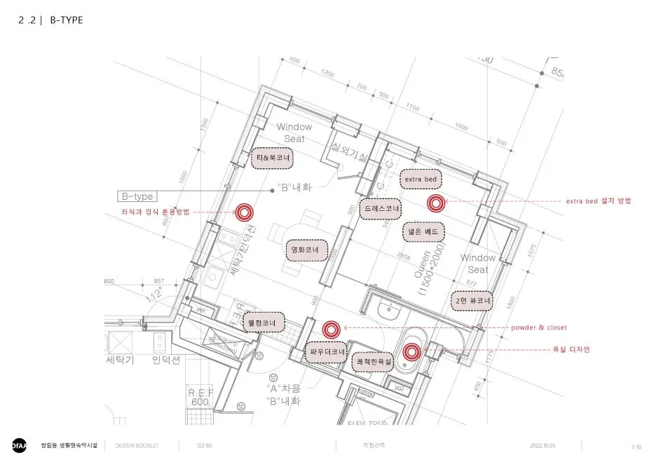
B타입

-


한식 베드룸, 욕조, 코너 간접조명, 내부 순환동선이 매력적인 타입.

제약 많은 구조 속에서 창의적으로 완성한 공간.


SE-00360247-b735-456d-8790-3b029b9a6f8f.jpg?type=w1 엑소노메트릭 플랜 -A-type /B-type


한국적 공간과 좌식 콘셉트를 최대로 보여주는 유닛입니다. 침실의 넓은 평상 위에 매트리스와 티 코너가 있습니다.

문을 다 열면 거실이 방 처럼, 침대가 있는 방이 대청마루처럼 느껴지며 방과 거실의 고정관념에서 자유로운 객실입니다. 외국인 여행객에게는 한국적인 공간을, 내국인 여행객은 익숙한 편안함을 주고자 했습니다.

455d217c-3080-4ae7-97fe-e9b2505c6598.jpeg?im_w=720


5b51e25d-cb1b-4eca-9ba5-1bd477f920b8.jpeg?im_w=720


6fe821cd-8d66-4b6f-91fc-8240e81cd0ab.jpeg?im_w=720



SE-992fea3c-d4f4-40d5-b55f-56fa97a78a9b.jpg?type=w1


668c3a00-81e8-4846-b28b-3c8a0cd200ae.jpeg?im_w=720


dsc03249_1.jpg?type=w1
dsc03205_1.jpg?type=w1
SE-5b67400d-9967-47a9-897e-883caece7490.jpg?type=w1
dsc03443_1.jpg?type=w1



C타입

-

컴팩트하지만 아늑한 거실이 있는 타입.

서울 여행을 온 커플이나 2인 여행객에게 최적.

실용적이면서도 쉼의 여유를 주는 스텐더드 룸 입니다


SE-28e9d904-23fc-4e22-ba5c-f57e0c847772.jpg?type=w1 엑소노메트릭 플랜 -A-type /C-type

C-type은 A-type보다 침실은 더 넓고, 거실은 콤팩트하게 구성이 되어 혼자 머물러도 좋고 커플이나 친구들과의 여행에도 잘 어울리는 유닛입니다. 조명을 낮추고 윈도우시트에 앉아 창 너머의 풍경을 바라보면 종로와 북한산이 보입니다. 북코너의 책꽂이에서 책을 골라 마음의 여유를 갖고 자신만의 시간을 가져봐도 좋겠습니다.


dsc03289_1.jpg?type=w1



dsc02808_1.jpg?type=w1


dsc03000_1.jpg?type=w1



DSC04029.jpg?type=w1
dsc04343_1.jpg?type=w1


dsc02841_1.jpg?type=w1

D타입

-

한 층에 한 객실, 3개의 베드룸과 2개의 욕실, 최대 6인 숙박 가능

. A타입과 C타입의 장점을 합친 구조로 가족·그룹 여행에 적합


SE-479482eb-8bdc-4e6d-bf79-05aaf7cd4254.jpg?type=w1 엑소노메트릭 플랜 -D-type


한 층을 온전히 차지하는 스위트룸으로 대가족 여행이나 하우스 파티에 적합한 유닛입니다.

여섯 명이 동시에 숙박하면서도 불편함 없도록 세 개의 독립적인 침실과 두 개의 욕실이 있습니다.

가족실은 한켠에 여러 명의 여행가방과 옷을 동시에 수납할 수 있는 드레스 코너가 있으며 삼삼오오 마주앉아 이야기를 할수있는 여유로운 공간입니다.

테이블을 윈도우 시트로 옮기면 여럿이 식사를 하는 다이닝 테이블이 완성됩니다.


DSC03016.jpg?type=w1
DSC03024.jpg?type=w1
dsc02957_1.jpg?type=w1
dsc04088_1.jpg?type=w1
dsc02825_1.jpg?type=w1
DSC04194.jpg?type=w1
DSC02872.jpg?type=w1
DSC02992.jpg?type=w1
dsc04038_1.jpg?type=w1
dsc04173_1.jpg?type=w1
dsc04369_1.jpg?type=w1
dsc02990_1.jpg?type=w1





� 중·단기 여행자를 위한 최적의 선택

위코스테이 동대문의 전 객실은 ‘여행자를 위한 공간’이라는 철학을 바탕으로 설계되었습니다.

조명, 가구, 수납디자인까지 모두 건축가의 손길로 완성되었습니다.

객실 타입별 개성이 뚜렷해, 여행 목적과 인원 구성에 따라 선택의 폭이 넓습니다.





다음화는 "투자가치로서의 스테이" 위코스테이 동대문 브랜드스토리 3 가 이어집니다

** 모든 이미지와 저작권은 '적정건축ofaa'에 있습니다**


다시보는 1화의 스토리


https://blog.naver.com/100m2house/223968254403






#위코스테이동대문 #서울여행숙소 #동대문호텔 #에어비앤비서울 #서울스테이추천 #서울중장기숙박 #적정건축





keyword
작가의 이전글"어떤 스테이가 되어야할까"