옥상달빛

과천지식정보타운 상가주택

by 보통의 건축가

상가주택 계획을 시작하는 단계에서 우린 가급적 다양한 가능성을 탐색한다.

모든 경우의 수를 열어 놓고 집을 어떻게 앉힐 것인가를 고민한다.

세대 수와 계단실의 위치와 주차의 관계는 서로 얽혀 있어서, 다양한 조건을 반영한 조합은

깊은 고민이 필요하다.

주차에 대한 여러 경우의 수를 탐색하고 세대의 구성과 코어 위치에 대한 대안을 살펴본 후,

그것을 통합한 몇 개의 대안을 마련했다.

각각의 대안에 대해 장, 단점을 건축주에게 설명하고 협의해 나간다.

이때가 건축주와 우리의 고민이 우물같이 깊을 때이다.

함께 고민하지만 선택은 결국 건축주의 몫이다.

흔들림 없는 선택이 될 수 있도록 곁에서 우리의 몫을 다하고 도움을 드리는 것이 우리의 역할이고 진심의 시간으로 신뢰를 구축하는 것이 이 과정의 목표인 것이다.

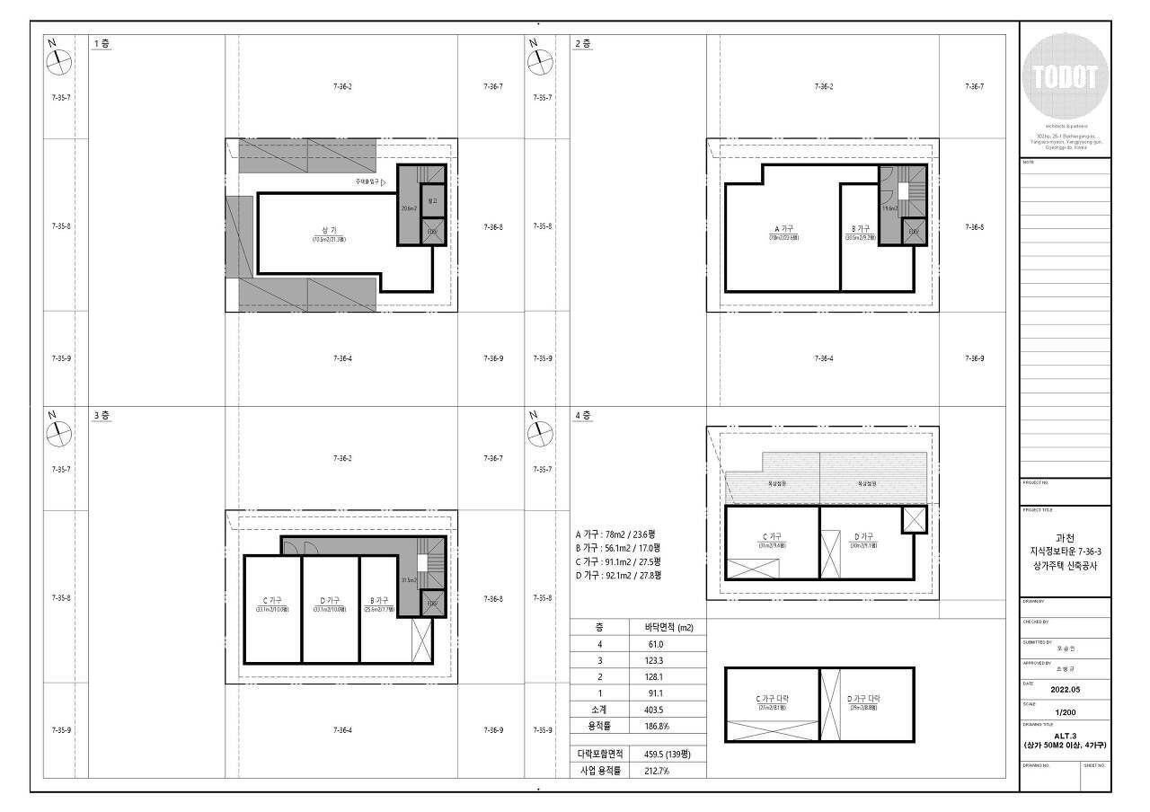
ALT1.jpg ALT.1
ALT2.jpg ALT2
ALT3.jpg ALT3

결정된 계획의 방향은,

부모님과 한명의 아들이 함께 살게 될 집은 2층에 플랫 한 타입으로 구성하고 나머지 3개의 임대세대는 복층의 구조를 적용해 모두 옥상정원과 다락을 갖는 형태이다.

베란다는 들어 올려 진 정원이고 마당이다.

일조사선제한으로 만들어지는 4층의 베란다는 비록 접지된 마당은 아니지만 충분히 매력적인 외부공간이다.

단독주택에서 살고 싶은 사람들이 가장 바라는 것 중의 하나가 마당인 터라 보통은 주인세대가 전유하게 되지만 이 집에서는 옥상 정원을 임차인에게 나눠 준 셈이다.

좋은 것을 나누면서 얻는 보상은 아마도 높은 임대료가 아닐까 싶다. 더해서 3개의 임대세대가 모두 주인세대와 동등한 구성을 가졌으므로 추후 살아보고 싶은 집으로 이동해서 살 수 있다는 것도 장점이겠다.

Enscape_2023-11-23-10-41-15_Scene 22.png
Enscape_2023-11-23-10-48-06_Scene 24.png
Enscape_2023-11-23-10-48-06_Scene 25.png


우리가 그간 작업했던 상가주택에서 주택의 창은 세로로 긴 비율의 창이 많았다.

세로로 긴 비율의 창은 우리의 도시 주거에서 잘 볼 수 없는, 낯설음의 특이성을 가지기도 하지만 주변의 집들과 가까이 위치한 상황에서 일조의 시간을 연장하는 장점을 가지고 있다.

그런데 바닥부터 천정까지 열린 세로로 긴 창은 책상이나 침대, 소파 등 가구가 자리 잡을 위치를 제한하게 된다.

‘옥상달빛’은 집을 앉히는 데에 있어 인접대지와 최대한 이격 하였다.

정북 방향의 인접대지와는 일조사선으로 인해 1.5M 이상 이격 되어있고 아마도 북쪽의 건축물 또한 방화유리창의 설치 문제로 1.5M 이상 이격 할 공산이 크다.

남쪽의 인접대지와도 1.5M 이상 이격 한 상태다.

그렇다면 인접 건물과 3M 정도의 이격거리가 생기게 된다.

가로로 긴 창을 적용해 볼 최소의 조건은 갖추어진다고 봤다.

바닥에서 90CM 올라간 위치에서 가로로 긴 창을 거실과 침실에 적용하였다.

소파나 책상, 침대의 위치에 제한을 두지 않기 위함이기도 하고 빛이 공간을 확장시키는 감각을 체험할 수 있도록 하기 위함이기도 하다.

29490B89-ACF8-4740-9442-514DAF4C00BB.jpg
C7019E6B-E9FC-4970-B40C-9ABEB411CCC2.jpg
C1700222-CC9A-4A71-9899-B18BAB6136E3.jpg


가족 모두 바쁜 일상을 끝낸 저녁, 달빛이 어스름 내려앉은 때에 이 곳에 사는 세 가족 모두 옥상에 나와 도란도란 얘기를 나누는 장면을 상상했다.

수박도 나누고 옥수수도 함께 먹으면서 말이다.


keyword