brunch

전원주택, 행복한 집짓기의 여정 _ 끝나가는 설계

장소의 발견, 화장실

by 보통의 건축가

사모님은 재치 있고 마음이 넓은 분이기도 했지만, 한편으로 무섭고 집요한 면도 있었다. 집짓기 공부를 오래 하신 덕분인지 세세하게 요청하는 것이 많았다. 그 덕분에 설계의 내용은 더 충실해졌으니 그것으로 된 것 아닌가.

그런 요청의 메일 중 하나를 소개하면 이렇다. 다음 도면을 보내고 받은 메일이다.


(2021년 6월 12일)

소장님, 주말은 주말답게 보내시는지요?

수정 도면과 CG 잘 보았습니다. 제가 요즘 상태가 안 좋아서 오래 보지는 못했습니다.

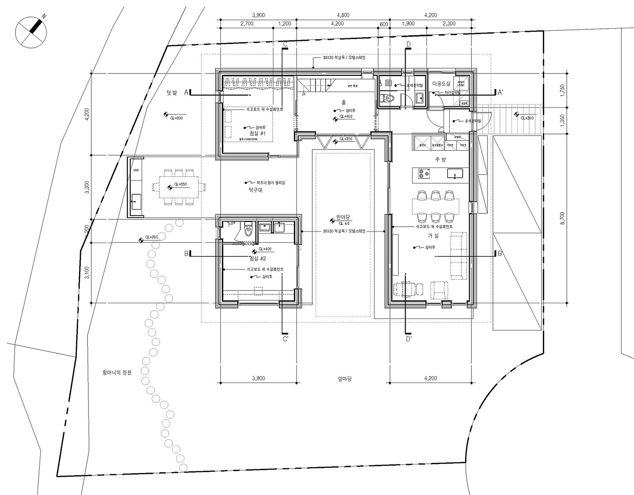
도면에서 달라진 것은 침실 1, 2이지요? 드레스룸 대신 붙박이장 도입으로 침실 1이 넓어진 것은 좋아하면서, 침실 2를 좀 더 넓게 하고 싶은 욕심을 부리는 두 ‘나’를 데리고 있습니다. 침실 2는 다목적실로, 주로 저의 공간이기에 더 마음을 쓰게 됩니다. 또 아이들이 와서 잘 때 조금이라도 쾌적했으면 합니다. 침실 1을 더 줄이면 창문이 문제가 되어 300 정도만 늘린 것으로 생각했습니다.

침실 2에 대해 말씀드리겠습니다. 세면대와 싱크대 부분이 좀 과한 듯합니다. 세면대는 손 씻는 용도로만 쓸 것 같아서, 싱크대로 합해 하나로 하고 이 부분에 침구를 넣을 수 있는 다용도 수납장을 함께 배치하면 어떨까요? 또 화장실을 이전처럼 1,000폭으로 하고 화장실 문을 보이지 않게 해서 방의 바닥면적을 좀 더 확보하면 어떨까요? 남동쪽 서가와 벤치를 어떻게 하면 바닥면적을 더 확보할까 하면서 아직 고민하는 부분이 서가를 남서쪽에 놓고, 여기도 코너 창을 하면 어떨까 하는 것입니다. 상담할 때 자세히 여쭤보겠습니다.

CG로 보면 홀 앞은 툇마루가 거의 보이지 않고, 탁구대 부분 툇마루가 그대로 있는 것은 다시 만져주실 거지요? 이건 나중에 여쭤볼 부분인 것 같은데, 욕조와 욕실 바닥 사이에 경계턱이 보이지 않는다고 남편이 걱정해요. 저는 폴딩도어는 방충망을 어떻게 하는지 궁금하고요.

홈통 없는 것에 대해 남편과 이제까지 생각했어요. 다른 부분은 다 괜찮은데 주차된 차에 비가 많이 올 때나 겨울에 고드름이 떨어지는 게 걱정됩니다. 전에 말씀하신 주차장 공작물이 해결책이 될까요? 그리고 집 주위에는 둥근 자갈이나 인조잔디를 깔면 외벽이 보호되겠지요?

작은 집에 요구 사항이 너무 많아서 송구합니다. 여주 집에 이렇듯 마음을 써주시니 그저 고맙습니다. 소장님께 맡깁니다.

(추신)

소장님!

지난 3월부터 제가 계속 기력이 떨어지고 있어서 집에 대해 피드백을 드리지 못했어요. 지금은 완전히 방전된 듯한 느낌이에요. 이런 가운데도 여주 집 그림을 보면 입꼬리가 저절로 올라가고 미소가 전면에 퍼지고 가슴이 따뜻해집니다. 때때로 혼자서 신나서 춤도 춘답니다. 여주 집이 저를 밝은 빛으로 따뜻하게 인도하는 것 같습니다. 익지 않은 저의 바람과 생각을 읽어주시고 여주 집으로 구현해주셔서 고맙습니다.

여주 집에서는 ‘무모하게 애쓰며 살지 않아야지’, 심지어 ‘아무것도 하지 않고 살아야지’ 합니다. ‘산달집’에서 아무것도 하지 않고 나를 돌보며 살기로 합니다. 그래서 현재 여주 집 이름은 ‘무위재’로 굳히기에 들어갑니다.


그리고 이틀 후 또 메일이 왔다. 미처 말씀하지 못하신 요청을 하시려나 짐작하고 메일을 열었다.


(2021년 6월 14일)

소장님, 월요일 아침 메일을 쓰지 않을 수가 없네요.(덜컹하시려나!)

수요일에 주문한 책이 금요일 저희가 여주 농막으로 떠나고 한 시간 후에 서울 집에 도착했다는 메시지를 받고, 좀 더 기다렸다가 책을 가지고 올 걸 그랬나 잠시 서운했습니다. 하지만 번아웃으로 책을 읽을 수가 없는 상태라 이내 서운함이 가셨지요. 일요일 밤에 교보문고 택배 상자를 뜯지 않을 수가 없어서 일단 뜯어 머리맡에 놓았습니다. 책으로 향하는 마음을 막지 못해 ‘맛만 보자’ 하고 월요일 출근을 생각해서 맛만 보았습니다.

아침에 다시 책을 들고 60쪽까지 읽다가 메일을 씁니다. 사람들이 팬레터를 쓰는 이유를 알겠습니다. 환갑이 지나서 난생처음 쓰는 팬레터라고나 할까요.

블로그에서 책 제목이 ‘보통의 건축가’라는 것을 보았을 때도, 교보문고 책 소개에서 ‘보통’을 설명하는 것을 보았을 때도 인식하지 못했는데, 일요일 밤 문득 책표지를 보면서 ‘내가 찾던 건축가가 바로 보통의 건축가였다’라고 생각했습니다. 보통의 ‘보석 같은’ 건축가, 제가 소장님의 블로그를 통해 알아낸 것입니다. 뜻이 있되 고매하지만은 않고, 사람 사는 세상에 발붙이고, 살피고 어루만질 줄 아는 보석 같은 뜻과 마음이 읽혀 가장 먼저 소장님을 찾아뵈었답니다. 제가 지난 3월 잠시 마음이 흔들렸다가 다시 돌아왔을 때 “저희가 사람을 좀 볼 줄 알아요” 하고 말씀드렸던 게 다시 생각나네요.

책을 아껴 가며 읽고 싶은데, 책을 잡으면 놓고 싶지 않습니다. 책을 읽을 때 아무 표식도 하지 않는 게 습관인데, 《보통의 건축가》를 읽으면서는 밑줄도 긋고 싶고 제 생각이나 마음도 적어두고 싶습니다. 그래서 메일을 씁니다.

이건 여담인데요. 미국 건축 기행 갔을 때, 건축가에게 일과 가정이 양립할 수 없다는 답을 한 게 누구였을까, 혹시 김00 교수일까 공연한 생각을 했습니다. 그렇다고 해도 상관없지만요. 김00 교수는 남편의 대학 서클 선배이고 저도 그분과 문화 운동에 관한 공부를 잠시 한 적이 있는 오랜 지인이거든요. 그 당시 “너희들 집 지으면 내가 설계해줄게” 하는 말을 다른 건축과 선배들과 했던 적이 있어서, 이번에 설계를 의뢰할 분을 생각할 때 지인으로서 후보로 꼽은 분이랍니다. 소장님을 만나 뵙고 가볍게 버린 카드지요.

이상 64쪽까지 읽고 참지 못해 보낸 감상입니다. 다음은 좀 더 생각하고 보낼게요, 밑줄과 생각과 마음을요!


내 첫 책인 《보통의 건축가》가 6월 5일에 출간되었으니 나오자마자 주문하셨나 보다. 어쩌면 첫 구매자일지 모를 그분에게 감사의 메일을 드렸다.


(2021년 6월 15일)

안녕하세요, 사모님.

어쩌시다가 방전되신 걸까요? 집 생각이 너무 깊으셨던 건지, 일이 과중하셨던 건지? 얼른 기운 차리시길 바랄게요.

팬레터라 하셨는데, 그런 건 처음 받아 보네요. 기분 아주 좋은데요. 읽으시면서 생각도 적고 싶고 밑줄도 긋고 싶다는 말씀에 더 기분 좋습니다.

이건 사모님만 아세요. 여행길에 그렇게 말씀하셨던 건축가는 이제 고인이 되신 ○○○ 건축가세요. 고인의 이름에 누가 될까 봐 이름을 밝히지 않았는데, 문맥상 보면 김○○ 교수님 아니면 ○○○ 건축가라 생각되네요. 참 모질이입니다.

먼저 메일로 주신 내용은 손보고 있습니다. 목요일에 현장에서 뵐 때 가지고 갈게요. 목요일에 뵙겠습니다.

(2021년 6월 15일)

소장님, 안녕하세요.

제 팬레터에 기분 좋으시다니 감사해요. 번아웃을 방전으로 딱 맞게 바꿔주셨어요.

집 생각에 방전되었을까요? 아니, 아니, 아니죠! 집 생각은 방전 와중에도 유일한 낙이었는걸요. 일 때문이에요. 일할 때 생각한 것은 다 하고 싶고, 또 잘해 보이려는 욕심 때문이에요. 능력치나 현실의 한계를 고려하지 않고 일하다 보니……. 일뿐만 아니라 매사에 그렇게 살아와서 이제 에너지가 바닥났어요.

어제저녁에는 거꾸로 놓인 《보통의 건축가》가 ‘건투를 빈다’로 보여, 뭐야? 하고 다시 보곤 픽 웃었습니다. 제가 요즘 이래요. 방전 덕분에 인생 반성 많이 하고 있답니다. 세상에 공짜가 없다는 말이 맞네요. 그런데 기운 차리는 게 급선무라 틈나면 늘어져 쉬는 게 일입니다.

여행길 대목에서 읽는 사람들이 두 사람으로 추측할 거라고 말씀하셨는데 그건 아니에요. 좋아하는 일을 하고 좋아하는 가족과 함께 삶을 누린다는 소장님의 철학에 공감했고, 어린 나이(?)에 그런 경지에 다다랐다는 것이 놀라웠고, 이제까지 그렇게 살아오신 게 부러웠어요. 그런데 마침 그 대목에 아는 이름이 나와서 그냥 막 줄을 그어본 거예요. 김○○ 교수를 안다는 이야기를 하려고 그런 것이지 문맥상 그렇게 읽히지는 않는답니다. 사실 ○○○ 건축가에 대해서는 여러 곳에서 듣고 읽어서 알고 있었는데, 거기에 그분 이름이 있는 건 소장님이 말씀하셔서야 알았어요. 절대 절대 모질이 아닙니다. 아니고말고요.

목요일에 친구들은 오지 못한대요. 백신 맞아야 하고, 일하다 나오기 어려워서요. 저희만 갑니다. 모레 뵈어요.

‘무위재’에서 아무것도 하지 않고 멍 때리는 상상을 하며 잠자야겠어요.


봄에 시작한 설계가 여름까지 이어지고 있었다. 그간 열 번 이상의 만남이 있었고 또 그만큼의 도면을 수정했다. 실시 설계가 거의 끝나갈 즈음 두 분과 함께 나들이 삼아 타일을 보러 갔다.

나는 설계 단계에서 스펙을 확정하는 몇 가지가 있다. 외부 마감 자재를 비롯해 타일이나 조명 등이 그렇다. 특히 화장실을 구성하는 타일과 위생도기, 수전, 액세서리 등은 꼭 디자인과 재질을 설계 단계에서 결정한다.

화장실이 집 전체에서 차지하는 면적은 크지 않다. 화장실은 작은 공간이지만 가족 모두가 매일같이 사용하고 때로는 집을 찾은 여러 사람에게도 쓰이는 공간이다. 여러 사람이 같이 사용하는 공용 공간이지만 사용할 때는 보통 한 사람이 단독으로 사용하기에 가장 내밀하고 사적인 공간이기도 하다. 싸고 씻는 기본적인 기능 외에 휴식과 사색의 장소가 되기도 하는 곳이 화장실이다.

이 말은 다양한 장면이 연출될 가능성을 가진 장소라는 뜻인데, 실제 우리의 추억 속 장면에는 화장실이 등장하는 경우는 거의 없다. 싸고 씻는 기능이 가장 효율적으로 발휘될 수 있는 최소의 면적으로 화장실을 구성하다 보니 집의 크기와 상관없이 비슷한 형태의 화장실(특히 아파트)이 되었고, 오래 머물기보다는 볼일을 최대한 빨리 끝내고 나가야 할 공간으로 여겨졌으니 추억이 끼어들 틈이 없었을 것이다.

화장실을 영어로 ‘restroom’이라고 한다. 편하게 쉬는 장소라는 의미일 것이다. 화장실의 우리말 이름은 뒷간인데, 절에서는 해우소라 하기도 했다. 그중 가장 잘 알려진 곳이 선암사의 해우소다. 정호승 시인의 〈선암사〉라는 시에서도 등장한다.


눈물이 나면 기차를 타고 선암사로 가라

선암사 해우소로 가서 실컷 울어라

해우소에 쭈그리고 앉아 울고 있으면

죽은 소나무 뿌리가 기어 다니고

목어가 푸른 하늘을 날아다닌다

풀잎들이 손수건을 꺼내 눈물을 닦아주고

새들이 가슴 속으로 날아와 종소리를 울린다

눈물이 나면 걸어서라도 선암사로 가라

선암사 해우소 앞

등 굽은 소나무에 기대어 통곡하라


선암사의 해우소는 지금으로 치자면 공중화장실인 셈인데, 남녀 구분이 있고 용변을 보는 곳은 각각 칸막이로 나뉘어 있다. 칸막이의 높이는 쪼그려 앉으면 옆의 사람이 보이지 않을 정도로 낮고 전면은 열려 있다. 쪼그려 앉으면 나무 간살 사이로 밖의 대숲이 보인다. 바람이 불면 대나무 잎들이 서로 스치는 소리가 내 울음소리를 가려주는 곳, 풀잎들이 손수건을 꺼내 눈물을 닦아주는 곳이 변소라니 얼마나 서글프게 아름다운 장소인가.

시에 등장할 만큼 우리네 절의 뒷간은 말 그대로 근심을 풀어주는 특별한 장소였다. 하물며 옛 절도 그러한데, 지금의 화장실이 그렇지 않을 까닭이 없다. 그렇기에 집을 설계할 때는 화장실에 공을 많이 들인다. 이를 닦거나 용변을 보거나 목욕을 할 때, 어떤 동선과 배치가 편리함을 넘어 편안함을 줄지 고민한다.

화장실은 사용의 특성상 맨발, 맨손, 맨몸의 경우일 때가 많다. 시각과 촉각이 거의 동시적으로 감각되는 장소인 것이다. 그렇기에 타일은 디자인, 색감도 중요하지만, 촉감이 특히 중요하다. 그래서 이미지로 타일을 고르는 것은 좋지 않은 방법이다. 직접 타일 판매장에 가서 전시된 온장의 타일을 눈으로 확인하고 만져보고 고르는 것이 좋다.

건축주와 함께 자재를 고르는 과정을 거치면, 건축가는 건축주의 드러나지 않은 취향을 탐색해볼 수 있고 건축주에게는 건축가와 함께 디자인에 참여하고 있다는 즐거움, 안도감을 줄 수 있다. 뜨거운 여름날, 두 분과 함께 타일 전시장을 찾은 까닭은 그래서다.

무위재의 화장실. 타일은 바닥과 벽을 통일해 사용하였다.


(2021년 8월 7일)

소장님, 휴일에 메일을 보내 유감입니다. 수요일 오후에 바로 보낼 것을 후회하며, 지금 하지 않으면 또 다음 주로 미뤄질 것 같아서요.

타일을 고르고 나니 드디어 집을 짓게 되는구나 실감이 납니다. 각 공간을 떠올리면 엔도르핀이 뿜뿜 나오는 것 같습니다. 본채 욕실을 그려보고요, 사랑방 욕실을 아이보리 베이지와 그레이 베이지 두 가지로 떠올려보고요, 다용도실 분위기를 짐작해보고, 현관 바닥이라고 생각하고 맨발로 쓱 문질러보기도 합니다.

제일 궁금한 게 2층 베란다예요. 이 경험은 처음이라 그런 것 같아요. 봄, 여름, 가을, 겨울, 아침, 한낮, 저녁으로 바닥에 앉아 앞산을 바라보면 어떨까 궁금합니다.

집안 분위기를 ‘따뜻하고 자연스러우면서 깔끔하게’ 하고 싶다고 생각했는데, 소장님은 물론이고 키앤세라 대표님도 그렇게 생각하셨다는 게 신기했습니다. 앞으로 어떻게 전개될지 궁금하고 기대됩니다.

창호에 대한 피드백을 드리려고 하니, 몇 가지 궁금한 게 있어서 메일보다는 만나서 여쭈어보며 정리하면 좋겠다고 생각합니다. 조명이나 다른 것들과 함께여도 좋고요.

다음 주 수요일까지 휴가이고 다른 날들도 미리 말씀해주시면 소장님 일정에 맞출 수 있습니다.

친구네가 와서 이만 줄입니다. 얼마 남지 않은 여름날 건강 잘 챙기시고 마음껏 누리소서.


어느 여름날, 오전 나절을 두 분과 여주 집 이야기를 하며 보냈다. 창과 조명에 관해 이야기했고, 두 분의 일상과 조우하는 모습을 상상하며 조율해나갔다. 좀처럼 표정을 드러내지 않던 남편분이 흡족해하셨고 그 모습에 고무된 사모님은 또 말이 많아지셨다.

가시는 길에 텃밭에서 모기에 뜯기며 따셨다는 당고추를 한 보따리 놓고 가셨다. 아마도 몇 시간 후면 장문의 메일이 올 것이다. 오늘의 협의에 대해 깨알같이 느낌을 풀어 놓으실 것이다. 고추 맛이 어땠냐는 이야기도 더해서.


여름이 끝나갈 무렵, 설계는 끝이 났다. 그리고 긴 기다림이 이어졌다. 토목이 문제였다. 가을에는 착공할 수 있겠거니 기대했던 두 분과 우리는 맥이 빠졌다.

가을에 착공했더라면 다음 해 봄에 입주할 수 있었을 터이고 설계부터 시공까지 딱 1년의 시간을 보냈을 것이다. 통상 집을 설계하고 시공하는 일정은 1년 정도다. 그래서 나는 집짓기를 농사에 비유하기도 한다. 봄에 씨를 뿌리듯 설계하고, 여름과 가을에 땀 흘려 농사짓듯 시공하고, 다시 봄이 오면 씨를 뿌리듯 생활이 집에 심긴다. 이런 자연스러운 흐름이 끊기니 아쉬울 수밖에.

겨울 공사를 할 수는 없어 공사 일정은 내년 봄으로 미루기로 하고 남는 시간에 시공사 선정에 공을 들이기로 했다.


무위재의 대청 마루


keyword
이전 04화전원주택, 행복한 집짓기의 여정 _ 구조방식의 선택