brunch

보편적 주거(2)

by 주용

한정된 공간 안에서 요구되는 기능들이 많다면, 이를 수용하기 위해 개인 공간 이외의 공간을 공유하는 것이 불가피하다. 청년들의 주거 만족도는 점유 형태보다 물리적 주거환경과 주변 환경 그리고 이웃들과의 관계와 신뢰도가 중요한 요인으로 나타난다.[1]


즉, 이웃 간의 신뢰도와 안정성이 보장되고, 개인 공간이 보장된다면, 거주자들이 공유 공간을 통해 물리적 주거환경의 만족도를 높일 수 있다는 뜻이다. 현대 사회에 맞는 기능적인 공유 공간을 만들기 위해 196,70년대 건축가들의 공유 주택에 관한 시도들을 참고해 볼 필요가 있다. 1960년대와 1970년대 건축가들은 이상적인 공유 주택을 만들고자 많은 시도를 했다. 그러나 당시 설계된 집합주거에서 드러난 공용공간의 문제점을 간과해서는 안 된다. 예를 들어 공적 공간과 사적 공간 사이의 불분명한 경계 설정이 가장 큰 문제였고, 각 공간 영역의 역할이 정해져 있지 않은 점 또한 문제였다. 이로 인해 여러가지 문제 제기가 지속적으로 이루어졌다.[2] 특히 공용공간에서 ‘공유성’, ‘이웃과의 친분’을 위한 공동체적 결속 의미가 상실되고, 사적 영역과 공적 영역의 경계에 형성되는 ‘매개공간’의 의미만 남게 되었다는 지적이 그러하다.[3] 단순히 개인 공간 사이에 존재하는 공간이 무조건 공유공간으로서 역할을 하는 것은 아니라는 뜻이다. 따라서 기능적인 공유 공간을 만들기 위해서는 사적 공간과 공유 공간의 재조합이 필요하다.[4]


다음은 Archasm 국제 공모전에 제출했던 공모안이다.

1.jpg 심주용, <Home, the Village>, 2020, diagram

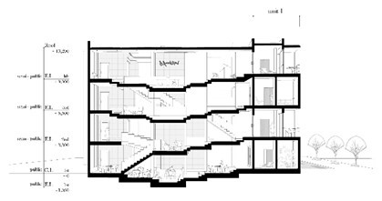
해당 공모안의 사이트는 뉴욕이었다. 뉴욕 역시 심각한 주택난을 겪고 있고, 무엇 보다 세계에서 가장 비싼 집세 때문에 동일한 공간을 전혀 모르는 타인과 공유하는 경우가 빈번하다. 그들에게 개인 방에 붙어 존재하는 공유 공간은 공유 공간이 아닌, 위험에 노출될 수 있는 공간이기도 하다. 따라서 나는 슬라브의 분리와 방의 재배치를 통해 사적 공간과 공유 공간의 위계를 달리해보고자 했다.

2.jpg
3.jpg
심주용, <Home, the Village>, 2020, view/section plan

이와 같이 공간을 재 배치할 경우, 비록 사적 공간에서 공유 공간 까지 동선은 길어지지만, 사적 공간의 안전성을 보다 더 상승시킬 수 있다. 또한, 각 층의 슬라브를 분해해 수직적으로 뚫린 환경을 제공하기 때문에, 한 사람이 보다 더 많은 공유 공간을 향유할 수 있고, 다양한 사람들과 공유 공간을 향유하기 때문에 소수와 공유할 때 보다 안전성을 보장받게 된다.[4]

또한 공유공간의 다양화는 ‘반-공유’, 그리고 ‘공유’ 공간을 통해 공유성과 이웃과의 친분에 대한 의미를 재정립하게 도와줄 것이다.


우리는 요즘 한 치 앞도 알 수 없는 펜데믹 시대에 살고 있다. 점점 외부에서 할 수 있는 활동들이 줄어들면서 자연스럽게 사람들은 주거 공간에 더 집중을 하게 됐다. 하지만 만족스러운 주거공간에서 활동할 수 있는 사람들은 제한되어 있다. 그렇지 않은 사람들은 일종의 박탈감, 소외감으로 인해 우울증에 시달리고 힘들어 한다. 실제로 코로나 시대 이후, 혼자 사는 20대 여성의 우울증 비율과 자살율이 높아졌다는 기사가 나오기도 했다. 이는 주거공간이 그 만큼 중요하다는 뜻이기도 하다. 따라서 우리는 소외되고 혜택 받지 못한 계층의 주거환경에 주목할 필요가 있다. 그들의 환경을 이해하고 이에 맞는 주거환경을 제공하고자 노력했을 때, 보편적으로 행복을 향유할 수 있는 함께 사는 사회를 만들어 나갈 수 있을 것이다.



[1] 김준호, <소득계층 및 주택점유형태별 주거 만족도에 관한 연구>, 2016, 98page

[2] 한지형, <집합주거 공용공간에 대한 사회적 요구와 건축적 지침의 상관성>, 2013, 431page

[3] 한지형, <집합주거 공용공간에 대한 사회적 요구와 건축적 지침의 상관성>, 2013, 432page

[4] 심주용, <Home, the Village>, 2020, diagram

[5] 심주용, <Home, the Village>, 2020, view/section plan




keyword
매거진의 이전글보편적 주거(1)