brunch

육지것의 제주이야기 III 송당목장 민오름 숲터널

여든하나. 송당마을의 쉼의 시간, 편백나무 터널과 민오름

by Architect Y

제주 중산간지역을 달리다보면 눈 앞에 펼쳐지는 거목들의 숲의 터널을 지나곤 한다.

방풍림으로 삼나무가 선택되어 만들어진 제주의 숲터널의 풍광은 담양의 메타세콰이어길 못지않다.

길어깨에 잠시 주차라도 하고 사진 한컷을 남기고 싶을만큼 아름다운 모습은 이애 지나쳐버리고 아쉬움이 남는다.

그렇기에 차량이 많은 주 도로가 아닌 숲터널은 이내 웨딩사진의 명소로 남는다.

민오름 삼나무길 06.jpeg
민오름 삼나무길 07.jpeg

오늘 열어 볼 곳은 비밀스러운 귀빈사, 높지는 않지만 알려지지 않아 숲의 내력을 간직한 자그마한 민오름, 그리고 이국적인 편백나무 숲 터널이다.

민오름 삼나무길 03.jpeg
민오름 삼나무길 01.jpeg

송당목장으로 가는 길에 만나는 편백나무길은 가지치기를 하지 않아서인지 더욱 야생적으로 보이고 운치 있어 보인다.

조용히 길을 걷다 보면 이내 흙과 나무 냄새가 올라오면서 마음이 평화로워진다.

웨딩촬영 장소로 많이 찾는 길이라하는데 충분히 납득이 가는 나무를 타고 올라가는 덩굴 식물과 어우러져 빼곡하게 곧게 뻗은 편백나무길.

민오름 삼나무길 05.jpeg
민오름 삼나무길 08.jpeg

800m정도로 조성이 되어 있는데, 송당목장(내 귀빈사)와 민오름을 함께 볼 수 있는 길이다.

이제는 송당목장과 귀빈사에 들르지않아도 찾게되는 스냅사진에 어울리는 명소로 자리잡아가고 있다.

하지만 힐링의 여행을 원한다면 길고 곧게 뻗은 나무들이 빽빽하게 들어차있는 숲을지나 자그마하게 나있는 오솔길로 민오름과 귀빈사를 함께 돌아본다면 후회하지 않는 제주 여행으로 남을것같다.

민오름 삼나무길 09.jpeg
민오름 삼나무길 11.jpeg

민오름은 제주에 제주시 봉개동과 오라동, 조천읍 선흘리, 구좌읍 송당리에 각각 1개씩, 그리고 서귀포시 남원읍 수망리에 1개 등 5곳이 있고 봉개동의 그것이 가장 많이 알려져 있어 송당목장을 찾아가면 된다.

송당마을 민오름은 한국 땅이라고 하기엔 믿기지 않을 만큼 이국적인 정취를 물씬 풍겨낸다.

오름은 동쪽 비탈 일부를 빼곤 제법 가파른 편인데다 산책로도 잘 정비돼 있지 않다.

민오름 02.jpeg
민오름 03.jpeg
민오름 04.jpeg

대신 나뭇가지 곳곳에 나름 안내자 역할을 하는 리본 등이 달려 있다.

정상까지는 20분이면 충분히 오를 수 있다.

정상에선 프로 사진작가가 찍은 작품 같은 경관이 눈앞에 파노라마처럼 펼쳐진다.

정상은 북동쪽으로 야트막한 말굽형 굼부리를 이루고 있으며, 두 등성이는 완만한 가운데 민듯한 능선을 갖고 있다.

저 멀리 북쪽으로 거슨새미오름과 칡오름이 보이고, 동쪽으로는 아부오름과 높은오름, 동검은오름, 백약이오름도 들어온다.

남쪽에는 돌리미오름과 비치미오름, 개오름, 성불오름이 자리하고 있다.

민오름 07.jpeg
민오름 08.jpeg
민오름 09.jpeg

오름 아래로는 광활한 초원지대가 펼쳐져 장관을 이루고 있다.

인공이 가해지지 않은 원시 그대로의 자연이 숨 쉬는 모습은 지친 몸에 활기를 불어 넣어주기 충분하다.


민오름에 오르기 전 보이는 송당목장은 과거 제주국립목장이었을 만큼 그만큼 목장과 초지의 규모가 엄청나다

목장의 규모는 900만 평에 축사 105동, 관사 8동 이었다.

특히 목장 내 관사에는 대통령 전용 특호관사 1동과 귀빈용 갑호관사 2동, 을호관사 1동이 포함되었다.

여기를 찾아오면 부록처럼 따라오는것이 貴賓舍귀빈사다.

귀빈사 04.jpg

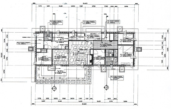
귀빈사는 국립제주목장에 건설된 대통령 전용 특호관사 1동으로 흔히 이승만대통령 별장으로 불리는 전용별장이다.

설계자는 알려져 있지 않으나 목장건설지 시찰에 한미재단 이사장 밴폴리트(전 미8군사령관)등을 대동하였고 당시 건설자재 확보가 여의치 않았을 사회적 여건 등을 고려할 때 미8군 공병대에서 설계했을 것으로 추측된다.

내부공간은 입식생활을 전제로 계획되어 벽난로가 있는 거실, 식당과 부엌 등이 외부 공간으로 직접 연결되는 등 실 배치가 기능적으로 계획되어 있고, 거실 외부 발코니 공간을 피로티로 처리하여 거실-발코니-정원으로 이어지는 등 상당히 서양적인 건축계획개념이 적용되었다.

주요벽체의 입면처리에 있어서는 제주의 돌을 사용하여 제주적인 건축요소로 표현되어 있고, 거실 외부공간의 발코니 바닥부분이나 외벽의 일부에는 돌을 이용하여 한국전통문양을 표현하는 등 제주적인 의장과 한국적인 의장요소가 적절히 표현되어 세련된 디자인으로 평가할 수 있다.

이승만 대통령과 국립제주목장 03 현황설명을 듣고 있는 모습.jpg
이승만 대통령과 국립제주목장 04 송당목장을 시찰.jpg
건립전 시찰과 설명을 듣고 있는 이승만
귀빈사 02.jpg
귀빈사 01.jpg
귀빈사 05.jpg

제주 4.3의 주범인 이승만 별장이었던지라 제주도민들에게는 아픈 과거로 남는 건물이다.

그래 방치해 2010년 제주시가 실시한 종합정비계획수립용역에서 건물구조안전진단 결과 위험 등급인 D등급 판정을 받아 건물정비가 시급한 상황에서 제주시는 보수보강 및 기반시설에 10억원, 기념관 조성과 공중화장실 등 기반시설 10억원 등 총 20억원의 사업비를 들여 기념관을 조성 관광자원화하는 방안을 추진했다.

사업소식에 4·3 유족들은 4.3학살의 장본인에 대한 기념관 건립은 있을 수 없다며 거세게 반발, 2년 가까이 보수 공사가 진행되지 못했다.

결국 제주시는 기념관 건립사업은 우선 접고 폐허가 된 귀빈사 복원에 초점을 맞춰 소방과 배수시설 등이 포함된 보수공사만 하는 것으로 계획을 변경했다가 건축물만 보수하는 쪽으로 사업을 축소했다.

이승만 대통령과 국립제주목장 05 특호관사 평면도.jpg

유명한 관광지나 해변, 카페거리등에서 느끼는 제주는 유니버셜한 모습으로 다가오지만 맑고 깨끗한 바람 소리와 바람에 부딪히는 나뭇잎 소리, 새들의 지저귐은 돌아가는 발걸음을 더욱 가볍게 만드는 쉼의 시간이된다.

*송당목장은 현재 제주축산개발주식회사가 운영하는 사유지이므로 드물게 방역 때문에 통제 될 때도 있다.

keyword
매거진의 이전글육지것의 제주이야기 III 제주의 비경 오라동 메밀