brunch

인문 건축가의 건축 뒤집기 XXIV 시네마센터

; BIFF 부산 영화의 전당

by Architect Y

부산의 인구는 350만.

인구는 줄고 있고 굴뚝산업은 대부분 중국으로 넘어가니 먹고 살 방법은 컨텐츠산업이다.


제2대 문화부 차관을 거쳐 부산국제영화제조직위원회 집행위원회 위원장으로 1996년 제1회 부산국제영화제 열게한 인물, 김동호 전 차관.

1937년 강원도 홍천 생으로 경기중 1학년 때 6·25전쟁 발발하며 부산에서 4년간 피란생활을 했다.

길거리에서 좌판도 벌리고 목판을 메고 미군부대에서 나온 담배·초콜릿·과자를 팔며 행상도 했다고 한다.

중·고교 시절은 학비를 못내 늘 쩔쩔 매고, 대학 때는 서울 청량리 집에서 동숭동 학교까지 걸어 다녔다.


서울대 법대를 졸업한 후 61년 문화공보부 주사보로 공직에 입문한 그는 문화국장 보도국장 기획실장 등 요직을 두루 거치며 문화예술진흥원(현 문화예술위원회), 국립현대미술관, 독립기념관, 예술의전당 등 문화시설 기반 조성 사업에 주도적으로 참여하고 ‘낙하산 인사’라는 영화인들의 반발 속에 취임한 영화진흥공사사장(88∼92) 때는 밤새 술을 마셔가며 반대하는 지역 주민들을 설득해 남양주 종합촬영소를 설립하는 뚝심을 보였었다.

예술의전당 초대 사장(92), 문화체육부 차관(92∼93) 역임하고 공연윤리심의위원회 위원장(93∼95)을 끝으로 34년간의 공직생활 마감한다.


1996년 부산국제영화제 집행위원장 취임하여 달랑 3억원 들고 제1회 부산국제영화제 개최한다.

1회 상영작은 169편에 세계 영화인 2,241명이 찾았다.

2015년엔 75개국 302편, 영화인 9,600명에 총 22만명이 찾았다. 이제 예산도 15억을 넘는다.


칸영화제가 1995년 50회를 맞이할 때까지 한국영화는 4편만 상영됐다.

96년 칸 사람들이 부산을 찾은 뒤 98년에만 한국영화 4편이 칸을 찾았다.

2001년엔 '춘향뎐'(감독 임권택)이 경쟁부문에 첫 진출했고, 2002년엔 '취화선'의 임권택 감독이 감독상을 받았다.

부산영화제의 가장 큰 기여가 한국영화의 해외 진출이다.

- 김동호


대선을 앞둔 2002년 11월 9일자 부산일보는 PIFF 전용관 세우겠다는 이회창, 노무현, 정몽준, 권영길 등 4당 대통령 후보의 공약을 1면 머리기사로 게재한다.


노무현 정부 출범 후 전용관 건립예산 100억 원을 기획예산처에 요구.

2004년 예산에 용역비 10억 원과 설계비 30억 원이 전격 반영됐다.

이에 따라 국비 230억 원, 지방비 230억 원 규모의 건축비 확정하지만 460억으론 택도 없다.

작은 규모로 재 검토 중이지만 초기 노들섬 오페라하우스의 예산은 5천억이었다.


영화제 전용관은 해운대 바닷가에 짓자고해서 제1후보지는 옛 극동호텔과 국방부가 소유한 땅이었으나 매입실패(당시 500억 원이면 모두 매입해 부산시가 독자적으로 건립할 수 있었다)하고

요트인들 결사반대로 제2후보지는 1986년 아시아경기대회를 위해 조성한 요트경기장도 무산된다.


처음 부산 영화의 전당 이름은 두레는 함께 모여, 라움은 즐거움이라는 의미의 두레라움이었다.

함께 모여 영화를 즐기는 자리인데 촌스럽다는 부산시의 태도로 센텀시티로 결정한것이다.

설계자는 국제 공모로 7개 디자인 회사로 결정한다.


Steven Holl 스티븐 홀(미국),

Bernard Tschumi 베르나르 추미(스위스)

Coop Himmelb(l)au 쿱 힘멜브라우(오스트리아)

MVRDV(네덜 란드),

Erick van Egeraat 에릭 반 에게라트(네덜란드),

Ten arquitectos 텐 아키텍토스(멕시코),

Heikkinen-Komonen & Markku-Komonen 하이키넨-코모넨(핀란드)


1차 심사에서 3명으로 압축, 다음달 2차 심사에서 쿱 힘멜브라우가 설계자로 확정한다.


이 프로젝트의 기본 개념은 개방 공간과 폐쇄 공간 및 공공 및 사설 공간의 중첩에 대한 논의였다.

오랫동안 관심을 갖고 있었던 주제 인 건축 요소로서 지붕의 주제를 다루었다.

지붕을 보호의 단순한 요소로 간주하지 않고 가장 다양한 개념의 프레임으로 정의하는 것은 Oscar Niemeyer 오스카 니마이어와 Le Corbusier 르 코르뷔지에 였다.

Niemeyer, Le Corbusier

Rio de janeiro에 있는 니마이어의 Museum에서는 지붕이 더 이상 평면도를 따르지 않지만 주변과 자연을 볼 수 있다. 르 코르뷔지에의 Marseille에있는 Unité d' Habitation의 지붕은 조각 조음을 통한 풍경 그 자체다.

이러한 아이디어를 바탕으로 COOP HIMMELB (L) AU는 뮌헨과 부산 시네마 센터의 BMW Welt 지붕을 개발했다

- 쿱 힘멜부라우

쿱 힘멜브라우는 울프 프릭스와 헬무트 스비친스키가 1968년 오스트리아 비엔나에 설립한 회사.

Coop는 주식회사, Himmelb(L)au의 의미는 괄호안의 L을 뺀 Himmel은 하늘, bau는 구축이라고 구름처럼 떠 있고 변화무쌍한 환상으로 가득찬 건축물을 만들겠다는 의지다.


당연히 그들의 작품들은 모티브, 개념등이 서로 연결이 되어 있다.

이를 두고 국내 건축계는 독일 BMW Welt의 모방이라는 단어를 사용하며 폄훼하려 한다.

회사의 의미와 지금까지 그들의 작품과 습작은 그리 단순히 치부될일은 아니다.

건축가는 자신의 유사한 작가적 코드를 적용해서 잘됐던 부분과 잘못됐던 부분을 발전시켜 나가기도 한다.

BMW Welt

Helmut Swiczinsky 헬무트 스비친스키는 1944년 폴란드 생 오스트리아 비엔나에서 성장 비엔나 공과대학, 런던 AA에서 수학 1973년 런던 AA에서 초빙교수 역임 비엔나의 유럽과학예술아카데미 평생회원이고 Wolf. D Prix 울프 디터 프릭스는 1942년 출생 비엔나 공과대학, 런던 AA, 로스앤젤레스 SCI-ARC에서 수학 1993년부터 비엔나 응용미술대학교 건축과 교수로 재직 중 2003년 건축대학장을 역임했다.

Coop Himmelb(l)au 작품들

쿱 힘멜부라우는 2006년 설계 결과를 보고하며 공사비를 1278억 원으로 산출하지만 부산시, 문화부, 예산처 모두 반대한다.

예산안은 KDI 타당성 검토 결과 691억 원으로 상향하고 2008년 최종 설계 결과 건축비는 1624억 원으로 다시 늘었다.

그럼 설계비는 대략 80억정도고 쿱 힘멜브라우은 30%인 24억, 나머지는 국내 건축사무소 몫이다.

국비지원 규모는 확보한 446억원에 80억원을 더해 526억원인 반면 부산시의 부담액은 무려 1천98억원.


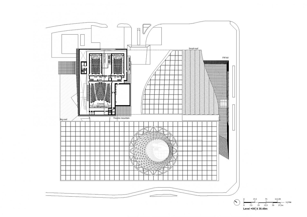
3000평(62m×163m)에 달하는 4000t 무게의 세계 최대 지붕이 더블콘(아이스크림콘 두 개가 맞물려 있는 형태) 모양으로 설치된 빅루프는 세계 최장의 트러스 구조물(삼각형으로 연결한 구조물)을 지상에서 조립한 뒤 유압잭을 이용해 들어올려 고정시키는 Lift-up 공법을 이용해 시공했다.


이 빅루프 아래 광장에는 비밀이 있다.

바로 바닥에 숨겨진 보조 기둥.

자연재해는 예측할 수 없어 빅 루프는 지진 규모 7.0, 순간 최대 풍속 65m(초속), 적설량 1m 이상에도 견디도록 설계됐다.

그래서 생각해낸 것이 보조 기둥 2개.

태풍이나 지진 시 캔틸러버가 85cm 정도 흔들리는 것을 고려해 지하에서 2개의 지지대(담보지지시스템)가 올라오도록 한것이다.

재해를 감지하면 바닥에 숨어 있던 보조기둥(10단) 2개가 자동으로 올라와 빅 루프의 양쪽 끝을 떠받치게 된다.

캔틸레버는 처짐을 감안해 45cm 치올림 시공했고.

빅루프 천장은 1mm 이하의 작은 칩 32개가 만나 형광등 수준의 밝기를 내는 4만 2천개의 LED(light emitting diode)등이 환상적인 조명을 연출하니 상상 가능한 모든 모양으로의 변신 가능하다.

조명이 비치는 면적은 축구장 2.5배 크기로 건축물 경관조명 가운데는 국내 최대 규모.

조명 설치비만 44억.

부산국제영화제는 2010년까지 PIFF(Pusan International Film Festival)라는 표기를 썼지만, 부산의 영문 표기가 Busan으로 바뀌면서 2011년부터 BIFF가 됐다.


부산광역시 해운대구 우1동 1467번지

대지면적 32,137.20㎡

건축면적 22,140.44㎡

연면적 54,335.02㎡




keyword
매거진의 이전글인문 건축가의 건축 뒤집기 XXIII 아라뱃길