brunch

식당의 공간(주방 동선)

by 민 쿡

* 동선이란 : 사람이나 물건이 특정 목적(=작업)을 위해 움직이는 자취나 방향을 나타내는 선이다.

주방동선_주방_동선 (1).jpg

2001년 처음 일식당을 시작했을 때의 일이다.

일식도 한식도 양식도 아닌 이상한 컨셉의 식당을 인수했다.

당시 주방 퇴식구쪽에 있어야 할 식기 세척기가 스시 바쪽에 있었다.

동선에 맞지 않는 곳에 위치한 식기 세척기는 영업을 하는 내내 나를 괴롭혔다. 바쁘면 바쁠수록 더 힘들었다.

결국 영업을 시작하고 6개월 지난 즈음 식기 세척기를 빼내고 그 자리에 작업대를 넣었다.

세척기 하나 뺀것이 신세계 같았다.

동선이 좋아지니 급작스러운 매출 상승에도 큰 문제 없이 영업을 할 수 있었다.

그 뒤 부터는 영업할 때 불편한 부분이 있으면 주방 집기를 직접 그려가며 동선을 수정하기 시작했다. 그렇게 하기 위해 주방 집기의 위치를 바꾸고 정리정돈을 자주했다

투박하고 어설펐지만 주방집기를 이동시키기만 해도 영업의 효율이 좋아진다는것을 체감했다.

주방동선_주방_동선 (2).jpg

식당업과 다른 사업과의 가장 큰 차이점을 이야기한다면 식당은 생산과 소비가 동시에 해야하는 업이다.

미리 생산하여 만들어 놓을 수 없다는 것은 일반 생산업보다 재고 관리와 생산 관리가 더 어렵다는 것있다. 사업의 큰 약점이다.

때문에 다른 업보다 더 시스템적이어야 한다. 하지만 식당을 하는 주체들은 식당이 왜 더 시스템 적이어야 하는지, 생산과 소비가 동시에 이루어지는 것이 얼마나 큰 약점인지 모른다.

그럼에도 불구하고 식당을 운영하는 사람들 대부분은 영세하기 때문에 비용이 많이 들어가는 시스템은 만들 생각조차 하지 못한다.

결국 사업주와 직원들의 노동력과 개인의 스킬에 의존할 수 밖에 없다.

주방동선_주방_동선 (3).jpg

식당이 아직까지는 노동집약적 사업이지만 인건비가 높지 않았던 예전에는 매출만 올리면 먹고 살 만큼의 수익을 냈던 시대가 있었다. 사람을 쓸만큼 써도 수익이 났었다. 하지만 그이야기도 옛이야기이다.

이런 상황임에도 대부분의 식당은 20 년 전의 형태와 별반 다르지 않다. 이렇게 인건비가 계속 높아지고 있지만 직원들은 힘든 일을 하지 않으려한다. 그렇다고 수익을 내자고 어디 한군데서 비용을 확 줄이거나 매출을 확 늘릴 수 있는 것도 아니다.

지금은 무조건 매출을 올린다고 수익을 내는 시대는 아니다. 어설프게 매출을 올렸다가는 세금 폭탄을 맞을 수도 있다. 이제 수익을 내는 방법은 보이지 않는 비용을 줄이고 그 안에서 최대의 효율성을 찾는 방법 뿐이다.

그러기 위해서 시스템을 구축하고 서비스의 양적인 부분과 직원들의 노동 강도를 줄이는데 집중해야 한다. 즉 상품의 생산 프로세스를 단순화 시키고 상품제공 과정을 줄여야 한다.

포스나 키오스크와 같이 손님을 응대하는 서비스에서는 프로세스 개선을 지소적으로 진행 해 왔지만 식당의 주방 영역에서는 아직도 대부분 예전의 모습을 벗어나지 못했다.

이런 시스템이 개발될 때까지 마냥 기다렸다가는 그전에 버티지 못하고 문을 닫게 될 것이다. 적극적인 대처가 필요하다.

주방동선_주방_동선 (4).jpg 주방동선설계


식당의 공간

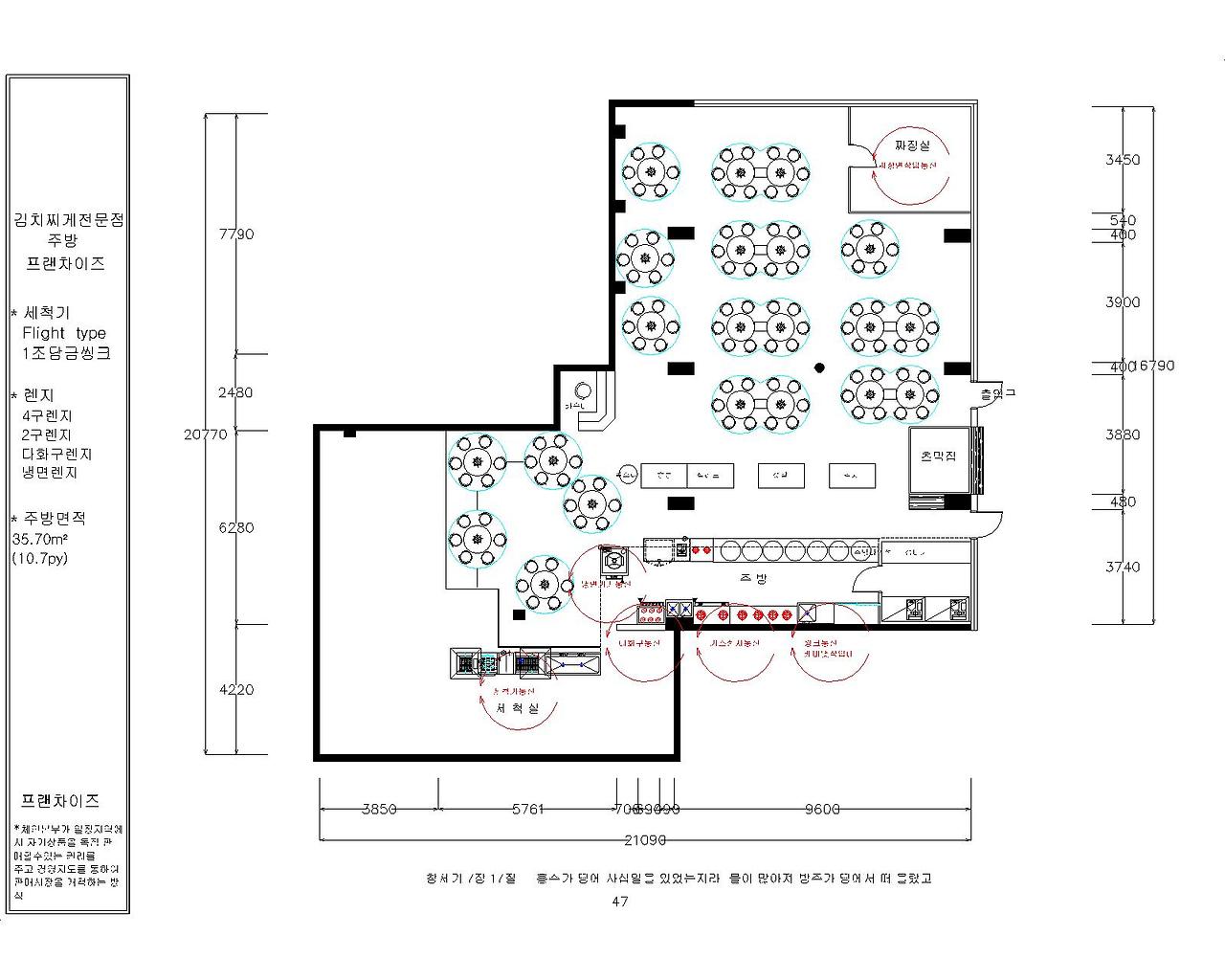
주방 - 식재료의 처리와 조리를 위한 공간이다.

20160622_131102.jpg 주방동선 설계

홀 - 손님 서비스를 위한 공간이다.

47김치찌게.jpg

창고 - 식자재 및 주류,기물을 보관하기 위한 공간.

식당식자재창고.JPG

퇴배식 및 세팅 - 음식이 들고 나는 공간이며 특별한 영역은 없지만 반드시 필요한 공간이다.


20151017_135921.jpg


keyword
작가의 이전글식당 상권 선정을 해야 한다면...