자본금 1억으로 결혼하기_집 구하기

by 달콤말이

어디에 살아야 될까.


우리 둘 다 직장은 서울이었다. 그런데 가용자금이 빠듯했기 때문에 서울에서는 전세도 얻을 수 없는 금액이었다. 나는 늘 인천에서 서울로 출퇴근을 해왔기 때문에 인천도 괜찮았지만 서울에 살던 그가 인천에서 사는 건 좀 힘들 수도 있겠다 싶었다. 물론 나도 회사 일과 집안 살림을 병행하려면 조금이라도 회사에 가까운 곳에 살면 좋겠다고 생각했다.


처음 가본 곳은 동인천역 근처의 아파트였다. 신혼부부가 살던 집이라 인테리어는 깔끔하게 돼있었지만 아이와 살기엔 너무 비좁아 보였다. 지하철 종점이라 무조건 앉아서 출. 퇴근할 수 있다는 장점은 있었지만 그래도 회사와 거리가 멀다는 단점이 있었다.

두 번째 가본 곳은 부평역 근처의 도시형 생활주택이었다. 신축 건물이라 마음에 들었고 인테리어도 깔끔했다. 30평 정도 되는 집 넓이도 마음에 들었지만, 창문을 열어 본 순간 옆 건물과의 간격이 30센티미터도 되지 않는다는 사실을 알았다. 환기는커녕 창문을 열 일이 없을 것 같았다. 열어봤자 어차피 보이는 건 벽이었다.

마지막으로 가본 곳은 부천의 오래된 저층 아파트였다. 내부 인테리어가 하나도 안 되어 있어서 너무 낡았고 처음 봤던 아파트만큼 비좁았다. 아마 13평 정도 되는 듯했다. 그래도 더블 역세권으로 각각의 역이 도보 10분 거리에 있었다. 아파트 입구 바로 앞에서 지하철역까지 다니는 마을버스도 있다고 했다.


언니와 친한 친구가 부천 옥길지역을 추천해 주었다. 막 재개발이 되고 있는 곳이라 신축 아파트가 많고 신도시처럼 주변 환경이 개선되고 있는 곳이었다. 3억 후반~4억 대로 신축 아파트를 매매할 수 있었다. 그런데 출. 퇴근을 하려면 지하철역이 가까워야 하는데 그런 부분이 조금 아쉬웠다. 그리고 무엇보다 결혼을 할 수 있는 자본금이 딱 1억이었다. 가용자금의 3~4배를 대출받아야 한다는 사실이 너무나 큰 부담이었다. 이자 갚는 건 문제가 안 됐지만 원금은 언제 갚을 수 있을지 기약도 없을 것 같았다.


현실적으로 매수가 가능한 집 중에서 도시형 생활주택은 나중에 주택으로서 값어치를 제대로 못 할 것 같았다. 동인천역 아파트는 회사에서 너무 멀었다. 조금 낡긴 했지만 서울 근교이고 지하철 역에서도 멀지 않은 세 번째 아파트를 두고 고민이 되었다. 내부 인테리어는 새로 하면 되지만 집이 너무 좁았다. 부동산에 대해서 잘 알고 계신 아빠께 우리가 보고 온 집을 한번 방문해서 봐 달라고 부탁드렸다.

집을 둘러보고 오신 아빠께서 새로운 부동산 연락처를 하나 알려주셨다. 아빠가 그 집뿐 아니라 그 일대에 매물이 나와 있는 집을 전부 다 둘러보고 오셨다고 했다. 전체적으로 오래된 아파트가 주를 이루고 있었으나 재개발은 어려운 지역이라고 하셨다. 그리고 어느 집을 둘러봐도 대체적으로 평수가 다 적다고 하셨다. 그중에 23평 정도 되는 집이 있었다. 엘리베이터 없는 아파트의 탑층이었지만 금액도 대충 맞아떨어졌다. 돌아오는 주말에 그와 함께 아빠가 보고 오신 집을 보러 가기로 했다.

우리가 처음 봤던 아파트와 같은 아파트의 바로 옆동이었다. 여대생이 전세로 살고 있었는데 집 상태가 생각보다 괜찮았다. 그리고 대학생이 사는 집이라 살림이 많지 않았기 때문에 상대적으로 집이 꽤 넓어 보였다. 집주인이 세를 놓기 위해서인지 몰라도 중간에 한번 인테리어를 한 흔적도 보였다. 이 집이다 싶었다. 어차피 결혼 자금이 부족했기 때문에 대출은 당연히 생각하고 있었다. 이자+원금도 현실적으로 갚을 수 있을 정도의 금액이었다. 매매대금이 1억 4천이고, 추가로 취등록세+등기비용+리모델링비용 기타 등등 2천이 추가된다고 따져봤을 때 1억 6천 정도 들 것 같았다. 빙고! 식장을 예약하고 3주 만에 내 집을 찾아서 계약했다.


아파트의 경우 집값의 70%까지 대출이 나온다고 했다. 1억 정도는 대출을 받을 수 있다는 뜻이니 이제 남은 가용자금은 4천만 원(자본금 1억 + 대출 1억 - 집매매+인테리어 1억 6천)이었다. 결혼까지는 4달이 남았고 집 구하기까지 어렵지 않게 진행이 되었다. 모든 일들이 순조롭게 진행돼가고 있었다.




“그때 영혼까지 다 끌어서 무리하게라도 대출받아서 옥길지구에 제대로 된 신축 아파트를 샀어야 됐어. 신혼부부 생애 첫 주택 혜택도 받을 수 있었고, 그 뒤로 그쪽 집값 쭉 올라서 샀어도 후회 안 했을 건데… 그렇지?”

가끔 그때 옥길지구에 제대로 된 신축 아파트를 샀다면 어땠을까 푸념하곤 한다.

“우린 그때 우리가 할 수 있는 최선의 선택을 한 거야. 무리해서 대출받았으면 그 나름대로 또 불만이 생겼을 거야. 이자에 원금 갚고 나면 분명 생활비가 부족했을 거고, 아무리 갚아도 원금이 줄어드는 게 체감되지 않을 거고, 출. 퇴근할 때마다 지하철 타러 가기 힘들다고 매일 눈물 바람이었을 거고. ”

“맞네, 그때는 그게 최선이었네. 비록 오래된 아파트지만 그래도 우리는 집이 있어서 2년마다 집 알아보고 이사 다니고 하는 고생은 안 했으니까. 더 좋은 집에 사는 사람들, 더 좋은 차 타는 사람들, 그렇게 남들과 비교하면서 사는 게 스스로를 불행하게 만드는 일 이더라.”


아쉬운 부분이 없는 것은 아니었지만 처음부터 완벽하게 하고 싶다면 여유 자금이 그만큼 많으면 되는 거고, 자금이 넉넉지 않다면 상황에 맞출 수 있는 최선의 선택을 하면 되는 거다.




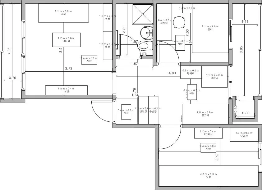
부천집 배치도.jpeg 집 치수를 실측 한 뒤 가구 배치를 어떻게 할지 고민하면서 남편이 그려서 보내준 배치도 일부


keyword
이전 06화자본금 1억으로 결혼하기_식장예약