brunch

스웨덴 복덕방: 이런 평면도 보신 적 있으세요?

스톡홀름에서 집 구매하기 (3-3)

by Dominic Cho

글 (3-1)에서는 면적만 비슷한 두 예시를, 글 (3-2)에서는 비슷한 가격대에서 선택 가능한 원룸부터 2층 주택까지 이르는 다양한 예시들을 살펴봤다. 이번 글에서는 일반적인 한국 아파트 구조인 "방 3개, 거실, 주방, 화장실 2개"의 평면도가 스웨덴 아파트에서는 얼마나 자유로울 (혹은 제멋대로) 수 있는지 알아보겠다. 판상형이나 타워형, 투베이나 쓰리베이, 포베이 같은 그런 말로는 설명하기 어려운 평면도들이다.


아파트 검색 조건 (출처: Hemnet)

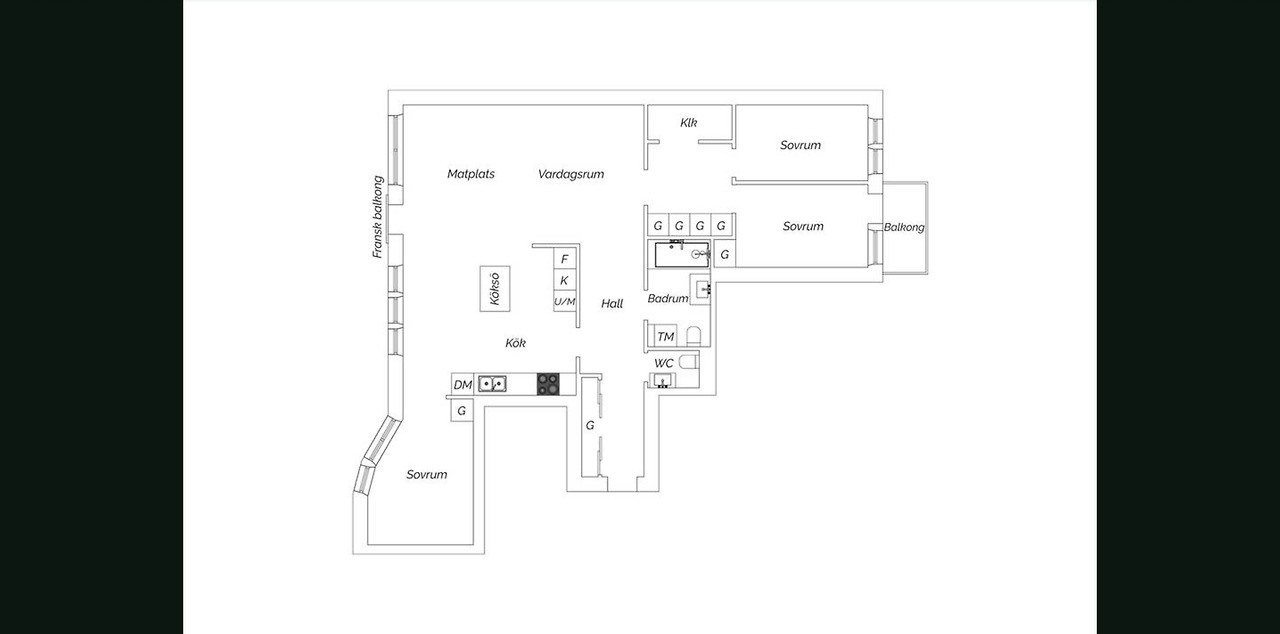
우선, 이제부터 만나 볼 아파트들은 모두 방 4개(한국식으로 방 3개), 면적은 95m^2 ~ 105m^2 인 조건에 해당된다는 사실을 미리 일러둔다. 총 11개의 아파트로, 각 행마다 왼편에는 조건 페이지가, 오른편에는 해당 평면도가 위치한다.


출처: Hemnet

이상한 평면도들로 골라 온 것이 절대 아님을 밝힌다. 그냥 아파트 평면도가 다 가지각색이다. 본인이 반년 넘게 집을 알아보러 다니는 데는 다 이유가 있다. 집 구조가 저렇다 보니 어디가 마음에 들어도 다른 곳은 마음에 안 들거나, 평면도 자체는 마음에 들어도 방향이 마음에 안 들거나 한다. 여기 사람들을 집 방향은 별로 상관하지 않는지 11개 평면도 중 동서남북이 표시된 아파트는 하나뿐이다. 가끔 가다 상세 설명란에 발코니가 남서향이라서 석양을 즐길 수 있다는 사실이 적혀 있기도 할 뿐이다.


예전에 누군가 우리나라는 집 구조가 어느 정도 정형화되어 있어서, 몇 년도에 지어진 몇 평 아파트라고 하면 대충 몇 가지의 구조로 나뉜다고 말했던 적이 있다. 그렇게 표준화된 구조 덕분에 재화처럼 집을 거래하기 쉬워서 부동산이 전 국민의 투자 대상이 되었다는 요지였다. 여기서 집을 알아보면서 그 말이 무슨 소리인지 확실히 느꼈다. 아파트 방 4개에 면적까지 제한하고도 검색된 집 구조가 저렇게 천차만별인데, 여기에 더 다양한 주택 형태, 평면도, 면적, 지역, 가격 등등까지 고려했더니 집을 알아보는데 아주 골치가 아프다.


다음 글에서는 이번에 소개한 다양한 평면도를 가지고 발코니, 주방과 거실, 세탁기나 냉장고 등의 가전제품과 같은 세부적인 요소들을 하나씩 뜯어보겠다.

keyword
이전 04화스웨덴 복덕방: 값은 비슷해도 각양각색인 아파트들