전기공 데모도(어시스트)

전선이 연결되고 비로소 전기가 흐른다.

by 문광

*

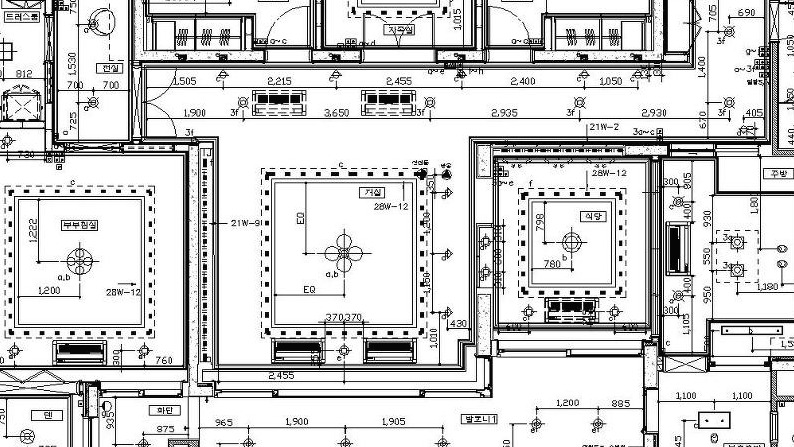
전기 도면 예시

전기 사장이 말했다. “이리 와봐. 이거 한번 봐봐. 이게 도면이야. 저기 천장에 네모낳게 구멍난 거 보이지? 또, 저기 벽에, 스위치 자리에 네모낳게 구멍난 거 보이지? 저게 ‘폭스’라고 하는 거야. (도면을 가리키며) 여기 이게, 저 폭스라고. 폭스에서 폭스로 관이 연결돼 있어. 여기다 전선을 밀어넣을 거야. (도면을 몇 장 들추며) 오늘은 여기서부터 여기까지 작업해야 돼. 뭐, 도면 이렇게 보는 건 처음이라고? 몰라도 보다 보면 금방 알게 될 거야. 자네는 그냥 내가 시키는 일만 하면 돼. 도면은 내가 보고 할 테니까 걱정하지 말고.”


*
전선은 폭스에서 폭스로 연결된다. 천장 폭스에서 천장 폭스로, 천장 폭스에서 스위치 폭스로. 이렇게 얽히고설켜 복잡하게 연결된 전선의 끝은 결국 두꺼비집으로 이어진다. 다시 전선은 두꺼비집에서 전기계량기로, 전기계량기에서 전봇대로 이어진다. 전기의 출처를 따라가면 발전소가 최종단계에 있을 것이다. 천장의 형광등 하나를 밝히기 위해 전기가 멀리서도 흐른다.


*

'폭스' 혹은 전기배선용 사각철박스

그런데 ‘폭스’란 무엇인가? 아무래도 전기공 아저씨가 발음하는 ‘폭스’는 원래 ‘박스’를 이야기하는 것 같다. 아마도 천장이나 벽에 네모낳게 난 구멍의 모양이 정육면체 혹은 직육면체 모양의 박스 같다고 하여, 이것을 간단히 ‘박스’라 말한다. 전기 배선에 사용하는 사각철 박스를 일컫는다. 그러나 내가 만난 전기공 아저씨는 줄곧 ‘박스’도 ‘복스’도 아닌 ‘폭스’라고 거센발음으로 말했다. 나도 똑같이 ‘폭스’라 불렀다.


*

전기공 데모도(보조) 작업은 별거 없다. 사다리 위에 올라서 천장 ‘폭스’의 구멍에 전선을 밀어넣는 게 주된 일이다. 보통 3~4개의 전선을 엮어서 하나의 구멍에 밀어넣는다. 팔힘도 팔힘이지만 악력이 필요하다. 전선을 꽉 잡지 않으면 도저히 그것을 구멍에 밀어넣는 일이란 불가능하다. 하나의 폭스 구멍에서 다른 폭스 구멍으로 이어진 배관이 대부분은 ‘ㅡ’ 모양이라 다행이다. 문제는 천장 폭스에서 스위치 폭스로 이어지는 배관이다. 이 배관은 ‘ㄱ’ 모양으로 꺾여 있다. 여기다 전선을 밀어넣는 일이란 여간 까다로운 게 아니다.

보조가 하는 일이 다 그렇듯이 자질구레한 일도 도맡는다. 작업이 원활히 이뤄질 수 있도록 준비를 해 놓는 것이다. 가령, 사용해야 할 전선들을 한곳에 갖다 둔다든지, 작업이 이뤄질 자리에 사다리를 세워 둔다든지, 필요한 공구들을 전기공 아저씨에게 건넨다든지 등의 일을 전기공 보조가 도맡게 된다. 어시스트, 혹은 시다바리 정도의 일을 하게 되는 것이다. 하찮은 일임에도 불구하고 보조의 역할은 막중하다. 보조 없이 전기공 혼자서는 똑같은 일을 하더라도 적지않은 시간이 걸린다.


*

하루 일이 끝났다. 목장갑 코팅이 벗겨졌다. 전선을 하도 밀고 당긴 탓이다. 장갑을 벗었다. 바람이 손바닥을 쓰다듬었다. 부드럽고 시원했다.


*
“3일 뒤에, 그러니까... 다음주 화요일에 시간 돼? 그때 또 여기에서 작업이 있어. 오늘 했던 일이랑 방법은 똑같아. 혹시 자네가 시간 되다면 또 부르게. 그때 시간 된다고? 좋아, 그럼 내가 월요일에 전화할 테니까 잘 받아.” 전기공 아저씨가 일당을 건네며 말했다.


*
일당 11만원, 수수료 11000원.
순수익 99000원.

keyword