셀프 인테리어 _ 전기배선

by 누군가의 첫사랑

방통을 마쳤다면 약 2-3일 정도 후에는 겉면이 말라 사람이 밟을 수 있는 수준이 된다.

속까지 마르는 데는 오랜 시간이 걸린다.

하지만 우린 일정이 길어지는 건 곧 예산과 이어지므로, 하염없이 기다릴 수 없다.


셀프인테리어 카페에서 여러 목수님께 컨택해 보았지만, 일정이 안 맞아 결국 인터넷 서칭으로 힘들게 목수를 섭외했다.


근데 너무 좋은 분이 오심.

좋다는 기준이 다 제각각 이겠지만 나에게는 묵묵히 자기 일 잘해 주시고, 말 많지 않으시고, 무엇보다 츤데레셨다. 전기는 목수님이 추천해주시는 분으로 하는게 제일 좋다.

목수와 전기의 합이 은근 중요하기 때문이다.



일단 목공 시작 전 전기배선 작업을 하루정도 진행이 필요하다.

전기의 경우, 배선+타공+설치 이렇게 3번 작업 진행된다.


배선이 이루어져야 가야 할 곳에 전기선을 목수님이 선을 끌고 가 주신다.

천장이 미리 되어 있다면.... 전기사장님이 직접 해주시는 게 제일 좋다.

아다리가 안 맞으면 목수님의 한숨과 함께 전기사장님께 불나게 전화할 일이 생긴다.


이 선은 어디에 갖다 놔요, 저 선은 뭐예요..


다행히 손을 몇 번 맞춰본 전기사장님을 목수님이 소개해주셔서 무사히 지나갔다.


아 서론 두 번째가 또 길어졌네.



일단 전기 미팅 및 배선 작업


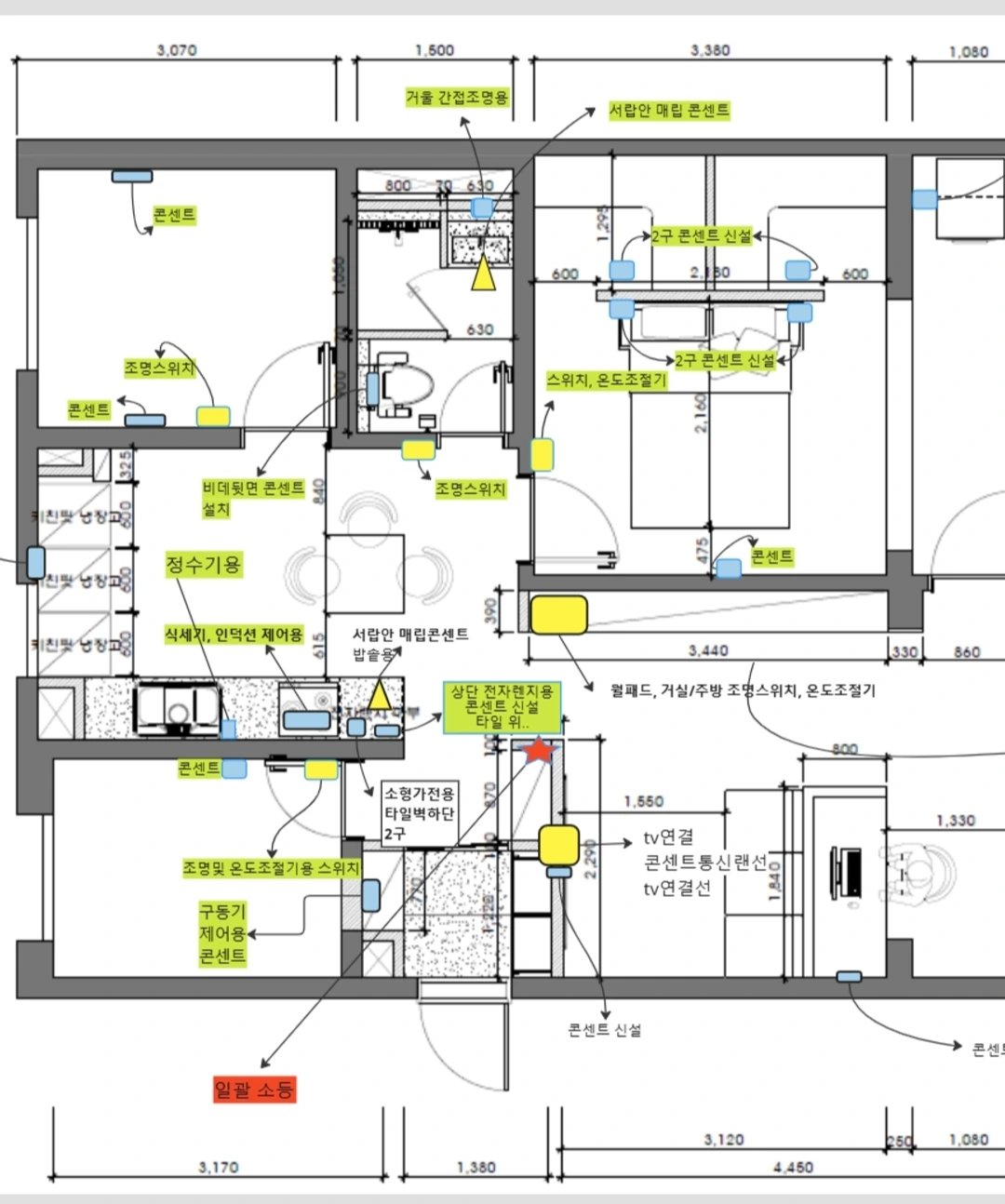
전기 작업 지시서

나의 설명에 맞추어 전기사장님이 벽면에 메모를 하신다.


그 말은 스위치, 콘센트, 인터넷 등등 모든 전기의 위치와 갯수가 이미 계산이 되어있어야 한다는 말이다.

필요한 전기선만큼 배선(선을 빼둠)을 하고 각각 무슨 용도의 선인지 tag를 해주셨다.

목수사장님이 천정덴조를 진행하면서 그 선을 가까운 위치로 끌고 가 주신다.

예를 들어, 조명선이면 조명이 들어갈 위치에 조명선을 가까이 걸어두신다.


천장에 전기선을 빼두시고 목수사장님은 천장을 치면서 선을 가까운데 끌고 내려놔 주신다.

이 작업을 해주지 않으시면, 전기 타공 후 설치할때 선을 찾는라 진을 빼게 된다.

전기 사장님은 목수님이 구분 할 수 있도록 조명선과 전기선, 용도에 맞게 구분해 두시고 따로 명찰도 붙여 놓으셨다.



현관 쪽에 있던 전기 분배기를 나의 요청에 따라 새로 만든 작은 팬트리 안쪽으로 옮겨주셨다.

상상이 안 가는 작업이었는데 금세 해주셨다. 플러스 분배기 교체.




이전 03화셀프 인테리어_배관 / 방수 / 방통