셀프 인테리어 _ 목공 그리고 단열

인테리어의 핵심

by 누군가의 첫사랑

인테리어에서 중요하지 않은 부분이 없지만 특히 디자인적으로 중요한 부분을 고르자 하면, 그것은 목공이다.


목공은 목수의 능력이 팔 할이며.... 좋은 목수님을 만나는 게 첫 번째 스텝이다.


하늘이 도우셔서, 나와 잘 맞는 목수님을 만났다.



목공은 전체 디자인을 한다.


작업지시서는 도면 그 자체이며, 도면이 정확하지 않은 경우가 많기 때문에(특히 셀프) 현장에 꼭 상주해야 하는 공정 중 하나이다.


작업 시작 전, 종료 후 항상 짧은 브리핑이 있었다.

시작 전에는 오늘 작업하실 업무에 대해 얘기해 주시면, 위치를 다시 확인한다.

작업 후에는 오늘 작업한 내용에 대해 다시 보여주시고, 수정이 필요한 부분이 없길 바라며 다시 확인한다.


나의 경우, 목공이 필요했던 부분


1. 천장 덴조 ( 실링팬 보강, 에어컨 박스 )

2. 가벽 (안방, 거실)

3. 전체 문, 9미리 문선

4. 벽체(필요한 부분만)

5. 단열 (외벽과 맞닿는 면)

6. 단내림 (주방 후드 쪽)

7. 거실 커튼박스, 등박스


작업내용은 쓰면 간단한데, 작업은 제일 길다. (6일, 목수 최대 4명/일)



천장 덴조는 천장을 다시 만드는 작업이다.

웬만하면 그냥 있는 천장을 살리는데, 목수님이 사전에 와서 보고 가셨는데 절대 못 살린다고 다시 해야 한다고 하셨다. 정말 밥 먹다가 천장 무너지는 집이 있다고...


우리 집은 40살 먹은 구축 아파트로 한 번도 천장공사가 된 적이 없고 겹으로 도배가 되어 있어서 이미 무거워 질대로 무거워진 상태였다.


천장을 철거하면 아래 사진처럼 시멘트 천장이 나오고, 이 천장은 곧 윗집의 바닥이다.



외벽과 맞닿는 벽은 아이소 핑크로 단열하는 모습이다.

단열은 눈에 보이지 않지만, 집이 완성된 후 외부와의 온도 차이로 곰팡이가 생길 수도 있고, 외풍이 들어올 수도 있어 추위를 많이 타는 우리 가족에겐 필수였다.


별도 단열업체를 통해 하기도 하지만, 목수님도 꼼꼼하게 잘해 주셨다.




기본적으로 목공 견적에는 장비대가 들어간다.

아래와 같이 목수님이 개인 장비를 들여오셔서 매일 작업이 진행된다.

먼지가 너무 많이 날려서 매일 청소는 필수이다.


목수님이 청소를 해주고 가시지만, 비싼 인력이기 때문에 작업에 집중하시도록 나는 내가 매일 폐자재를 담고 쓸었다.

목공작업이 진행될수록 폐기물이 늘어난다.

폐기물을 담아 한쪽에 모아 둘 수 있도록 폐기물 봉투는 미리 구입해 두도록 하자.




단열 후, 석고보드 마감. 에어컨 박스가 만들어진 모습.

뭐 하나 할 때에도 모든 게 사이즈가 필수이기 때문에, 에어컨 박스 만들 때 에어컨 사이즈도 알아야 한다.

그냥 모든 가구, 가전의 사이즈를 알고 있어야 한다..



우리 집의 포인트 안방 가벽이다. 안방 가벽은 천장 단내림과 연결되며, 단내림은 방 중앙을 모두 내렸다.

방 중앙에 실링팬과 에어컨이 모두 들어갔다.

이런 구조는 처음 본다며, 목수님이 우려가 많으셨지만 내가 바라던 이미지 대로 잘 나와주었다.

필름 마감을 위해 1미터마다 메지(틈)를 뒀다. 필름폭은 정해져 있기 때문에 그 폭이내에 메지를 둬서 깔끔하게 필름 마감이 되도록 한다. 안 그러면 겹쳐진 필름을 보게 될 것이다.


아래 사진처럼 템바보드로 마감하려고 했는데, 천장과 이어지는 느낌을 주고 싶어 필름 마감으로 바꾸었다.


이미지 출처 : 오늘의 집


짜잔,


필름으로 마감된 우리 집 안방 가벽을 먼저 자랑 좀.

안방 가벽 앞쪽과 뒷면


가벽을 만든 이유는 침실과 드레스룸을 분리하고 싶어서였다.

뒷면에 이케아 옷장을 넣어 드레스 룸으로 활용할 예정이다.





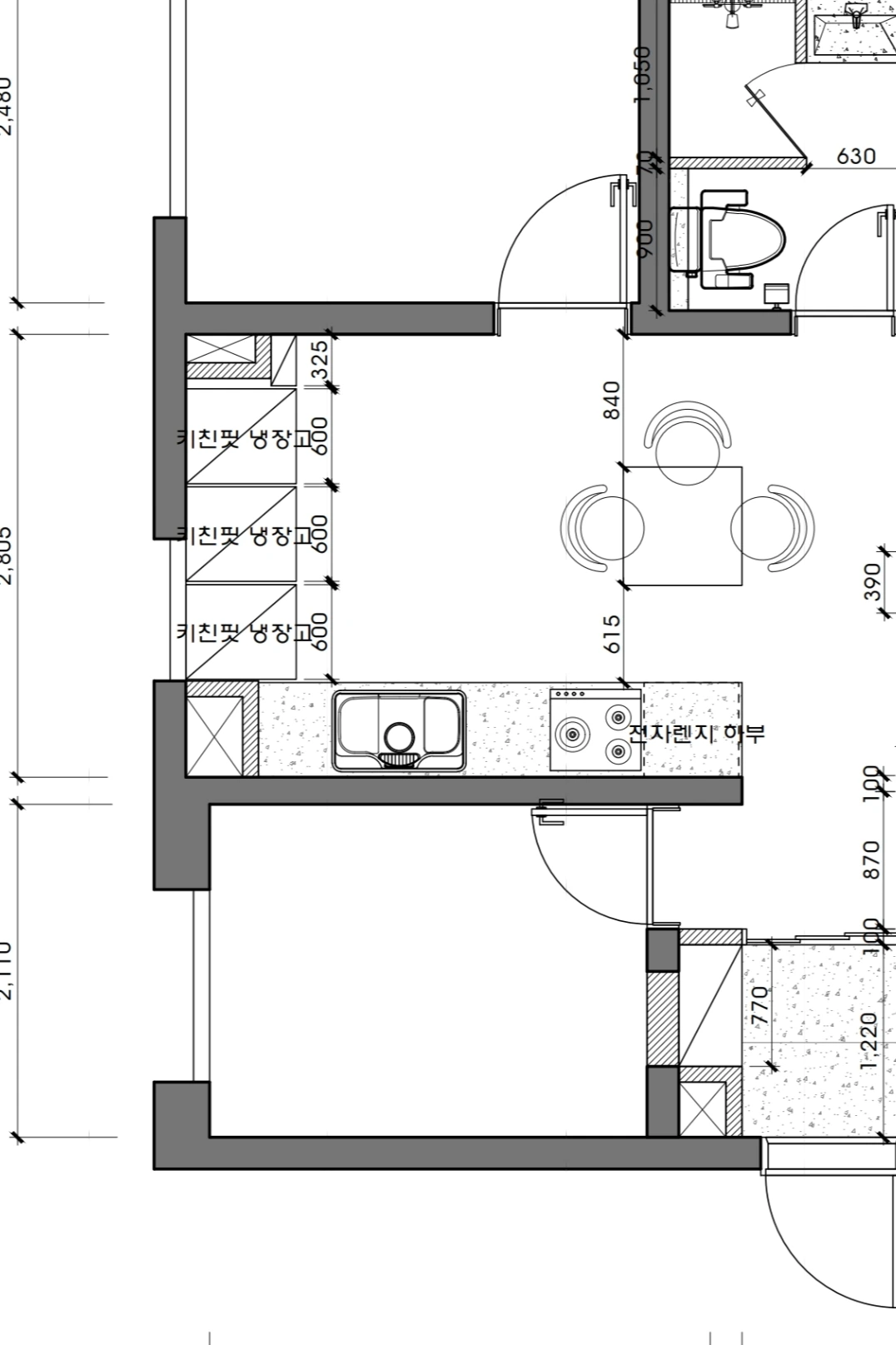
주방은 나의 꿈인 이케아 주방으로 맞추었다.

이케아 홈페이지에 가면, 이케아 주방가구로 미리 배치하여 이미지화를 할 수 있다.

아래 사진에서 그대로 실현된 부분도 있고, 변경된 부분도 있다.



냉장고가 들어가는 뒷면엔 작은 창이 있었으나, 난 환기를 포기하고 냉장고를 넣은 게 첫 번째 난관.

벽 양쪽 코너에 내력벽 기둥이 있었던 게 두 번째 난관이었다.

냉장고 사이즈를 위해 최소 1800 이상이 확보되어야 하는데, 그게 너무 타이트해서 모험을 좀 했다.

인테리어 다 하고 냉장고가 안 들어갈 수도 있는 상황.

아니면 냉장고 하나를 포기해야 하는데, 난 원도어를 포기하기가 힘들었다.


냉장고 깊이를 맞추기 위해 양쪽 기둥에 벽을 연장하여 냉장고와 일렬로 맞추었다.

그렇게 싱크대도 멍장(쓸모없는 장)이 들어가게 되어 이곳으로 다행히(?) 분배기가 들어갔다.


주방은 나의 최고의 난관이었다.

구조상 너무 작아서 모든 걸 다 넣기가 너무나 타이트했다.



세 번째 난관은 주방 후드였다.

원래는 코너기둥이 덕트관이 지나는 자리였기 때문에 코너에 바로 인덕션이나 가스레인지를 넣어야 주방후드를 깔끔하게 처리할 수 있었다.

하지만 난 그 코너에 냉장고를 넣었는데 냉장고 옆에서 요리하는 건 너무 싫었다.


그래서 위 그림처럼 인덕션 자리를 멀리 뺐다.

그럼 후드는?


급하게 메모했던... 후드 자리.

후드자리까지만 목공으로 관을 짤까 했는데,

후드 자리까지만 자바라 관을 짜는 경우


디자인적으로 마음에 들지 않아 주방벽 끝까지 아래처럼 자바라 관을 짰다.


저 관을 만들기 전에 자바라를 연결해 두어야 하는데...


일단 생각을 못하고 있었고, 급하게 주변 금속관집에 가서 자바라는 사 왔다.


그런데 자바라(후드에 끼는 호일관_오른쪽사진)를 끼울 관이 없어서 근처 철물점에 가서 맞는 관을 찾고.. 찾아 잇몸으로 때웠다.

나 혼자 낑낑대고 있으니 목수님이 도와주셨다.

네 번째 난관 해결.


여기서 또 다섯 번째 난관이 있었는데

후드자리 타공을 안 해 놓은 것이었다.


이 실수 때문에 주방후드 기사가 설치 거절 후 돌아갔지만... 읍소하여 타공을 대신해주셨다.

그런데 그 타공자리가 후드보다 커서 구멍이 보이는.. 실수가 되었다.

나의 실수다.


최종 마감된 주방의 모습.




그냥 벽이었던 신발장은, 벽을 털어서 전기 분배기를 벽장 안으로 이동하고 작은 팬트리를 만들었다.


오른쪽 사진에 누수 사고가 났었던 메인 벨브관을 교체한 모습이 보인다.


문까지 끼운 모습 공개.

가구 업체에서 필름이 잘못 입혀져 와서 나중에 다시 교체했다.






또 하나의 우리 집 포인트!

둥근 코너 마감.


목수님이 이것도 꼭 해야겠냐며 몇 번 물으셨다. ㅎㅎㅎ

다행히 코너비드 기성품이 나와서 작업은 어렵지 않다고 하셨다. 그냥 많이 요청되지는 않았던 모양이다.

하지만 내가 원하는 대로 하는 게 셀프인테리어의 장점이니까!

내가 바랬던 둥근 코너 마감은 아래 참조.

핀터레스트 이미지


둥근 코너로 마감 한 이후에는 그 폭에 맞추어 장이 들어갈 예정이다.

이 역시 이케아 가구로, 가구사이즈를 알고 있었기 때문에 남은 공간을 둥근기둥으로 마감할 수 있었다.






부족한 수납을 위해, 중문 이후에 장을 하나 더 짰다.

그 뒷면은 벽을 연장하여 마감처리하고, 원래의 TV 자리가 가벽 뒤로 오도록 디자인했다.

이는 학령기에 접어든 아이의 거실 공부를 위해서이기도 했고, TV를 많이 보지 않기 때문에 넓은 벽을 TV로 채우고 싶지 않았다.



거실에서 짧았던 옆면의 벽을 연장해서 TV 선 및 인터넷 선을 옮겨두었다.


그렇게 해서 완성된 모습.

오른쪽은 가벽으로 가려진 곳에 또 하나의 팬트리를 짰다.

집이 작기 때문에 잔 짐이 안 보이도록 꼭꼭 수납할 자리가 절실했다.


신발장과 팬트리선반 및 문은 제작가구로 맞추었다.

이케아에서는 해결할 수 없는 부분.




중문도 할 예정이었기 때문에 중문업체에 미리 문의하여 어느 정도 벽이 확보되어야 하는지 알아보고 7센티 정도 자리를 띄워놓고 팬트리를 짰다.



여담으로...


철거사장님이 매일 청소한다고 안전장갑 보내주셨다. ㅎㅎㅎㅎ



목공의 이야기가 참 길었다.


이제 정말 예쁜 것만 남았다!

이전 04화셀프 인테리어 _ 전기배선