brunch

최첨단 공장에서 예쁘게 지어진
용인 전원주택

by 공간제작소
001. 용인 전원주택.png
002. 용인 전원주택.jpg
003. 용인 전원주택.jpg
004. 용인 전원주택.jpg
005. 용인 전원주택.jpg
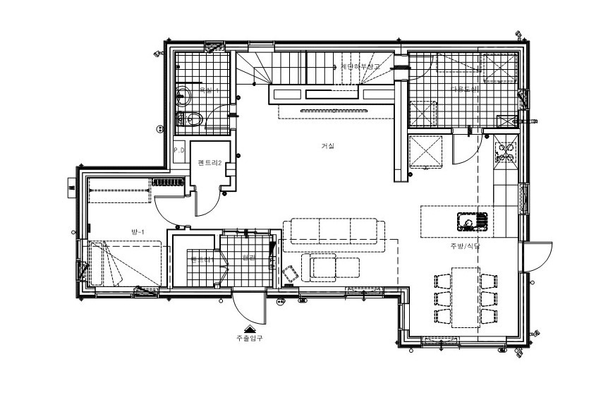
1층 평면도 / 2층 평면도 / 다락층 평면도


주택개요

위치: 경기도 용인시

건축형태: 경량목구조

건축규모: 지상 2층

연면적: 총 36평(다락 7평 제외)



006. 용인 전원주택.jpg
외관


오늘 소개하는 용인 전원주택은 5인 미만 가구가 살기에 넉넉한 36평의 집입니다. 외관에서부터 개성적인 모습으로 시선을 끄는 이번 사례는 넓은 마당과 여유로운 풍경 속에 지어져 전원의 여유로움을 가득 담고 있습니다. 하얀 메탈사이딩 바탕에 블랙과 베이지 색상이 적절하게 배치되어 모던한 인상을 연출하는데요. 여기에 징크 지붕이 사선으로 얹어지며 우뚝 솟은 듯한 모습이 웅장함을 전달합니다.


007. 용인전원주택.jpg
1층


외관만큼 개성적이고 아름다운 내부는 밝은 합지 벽지와 아늑한 강화마루로 시공하여 따스한 분위기로 인테리어 했습니다. 현관으로 들어오면 거실이 바로 눈에 들어오고 그 외 공간은 문과 가벽으로 어느 정도 가려져 있는데요. 이는 내부 깊숙한 곳까지 방문객에게 바로 보이지 않아 안정감이 느껴지는 구조입니다. 또한 이번 용인 전원주택은 다른 집과 다르게 거실의 소파 위를 오픈 천장으로 시공하여 휴식을 취할 때 시원하고 웅장한 느낌을 받을 수 있습니다. 그리고 TV를 설치한 아트월은 은은한 광이 나는 자재를 사용하여 모던하고 고급스러운 분위기를 더했습니다.


008. 용인 전원주택.jpg


1층 안쪽에 배치된 주방과 다이닝룸은 웨인스 몰딩 디자인의 가구가 배치되어 앤틱 한 분위기를 연출하고 있습니다. 주방 뒤로는 사용 빈도수가 낮거나 부피가 큰 물건을 깔끔하게 보관할 수 있도록 별도의 다용도실도 시공해 드렸는데요. 덕분에 넉넉한 수납공간을 원하신 건축주님의 바람대로 주방이 완성되었습니다.


009. 용인 전원주택.jpg


공용 공간 반대편에는 개인 공간이 배치되었습니다. 현관 좌측에 다른 공간들과 떨어져 있어 편안한 휴식이 가능하며, 인테리어도 이에 맞춰 간결하고 깔끔하게 시공했습니다. 그리고 팬트리와 욕실을 가까운 위치에 두어 생활에 편의성을 더하였습니다.


010. 용인전원주택.jpg
2층


2층은 침실, 욕실, 드레스룸, 세탁실, 작은 방이 한 개씩 마련되었습니다. 계단을 올라오면 보이는 오픈 천장 쪽에 창문을 감각적으로 배치하여 시원한 개방감을 한층 더하였습니다. 더불어 안전사고가 발생하지 않도록 블랙 난간을 별도로 설치했습니다.


011. 용인 전원주택.jpg


1층과 마찬가지로 합지 벽지와 강화마루로 시공된 2층도 편안하게 머무를 수 있도록 깔끔하게 완성했습니다. 침실 벽면에는 적당한 햇살이 내부로 들어오면서 프라이빗한 느낌이 들도록 크지 않은 창들로 시공했습니다. 그리고 드레스룸과 침실을 한 공간에 두고 가벽으로만 구분하며, 출입문을 두 곳 양쪽에 두어 동선이 용이하도록 기획되었습니다.


015. 용인전원주택.jpg


때때로 집 안에서 상쾌한 공기를 느끼고 싶을 땐 같은 층에 위치한 포치를 이용할 수 있습니다. 전면에 슬라이딩 도어를 설치해 날씨 좋은 날 시원하게 열어둘 수 있고, 비나 눈이 내리는 날에는 창문을 닫고 포근하게 머무를 수 있습니다.


012. 용인 전원주택.jpg
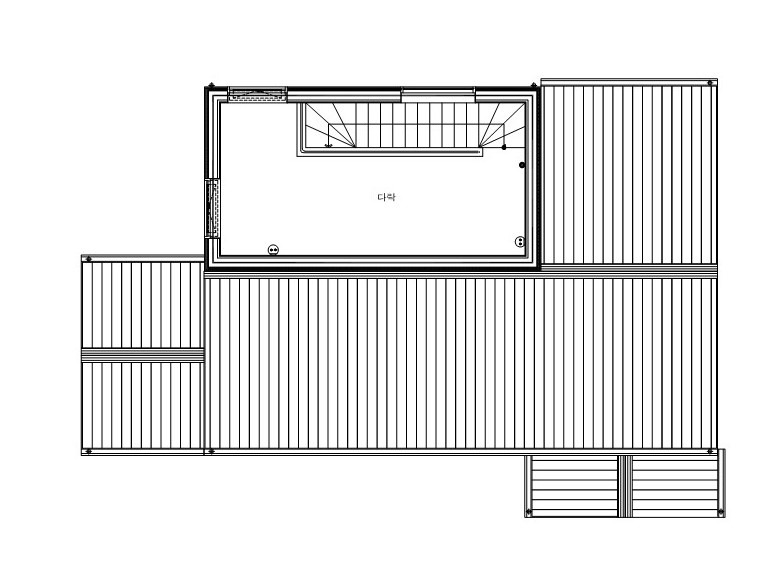
다락


마지막으로 보여 드리는 장소는 바로 다락입니다. 이번 용인 전원주택은 우뚝 솟은 경사 지붕 아래 다락이 마련되었는데요. 적절한 크기의 창호가 설치되어 공기를 상쾌하고 유지하고 다운라이트 조명이 시공되어 방이 전체적으로 밝은 모습입니다. 이곳에 건축주님처럼 침대를 두어 게스트룸으로 사용하거나 작은 가구들을 두어 서재 및 취미 공간을 만드는 등 활용도가 높은 방입니다.



013. 용인 전원주택.jpg


오늘 소개한 용인 전원주택은 모던한 매력과 함께 다른 집에서 볼 수 없던 개성이 집 안 곳곳에서 엿보였습니다. 앤틱 한 가구들, 오픈천장, 가벽을 활용한 공간 분리, 넉넉한 수납공간 등 색다른 집을 짓고 싶은 건축주님에게 도움이 될 사례였는데요. 이처럼 공간제작소는 건축주님마다 다른 취향과 라이프 스타일을 반영하며 다양한 모습으로 완성하고 있습니다. 취미 생활을 할 수 있는 집, 아름다운 풍경을 감상할 수 있는 집 등 마음속에 있는 주택을 짓고 싶다면 다양한 포트폴리오를 보유한 공간제작소로 방문해 주시기 바랍니다.



▶ 건축상담 바로가기 ◀

014. 용인 전원주택.jpg


keyword
매거진의 이전글부부에게 여유로움을 주는 2층 목조주택