brunch

채광이 가득한 조립식 목조주택

by 공간제작소
공간-상단배너.jpg


DJI_0005.jpg
석교리 1층.png
석교리 2층.png
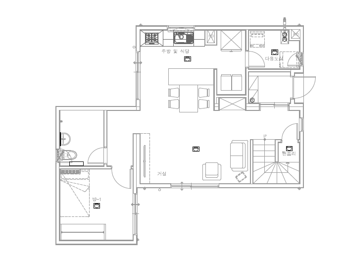
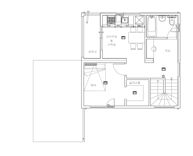
1층 평면도 / 2층 평면도


주택개요


위치: 강원도 강릉시

건축형태: 경량 목구조

건축규모: 지상 2층

연면적: 36평



111.jpg
외관


강원도 강릉은 귀촌을 위해 많은 분들이 찾는 지역인데요. 푸른 자연이 가득해 세컨하우스를 지어 휴일에 방문하기 좋은 지역입니다. 오늘 소개드리는 조립식 목조주택도 동해 바다 근처에 소나무 숲이 우거진 마을 안에 위치하고 있습니다. 화이트와 그레이 색상의 모듈이 모던하게 배치되어 푸른빛이 가득한 자연 속에서 담백한 멋을 드러내고 있습니다.


DJI_0002.jpg


해당 사례의 조립식 목조주택은 공장에서 80% 정도 짓고 현장에서 조립하는 모듈러 공법으로 완성되었습니다. 친환경적이고 빠른 공사 기간으로 건축비를 절감하는 장점 덕분에 주목받는 공법입니다. 공간제작소는 대표적인 모듈러 공법을 사용하는 조립식 목조주택 기업으로 최신 시스템이 도입된 공장에서 제작된 고품질의 주택을 수백 채 지어왔습니다.


2222.jpg
1층


1층은 거실, 주방, 침실 그리고 욕실로 구성되었습니다. 화이트 색상의 벽과 바닥으로 시공하여 화사하고 시원하게 완성되었는데요. 시야를 밝게 해 주어 작은 평수의 집이 더욱 넓어 보이는 효과를 주었습니다. 데크가 있는 곳에는 큰 창이 시공되어 채광이 충분히 확보되어 밝은 분위기가 한층 더해졌습니다.


3333.jpg


주방은 오픈형으로 따로 벽과 문을 두지 않아 넓게 사용하실 수 있도록 기획했습니다. 주방 타일과 수납장 또한 밝은 색상을 사용해 깔끔하며, 거실처럼 큰 창을 내어 채광과 조망 또한 확보했습니다. 자연 속에서 가족과 함께 거실에서 휴식시간을 보내거나 주방에서 식사를 하는 행복한 일상이 그려지는 조립식 목조주택입니다.


4444.jpg


사각형의 침실은 가구 배치에 있어 인테리어가 편한 구조입니다. 데크와 연결된 큰 창이 침실에도 있는 점이 이 집을 더욱 특별하게 만들어주는데요. 밝은 햇빛이 공간을 환하게 해 주며 공용공간을 거치지 않고도 바로 외부공간으로 이동할 수 있도록 합니다.


5555.jpg
2층


크지 않은 평수의 조립식 목조주택을 효율적으로 설계할 수 있도록 현관 바로 옆에 계단을 배치했습니다. 목재를 사용해 따뜻하고 포근한 분위기를 살렸는데요. 하얀 벽에 내어진 픽스창에 들어오는 따스한 햇살과 푸른 경관이 집 안에 들어옵니다.


6666.jpg


가족실, 침실, 포치, 욕실로 설계된 2층입니다. 아직 설치 전이지만 가족실에는 간이 주방이 마련될 예정으로 또 다른 한 세대가 거주할 수 있는 구조입니다. 계절의 변화에 따라 주변의 풍경이 그대로 비치는 창문은 가족실을 한층 더 풍요롭게 만들어줍니다. 창 밖에는 작은 포치가 있어 상쾌한 공기와 함께 자연경관을 감상할 수 있습니다.


7777.jpg


2층에 위치한 침실도 네모반듯한 구조에 큰 창이 시공되었습니다. 방 한편에는 미니 드레스룸을 마련해 별도의 옷장이나 수납장을 두지 않아도 깔끔하게 물건을 수납할 수 있어 방 내부를 효율적으로 사용할 수 있습니다. 건축과정에서 대부분이 공장에서 지어지더라도 공간제작소는 건축주님의 라이프스타일에 맞춰 완성될 수 있도록 꼼꼼히 설계부터 시공까지 진행합니다.


DJI_0002.jpg


공장에서 짓는 조립식 목조주택은 여러 장점이 많은 주택입니다. 그러나 공장이라는 이미지 때문에 형태가 정해져 있어 자유롭지 못하다고 오해하시는 분들도 있는데요. 오늘 소개드린 사례처럼 공간제작소는 건축주님의 생활 방식에 따라 다양한 공간을 제작하며 원하시는 스타일로 시공을 진행하고 있습니다. 획일화된 주택이 아닌 오직 건축주님만을 위한 나만의 집 짓기라는 꿈을 이루고 싶다면 주저 말고 공간제작소로 연락 주시기 바랍니다.



▶ 건축상담 바로가기 ◀


keyword
매거진의 이전글최첨단 공장에서 예쁘게 지어진 용인 전원주택