brunch

자연과 어우러지는 단층전원주택

by 공간제작소
공간-상단배너.jpg
DJI_00132.jpg
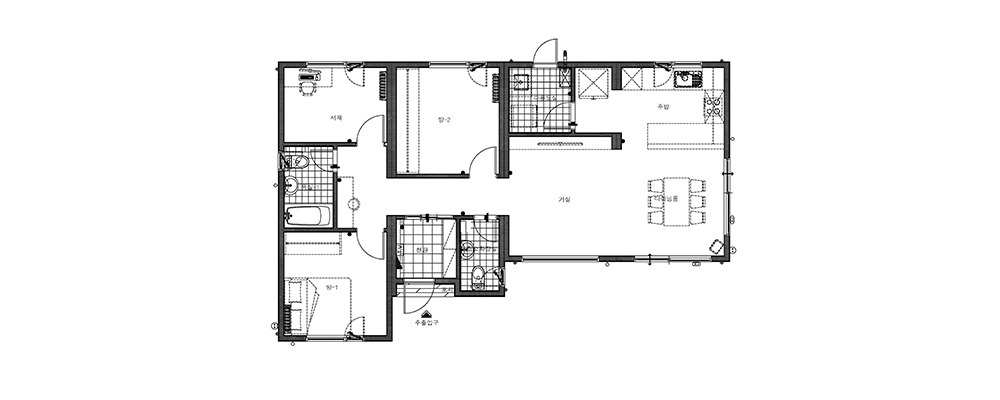
1층 평면도


주택개요


위치: 강원도 강릉

건축형태: 경량 목구조

건축규모: 지상 1층

연면적: 29평



D65A6450.jpg


오늘은 전원생활을 꿈꾸시는 분들이 참고하기 좋은 단층전원주택 사례입니다. 강원도 강릉의 푸른 자연과 맑은 하늘이 가득한 평화로운 마을 속에 위치한 주택입니다. 29평으로 지어진 집은 침실부터 개인 공간까지 알차게 갖추면서도 효율적으로 공간이 구성되어 있습니다.


여유있는-이미지-2개-(우좌).jpg
외관

초록의 자연 속에서 모던하고 세련된 분위기를 주는 외관은 깔끔한 메탈사이딩 외장재와 롤슁글 지붕재로 구성되었습니다. 하얀 벽과 정감 있는 박공지붕은 심플하고 단정한 인상으로 주변 주택들 사이에서 더욱 눈에 들어옵니다. 아름답게 잘 꾸며진 집 앞의 정원과 텃밭은 'ㄱ'자 단층전원주택의 아기자기한 매력을 한 층 더해주고 있습니다.


포스트-현관.jpg


집에 들어서면 내부 공간과 분리된 현관을 가장 먼저 만나게 됩니다. 벽과 신발장, 중문을 모두 깔끔한 하얀색으로 통일감을 주고 바닥은 짙은 그레이 색의 타일로 무게감을 주었습니다. 생활공간과 현관을 분리해 주는 중문은 인테리어 효과도 있으며 집 내부를 한 번 더 가려주어 안정감을 주고 정돈된 인상을 줍니다.


거실.jpg
거실


단층전원주택의 현관과 복도를 지나오면 다이닝룸까지 일자로 길게 뻗은 형태의 거실이 있는데요. 막힘이 없이 이어진 공간이 시원한 개방감과 확 트인 시야를 주어 평수보다 넓어 보이는 거실이 완성되었습니다. 화사한 화이트 벽과 포근하고 부드러운 느낌을 주는 우드 바닥재가 더해져 아늑하고 따뜻한 분위기가 흐르며 포인트 가구를 배치하지 않고도 완성도 있어 보이는 인테리어가 되었습니다.


D65A6424-HDRa.jpg


거실 여러 방향에 내어진 큰 창은 집 안에서도 잘 가꾸어진 정원의 풍경을 감상할 수 있도록 설치되었습니다. 그림 같은 풍경을 담고 있는 창 앞에 포근한 의자 두 개가 놓여있어 마치 멋진 포토존처럼 보이는 것 같습니다. 가벼운 티타임을 즐기거나 식사를 하면서도 자연과 함께하는 전원의 여유로움이 가득 담긴 생활이 눈앞에 그려집니다.


주방.jpg
주방

집 전체의 무드에 맞도록 주방 상하부장과 아일랜드 식탁도 화이트와 우드 인테리어에 맞추어 제작되었습니다. 거실과 이어진 주방은 'ㄷ'자 형태로 설계하여 공간이 구분될 수 있도록 했습니다. 그러면서도 답답해 보이지 않도록 한 벽면에만 상부장을 설치하여 개방감을 주고 부족한 수납공간은 다용도실을 별도로 두어 보완하였습니다.


D65A6418-HDRa.jpg


식탁 위에 시공된 포인트 조명은 다이닝 룸에 특별함을 주었습니다. 원목의 큰 테이블에서 가족과 식사를 즐길 수도 있고 혼자 또는 소수의 사람들과 아일랜드 테이블에서 색다른 분위기로 식사를 즐길 수 있는 다양한 매력이 있는 공간입니다.


포스트ㅜ욕실.jpg
침실

침실과 욕실은 현관 주변으로 두 개씩 배치되어 있는데요. 외출 전후로 씻고 준비하게 편리한 구조입니다. 현관 바로 앞의 침실은 붙박이장, 침대, 화장대가 모두 들어가 있으면서도 답답함이 느껴지지 않도록 깔끔하게 구성했습니다.


D65A6431-HDR.jpg


큰 창문이 보이는 두 번째 침실입니다. 창을 통해 들어오는 채광과 풍경이 공간을 환하게 만들어주며 평상시에는 서재나 취미방으로 활용하다가 손님이 방문하면 게스트룸으로도 활용할 수 있는 좋은 방입니다.



DJI_0012.jpg


오늘 소개드린 단층전원주택은 집에 필요한 요소들이 알차게 구성되면서도 간결하고 심플한 멋을 지닌 주택이었습니다. 주방과 연결되어 넓은 개방감을 주는 거실과 큰 창을 통해 보이는 매력적인 정원, 프라이빗한 침실까지 빠짐없이 설계되었습니다. 공간제작소는 건축주님의 상황에 맞도록 효율성을 생각하면서도 보기에도 좋은 집을 지어드리기 위해 노력하고 있습니다. 단층전원주택 건축에 관심 있으신 건축주님들이 있으시다면 언제든지 편안하게 문의 남겨주시기 바랍니다.



▶ 건축상담 바로가기 ◀

공간-하단배너(최종)브런치.jpg


keyword
매거진의 이전글채광이 가득한 조립식 목조주택