brunch

합리적인 비용의 모듈러 목조주택

by 공간제작소
공간-상단배너.jpg
DJI_0002.jpg
금암1층.jpg
금암2층.jpg
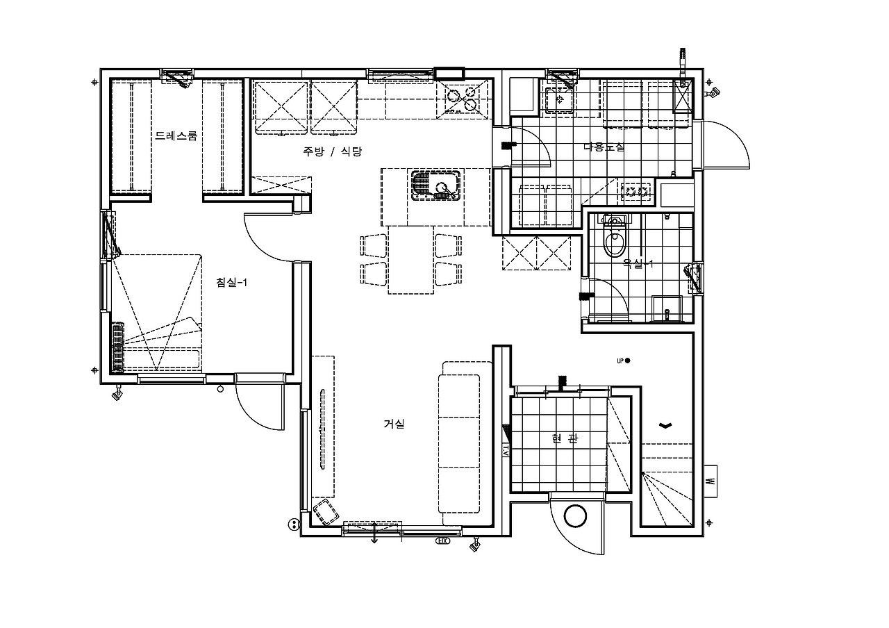
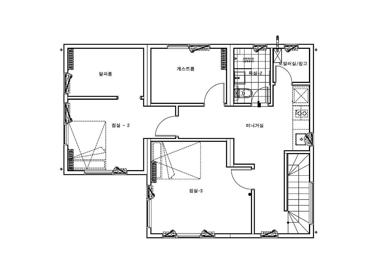
1층 평면도 / 2층 평면도


주택개요


위치: 경기도 오산시

건축형태: 경량 목구조

건축규모: 지상 2층

연면적: 45.58평



D65A7993.jpg


단독주택을 건축하시고자 하시는 건축주님들께서는 취향에 맞는 인테리어, 소음에서 벗어난 프라이빗 한 생활을 위해 주택 신축을 알아보시곤 합니다. 하지만 올라가는 자잿값은 부담으로 다가오기 마련인데요. 고민되는 건축비를 줄여줄 수 있는 새로운 공법이 나와 주택 건축에 활용되고 있습니다. 바로 공장에서 첨단 기계를 사용해 제작 후 현장에서 조립하는 '모듈러 공법'입니다. 앞서 말했듯 건축비를 줄여주는 장점도 있고 공사기간도 단축할 수 있어 장점이 많은 공법입니다.


브런치외관.jpg
외관

소개드리는 사례도 해당 공법으로 제작된 모듈러 목조주택인데요. 4인 가구가 거주하기 넉넉한 크기인 약 45평 규모입니다. 감성적이고 친근한 분위기의 박공지붕과 입체감이 느껴지는 메탈사이딩 외벽은 화이트와 그레이 두 가지 색으로 배색되었습니다. 푸른 하늘과 잘 가꾸어진 잔디와도 잘 어울리는 현대적인 주택입니다.


DJI_0004.jpg


도심에서 집을 지을 때 현장 건축을 진행하게 되면 소음이 발생하여 미리 이웃에게 양해를 구해야 하는 문제가 있습니다. 반면에 공장에서 80% 지어지는 모듈러 목조주택은 이러한 수고로움을 덜어주며 인건비 감축에 특히 도움이 되어 건축 비용 부담도 줄어듭니다.


브런치-1층_1.jpg
1층


현관 입구 오른쪽에는 2층으로 올라가는 계단이 있고 왼쪽으로 들어오면 거실과 주방이 위치합니다. 오픈형 주방으로 거실이 보이는 구조인데요. 가족들과 소통하면서 식사 준비를 할 수 있어 분위기를 화목하게 만들어줍니다. 거실은 공용 공간으로 가족이 함께 모여서 생활하는 시간이 많은 만큼 좁아 보이면 답답해 보일 수 있습니다. 이를 해소하기 위해 넓어 보일 수 있도록 큰 창을 시공해 공간감을 주고 시야를 틔어주었습니다.


D65A7960.jpg


주방은 크지 않지만 공간을 최대한 활용하여 효율적으로 배치하였습니다. 시야를 가리지 않도록 고려한 설계로 좁아 보이지 않고 깔끔한 이미지를 줍니다. 한편에 위치한 다용도실은 정리가 필요한 물건들을 바로바로 정리하기 편리합니다.


브런치_1층-2.jpg


집의 내부에는 밝은 합지 벽지와 강화 마루를 사용해 포근한 분위기를 느낄 수 있습니다. 채광이 잘 들어오는 침실은 창이 여러 방향으로 나있어 밝은 분위기를 주면서도 밖에서 안에 보이지 않도록 높은 위치에 창을 시공해 편안한 휴식을 할 수 있습니다.


경기 오산 금암동_완공사례 무자막 - frame at 2m3s.jpg


외부 데크로 연결된 문이 있는 침실은 주택을 더욱 특별하게 만들어 주는데요. 산뜻한 볕을 받고 싶을 때, 상쾌한 바람을 쐬고 싶을 때 바로 집 밖으로 나갈 수 있어 편리합니다. 공용 공간을 지나지 않고도 외부로 바로 이동하면 프라이빗한 휴식을 할 수 있어 나만의 시간이 필요한 분들에게 추천드리는 구조입니다.


브런치_2층-1.jpg
2층

자녀분들의 공간으로 구성된 2층입니다. 성장기 아이들을 위한 설계가 눈에 띄는데요. 청소년 자녀를 둔 건축주님들께서 참고하시기 좋은 사례입니다. 각 방마다 양 방향의 창을 크게 내어 막힘없는 시야가 트일 수 있도록 하였습니다. 볕도 잘 들어오고 공부 중 리프레쉬도 가능하게 하는 역할을 합니다.


브런치_알파룸.jpg


침실에 연결된 알파룸은 취향이 가득 담긴 선반과 공부에 집중할 수 있는 공간을 배치하였습니다. 간혹 공장에서 짓는 모듈러 목조주택은 고정된 형태를 가진 건 아닌지 절감되는 비용만큼 단조롭지는 않을지 염려하시는 분들이 계신데요. 보시는 주택처럼 공간제작소는 설계에서 시공까지 진행하고 있어 건축주님의 라이프 스타일을 반영한 특색 있는 주택 신축이 가능합니다.


브런치_미니거실.jpg


마지막으로 2층의 미니 주방을 소개드립니다. 가족들과 함께하는 식사 시간 외에 아이들이 간단히 조리하여 간식을 챙겨 먹을 수 있도록 편리한 구조로 되어있습니다. 번거롭게 1층으로 가지 않아도 되고 자녀의 독립성도 기를 수 있는 장점이 있습니다.



DJI_0003.jpg


오늘 소개한 사례는 평택에 위치한 공간제작소 공장에서 시공된 모듈러 목조주택입니다. 공간제작소는 고정된 스타일이 아닌 건축주님과 상의하여 설계를 진행하며, 최첨단 기계로 빠르고 정확하게 도면에 맞춰 짓습니다. 외부환경의 영향을 받지 않으며 기밀성을 높여주는 정확한 시공으로 언제나 높은 품질을 유지합니다. 덕분에 공사 기간의 단축, 인건비 절감, 자재 낭비 감소 등으로 건축비가 줄어듭니다. 주택 신축을 고민하시는 건축주님들도 떠오르는 모듈러 목조주택 혁신에 함께해 보시길 바랍니다.



▶ 건축상담 바로가기 ◀

공간-하단배너(최종)브런치.jpg


keyword
매거진의 이전글자연과 어우러지는 단층전원주택