brunch

심플하고 예쁜 전원주택

by 공간제작소
공간-상단배너.jpg
DJI_0007.jpg
춘천1층.jpg
춘천2층.jpg
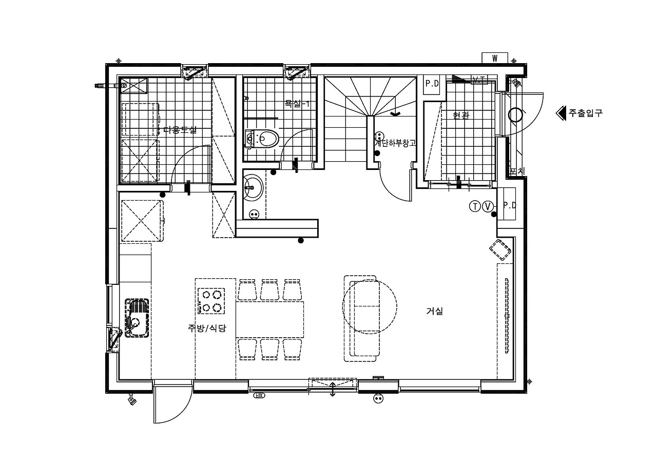
1층 평면도 / 2층 평면도


주택개요


위치: 강원도 춘천시

건축형태: 경량 목구조

건축규모: 지상 2층

연면적: 총 36.5평



DJI_0006.jpg
외관


오늘 소개드리는 전원주택은 친근한 박공지붕에 징크를 얹고 새하얀 스타코플렉스로 마무리해 깔끔한 스타일로 완성한 2층 주택입니다. 심플한 형태에 무채색을 더해 모던함이 강조되어 세련된 느낌이 듭니다.


마당.jpg


넓은 마당과 우드톤의 데크가 설치되어 여유로운 분위기를 주는데요. 햇볕이 좋은 날에 데크에 나와 티타임을 즐기며 아이들과 반려견이 마당에서 뛰어노는 것을 바라보는 평화롭고 행복한 전원주택에서의 일상이 눈앞에 그려지는 것 같습니다.


D65A6026-HDRa.jpg
1층


현관을 지나 유리 중문을 통해 내부로 들어오면 거실과 대면형 주방이 있습니다. 입구부터 시원하게 일자로 이어진 형태로 공간의 깊이감이 있어 실제 평수보다 훨씬 넓어 보입니다.


D65A6016a.jpg


화이트 톤으로 통일된 벽과 바닥도 넓어 보이는 공간을 만드는 데에 효과가 있습니다. 또한 일자형 구조는 어디서나 가족들과 이야기를 주고받을 수 있고, 함께 TV를 시청하기 좋습니다.


거실.jpg


거실 벽면에는 큰 창들이 시공되어 바깥 풍경과 마당을 바라볼 수 있게 하였습니다. 덕분에 밝은 채광이 들어와 새하얀 실내를 더욱 화사하면서 따스한 분위기로 만들어줍니다.


주방.jpg


동일하게 화이트 컬러로 이어진 주방은 하부장으로 분리시키면서 뒤편의 벽면은 세로로 긴 형태의 피아노타일을 시공해 거실과 구분했습니다. 그로 인해 다른 용도의 두 공간이 모여 있음에도 혼란스럽지 않으며 정돈되어 보입니다. 개방감을 위해서 가구는 아래쪽에만 시공했으며 수납공간이 부족하지 않도록 조리대와 하부장 모두 넉넉한 수납 용량을 가진 디자인을 골랐습니다. 추가적으로 다용도실도 주방 옆에 배치해 부족함이 없도록 하였습니다.


D65A6031a.jpg


공용공간 바로 옆에는 욕실이 기획되었습니다. 건식으로 세면대가 분리되어 있으며, 안쪽은 습식 욕실을 설치하였습니다. 분리된 세면대에서는 외출 전 간단하게 세안을 하거나 귀가 후 손을 씻을 때 편리하고, 바쁜 아침에 다른 가족들과 동선이 겹치지 않도록 해주어 불필요한 마찰도 줄여줍니다. 공간은 분리되었지만 화이트와 우드를 이용한 인테리어로 통일감을 주면서 고급스럽게 만들었습니다. 채광이 비교적 잘 들어오지 않는 공간임을 고려해 천장과 거울 뒤편에 조명을 더해 밝은 공간으로 완성했습니다.


D65A6044-HDRa.jpg
2층


나무 계단을 올라가면 2층 공간이 나옵니다. 주로 개인공간으로 이루어진 2층은 침실 3개와 욕실 1개로 기획되었는데요. 차분하면서 편안한 휴식을 취하기 좋고 다른 층으로 이동하지 않아도 간단한 세면이 가능해 편리합니다.


침실-3개.jpg


심플한 사각형 형태의 침실은 화이트 컬러로 취향에 맞는 인테리어를 진행하기 편리하며 활용할 수 있는 벽을 많이 기획하여 자유롭게 가구배치가 가능합니다. 원하는 용도의 공간으로 휴식공간이나 작업실, 취미공간으로 자유롭게 연출할 수 있습니다.


D65A6041a.jpg


2층에 마련된 욕실도 1층처럼 세면대와 욕실을 분리하였습니다. 건식 세면대는 화이트 컬러 타일과 짙은 그레이 컬러의 하부장을 두어 모던하게 연출하였으며, 수도를 한쪽 구석에 위치시켜 여유공간은 화장품이나 세면도구를 두기 편하게 했습니다. 하늘색 타일과 무늬가 있는 타일로 조합된 욕실은 산뜻하면서 밝은 분위기로 완성했습니다.



DJI_0010.jpg


우리나라에서 가장 추운 중부 1 지역에 지어진 사례의 전원주택은 높은 단열기준에 맞추어 내단열과 외단열을 꼼꼼히 신경 써서 시공하였습니다. 따라서 추운 겨울에도 건축주님이 따뜻하게 생활하실 수 있게 설계하였습니다. 세련되면서 깔끔한 외관과 예쁜 내부 인테리어, 공간 구조까지 건축주님과 소통을 통해 마음에 드시는 좋은 집이 될 수 있도록 귀 기울였습니다. 건축주님만을 위한 멋진 전원주택을 만나보고 싶으시다면 공간제작소로 언제든 문의 부탁드립니다.



▶ 건축상담 바로가기 ◀

공간 하단배너(최종).jpg


keyword
매거진의 이전글동선을 분리한 2층전원주택