brunch

동선을 분리한 2층전원주택

by 공간제작소
공간-상단배너.jpg
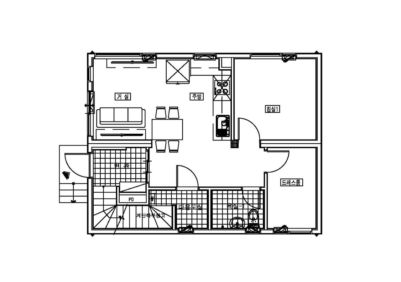
1층 평면도.jpg
2층 평면도.jpg
1층 평면도 / 2층 평면도


주택개요

위치: 경기도 남양주시

건축형태: 경량 목구조

건축규모: 지상 2층

연면적: 37.78평



DJI_0005.jpg
외관


오늘 소개드리는 사례는 두 세대가 함께 사는 2층전원주택입니다. 외관은 화이트 메탈사이딩 외벽과 징크 지붕으로 완성해 깔끔하면서도 감성이 느껴지는데요. 안정적인 형태감으로 거주하실 가족분들이 행복하게 생활하실 수 있도록 기획했습니다.


여유있는-이미지-2개-(우좌).jpg


현관 앞에는 데크가 넉넉하게 설치되어 의자에 앉아 여유로운 시간을 보낼 수 있게 마련했습니다. 볕이 좋은 날에 티타임을 가지거나 풍경을 감상하실 건축주님의 모습이 그려집니다. 사진 속에는 외부조경공사와 데크 공사가 마무리되지 않았으나 시공이 다 끝난 뒤에는 멋진 2층전원주택의 모습으로 완성될 예정입니다.


현관.jpg
1층


현관으로 들어서면 일반적인 형태와 다르게 독특하게 우측으로 계단이 나있습니다. 이는 두 세대의 동선을 분리하기 위한 역할을 하는데요. 세대별로 프라이빗한 시간을 보낼 수 있도록 건축주님께서 요청하신 공간입니다. 여러 세대가 같이 거주하시는 경우 눈여겨볼만한 구조입니다.


거실.jpg


건축주님 부부가 거주하시는 1층은 고풍스러운 가구들과 함께 화이트 벽지와 강화마루를 시공하여 편안한 분위기를 내었습니다. 거기에 푸르른 식물들이 함께 하고 있어 생동감이 넘치는 공간이 되었습니다.


D65A4970a.jpg


주방은 거실과 함께 배치하여 심플한 동선으로 설계하였습니다. 이동동선이 짧아진 만큼 편리하면서도 ㄱ자형태 구조와 색상도 통일감 있게 화이트톤으로 구성해 개방감을 살렸습니다. 수납공간은 상하부장을 충분하게 시공하여 부족함이 없게 했습니다.


침실.jpg


공용공간을 지나 뒤편에는 건축주님 부부의 침실이 위치합니다. 바닥의 강화마루의 톤에 맞추어 원목 침대가 포근함을 느껴지게 합니다. 창은 크지 않게 하여 프라이버시를 보호하면서도 침대에 앉았을 때 밖을 바라볼 수 있도록 시공하였습니다.


D65A4976a.jpg


침실 옆의 방은 드레스룸 겸 게스트룸처럼 활용할 수 있는 공간입니다. 수납하기 크기가 넉넉해서 간단한 짐도 함께 보관할 수 있습니다. 이외에도 다용도실을 따로 두어 집 안이 항상 깔끔하게 유지될 수 있도록 충분한 수납공간을 주었습니다.


D65A4977a.jpg


두 사람이 사용하기 넉넉한 욕실은 따스한 아이보리 타일로 마감하였습니다. 크기가 큰 타일을 시공해 줄눈이 드러난 부분이 적어 청소 관리가 편리합니다.


경기 남양주 와부읍 도곡리_무자막 - frame at 2m32s.jpg
2층


자녀세대가 거주하는 2층은 현관의 계단을 통해 들어올 수 있습니다. 프라이빗한 생활을 추구하시는 분들에게는 개인 공간으로의 이동이 빨라 선호하시는 구조가 될 것 같습니다. 2층도 1층과 같은 크기에 비슷한 색감으로 편안한 분위기를 주었습니다.


2층.jpg


모던하게 만들어진 주방은 세련된 분위기를 연출할 수 있는 그레이 톤을 바탕으로 두고 화이트 색상의 상하부장을 ㄱ자로 설치해 깔끔한 느낌이 듭니다. 광택감 있는 소재는 거실과 공간이 분리되어 보이는 효과를 주며 고급스러움도 느껴지게 합니다. 주방 한편에 세탁기와 건조기를 두어 독립적으로 이용이 가능하게 만들었습니다.


자녀방.jpg


2층에는 총 세 개의 침실을 마련하였습니다. 먼저 보여드리는 두 개의 방은 자녀분들의 방으로 공부와 휴식이 모두 가능한 공간입니다. 성장기 자녀인 만큼 선호하는 스타일이 달라질 가능성이 많으므로 전체적으로 깔끔하면서 단순한 색감으로 마무리하였습니다. 방의 가구의 색상만 봐도 취향이 다른 점이 눈에 띕니다.


D65A4992.jpg


자녀분들의 방 사이에는 작은 침실이 하나 더 있습니다. 이곳은 게스트룸으로 사용하기 좋은 공간으로 붙박이장도 시공되어 수납공간으로도 활용도가 좋습니다.



DJI_0003.jpg


오늘 사례의 주택은 평택의 공간제작소 공장에서 제작한 2층전원주택입니다. 분리된 동선을 위해 독특하게 배치한 계단과 프라이버시를 보호하기 위한 구조들이 돋보였습니다. 건축주님과 충분한 상의를 통해 전문 설계사와 인테리어 담당자가 고민하고 노력한 흔적을 엿볼 수 있습니다. 공간제작소는 건축주님들께 그동안의 경험으로 보유하게 된 노하우들을 반영하여 좋은 집을 지을 수 있도록 최선을 다하고 있습니다. 2층전원주택 건축을 생각하고 계시는 건축주님들이 있으시다면 오늘 사례를 참고해 보시고 언제든지 공간제작소를 찾아주시기 바랍니다.



▶ 건축상담 바로가기 ◀

공간 하단배너(최종).jpg


keyword
매거진의 이전글개성 있는 단독주택 집 짓기