윤환(輪環)|둥그런 일상이 이어지는 순환의 집

by 공간기록





DSCF2901.jpg
만성4_20.jpg
만성4_17.jpg
만성4_23.jpg
ⓒ ggglog | 윤환(輪環)




가족의 둥그런 일상이 이어지는

순환의 집_ 윤환 (輪環)


집 안을 한 바퀴, 세 아이와 부부의 생활을 배려한 동선이
하나의 원처럼 자연스럽게 이어집니다.
서로 감싸듯 연결되는 구조가 삶의 방식이 되는 집.

/ 전주 60평대 경량목구조 단독주택



만성4-오픈하우스_북측면도.jpg
만성4-오픈하우스_남측면도,-종단면도.jpg
ⓒ ggglog | 윤환(輪環)




60평대 경량목구조 단독주택

둥글게 돌아서 만나고, 다시 이어지는 집


현관을 열고 집 안을 한 바퀴 돌아보면, 곧 공간이 말하는 삶의 방식이 무엇인지 알게 됩니다. 세 아이와 부부가 함께 살아가는 단독주택 윤환(輪環)은 직선으로 뻗은 길 대신 원처럼 이어지는 동선으로 계획한 집입니다. 일반적인 주택이 방과 방을 나란히 늘어놓는 구조라면, 윤환(輪環)은 완전한 순환형 동선으로 설계되었습니다. 1층은 거실·식당·주방을 하나로 묶은 개방형 LDK 구조로 모두가 모여드는 중심 공간으로, 2층은 나란히 놓인 아이들 방과 안방에 자리한 파우더룸, 세탁실을 거쳐 다시 복도로 돌아오는 순환 동선의 구조를 띄고 있습니다. 각자의 시간을 존중하면서도 하루에도 몇 번씩 서로를 마주치게 하는 집. 아이들의 웃음소리와 부모의 발걸음이 교차하며, 집 안에는 작은 원들이 겹겹이 쌓여가는 삶의 풍경이 그려집니다.





공간기록

View Point 5

01. 닫힌 외관, 흐르는 내부 | 입면도
02. 두 개의 길 | 배치도
03. 브릿지(bridge), 중정(courtyard), 계단(stair) | 건축요소
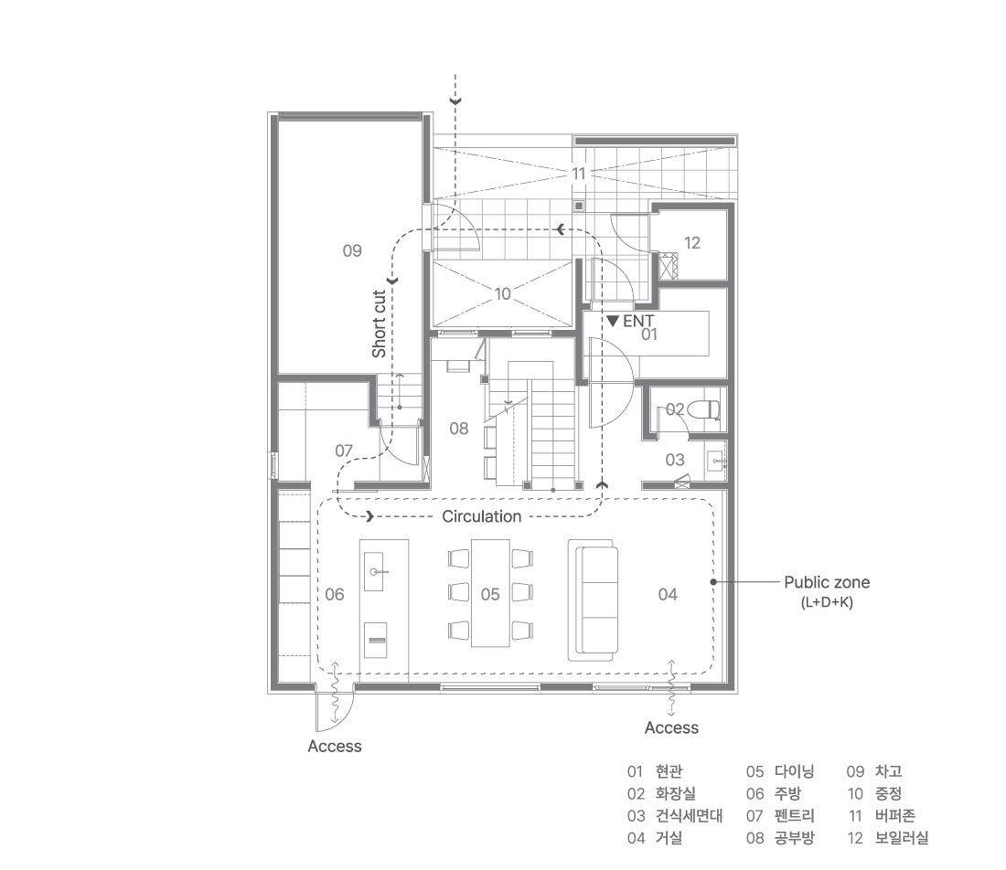
04. 1F Public Zone _ LDK 구조 | 평면도
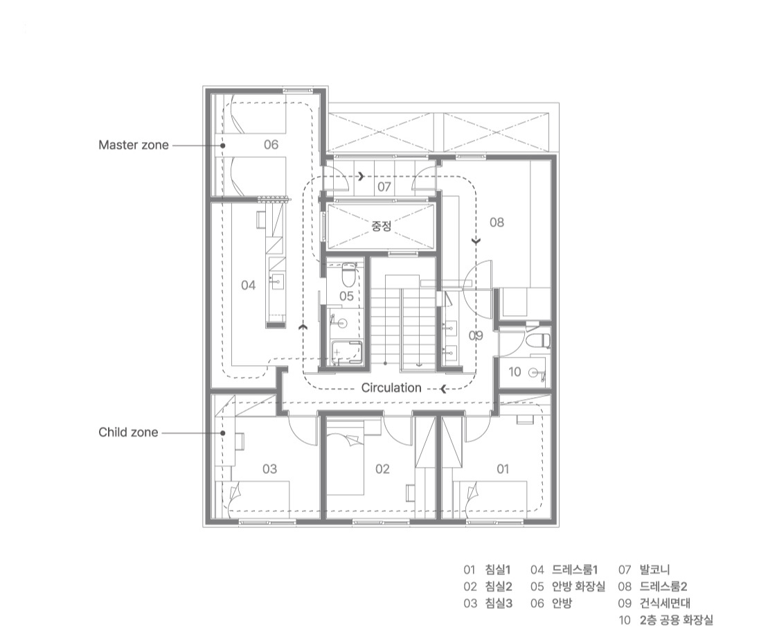
05. 2F Private Zone _ 순환 구조 | 평면도


DSCF2955 크게.jpeg ⓒ ggglog | 윤환(輪環)








View Point 01

닫힌 외관, 흐르는 내부

외부의 시선은 차단하고, 내부 동선은 유연하게

만성4.jpg ⓒ ggglog | 윤환(輪環)



지구 단위 계획이 수립된 택지에 위치한 윤환(輪環)은 두 개의 박공지붕과 루버 현관이 어우러진 도시형 전원주택입니다. 차분한 연회색의 모토타일과 톤오톤으로 어우러진 슁글 지붕이 심플하고 깔끔한 분위기를 자아냅니다. 외부 입면은 진입로에서의 프라이버시를 고려해, 집 안이 쉽게 들여다보이지 않도록 계획했습니다. 그러나 현관문을 열고 들어서는 순간, 닫혀 있던 외관과 달리 실내는 환히 열린 풍경과 빛으로 이어집니다.집의 브릿지를 기준으로 진입마당과 중정을 분리해, 실내에서 계단을 오르내리는 매 순간마다 시선은 중정의 풍경과 자연스럽게 마주하게 됩니다.



만성4 (3).jpg
만성4_2.jpg ⓒ ggglog | 윤환(輪環)




만성4-오픈하우스_남측면도,-종단면도.jpg ⓒ ggglog | 윤환(輪環)







View Point 02

두 개의 길


손님과 가족을 위한 이중적 진입 동선

윤환(輪環)의 진입부는 하나의 현관으로 모이지만, 접근하는 방식은 두 가지로 나뉩니다. 현관에 들어서면 가장 먼저 작은 중정이 시야를 채우며, 이곳에 가벽을 세워 안과 밖을 부드럽게 구분했습니다. 그 너머로는 앞마당과 이어지는 야외 동선을 두어 자연스럽게 외부와 내부 사이 또 하나의 연결을 만들어 냅니다.


15.JPG


만성4-오픈하우스_배치도.jpg
만성4_4.jpg
ⓒ ggglog | 윤환(輪環)




주차장은 두 개의 출입 동선을 가지고 있습니다. 하나는 출입문을 지나 현관으로 이어지는 길, 또 하나는 뒷문을 통해 주방으로 곧장 들어가는 길입니다. 이러한 이중적 동선은 필요에 따라 선택적으로 진입할 수 있습니다. 비가 오거나 눈이 오는 날, 혹은 마트에서 짐을 가득 싣고 돌아온 날에도 편리하게 집 안으로 들어갈 수 있습니다. 한편 주방 뒤편에는 별도의 서비스 동선을 마련해, 요리 과정에서 생기는 음식물 쓰레기나 분리수거를 집 안을 거치지 않고 곧바로 외부로 옮길 수 있도록 계획하여 생활의 편의를 높였습니다.



만성4_30.jpg
DSCF2918.jpg ⓒ ggglog | 윤환(輪環)






View Point 03

브릿지(bridge), 중정(courtyard), 계단(stair)


윤환(輪環)에서 계단과 중정은 집의 중심을 이루는 코어 역할을 합니다. 1층과 2층의 계단을 오르내릴 때마다 시야에 들어오는 이 중정은, 미묘한 계절의 변화나 빛의 흐름을 하나의 장면으로 담아냅니다. 매일 반복되는 익숙한 동선 속에서 자연은 매일 새로운 풍경을 보여주며, 일상을 더욱 풍요롭게 만드는 건축적 장치가 됩니다.


DSCF3217.jpg
DSCF2959.jpg
DSCF3111.jpg


ⓒ ggglog | 윤환(輪環)







View Point 04

1F Public Zone _ LDK 구조

분리보다 연결에 집중한, 순환형 생활동선


만약 주택을 지을 때 프라이버시를 중요하게 생각한다면 1층에 침실을 모두 없애는 것도 좋은 방법이 됩니다. 윤환(輪環)의 1층은 침실을 모두 2층으로 올리고, 공용 공간인 LDK영역을 배치해 유연한 개방감을 확보했습니다. 실내는 우드와 화이트 톤을 조화롭게 사용해 밝고 따뜻한 분위기를 완성했습니다. 브라운톤의 쇼파로 거실의 중심을 잡고, 가볍고 선이 얇은 형태의 심플한 가구라인을 두어 열린 공간이 막히지 않고 보다 넓어 보이게 계획했습니다. 여기에 컬러포인트가 되는 쿠션과 의자을 더해, 공간에 경쾌함을 불어넣었습니다.


만성4_18.jpg ⓒ ggglog | 윤환(輪環)



만성4-오픈하우스_1층-평면도.jpg ⓒ ggglog | 윤환(輪環)


DSCF3152.jpg
DSCF3164.jpg ⓒ ggglog | 윤환(輪環)





DSCF3202.jpg ⓒ ggglog | 윤환(輪環)


만성4_15.jpg
(수정)DSCF3171 크게.jpg
ⓒ ggglog | 윤환(輪環)




6인용 식탁 옆으로 큰 고정창을 두어 테라스의 풍경을 실내로 끌어들였습니다. 커다란 창 너머의 장면은 하나의 액자처럼 실내에 깊이를 더하며, 자연스러운 확장감을 느끼게 합니다. 계절마다 달라지는 테라스의 풍경은 집 안에서 보내는 시간을 더욱 풍성하게 채워줍니다.



DSCF3015.jpg
DSCF3014 크게.jpeg
ⓒ ggglog | 윤환(輪環)


계단 아랫공간에 세 아이들의 생활을 고려한 작은 공부방을 계획했습니다. 맞춤가구로 책상과 서랍을 배치해 책을 읽거나 노트북을 펼칠 수 있도록 했으며, 위치상 아늑하게 분리되어 있어 무언가에 집중하기에도 적합한 공간이 됩니다.



DSCF3040 크게.jpeg ⓒ ggglog | 윤환(輪環)
DSCF3200 크게.jpeg
ⓒ ggglog | 윤환(輪環)


투명한 유리 핸드레일은 위에서 아래를 내려다보는 시선까지 열어줍니다. 시야를 가리지 않는 덕분에 2층과 1층의 흐름이 산뜻하게 이어집니다.






View Point 05

2F Private Zone _ 완전 순환 구조

분리보다 연결에 집중한, 순환형 생활동선


집의 철학을 가장 선명하게 보여주는 2층은 가족을 위한 프라이빗 존입니다. 일반적인 아파트나 단독주택이 방과 방을 나란히 배치한 선형 구조라면, 윤환(輪環)은 이름처럼 공간을 선이 아닌 원으로 이어 생활의 흐름이 한 방향으로만 흐르지 않도록 설계했습니다. 2층 전체는 ‘아이들 방 – 안방 – 브릿지 – 세탁실 – 파우더룸 – 복도- 다시 아이들 방’ 으로 이어지는 완전한 순환형 구조를 이룹니다. 각자의 생활을 지켜주면서도, 하루에 몇 번이고 자연스럽게 스치는 동선으로, 가족 간의 적당한 거리감과 유대감을 함께 그려넣었습니다. 의도적으로 마주치지 않아도 걷다 보면 만나게 되는 윤환(輪環)의 순환형 구조는 서로를 감싸듯 연결되어, 가족의 삶의 방식이 되어갑니다.




만성4-오픈하우스_2층-평면도.jpg ⓒ ggglog | 윤환(輪環)




독립성을 갖춘 세 아이들의 방

계단을 올라서면 가장 먼저 마주하는 곳은 세 아이의 방입니다. 세 방은 모두 따뜻한 남향 햇살을 고르게 받을 수 있도록 나란히 배치했습니다. 각 방에는 책상, 붙박이장, 싱글침대가 들어가는 맞춤형 가구를 제작했습니다. 가구는 벽면에 맞추어 설계해 여유 있는 동선을 확보했기 때문에, 방의 크기는 동일하지만 체감되는 공간은 더 넓게 느껴집니다.


DSCF3056 크게.jpeg
DSCF3060 크게.jpeg
캡처4.JPG
DSCF3143.jpg
ⓒ ggglog | 윤환(輪環)




다시 복도로 돌아오는 순환 구조

아이들 방에서 벗어나 복도를 따라 들어서면 부부를 위한 안방 영역이 펼쳐집니다. 입구에는 옷을 갈아입을 수 있는 파우더룸과 드레스룸을 두었고, 외출 후 곧바로 손을 씻을 수 있도록 건식 세면대를 배치해 생활의 편의를 높였습니다. 이 곳을 지나 중정이 있는 복도를 건너면 침대가 놓인 안방이 나타납니다. 안방의 간살 도어를 열면 아파트 베란다와 같은 역할을 하는 브릿지가 이어집니다. 다시 연결되는 동선을 따라가면, 세탁실과 공용 드레스룸으로 연결됩니다. 안방 입구에 마련된 드레스룸이 부부만의 전용 공간이라면, 이 공간의 드레스룸은 가족이 함께 쓰는 패밀리 드레스룸입니다. 마찬가지로 또 하나의 파우더룸과, 두 개의 세면대를 나란히 두어 바쁜 시간에도 아이들이 동시에 사용할수 있도록 했습니다. 파우더룸 안쪽에는 욕실과 화장실을 분리해 편리하게 쓸 수 있도록 계획했습니다.




만성4_23.jpg
만성4_22.jpg
만성4_25.jpg
ⓒ ggglog | 윤환(輪環)



캡처5.JPG ⓒ ggglog | 윤환(輪環)


DSCF3098.jpg
DSCF3140.jpg
DSCF3134.JPG
ⓒ ggglog | 윤환(輪環)










▼ 윤환(輪環) 자세히 보기



▼ 윤환(輪環) 영상으로 보기▼











keyword
매거진의 이전글La Grange 3-4 | 밖에서는 안 보이는 집