온(溫)연희 | 한 여름의 오후를 닮은 집

by 공간기록
세종2_5.jpg
웹_반곡동 단독주택-35.jpg
세종2_9.jpg
세종2_29.jpg
ⓒ ggglog | 온(溫) 연희



온 가족이 함께하는 기쁨

환희의 집_ 온(溫) 연희


햇살에 그을린 듯 유니크한 레드오렌지 외벽에 시선을 멈추면,
어느새 발끝엔 부드러운 흙과 잔디의 감촉에 마음이 편안해 집니다.
함께하는 기쁨이 완성한 환희의 집


/ 세종특별자치시 30평대 단독주택




세종-오픈하우스_별지(횡단면도, 종단면도).jpg
세종-오픈하우스_별지(횡단면도, 종단면도).jpg
ⓒ ggglog | 온(溫) 연희




30평대 경량목구조 단독주택

기쁨의 연결, 환희의 집


두 아이와 젊은 부부가 살아가는 온(溫):연희는 햇살이 머무는 다이닝과 마당을 향해 활짝 열린 거실, 아이의 손끝에서 음악이 흘러나오는 피아노실까지 가족의 하루를 살뜰하게 담아낸 30평대 단독주택입니다. 대지면적 48.4py이라는 작은 대지 위, 여유를 놓치지 않기 위해 층고 차이를 활용한 스킵 플로어(Skip Floor) 설계와 LDK(Living · Dining · Kitchen) 구조를 적용해 공간에 입체감을 더했고, 그 결과 면적의 한계를 넘어서 오히려 가족이 더 가까이 연결되는 생활 구조를 완성했습니다. 한여름 오후처럼 기분 좋은 미소를 머금게 하는 이곳 온(溫):연희에서 가족의 시간은 오늘도 환희로 물들어갑니다.




공간기록

View Point 4

01. 반듯한 택지 위, 환희의 집
02. 작지만 더 넓게
03. 틈새까지 알차게
04. 시선은 탁 트이게

* Skip Floor (스킵플로어)
1F Public Zone
2F Private Zone




View Point 01

반듯한 택지 위, 환희의 집


마당을 향해 먼저 안내하는 집누군가를 반갑게 맞이하기라도 하는 듯, 상큼한 오렌지빛 외관으로 인사하는 온(溫):연희는 도로와 맞닿은 면에 진입과 주차를 정돈하고, 집의 중심은 자연스럽게 마당을 향해 열어두었습니다.현관은 짧은 동선을 따라 집 안으로 이어지며, 문을 열고 들어서는 순간 시선은 도로가 아닌 앞마당과 그 너머의 풍경으로 부드럽게 옮겨갑니다. 집 앞을 따라 이어진 울타리가 외부와의 경계를 또렷이 하면서도 답답하지 않게 구분해, 마당이 하나의 아늑한 생활 공간으로 느껴지도록 완성했습니다.


세종2_3.jpg
웹_반곡동 단독주택-8.jpg



세종2_1.jpg
세종-오픈하우스_별지(배치도).jpg


세종2_30.jpg
웹_반곡동 단독주택-14.jpg ⓒ ggglog | 온(溫) 연희







View Point 02

작지만 더 넓게


LDK · 스킵플로어로 같은 평수라도 더 넓게

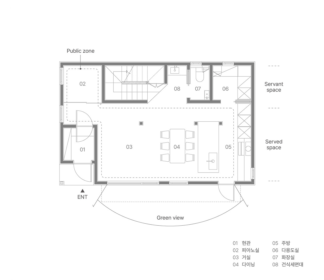
같은 평수의 집이라도 쓰임을 세심하게 나눈 설계가 작은 집을 더 크게 느끼게 합니다. 구조를 어떻게 풀어내느냐에 따라, 면적 이상의 여유를 만들어낼 수 있기 때문입니다. 온(溫):연희는 이를 위해 LDK(Living · Dining · Kitchen) 구조와 스킵플로어 설계를 함께 적용했습니다. 이 곳의 1층은 거실과 주방을 시작으로, 주방을 보조하는 다용도실과 화장실, 그리고 여기에 취미를 즐길 수 있는 공간까지 더하여 생활과 휴식, 개인의 시간이 균형 있게 공존하도록 했습니다.



1층 | Public zone

가족의 하루가 가장 많이 겹치는 공용 영역


세종-오픈하우스_별지(1층-평면도).jpg ⓒ ggglog | 온(溫) 연희
세종2_18.jpg


세종2_9.jpg


세종2_19.jpg
세종2_11 (1).jpg
웹_반곡동_단독주택-37.jpg
ⓒ ggglog | 온(溫) 연희




2층 | Semi private · Private zone


각자의 생활을 존중하는 사적 영역

2층은 각자의 속도와 취향을 존중할 수 있는 개인 공간으로 계획했습니다. 서로의 기척은 느껴지되, 필요할 때는 온전히 혼자만의 시간을 가질 수 있도록 공간의 역할을 분명히 나눈 구성입니다. 계단을 중심으로 동선이 정리되며, 중앙에는 가족이 느슨하게 마주칠 수 있는 완충 공간을 두고 그 주변으로 침실과 욕실을 배치했습니다. 각 방은 독립적인 휴식을 보장하면서도 창을 통해 마당과 외부 풍경을 공유하도록 계획해 층 전체가 고립되지 않도록 조율했습니다. 다락(Attic) 공간은 수납이나 취미 등 생활에 따라 유연하게 활용할 수 있는 여지로 남겨두어, 시간이 지나도 공간의 쓰임이 자연스럽게 확장될 수 있도록 했습니다.


세종-오픈하우스_별지(2층-평면도).jpg
세종2_20.jpg


세종2_21.jpg ⓒ ggglog | 온(溫) 연희




스킵플로어(Skip Floor) 3가지 포인트

- 입체적 공간경험
- 다층적 관계형성
- 수직적 개방감

세종-오픈하우스_별지(횡단면도, 종단면도).jpg ⓒ ggglog | 온(溫) 연희




작은 단차가 만드는 큰 여유

온(溫):연희는 건축면적이 크지 않은 집이기에 자칫하면 공간이 답답해 보이거나 가족 간의 거리가 지나치게 가까워질 수 있었습니다. 이를 보완하기 위해 공간을 옆으로 넓히기보다 위로 교차하며 쌓아올리는 스킵플로어 방식(Skip Floor) 을 선택했습니다. 스킵플로어는 층과 층 사이에 반 층 높이의 공간을 두는 설계 방식입니다. 한 층을 통째로 나누는 대신 바닥 높이를 조금씩 어긋나게 구성해 공간을 연결하며, 같은 면적이라도 공간을 겹쳐지게 활용하여 깊이감을 만들어냅니다. 또한 이를 활용하여 1층의 거실의 층고를 높일 수 있어 더 큰 공간감을 느낄 수 있도록 조성했습니다.



세종2_27.jpg


웹_반곡동 단독주택-29.jpg
세종2_25.jpg
ⓒ ggglog | 온(溫) 연희









View Point 03

틈새까지 알차게


자투리 공간까지 버려지는 면적 없이 활용특별히 버려지는 공간이 없도록, 눈에 잘 띄지 않는 틈새까지 생활의 일부로 끌어들였습니다. 공간이 비어 보이지 않으면서도 답답하지 않도록 자체 제작가구로 수납의 깊이와 높이를 세심하게 조절했습니다. 작은 공간일수록, 쓰임은 더 분명하게, 보이지 않는 틈새까지 집의 기능으로 완성했습니다.


세종2_29.jpg


웹_반곡동 단독주택-36.jpg
웹_반곡동 단독주택-27.jpg
ⓒ ggglog | 온(溫) 연희


벽을 따라 길게 계획한 수납은 동선을 방해하지 않으면서 자연스럽게 이어지고, 면적이 크지 않은 공간에서도 벽면을 따라 선반을 촘촘히 배치해 생활에 필요한 물건들을 무리 없이 담아낼 수 있도록 했습니다.







View Point 04

시선은 탁 트이게


위아래로 이어져 밝고 개방감 있는 공간온(溫): 연희는 시선의 방향 또한 먼저 고민해 넉넉한 개방감을 만들어낸 집입니다. 실내 어디에서든 마당을 향해 시야가 자연스럽게 열리도록 계획하여, 이동할 때마다 시선이 끊기지 않고 이어지며, 집 안에 풍경을 담아냅니다.


웹_반곡동 단독주택-17.jpg
웹_반곡동 단독주택-31.jpg


웹_반곡동 단독주택-32.jpg
웹_반곡동 단독주택-33.jpg
ⓒ ggglog | 온(溫) 연희







▼ 온(溫)연희) 자세히 보기



▼ 온(溫)연희 영상으로 보기▼


keyword
매거진의 이전글윤환(輪環)|둥그런 일상이 이어지는 순환의 집