brunch

지금은 취향 수집 중

by 해브빈


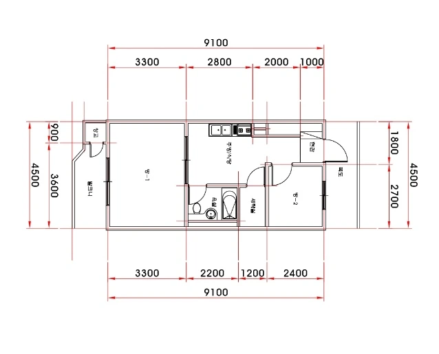
'서울 구축아파트 13평 투룸에서

신혼살림 잘할 수 있을까?'


시작은 호기로웠습니다.

이사하기 전에 설계 도면까지 구해

(설계사무소 소장님인 아빠가 그려준)

오늘의 집 3D 프로그램으로

야심찬 인테리어 계획을 세웠습니다.



옷방과 침대의 배치 등 여러 계획들을

세우며 가구 종류부터 컬러, 배치 방향까지

하나하나 설레는 과정이었습니다.



핀터레스트 이미지도 모아서

집의 분위기나 컨셉까지 정했어요.

방 크기와 구조도 잘 알고 있으니

우리가 계획한 대로 집을 잘 꾸밀 수 있을 거라는

자신감도 생겼습니다.



몇 달 뒤, 이사를 하고 주문했던 가구들이

하나씩 집을 채웠습니다.

침대, 테이블, 행거 등 대부분이

조립식 가구였어요.



실내 치수가 정확하지 않았는지

부피가 큰 가구들의 공간 배치에

어려움이 많았습니다.


남편과 마주 보는 구조로 테이블을

놓고 싶었는데 통로가 좁아서

벽에 붙일 수밖에 없었어요.


작은 소파나, 의자가 있는 화장대를

두기에도 공간이 좁았습니다.



공간의 제약으로 소파 대신 이케아

포엥 암체어를 두기로 했습니다.

나란히 앉을 수 없다는 아쉬움은 있지만,

덕분에 식물 자리가 생겼습니다.


몬스테라는 잎이 많이 나서 봄 되면

큰 화분으로 분갈이해 주려고요.



화장대는 수납력이 좋은 책장과

겸용으로 쓰기로 했습니다.

화장품이 몇 개 없어서 매일 쓰는

기초 화장품만 꺼내놓고

나머지는 수납장 안에 넣어놨어요.


오늘의집에서 눈여겨보고 산

바스포르 뮤트 수납장과 책장 세트로

벽 컬러와 톤이 맞아서 구매했습니다.

블랙 포인트 컬러로 깔끔하고

지루하지 않은 디자인이었습니다.



이곳에서 벌써 1년을 살다 보니

몇 개 없던 책들도 이만큼 늘어났습니다.

저보다 남편 책이 많은데 공간이 부족한

책들은 옷장에 숨겨놨습니다.


더 큰집으로 이사하면 서재 공간은

꼭 마련하자는 꿈이 생기더라고요.



신혼집 이사 오기 전에는 몰랐던 사실,

'세탁물은 생각보다 금방 쌓인다.'

겨울엔 실내에 건조대를 두는데

가습 효과를 기대한 이유도 있지만,

무엇보다 빨래가 금방 말라요.

습도 조절을 위해 환기를 자주 하고 있습니다.


실내에서 자주 두고 있는 만큼

분위기에 맞는 건조대를 두고 싶었습니다.

깔끔한 화이트 색상의 이케아 물리그 건조대는

세탁물이 많아도 부담 없이 널 수 있고

날개를 접을 수 있어서 베란다에

보관하기에도 적당한 크기입니다.



10시쯤이면 소등하고 조명을 켜놓는 우리 집.

장스탠드와 서랍장 위 플로어 조명을 두었는데

두 개만 켜놔도 충분히 밝아요.


조명은 여러 개 두고 싶었는데 저녁에

책상에 앉아 책 읽기에는 충분합니다.



옷 정리 때문에 최근까지 고민이 많았습니다.

집주인이 쓰던 옷장 두 개를 저렴하게 구입했는데요,

남편과 쓰기엔 공간이 충분하지 않아서 조립식 행거를

두어 수납력을 보완했어요.


1년 동안 지내면서 3년 이상 입지 않거나

사이즈가 안 맞는 옷들은 따로 모아

헌 옷 수거 앱으로 정리하기도 했습니다.



리클이라는 앱으로 의류 수거를 신청하면

무게를 고려해 매입금이 지급되는 서비스입니다.

저는 35개를 신청해 6,410원을 받았네요.



집이 좁아 계절 옷을 따로 분리하기보다는

함께 걸어두고 있습니다.

옷장과 행거에 여름옷, 겨울 옷 같이 있어요.


최대한 컬러별로 구분해서 옷의 위치를

잘 파악해 놨더니 레이어드 하기도 쉽고

어지럽지 않게 관리하려 노력 중입니다.


여유 공간을 잘 활용하면 전신 거울을

놓거나 서랍장을 둘 수도 있겠지만

1년간 살아보니 딱히 불편을 느끼지 않아

더 이상의 가구는 들이지 않고 있어요.



센스 있는 인테리어는 언제나 고민이지만,

지금의 공간에서 우리가 좋아하는

방식을 찾아가고 있습니다.


동선을 방해하지 않고 필요한 물건을

알아보기 쉽게 정리하는 것에 만족합니다.


흩어져 있던 우리의 취향을 하나씩

알아가는 중이랄까요.




이사 온 지 1주년을 기념하며.

keyword
작가의 이전글기억을 담은 공간, 시간을 잇는 건축