brunch

시공 디테일이 공간 디자인에 미치는 영향

by 인테리어브라더스


하나의 공간을 새로 만들어 내기까지 큰 노력이 필요하다. 수없이 고민하고 연구하며 모든 감각을 동원해 공간을 기획하는 디자이너와 그 의도를 정확하게 해석하는 현장 시공자 등 여러 사람이 힘을 합쳐야 좋은 공간이 완성된다.

특히 설계와 시공 사이의 소통이 중요한데 이 역할을 제대로 소화하지 못하면 많은 공을 들인 디자인이 의도한 대로 구현되지 못하거나 전혀 엉뚱한 방향으로 흘러가 버리고 만다. 그저 지나가는 대로 고민 없이 둔 현장과 중심을 잡고 표현하며 소통한 현장의 결과는 확연히 다를 수밖에 없다.

소통의 결과는 시공 디테일로 이어진다. 결국 얼마나 소통했느냐가 공간의 완성도를 좌우한다고 볼 수 있으며 그렇기에 시공 디테일은 현장의 시작이자 끝인 셈이다. 지난 2월 완료한 강남 S오피스 프로젝트를 통해 공간을 완성하는 데 있어 시공 디테일이 얼마나 큰 영향을 미치는지 알아보자.

5.%EC%99%B8%EB%B6%80_%EC%9D%B4%EB%AF%B8%EC%A7%80.jpg?type=w1200 S오피스 외부 이미지

S오피스 프로젝트는 신축 오피스 사옥 옥상의 VIP 접견실과 야외 정원을 만드는 일이었다. 눈에 보이는 고급스러움과 안락함을 표현하기 위해 보이지 않는 시스템의 빈틈없는 구현이 필수였다. 넓지 않지만 신축에 옥탑이었고 조경 공사가 함께 진행되었으며 강남 중심에 있었기에 여러 가지 제약이 있었다. 또한, 새로운 마감이 적용되는 요소가 많은 공간으로 어려움이 많았으나 시공의 입장에서 새로운 장소와 마감을 만나는 일은 항상 설레고, 한편으론 고민되는 일이다.

1-1.%EC%8A%A4%EC%BC%80%EC%B9%98_%EC%97%85_%EC%9D%B4%EB%AF%B8%EC%A7%80.jpg?type=w1200 S오피스 프로젝트 스케치업 이미지

이 공간은 VIP 접견이 목적인 만큼 프라이빗하고 고급스러운 공간을 만들기 위해 디테일적으로 국내에서 접하기 어려운 하드웨어와 기술을 적용했다. 내, 외부의 화로 및 스마트 벽난로, 페데스탈, 외부 화단 제작 및 자동 관수 시스템, 원목 소재의 자동문, 플랫 슬라이딩 등 다양한 시도가 필요한 마감이었다.

현장의 상황과 디자인의 접점에서 최상의 선택을 할 수 있도록 모든 표현을 동원하여 디자이너, 공사팀, 발주처가 상호 협의하고 연구·시공한 프로젝트로 이 가운데 실내와 실외를 잇는 ‘플랫 슬라이딩 도어’에 관해 자세히 이야기해보려고 한다.

몇 해 전, 다른 현장에서 시공했던 ‘러닝 슬라이딩 도어’는 실내 공간 확장 및 변형 위주로 시도한 작업이었고, 당시엔 벽체의 개념이 강했다. 불투명한 마감이기에 두께와 보강도 충분히 해줄 수가 있었다. 하지만 이번 ‘플랫 슬라이딩 도어’는 공간 확장 및 심미성을 갖추어야 하는 마감이었고, 실외의 옥탑(지상48m)에 설치되는 첫 사례였기에 구조와 풍압, 방수, 배수, 내구성, 시공의 용이성, 관리의 편리성 등 여러 부분에서 난제였다.

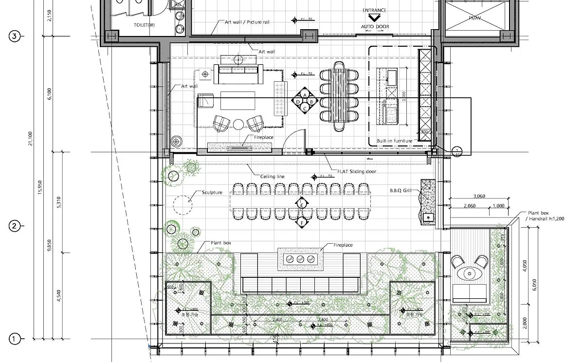
1.S%EC%98%A4%ED%94%BC%EC%8A%A4_%EC%A0%91%EA%B2%AC%EC%8B%A4_%ED%8F%89%EB%A9%B4%EB%8F%84.jpg?type=w1200 S오피스 접견실 평면도

위 평면도와 같이 6,200㎜*3,200㎜ 유리 도어를 외부 옥상의 탁 트인 공간에 모터 구동 방식으로 설치하기란 여간 까다로운 일이 아니었다. 먼저 설치를 위한 구조 검토 및 도면의 상세에 역점을 두었다. 해당 도어의 제작 방향 및 양 구조의 간격과 도어 사이즈, 유격 계산 등이 정확하지 않으면 낭패를 볼 수도 있었다.

먼저 도어의 치수를 결정하고 현장에 적용할 수 있게 베이스 작업을 진행했다. 양측 기둥의 구조와 마감을 적용하고 천장엔 단열을 위한 격벽을 설치하면서 한편으로는 도어의 점검이 가능하게 점검구를 적소에 협의, 배치했다.

2.%EC%83%81%EB%B6%80_%EB%8B%A8%EC%97%B4%EC%83%81%EC%84%B8%EB%8F%84.jpg?type=w1200 S오피스 상부 단열 상세도

하부엔 풍압과 외부 요소 차단을 위해 리프트 씰을 시공했다. 일전에 하부로 떨어지는 리프트를 설치한 사례는 있지만, 상부로 올려주는 방식은 처음이었다. 리프트 씰 내부의 부식 및 침수 방지를 위해 하우징과 방수공사를 병행하고 그 속에 모터 박스와 씰을 설치했다.

3.%ED%8A%B8%EB%A0%8C%EC%B9%98_%EC%8B%9C%EC%8A%A4%ED%85%9C.jpg?type=w1200 S오피스 트렌치 시스템

레일을 설치하고 마감 작업을 진행했다. 캐노피 마감재로는 지정 발색 서스 마감을 선택하고 사전에 약속된 사이즈로 선발주해 일정에 만전을 기했다. 도어 틀은 유리 고정대로 맞췄고 페어 글라스 역시 약속된 치수로 발주했다. 내부로 운반이 어려워 외부에서 60t 크레인을 이용해 작업한 쉽지 않은 마감이었다. 리모컨 구동 방식이다 보니 센서 박스의 위치도 중요했다. 천장에 메우는 방식으로 점검과 관리가 용이하도록 했다.

4.%EC%BA%90%EB%85%B8%ED%94%BC_%EB%8B%A8%EB%A9%B4.jpg?type=w1200 S오피스 캐노피 단면

도장 작업을 마지막으로 설치가 끝났다. 가장 아쉬웠던 부분은 우레탄 도장 마감이다. 여건상 소부 도장이나 그 외의 좋은 마감을 사용하지 못해 디테일의 한계를 본 것 같아 아쉬움이 남는다. 하지만, 설치 후 이상 없이 구동되고 공간에 시원한 임팩트를 주는 모습을 보니 그간의 고심이 헛되지 않았다는 것을 느낄 수 있었다.

시공 디테일이 프로젝트의 완성도를 좌우한다는 사실을 모르는 사람은 드물 것이다. 아는 것도 중요하지만 어떻게 표현하느냐가 더 중요하다. 언어, 서술, 이미지 표현 등 방법은 다양하고, 그 모든 수단을 동원하여 약속하고 전달하여 설계와 현장의 괴리를 줄이는 것이야말로 디자이너의 역할이다. 모두가 이해할 수 있는 표현으로 말이다.

6.%EB%A7%88%EC%A7%80%EB%A7%89_%EC%9D%B4%EB%AF%B8%EC%A7%80.jpg?type=w1200 S오피스 접견실 내부 모습

물론 세세한 부분의 미비한 점들도 많았지만, 큰 문제없이 마감이 되었다는 점은 고무적이다. 이렇게 하나의 프로젝트와 하나의 마감에 관련하여 심사숙고를 거듭하는 것을 비전공자의 입장에선 이해 못할 수도 있다. 하지만 이러한 노력이 모여 하나의 현장이 완성됨을 우리 전문가들이라도 잊어서는 안 될 것이다.


글 | 이정훈 과장(디자인다나함)


▼ 디자인다나함 전문가 페이지 바로 가기

http://bit.ly/2JtYynJ


2,500개 이상의 인테리어 기업이 모여 있는 중계 플랫폼 "인테리어 브라더스"가 직접 검수한 제품을 재고 소진 시까지 '달콤한' 가격에 판매하는 특가 플랫폼 "달콤한 자재 마켓" 쇼룸도 함께 운영 중이니 언제든지 방문해 주세요!


달콤한 자재마켓 - 합리적인 인테리어/건축 마감 자재

https://magam.kr


달콤한 자재마켓을 네이버 스마트 스토어에서도 만나볼 수 있습니다.

https://smartstore.naver.com/magam_sale

keyword
매거진의 이전글디자인의 본질에 관하여