brunch

퍼즐: 공간 구성과 기획을 고민할 때

[공공살롱 #9] 오래된 공간의 창의적 재해석 - COSMO40 편

by 공공그라운드
공공그라운드 기획 프로그램 [공공살롱]은 공간, 건축, 도시와 관련된 테마를 중심으로 공공그라운드의 미션인 오래된 건축물을 보존하고, 새로운 실험이 일어나는 공간으로 변화시키는 사람들의 이야기를 담습니다.

이번 공공살롱에서는 "오래된 공간의 창의적 재해석"을 주제로, 오래된 공간들을 되살려 해당 공간만의 아이덴티티를 살려 나가는 4개 공간의 기획, 운영 이야기를 다양하게 나누어 보았습니다. 각 지역의 특수성과 공간의 역사성을 살려 나가는 이야기들을 담았습니다.


글, 사진 | 페어



인천 코스모 화학단지 공장의 40번째 동이었던 COSMO40은 어떤 과정을 통해서 탄생했을까요? 오래된 건물과 신축 건물은 어쩌다 퍼즐처럼 맞물리게 기획되었을까요?


허허벌판에서 시작해서 다양한 실험을 이어가고 있는 COSMO40. 그 배경과 운영의 상세한 내용을 에이블 커피 컴퍼니(빈브라더스 운영)의 성훈식 디렉터에게 들어보았습니다. 인천의 오래된 화학공장 건물이 전시장, 서점, 그리고 다양한 이벤트가 벌어지는 인천의 복합 문화 공간으로 탄생한 이야기를 공공살롱에서 함께 나누었습니다.


JVDDmEj6DdaiCVTAC2v004TNo60syYF-g2LBCJjh_uVaCo1OTkq2j05_TBWiQfm9l3yUl6j5gkj-dIkI_8-12JAwINHKSHwZdbGPpR1cFq5O4dXrpxz9lC1zWfz022iCdWXiLEsv COSMO40 전경 ⓒ 신경섭



대한민국 산업 발전의 산증인, 인천 서구 가좌 지역

빈브라더스는 인천의 가좌 지역 근처에 커피 로스팅 하우스를 만들게 되었습니다. 큰 규모의 로스팅 설비가 필요하던 빈브라더스는 여러 가지 입지 조건을 고려하여, 교통이 편리하고 지가가 낮았던 인천을 택했습니다. 카페와 로스팅 하우스를 운영하면서, 성 디렉터는 자연스레 주변 지역에 대한 이해도를 높였습니다.


오래전부터 인천의 주요 공단 중 하나였던 가좌 지역은 코스모화학을 비롯한 각종 생산 단지가 밀집한 지역으로, 1960년대부터 주요한 산업 생산 기지가 들어섰습니다. 한국 지탄 공업으로 시작하여 40여 년간 이산화 티타튬을 비롯한 각종 화학제품을 생산하던 코스모 화학은 2016년, 울산으로 생산 설비를 모두 이전했습니다. 인천 지역에 남아 있던 공장 부지 및 건물, 설비는 모두 폐기되고, 부지 매각과 함께 인천 기반 공업 시대의 종말을 고하게 되었습니다.


gx-j9a8w_Cyxvq1vlQp5uaJXSIVjwf_3-yvLvSyZ6ph1SxArUpJ6puqujERX92w6q-FNv_LHwqun8AS8iVVcmUjIDYU0gixpEuFO-xhD19ssSdL8LcUQL9bJkEfIwHGe7I8f-m2o COSMO40 전경 ⓒ 신경섭



사라질 뻔한 공장 건물의 발견

빈브라더스의 성훈식 디렉터는 우연히 코스모화학단지의 모든 건물이 이전 후 헐리게 될 것이라는 소식을 접했습니다. 마지막 남은 40동에 몰래 들어가 본 후, 공장 설비와 높은 층고의 건물이 주는 압도적인 느낌에 감동했다고 합니다. 성 디렉터는 이 공간에서 그동안 해외 사례에서만 보아 온, 근대건축에 기반한 재생건축을 꿈꾸게 되었습니다.


성 디렉터에 따르면, 45개의 공장 건물 중 마지막 남은 40동을 헐리기 전 가까스로 매입하게 된 것은 천운에 가까웠다고 합니다. 내부 설비가 모두 조각조각 폐기되어 고물상 혹은 고철 전문점에 팔려나가고 있던 중이었습니다. 인천 가좌 지역에 애정을 가지고 있던 투자자 심기보 대표도 힘을 보태 주었습니다. 다행히도 모든 건물이 매각되고 헐리기 전, 성 디렉터는 코스모화학 40동을 매입할 수 있었습니다. 그렇게 우여곡절 끝에 살아남은 건물은 새로운 숨결이 불어넣어지기를 기다리게 되었습니다.

* COSMO40으로 인연을 맺은 심기보 대표는 300년 된 고택과 COSMO40 등을 활용, 신진말 프로젝트를 진행하고 있습니다.


8mNhQUUYOQfoxo1CYeFM4MmFx1VyszqFhVa3LjWcmcRJODKSt4Q0blsJw8L8l-EGpZ0jx809JF7S9pD7_DLdktpIQ3lwhuGPnmz24mdMBR5cpJhtwH0oCG4qLMFGfiW_-2gxT9BS
p__FEX8LDXjDIbfn1V9vLQU8zuXS93AAAvqzqQDMDJ-4X0cnYRcIm39eDOQ2AFo3ojWJYvPytGsILCqKDNsAalzo0brATaWWJw-UkzGYRdvbMoOCSOuKBflJs-vLbGpRcL6ipcZK
COSMO40 내부 모습 ( 좌측: ⓒ Lifethings: 삶것 / 우측: ⓒ 타별사진관)



공간의 구조를 함께 고민할 수 있는 건축가와의 만남

40년 된 화학 공장 건물을 어떻게 살릴 수 있을까. 매입한 시점부터 성 디렉터의 고민이 시작되었습니다. 오래된 근대건축물을 살려 멋진 복합 문화 공간으로 탄생시킨 다양한 사례들처럼, 기존의 건물과 역사를 살리면서도, 새로운 콘셉트를 더해 전통과 현대가 공존하는 공간을 만들고자 했습니다. 이러한 과정에서 여러 건축가들과 만나면서 해당 공간을 어떻게 사용하고 활용할 지에 대한 의견을 나누었고, 고심 끝에 양수인 대표를 최종적으로 파트너로 선정하여 함께 공간 기획 및 운영에 대한 구상을 시작했다고 합니다.


팀을 구성한 성 디렉터는 파트너와 함께 출장을 다니며 해외의 다양한 사례를 살펴보았고, 공통의 언어와 공통의 관점을 유지하기 위하여 많은 노력을 했습니다. 구상 당시에는 이러한 “경험의 통일성”에 비용을 집행하는 것이 맞는지에 대한 고민을 많이 했지만, 돌아보면 그 경험이 가장 좋은 결정이었다고 말했습니다. 건축가와 건축주(기획자)가 동일한 언어로 같은 공간에 대한 그림을 그리는 데에 있어서, 일관된 관점을 구축할 수 있는 레퍼런스의 정립은 필수적인 것으로 보입니다.



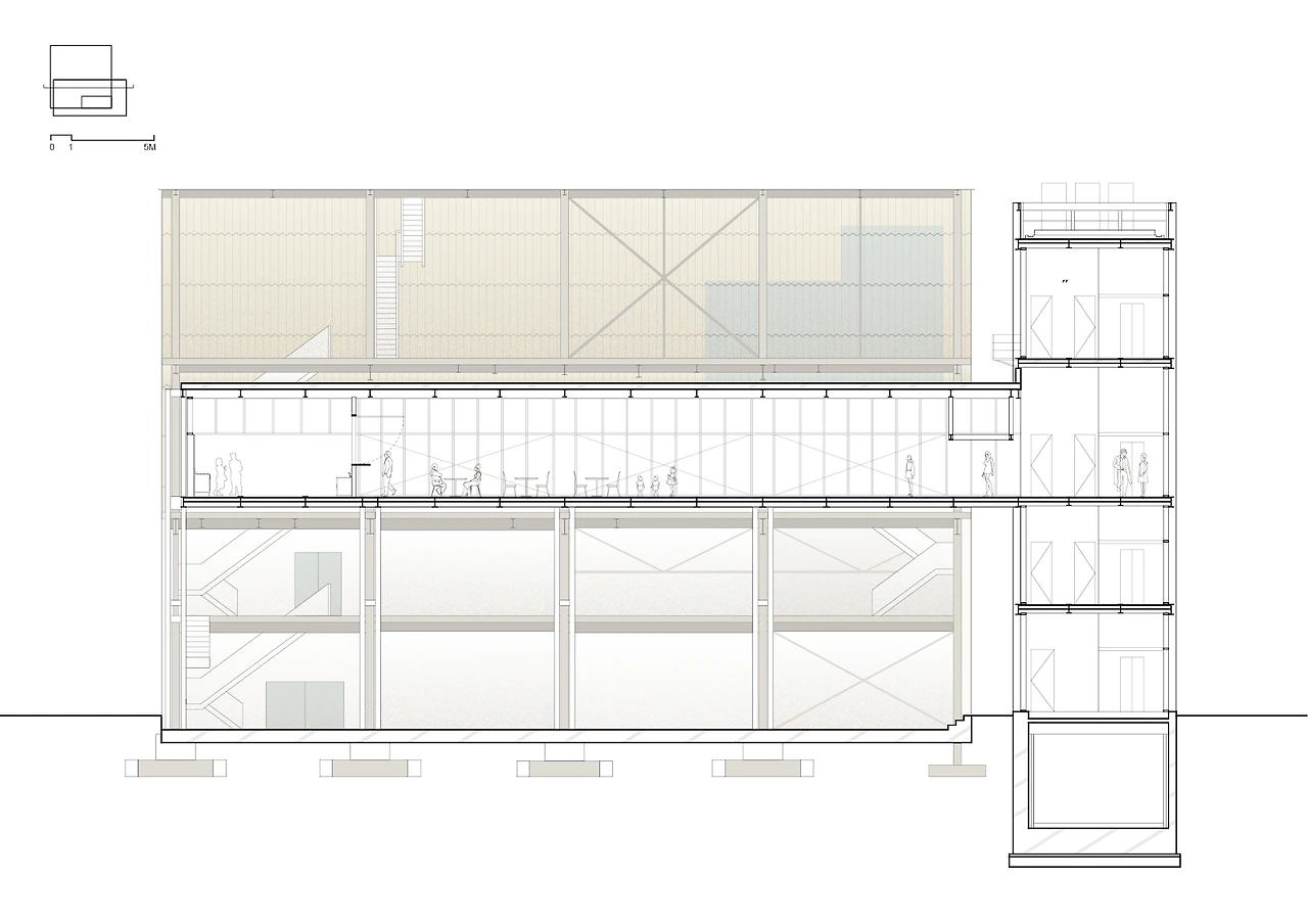
기존 건축물과 신규 건축물의 퍼즐 같은 조합

COSMO40의 기획팀은 기존 건축물의 구조와 양식을 유지하면서, 새로운 건물이 기존 건물의 활용 양식을 최대한 보완해 주는 형태의 기획으로 기존 건축물과 신규 건축물이 마치 퍼즐처럼 맞춰지는 구조를 택했습니다. 커피, 맥주, 베이커리, 음식 등 다양한 구성의 F&B 를 운영할 계획이었기 때문에, 일반 음식점 운영에 필요한 소방 설비와 전기, 수도 설비를 기존 공장 건물에 처음부터 새로 설치하는 것보다는 신규 건물 안에 법률적으로 필요한 모든 설비를 넣는 방안이 현실적으로 다가왔습니다.


7R8jqeeCLyqIXF3r4W5ju5o6T1OjtvJwiembW3kz3Q2MeRkt-ab8p9D2hZ9H-QV6ZKKuSxh4o90dJQy0tvFzEKHbYhDac2FKvpi3tdzwVUKjFTUlXuDeGqXhUUI1HboU3NPyFgBG COZMO40 리모델링 구조물 ©신경섭


궁극적으로 완성된 공간은 내부에서 신규 건물과 기존 건물이 연결되는 구조로 만들어졌습니다. 기본적으로 운영에 필요한 모든 공간적 구성을 신규 건물 내에 집적시키면서도, 기존 건물과 접합된 형태로 산업적 느낌의 외관과 내부적 웅장함을 지킬 수 있도록 했습니다.


u3w9YyQX_p0ELNcYHarll5IeuB7QmmuaPcjDh4Z2qY3s517SYOicmI0g_9ToV_zxAcHVWWjYFHomClKbgad5zFiNrB0JR8wvmsVfIGM1LWcfw1Vi7QFz8YJ3zKmosUY5_t0xO8qS
T2vrOMd_S1I28td4PXkrDLmVTOXom9AbRcXAYIt4V6ul-rC9HXD6CfqSignuRLTbVHckB7Fy26C77GWYsTSjcg6KmBJU_pH3B9IqMFsXF1bZIjOO9mOKb0LeoRjxsJlZqncFFNOA
COSMO40 도면 ©Lifethings: 삶것



무엇으로 이 공간에 사람을 모을 수 있을 것인가: 공간 운영에 대한 실험

아무것도 없었던 공장 단지로 사람들을 불러 모으기 위한 COSMO40만의 다양한 실험이 시작되었습니다. 텅 빈 공간이란, 역설적으로 무엇이든 될 수 있는 공간이었습니다. 스케이드 보드 팀과 함께 넓은 공장 부지에서 스케이드 보드 대회를 열기도 하고, DJ와 함께 음악 공연을 여는 멋진 클럽으로 변신시키기도 했습니다. 요가 수업을 개최해 보기도 하고, 플리마켓을 열기도 했습니다.


다양한 실험을 통하여 성 디렉터는 가좌 지역을 넘어 인천 지역, 그리고 수도권 지역까지 어떤 사람들이 COSMO40을 방문하고, 또 어떠한 콘텐츠 기획이 사랑받는지를 지속적으로 실험하고 있습니다.


4R5A2kAJlpEUXzfYQo6RyYiN9ptsbQf3A3EzFdVkHhDbp1EBTbdl_9ntedD0rDpcyYgkMLCCC-pfpuEDlB9HzfyURPqeTZYXWEchSmQ7NW2nCoIFr0hAMzZjSPpgOMerzP3MRgUv 다양한 기획이 있는 COSMO40 ⓒ COSMO40


요일, 시간, 그리고 콘텐츠를 달리 하면서 이루어졌던 다양한 기획들은, 회차를 거듭할수록 진화하며 COSMO40이라는 공간의 정체성을 만들어 나가고 있습니다. 공간을 운영함에 따라서 얻게 된 노하우도 추가적으로 필요한 공간의 수요들을 밝혀 주었습니다. 이에 따라 성 디렉터는 20-30명 정도가 모일 수 있는 소규모의 공간 등을 추가로 4층에 만들어 나가는 작업을 진행 중입니다. 1, 2층에 위치한 전시 공간에서는 신진 아티스트들과 함께하는 실험적인 전시들과 다양한 시도들이 지속적으로 이루어집니다. 퍼즐이 맞춰지듯 이 공간에 꼭 맞는 콘텐츠와 공간이 만들어지고 있습니다.



가재울 신진말 프로젝트와의 접점

300년 된 고택을 중심으로 하는 신진말 프로젝트는 향후 COSMO40이라는 공간을 점이 아닌 선, 그리고 나아가 면으로 발전시키는 역할을 할 계획입니다. 공간이 하나의 의미만 지니는 것이 아니라, 복합적인 지역 구조 안에서 기능하게 만드는 것이 궁극적인 목표입니다. 앞으로 인천 서구 가좌동이 어떠한 모습으로 변해 나갈 것인지, COSMO40과 그 주변 지역들이 더욱 궁금해지는 이유입니다.


Jr_YB9cMDBeB_ik1oThWSEEbS6H05hitM2gOMbolMb0SDgO-3VpZGqEyIuf_VD5yqYtLjBuS0ciMG5fe15bew3AzD6CFPUfLfX56RzR3XhhVx7UO_RnjClPeNIq_jAlEBqXaobs8 ©타별사진관




[사진 참고]

https://vmspace.com/report/report_view.html?base_seq=NDgy

[기타 참고]

https://brunch.co.kr/@seoulsoozip/59

keyword
매거진의 이전글대학로의 추억을 간직한 공간